407-990-2746
Menu

3355 Lake Tohopekaliga Road, St Cloud, FL

NEXT
PREV
$624,999

($274/sqft)

List Status: Pending
3355 Lake Tohopekaliga Road
St Cloud, FL 34772


3 beds
2 baths
2279 living sqft
Top Features
  • Subdivision: S L & I C
  • Built in  2004
  • Single Family Residence
Description
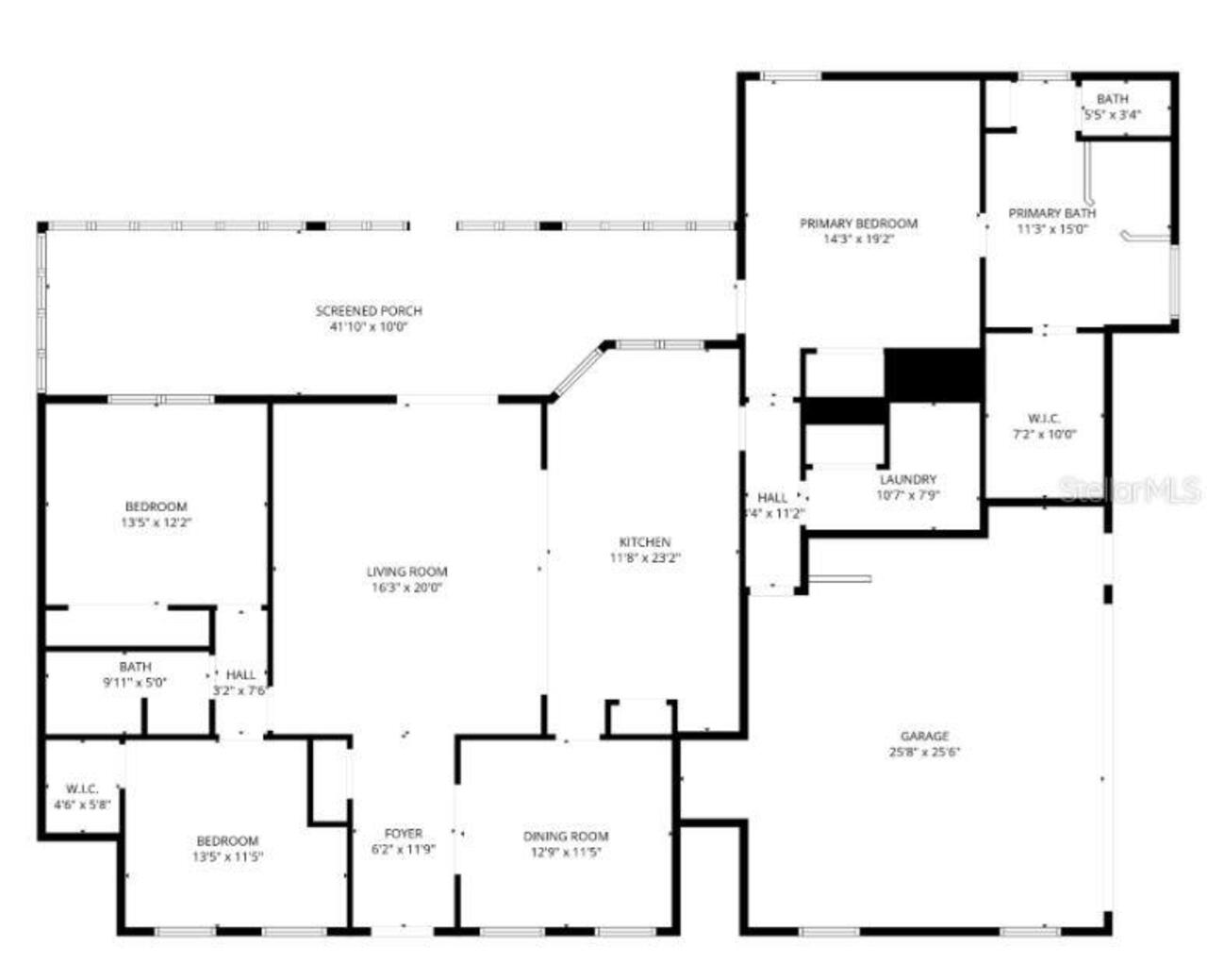
One acre lot with no HOA and easy access to the Florida's Turnpike and the Whaleys Landing Public Boat Ramp that launches directly into Lake Toho. Mature landscaping with plenty of room to roam where you can build a secondary oversized shed to store all your boats and other items. The garage internally opens into your laundry room that can double as a mud room. The master bedroom conveniently has a side door that opens directly into your oversized screened in porch. Options abound in the master bathroom that boasts separate closets, two vanities, a walk in shower and a bathtub. The open area kitchen features a full size island, closet pantry, a breakfast nook and separate formal dining room. Don't allow HOA's to restrict you unnecessarily when you can own the freedom of your own home that you worked hard to earn. Not many one acre lots are available, take advantage of this opportunity before it's too late.
Property Details
Additional Information
Additional Parcels YN
false
Additional Rooms
Formal Dining Room Separate
Alternate Key Folio Num
292630495000010521
Appliances
Dishwasher, Disposal, Range, Refrigerator
Association YN
false
Attached Garage YN
true
Available For Lease YN
1
Bathrooms Total Integer
2
Building Area Source
Public Records
Building Area Total
3225
Building Area Total Srch SqM
299.61
Building Area Units
Square Feet
Calculated List Price By Calculated SqFt
274.24
Carport YN
false
Construction Materials
Block, Concrete, Stucco
Cooling
Central Air
Country
US
Cumulative Days On Market
25
Current Price
624999.00
Direction Faces
West
Expected Closing Date
2026-03-13T00:00:00.000
Exterior Features
Private Entrance, Private Mailbox, Storage
Fencing
Chain Link
Fireplace YN
false
Flood Zone Code
X
Flood Zone Date
2013-06-18
Flood Zone Panel
12097C0255G
Flooring
Ceramic Tile
Foundation Details
Slab
Furnished
Unfurnished
Garage Dimensions
25x25
Garage Spaces
2
Garage YN
true
Heating
Central
Home Warranty YN
false
Interior Features
Ceiling Fans(s), High Ceilings, Walk-In Closet(s)
Internet Address Display YN
true
Internet Automated Valuation Display YN
true
Internet Consumer Comment YN
true
Internet Entire Listing Display YN
true
Laundry Features
Electric Dryer Hookup, Laundry Room, Washer Hookup
Levels
One
List AOR
Osceola
Living Area Meters
211.73
Living Area Source
Public Records
Living Area Units
Square Feet
Lot Features
In County
Lot Size Acres
1
Lot Size Square Feet
43560
Lot Size Square Meters
4047
Minimum Lease
1-2 Years
Modification Timestamp
2026-02-06T15:22:09.851Z
New Construction YN
false
Number Of Septics
1
Number Of Wells
1
Occupant Type
Vacant
Other Equipment
Private Entrance
Ownership
Fee Simple
Parcel Number
29-26-30-4950-0001-0521
Pool Private YN
false
Postal Code Plus 4
7457
Public Survey Range
30E
Public Survey Section
29
Purchase Contract Date
2026-02-05
RATIO Current Price By Calculated SqFt
274.24
Road Responsibility
Public Maintained Road
Road Surface Type
Asphalt
Roof
Shingle
Room Count
7
Senior Community YN
false
Sewer
Septic Tank
Showing Requirements
Combination Lock Box
Spa YN
false
Status Change Timestamp
2026-02-06T15:22:01.000Z
Stories Total
1
Tax Annual Amount
6486.05
Tax Block
1
Tax Book Number
B-16
Tax Legal Description
S L & I C PB B PG 16 COM AT NW COR LOT 52, E 208.71 FT, S 208.71 FT, W 208.71 FT, N 208.71 FT TO POB LESS RD R/W
Tax Lot
52
Tax Year
2025
Total Acreage
1 to less than 2
Total Annual Fees
0.00
Total Monthly Fees
0.00
Township
26S
Universal Property Id
US-12097-N-292630495000010521-R-N
Unparsed Address
3355 LAKE TOHOPEKALIGA RD
Utilities
BB/HS Internet Available, Cable Connected, Electricity Connected
Water Source
Well
Waterfront YN
false
Zoning
OAC
Neighborhood Map
Popup

Property Photos
Listing Photo
Listing Photo
Listing Photo
Listing Photo
Listing Photo
Listing Photo
Listing Photo
Listing Photo
Listing Photo
Listing Photo
Listing Photo
Listing Photo
Listing Photo
Listing Photo
Listing Photo
Listing Photo
Listing Photo
Listing Photo
Listing Photo
Listing Photo
Listing Photo
Listing Photo
Listing Photo
Listing Photo
Listing Photo
Listing Photo
Listing Photo
Listing Photo
Listing Photo
Listing Photo
Listing Photo
Listing Photo
Listing Photo
Listing Photo
Listing Photo
Listing Photo
Listing Photo
Listing Photo
Listing Photo
Listing Photo
Listing Photo
Listing Photo
Listing Photo
Listing Photo
Listing Photo
Listing Photo
Listing Photo
Listing Photo
Listing Photo
Listing Photo
Listing Photo
Listing Photo
Listing Photo
Listing Photo
Listing Photo
Listing Photo
Listing Photo
Listing Photo
Listing Photo
Listing Photo
Listing Photo
Listing Photo
Listing Photo
Listing Photo
Listing Photo
Listing Photo
Listing Photo
Listing Photo
Listing Photo
Listing Photo
Listing Photo
Listing Photo
Listing Photo
Listing Photo
Listing Photo
Listing Photo
Listing Photo
Listing Photo
Listing Photo
Listing Photo
Listing Photo
Listing Photo
Listing Photo
Listing Photo
Listing Photo
Listing Photo
Listing Photo
Listing Photo
Listing Photo
Listing Photo
Listing Photo
Listing Photo
Listing Photo
Listing Photo
Listing Photo
Listing Photo
Listing Photo
Listing Photo
Listing Photo
Listing Photo

MLS #MFRS5141501 Listing courtesy of Melentree Realty Llc provided by Stellar MLS.

Similar Listings

$564,000
2049 Eldorado Court
St Cloud
3BR/2BA
| Active
$568,888
1907 Sir Lancelot Circle
St Cloud
3BR/2BA
| Pending
$571,000
881 Arbor Green Trail
St Cloud
3BR/2BA
| Active
$585,000
5229 Hammock Circle
St Cloud
3BR/2BA
| Active



All listing information is deemed reliable but not guaranteed and should be independently verified through personal inspection by appropriate professionals. Listings displayed on this website may be subject to prior sale or removal from sale; availability of any listing should always be independent verified. Listing information is provided for consumer personal, non-commercial use, solely to identify potential properties for potential purchase; all other use is strictly prohibited and may violate relevant federal and state law. The source of the listing data is as follows: Stellar MLS (updated 2/24/26 8:11 PM) |

Listing Search



Translate Tool

Featured Listings
Bradenton Real Estate
$955,000
4 BED
3 BATH
Welcome Home! Located in the highly sought-after Rosedale Golf & Country Club, this exceptional residence embodies elega... Read More
Bradenton Real Estate
$950,000
4 BED
3 BATH
In Waterlefe Golf & River Club, life is meant to be lived outdoors. Boat on the Manatee River in the morning, tee it up ... Read More
New Smyrna Beach Real Estate
$824,999
3 BED
2 BATH
Beautifully maintained 3-bedroom, 2-bath canal-front home tucked away at the end of a quiet cul-de-sac in New Smyrna Bea... Read More
Orlando Real Estate
$1,349,000
5 BED
4 BATH
One or more photo(s) has been virtually staged. *** SUNSET PORCH LAKEVIEWS LUXURY *** If you have been waiting for a tru... Read More
St Petersburg Real Estate
$1,399,900
4 BED
2 BATH
Welcome to Venetian Isles – Premier Waterfront Living in Northeast St. Petersburg. Located in the highly desirable, deed... Read More
Apollo Beach Real Estate
$1,050,000
4 BED
3 BATH
Price Reduced! Don’t Miss This Opportunity-Welcome to Marisol Pointe at MiraBay—your final opportunity to own an almost-... Read More
Celebration Real Estate
$1,365,000
4 BED
3 BATH
Never-lived-in, sits on a premium lot with no rear neighbors, offering uncommon privacy within Celebration’s Island Vill... Read More
Ocala Real Estate
$1,495,000
4 BED
5 BATH
Minutes to WEC | Gated Equestrian Community | Ride-Out Access Welcome to this beautifully updated 6+ acre equestrian est... Read More
New Port Richey Real Estate
$875,000
5 BED
3 BATH
Welcome to your ultimate multi-generational Gulf-front retreat in the highly sought-after community of Gulf Harbors Sea ... Read More
Orlando Real Estate
$1,150,000
4 BED
4 BATH
Nestled within the prestigious, gated golf community of Palma Vista at Metrowest, 2313 Roat Drive presents an exceptiona... Read More
Contact Sandra Pardo

407-990-2746

Wendy Morris LLC

Licensed in the State of Florida
BK 3146762
16797 Broadwater Avenue
Winter Garden, Florida 34787

Your privacy is our utmost concern. We will never sell your personal information. Privacy Policy
©2026 sandrapardohomes.com - all rights reserved. | Site Map