407-990-2746
Menu

3330 8th N Avenue, St Petersburg, FL

NEXT
PREV
$564,900

($337/sqft)

List Status: Active
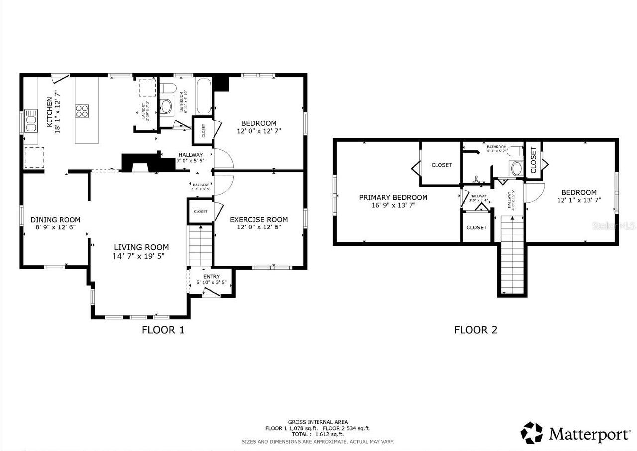
3330 8th N Avenue
St Petersburg, FL 33713


4 beds
2 baths
1676 living sqft
Top Features
  • Subdivision: Kenwood Sub Add
  • Built in  1939
  • Single Family Residence
Description
Discover the charm of Historic Kenwood in this beautifully updated 4-bedroom, 2-bath home that blends character with modern comfort. The open living areas create an easy flow for everyday living, the renovated kitchen is ideal for cooking and gathering, and the spacious primary suite offers a peaceful retreat. Updates include luxury vinyl plank flooring, refreshed baths, a newer roof (2021), and durable Hardie Board exterior siding for long-term confidence in Florida’s climate. The oversized lot provides space to entertain, garden, or relax outdoors, and the detached garage adds great storage or workshop flexibility. Enjoy the best of St. Pete living with tree-lined neighborhood streets, the vibrant Grand Central District’s restaurants and breweries, downtown’s waterfront, and the beaches all just minutes away. The home has recently passed a four-point inspection, supporting insurance eligibility. A new single-story bungalow with a two-car garage is beginning construction next door, elevating the block and supporting long-term neighborhood growth and interest.
Property Details
Additional Information
Additional Lease Restrictions
See City of St Petersburg
Additional Parcels YN
false
Additional Rooms
Inside Utility
Alternate Key Folio Num
143116463500160040
Appliances
Built-In Oven, Cooktop, Dishwasher, Disposal, Dryer, Electric Water Heater, Ice Maker, Refrigerator, Washer
Architectural Style
Tudor
Association YN
false
Attached Garage YN
false
Available For Lease YN
1
Bathrooms Total Integer
2
Building Area Source
Appraiser
Building Area Total
2142
Building Area Total Srch SqM
199.00
Building Area Units
Square Feet
Calculated List Price By Calculated SqFt
337.05
Carport YN
false
Community Features
Street Lights
Construction Materials
HardiPlank Type
Cooling
Mini-Split Unit(s)
Country
US
Cumulative Days On Market
125
Current Price
564900.00
Direction Faces
North
Disaster Mitigation
Above Flood Plain
Exterior Features
Awning(s), Private Mailbox, Sidewalk
Fencing
Wood
Fireplace Features
Living Room
Fireplace YN
true
Flood Zone Code
X
Flooring
Laminate
Foundation Details
Crawlspace
Garage Spaces
2
Garage YN
true
Heating
Heat Pump
Homestead YN
1
Interior Features
Built-in Features, Ceiling Fans(s), Eat-in Kitchen, High Ceilings, Solid Wood Cabinets, Split Bedroom, Stone Counters, Thermostat, Walk-In Closet(s), Window Treatments
Internet Address Display YN
true
Internet Automated Valuation Display YN
false
Internet Consumer Comment YN
false
Internet Entire Listing Display YN
true
Laundry Features
Inside, Laundry Closet
Lease Restrictions YN
1
Levels
Two
List AOR
Suncoast Tampa
Living Area Meters
155.71
Living Area Source
Estimated
Living Area Units
Square Feet
Lot Features
City Limits, Landscaped, Level, Sidewalk, Paved
Lot Size Acres
0.14
Lot Size Dimensions
50x121
Lot Size Square Feet
6033
Lot Size Square Meters
560
Minimum Lease
1 Month
Modification Timestamp
2026-03-03T19:48:09.981Z
New Construction YN
false
Occupant Type
Owner
Other Equipment
Irrigation Equipment
Ownership
Fee Simple
Parcel Number
14-31-16-46350-016-0040
Patio And Porch Features
Deck
Pool Private YN
false
Postal Code Plus 4
6502
Previous List Price
574999
Price Change Timestamp
2026-03-03T19:48:03.000Z
Public Survey Range
16
Public Survey Section
14
RATIO Current Price By Calculated SqFt
337.05
Realtor Info
As-Is, Docs Available, Floor Plan Available, Sign
Road Surface Type
Paved
Roof
Shingle
Room Count
7
Security Features
Smoke Detector(s)
Senior Community YN
false
Sewer
Public Sewer
Showing Requirements
Supra Lock Box, Appointment Only, Call Listing Agent, Lock Box Electronic-CBS Code Required, ShowingTime
Status Change Timestamp
2025-10-29T16:08:41.000Z
Stories Total
2
Tax Annual Amount
7405.28
Tax Block
16
Tax Book Number
6-92
Tax Legal Description
KENWOOD SUB ADD BLK 16, LOT 4
Tax Lot
4
Tax Year
2024
Total Acreage
0 to less than 1/4
Total Annual Fees
0.00
Total Monthly Fees
0.00
Township
31
Universal Property Id
US-12103-N-143116463500160040-R-N
Unparsed Address
3330 8TH AVE N
Utilities
Cable Connected, Electricity Connected, Sewer Connected, Sprinkler Well, Water Connected
Water Source
Public
Waterfront YN
false
Window Features
Blinds
Zoning
0110
Neighborhood Map
Popup

Property Photos
Listing Photo
Listing Photo
Listing Photo
Listing Photo
Listing Photo
Listing Photo
Listing Photo
Listing Photo
Listing Photo
Listing Photo
Listing Photo
Listing Photo
Listing Photo
Listing Photo
Listing Photo
Listing Photo
Listing Photo
Listing Photo
Listing Photo
Listing Photo
Listing Photo
Listing Photo
Listing Photo
Listing Photo
Listing Photo
Listing Photo
Listing Photo
Listing Photo
Listing Photo
Listing Photo
Listing Photo
Listing Photo
Listing Photo
Listing Photo
Listing Photo
Listing Photo
Listing Photo
Listing Photo
Listing Photo
Listing Photo
Listing Photo
Listing Photo
Listing Photo
Listing Photo
Listing Photo
Listing Photo
Listing Photo
Listing Photo
Listing Photo
Listing Photo
Listing Photo
Listing Photo
Listing Photo
Listing Photo
Listing Photo
Listing Photo
Listing Photo
Listing Photo
Listing Photo
Listing Photo
Listing Photo
Listing Photo
Listing Photo
Listing Photo

MLS #MFRTB8441459 Listing courtesy of Premier Sothebys Intl Realty provided by Stellar MLS.

Similar Listings

$509,900
5630 Denver Ne Street
St Petersburg
4BR/2BA
| Active
$515,000
2541 60th S Avenue
St Petersburg
4BR/2BA
| Pending
$515,000
4015 Overlook Ne Drive
St Petersburg
4BR/2BA
| Pending
$517,000
7395 18th N Street
St Petersburg
4BR/2BA
| Active



All listing information is deemed reliable but not guaranteed and should be independently verified through personal inspection by appropriate professionals. Listings displayed on this website may be subject to prior sale or removal from sale; availability of any listing should always be independent verified. Listing information is provided for consumer personal, non-commercial use, solely to identify potential properties for potential purchase; all other use is strictly prohibited and may violate relevant federal and state law. The source of the listing data is as follows: Stellar MLS (updated 3/4/26 2:00 AM) |

Listing Search



Translate Tool

Featured Listings
Nokomis Real Estate
$949,000
3 BED
2 BATH
Step into elevated coastal living in this impeccably designed 3-bedroom, 2.5-bath plus an outside patio bathroom + den (... Read More
Minneola Real Estate
$824,480
3 BED
2 BATH
Del Webb at Minneola is a luxurious guard-gated 55+ active adult community offering new construction single-family homes... Read More
St Pete Beach Real Estate
$949,000
4 BED
2 BATH
This exceptional building lot places you just three homes from the powder-soft white sands and shimmering Gulf waters — ... Read More
Sarasota Real Estate
$829,000
5 BED
4 BATH
Discover the perfect blend of style and functionality in this exceptional waterfront residence. The ground floor feature... Read More
St Petersburg Real Estate
$959,000
4 BED
2 BATH
This masterful art piece of St Pete history includes deeded water access to the Boca Ciega Bay and is located on a priva... Read More
Clermont Real Estate
$937,540
4 BED
3 BATH
Welcome to Parkside Trails! Explore the charm of this premier Clermont location, offering exclusive amenities and quick ... Read More
North Venice Real Estate
$925,000
3 BED
3 BATH
WHERE SPACE, PRIVACY & ELEVATED LIVING COME TOGETHER. Welcome to the VENETO 2 BY NEAL SIGNATURE HOMES in Aria — a though... Read More
Dunnellon Real Estate
$1,100,000
4 BED
2 BATH
If you’ve been waiting for something SPECIAL, this is it! Welcome to your private hilltop retreat, where luxury meets wi... Read More
Debary Real Estate
$1,400,000
5 BED
4 BATH
An exceptional custom estate set on nearly 2 secluded acres, offering privacy, sophistication, and resort-style living. ... Read More
St Petersburg Real Estate
$1,175,000
3 BED
2 BATH
Waterfront perfection in the undisputed, world’s best neighborhood, Riviera Bay. Take a breath… because this one is spec... Read More
Contact Sandra Pardo

407-990-2746

Wendy Morris LLC

Licensed in the State of Florida
BK 3146762
16797 Broadwater Avenue
Winter Garden, Florida 34787

Your privacy is our utmost concern. We will never sell your personal information. Privacy Policy
©2026 sandrapardohomes.com - all rights reserved. | Site Map