407-990-2746
Menu

330 Archimedes Street, Dunedin, FL

NEXT
PREV
$589,000

($319/sqft)

List Status: Active
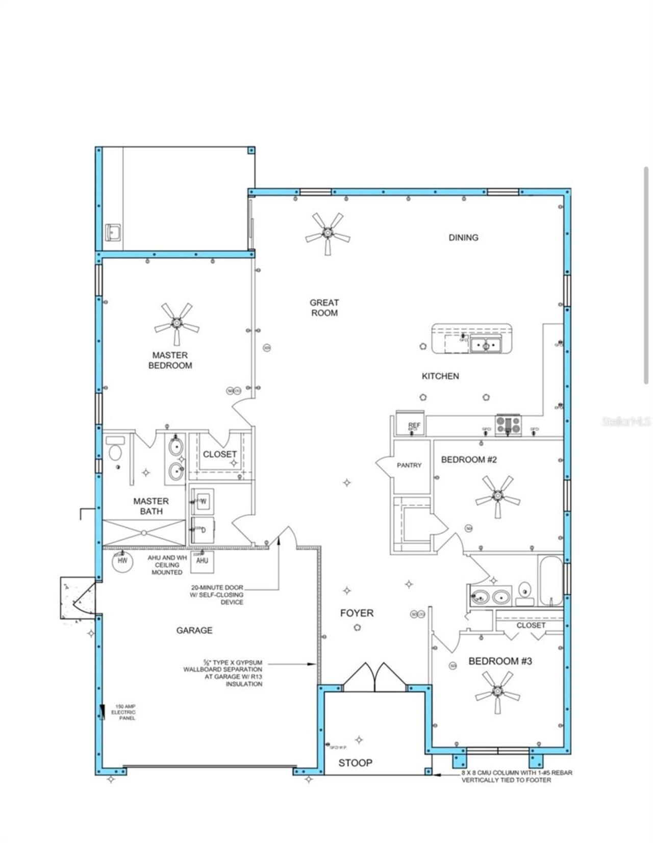
330 Archimedes Street
Dunedin, FL 34698


3 beds
2 baths
1845 living sqft
Top Features
  • Subdivision: New Athens City
  • Built in  2026
  • Single Family Residence
Description
Under Construction. Under Construction in the Heart of Dunedin! This stunning 3-bedroom, 2-bath block construction home offers the perfect blend of coastal style and modern durability, all just a short golf cart ride to vibrant Downtown Dunedin. Enjoy easy access to the Dunedin Causeway and Honeymoon Island, plus shopping and dining at Countryside Mall just five minutes away. Designed with comfort and elegance in mind, the home features soaring 10-foot ceilings, a beautifully appointed kitchen and baths, and hurricane-rated windows and doors for peace of mind. Experience all the advantages of new construction in one of Dunedin’s most sought-after locations. Inquire today for details and availability.
Property Details
Additional Information
Additional Parcels YN
false
Alternate Key Folio Num
28-15-24-59760-002-0150
Appliances
Range, Refrigerator
Association YN
false
Attached Garage YN
true
Available For Lease YN
1
Bathrooms Total Integer
2
Builder License Number
0000000
Builder Model
Archmadies
Builder Name
Happy Homes LLC
Building Area Source
Builder
Building Area Total
2541
Building Area Total Srch SqM
236.07
Building Area Units
Square Feet
Calculated List Price By Calculated SqFt
319.24
Carport YN
false
Construction Materials
Block
Cooling
Central Air
Country
US
Cumulative Days On Market
1
Current Price
589000.00
Direction Faces
West
Exterior Features
Lighting
Fireplace YN
false
Flood Zone Code
X
Flood Zone Date
2003-09-03
Flood Zone Panel
12103C0088G
Flooring
Other
Foundation Details
Slab
Furnished
Unfurnished
Garage Spaces
2
Garage YN
true
Heating
Central
Interior Features
Coffered Ceiling(s), Open Floorplan
Internet Address Display YN
true
Internet Automated Valuation Display YN
true
Internet Consumer Comment YN
true
Internet Entire Listing Display YN
true
Laundry Features
Laundry Room
Levels
One
List AOR
Suncoast Tampa
Living Area Meters
171.41
Living Area Source
Builder
Living Area Units
Square Feet
Lot Size Acres
0.14
Lot Size Dimensions
60x100
Lot Size Square Feet
6000
Lot Size Square Meters
557
Minimum Lease
No Minimum
Modification Timestamp
2026-02-21T01:32:13.889Z
New Construction YN
true
Occupant Type
Vacant
Ownership
Fee Simple
Parcel Number
24-28-15-59760-002-0150
Permit Number
0000000
Pool Private YN
false
Postal Code Plus 4
9502
Projected Completion Date
2026-06-01T00:00:00.000
Property Condition
Under Construction
Public Survey Range
15
Public Survey Section
24
RATIO Current Price By Calculated SqFt
319.24
Road Surface Type
Paved
Roof
Shingle
Room Count
3
Senior Community YN
false
Sewer
Public Sewer
Showing Requirements
Call Listing Agent
Status Change Timestamp
2026-02-19T12:07:29.000Z
Tax Annual Amount
4307
Tax Block
B
Tax Book Number
55-57
Tax Legal Description
NEW ATHENS CITY BLK B, LOT 15
Tax Lot
15
Tax Year
2025
Total Acreage
0 to less than 1/4
Total Annual Fees
0.00
Total Monthly Fees
0.00
Township
28
Universal Property Id
US-12103-N-242815597600020150-R-N
Unparsed Address
330 ARCHIMEDES ST
Utilities
Public
Water Source
Public
Waterfront YN
false
Zoning
R-6
Neighborhood Map
Popup

Property Photos
Listing Photo
Listing Photo
Listing Photo
Listing Photo

MLS #MFRTB8478044 Listing courtesy of Katie Ducharme Realty, Llc provided by Stellar MLS.

Similar Listings

$534,000
1620 San Mateo Drive
Dunedin
3BR/2BA
| Active
$535,000
665 Marjon Avenue
Dunedin
3BR/2BA
| Pending
$537,000
1042 Idlewild N Drive
Dunedin
3BR/2BA
| Active
$539,000
270 Diogenes Street
Dunedin
3BR/2BA
| Active



All listing information is deemed reliable but not guaranteed and should be independently verified through personal inspection by appropriate professionals. Listings displayed on this website may be subject to prior sale or removal from sale; availability of any listing should always be independent verified. Listing information is provided for consumer personal, non-commercial use, solely to identify potential properties for potential purchase; all other use is strictly prohibited and may violate relevant federal and state law. The source of the listing data is as follows: Stellar MLS (updated 3/19/26 1:28 AM) |

Listing Search



Translate Tool

Featured Listings
Land O Lakes Real Estate
$815,000
4 BED
5 BATH
Located in the gated community of Pristine Lake Preserve, this beautifully maintained Biscayne II model from Homes by We... Read More
Orlando Real Estate
$1,099,000
5 BED
5 BATH
LIKE NEW WITH LUXURY UPGRADES IN EAGLE CREEK! Welcome to 10151 Henbury Street, ideally positioned within Lake Nona’s pre... Read More
Sarasota Real Estate
$849,654
5 BED
3 BATH
Under Construction. What's Special: Corner Lot | Cul-de-Sac Lot | Game Room | New Floor Plan. New Construction - July Co... Read More
Palm Harbor Real Estate
$939,900
5 BED
4 BATH
Spring into a new home! Stunning 5-Bedroom, 4-Bath Pool Home – Perfect for Entertaining and Family Living! Welcome to yo... Read More
Seminole Real Estate
$970,000
3 BED
2 BATH
Welcome to this fully renovated, move-in ready 3-bedroom, 2.5-bath, and BONUS ROOM** pool home perfectly situated on a q... Read More
Longwood Real Estate
$850,000
4 BED
3 BATH
One or more photo(s) has been virtually staged. Welcome to a truly rare opportunity in The Springs, one of Central Flori... Read More
Orlando Real Estate
$889,000
4 BED
3 BATH
REMODELED, LOWEST PRICED HOME IN 24 HOUR GATED & GUARDED PHILLIPS LANDING COMMUNITY. SOLAR HEATED SCREENED IN POOL. UPGR... Read More
Clearwater Beach Real Estate
$1,199,999
2 BED
2 BATH
STUNNING DIRECT GULF-FRONT CORNER UNIT – FULLY FURNISHED ON SAND KEY CLEARWATER. Lighthouse Towers recently completed a ... Read More
Gainesville Real Estate
$1,100,000
5 BED
4 BATH
Under contract-accepting backup offers. Where privacy, luxury, and resort-style living meet, this extraordinary 5-acre e... Read More
Lakewood Ranch Real Estate
$880,000
4 BED
4 BATH
Welcome home to Medley Terrace! This exceptional residence is located at the end of a quiet cul-de-sac within the exclus... Read More
Contact Sandra Pardo

407-990-2746

Wendy Morris LLC

Licensed in the State of Florida
BK 3146762
16797 Broadwater Avenue
Winter Garden, Florida 34787

Your privacy is our utmost concern. We will never sell your personal information. Privacy Policy
©2026 sandrapardohomes.com - all rights reserved. | Site Map