407-990-2746
Menu

31280 Paper Birch Street, Wesley Chapel, FL

NEXT
PREV
$267,990

($183/sqft)

List Status: Pending
31280 Paper Birch Street
Wesley Chapel, FL 33545


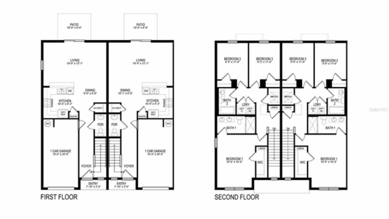
3 beds
2 baths
1463 living sqft
Top Features
  • Subdivision: Towns At Woodsdale
  • Built in  2025
  • Townhouse
Description
Woodsdale is situated with quick access to I-75 and in a prime location of the booming city, which was recently named by the North Tampa Bay Chambers of Commerce as the region’s most desirable location in the Tampa suburbs. Close to all things shopping, dining, entertainment, and not to mention the area’s top-rated local and charter schools, this community offers you endless opportunities. Each home is constructed with concrete block on 1st and 2nd stories, comes equipped with D.R. Horton’s Smart Home System, and is backed by America’s #1 Builder since 2002. Pictures, photographs, colors, features, and sizes are for illustration purposes only and will vary from the homes as built. Home and community information, including pricing, included features, terms, availability, and amenities, are subject to change and prior sale at any time without notice or obligation. Materials may vary based on availability. D.R. Horton Reserves all Rights.
Property Details
Additional Information
Additional Lease Restrictions
Per HOA Guidelines
Additional Parcels YN
false
Appliances
Dishwasher, Electric Water Heater, Microwave, Refrigerator, Washer
Approval Process
Per HOA Guidelines
Association Amenities
Clubhouse, Playground, Pool
Association Approval Required YN
1
Association Fee
61
Association Fee Frequency
Monthly
Association Fee Includes
Maintenance Grounds
Association Fee Requirement
Required
Association YN
true
Attached Garage YN
true
Available For Lease YN
1
Bathrooms Total Integer
3
Builder License Number
CBC039052
Builder Model
Pearson B
Builder Name
D.R. Horton
Building Area Source
Builder
Building Area Total
1725
Building Area Total Srch SqM
160.26
Building Area Units
Square Feet
CDDYN
1
Calculated List Price By Calculated SqFt
183.18
Carport YN
false
Community Features
Park, Playground, Pool
Complex Community Name NCCB
TOWNS AT WOODSDALE
Construction Materials
Block, Stucco
Cooling
Central Air
Country
US
Cumulative Days On Market
262
Current Price
267990.00
Direction Faces
North
Elementary School
Wesley Chapel Elementary-PO
Expected Closing Date
2026-09-28T00:00:00.000
Fireplace YN
false
Flood Zone Code
X
Flooring
Carpet, Ceramic Tile
Foundation Details
Slab
Garage Dimensions
11x20
Garage Spaces
1
Garage YN
true
Heating
Central, Heat Pump
High School
Wesley Chapel High-PO
Home Warranty YN
true
Interior Features
Open Floorplan
Internet Address Display YN
true
Internet Automated Valuation Display YN
true
Internet Consumer Comment YN
false
Internet Entire Listing Display YN
true
Laundry Features
Laundry Room
Lease Restrictions YN
1
Levels
Two
List AOR
Suncoast Tampa
Living Area Meters
135.92
Living Area Source
Builder
Living Area Units
Square Feet
Middle Or Junior School
Thomas E Weightman Middle-PO
Minimum Lease
7 Months
Modification Timestamp
2026-02-18T13:24:08.863Z
Monthly HOA Amount
61.00
New Construction YN
true
Occupant Type
Vacant
Other Equipment
Irrigation Equipment
Ownership
Fee Simple
Parcel Number
27-25-20-0230-01500-1450
Permit Number
2025-000283
Pet Restrictions
Per HOA Guidelines
Pets Allowed
Yes
Pool Private YN
false
Previous List Price
269990
Price Change Timestamp
2026-02-12T15:57:14.000Z
Property Condition
Completed
Public Survey Range
20
Public Survey Section
27
Purchase Contract Date
2026-02-17
RATIO Current Price By Calculated SqFt
183.18
Road Surface Type
Paved
Roof
Shingle
Room Count
3
Senior Community YN
false
Sewer
Public Sewer
Showing Requirements
Contact Call Center
Status Change Timestamp
2026-02-18T13:23:43.000Z
Tax Block
15
Tax Book Number
92/128
Tax Legal Description
TOWNS AT WOODSDALE PHASE 1 PB 92 PG 128 BLOCK 15 LOT 145
Tax Lot
145
Tax Other Annual Assessment Amount
2371
Tax Year
2025
Total Acreage
Non-Applicable
Total Annual Fees
732.00
Total Monthly Fees
61.00
Township
25
Universal Property Id
US-12101-N-2725200230015001450-R-N
Unparsed Address
31280 PAPER BIRCH ST
Utilities
Public
Water Source
Public
Waterfront YN
false
Window Features
Blinds, Double Pane Windows, Low-Emissivity Windows
Zoning
MPUD
Neighborhood Map
Popup

Property Photos
Listing Photo
Listing Photo
Listing Photo
Listing Photo
Listing Photo
Listing Photo
Listing Photo
Listing Photo
Listing Photo
Listing Photo
Listing Photo
Listing Photo
Listing Photo
Listing Photo
Listing Photo
Listing Photo
Listing Photo
Listing Photo
Listing Photo
Listing Photo
Listing Photo
Listing Photo
Listing Photo
Listing Photo
Listing Photo
Listing Photo
Listing Photo
Listing Photo
Listing Photo
Listing Photo
Listing Photo
Listing Photo
Listing Photo
Listing Photo
Listing Photo
Listing Photo
Listing Photo
Listing Photo
Listing Photo
Listing Photo
Listing Photo
Listing Photo
Listing Photo
Listing Photo

MLS #MFRTB8374777 Listing courtesy of D R Horton Realty Of Tampa Llc provided by Stellar MLS.

Similar Listings

$241,999
30205 Swinford Lane
Wesley Chapel
3BR/2BA
| Active
$243,000
1415 Sedgwick Drive
Wesley Chapel
3BR/2BA
| Active
$244,900
30153 Wellesley Way
Wesley Chapel
3BR/2BA
| Active
$245,000
26541 Chimney Spire Lane
Wesley Chapel
3BR/2BA
| Active



All listing information is deemed reliable but not guaranteed and should be independently verified through personal inspection by appropriate professionals. Listings displayed on this website may be subject to prior sale or removal from sale; availability of any listing should always be independent verified. Listing information is provided for consumer personal, non-commercial use, solely to identify potential properties for potential purchase; all other use is strictly prohibited and may violate relevant federal and state law. The source of the listing data is as follows: Stellar MLS (updated 3/14/26 3:37 AM) |

Listing Search



Translate Tool

Featured Listings
South Daytona Real Estate
$1,400,000
3 BED
3 BATH
Auction Property. Luxury waterfront living on the Halifax River with stunning water views and private boating access. El... Read More
Hawthorne Real Estate
$1,150,000
5 BED
3 BATH
One or more photo(s) has been virtually staged. This exceptional 43+ acre lakefront estate on Lake Mason offers a rare o... Read More
Ormond Beach Real Estate
$850,000
3 BED
2 BATH
One or more photo(s) has been virtually staged. Unique 3-story Spanish Mediterranean townhome offering expansive panoram... Read More
Ormond Beach Real Estate
$830,000
3 BED
2 BATH
One or more photo(s) has been virtually staged. Experience coastal luxury in this stunning three-story Spanish Mediterra... Read More
Orlando Real Estate
$1,500,000
4 BED
4 BATH
Welcome to a one-of-a-kind masterpiece in the coveted gated community of Phillips Grove—a fully customized, renovated re... Read More
Longwood Real Estate
$1,095,000
4 BED
3 BATH
Located in the highly sought-after community of The Springs, this stunning estate offers an exceptional opportunity to e... Read More
Bradenton Real Estate
$815,000
3 BED
2 BATH
Discover the perfect blend of convenience and tranquility at our 3BR/2BA retreat. Nestled just a 6-minute drive from vib... Read More
Indian Shores Real Estate
$1,325,000
3 BED
3 BATH
Rare Gulf Front & Intracoastal Retreat – Perfect for Beach Lovers and Boaters Alike! Take in breathtaking Gulf and Intra... Read More
Winter Park Real Estate
$929,900
3 BED
2 BATH
Rare opportunity to own a beautifully upgraded lakefront property on half acre in one of Winter Park's most desirable lo... Read More
Sarasota Real Estate
$1,200,000
2 BED
2 BATH
Gulf-Front Views at the Gulf & Bay Club — Resort living on Siesta Key! Ideally located on the 5th floor of the A Buildin... Read More
Contact Sandra Pardo

407-990-2746

Wendy Morris LLC

Licensed in the State of Florida
BK 3146762
16797 Broadwater Avenue
Winter Garden, Florida 34787

Your privacy is our utmost concern. We will never sell your personal information. Privacy Policy
©2026 sandrapardohomes.com - all rights reserved. | Site Map