407-990-2746
Menu

3104 W Fielder Street, Tampa, FL

NEXT
PREV
$1,000,000

($392/sqft)

List Status: Active
3104 W Fielder Street
Tampa, FL 33611


4 beds
4 baths
2554 living sqft
Top Features
  • Subdivision: Oakellars
  • Built in  2004
  • Single Family Residence
Description
Experience elevated living in the heart of Bayshore Beautiful—one of South Tampa’s most prestigious and enduring addresses. Just steps from iconic Bayshore Boulevard, this exceptional residence blends coastal ease with refined sophistication, offering a lifestyle that few neighborhoods can match. With 3,178 total square feet (2,554 heated), this four-bedroom, four-bath home delivers spacious design and thoughtful updates throughout. Major improvements include newer A/C systems (3 years), a brand-new roof (March 2025), freshly painted exterior with new window siding (March 2025), and a new hot water heater—providing true turnkey confidence. Why Bayshore Beautiful? Living here means: • Morning walks and sunset runs along the nation’s longest continuous sidewalk • Front-row access to Gasparilla parades and Tampa’s most iconic waterfront events • Minutes to Ballast Point, Hyde Park, Downtown Tampa, and Water Street • Zoned for highly sought-after South Tampa schools • Surrounded by established estates and proven long-term value This is not simply a location—it’s a legacy address. Interior Appeal Vaulted ceilings, architectural columns, and graceful arches create an immediate sense of presence. Rich wood flooring and a freshly painted interior enhance the light-filled flow, offering warmth and timeless character. Chef’s Kitchen Designed for gathering, the spacious kitchen features abundant cabinetry and prep space—perfect for everything from intimate evenings to larger celebrations. Private Retreats Four generously sized bedrooms provide flexibility for family, guests, or a dedicated office. The primary suite serves as a true sanctuary, complete with a spa-inspired bath featuring a jacuzzi tub, walk-in shower, and expansive closet space. Added Value & ADU Potential The detached garage includes a full bath, presenting a rare opportunity to create a private guest suite, executive office, studio, or income-producing ADU (subject to city approval). In a neighborhood where de
Property Details
Additional Information
Additional Parcels YN
false
Alternate Key Folio Num
1279550300
Appliances
Convection Oven, Cooktop, Dishwasher, Disposal, Dryer, Electric Water Heater, Exhaust Fan, Microwave, Range, Range Hood, Refrigerator, Washer
Association YN
false
Attached Garage YN
false
Bathrooms Total Integer
4
Building Area Source
Public Records
Building Area Total
3178
Building Area Total Srch SqM
295.25
Building Area Units
Square Feet
Calculated List Price By Calculated SqFt
391.54
Carport YN
false
Community Features
Street Lights
Construction Materials
Concrete, Metal Siding, Wood Siding
Cooling
Central Air
Country
US
Cumulative Days On Market
7
Current Price
1000000.00
Direction Faces
North
Elementary School
Ballast Point-HB
Exterior Features
Lighting, Sidewalk
Fireplace YN
false
Flood Zone Code
X500*
Flood Zone Date
2021-10-07
Flood Zone Panel
12057C0363J
Flooring
Tile, Wood
Foundation Details
Slab
Furnished
Unfurnished
Garage Spaces
1
Garage YN
true
Heating
Central
High School
Robinson-HB
Homestead YN
1
Interior Features
Ceiling Fans(s), Crown Molding, High Ceilings, Open Floorplan, PrimaryBedroom Upstairs, Solid Wood Cabinets, Thermostat, Vaulted Ceiling(s), Walk-In Closet(s)
Internet Address Display YN
true
Internet Automated Valuation Display YN
true
Internet Consumer Comment YN
true
Internet Entire Listing Display YN
true
Laundry Features
Laundry Room
Levels
Two
List AOR
Suncoast Tampa
Living Area Meters
237.27
Living Area Source
Public Records
Living Area Units
Square Feet
Lot Features
City Limits, Near Public Transit, Sidewalk
Lot Size Acres
0.11
Lot Size Dimensions
50x100
Lot Size Square Feet
5000
Lot Size Square Meters
465
Middle Or Junior School
Madison-HB
Modification Timestamp
2026-03-13T02:41:12.533Z
New Construction YN
false
Occupant Type
Owner
Ownership
Fee Simple
Parcel Number
A-03-30-18-3VS-000006-00001.2
Patio And Porch Features
Front Porch, Porch
Pool Private YN
false
Postal Code Plus 4
2910
Public Survey Range
18
Public Survey Section
03
RATIO Current Price By Calculated SqFt
391.54
Realtor Info
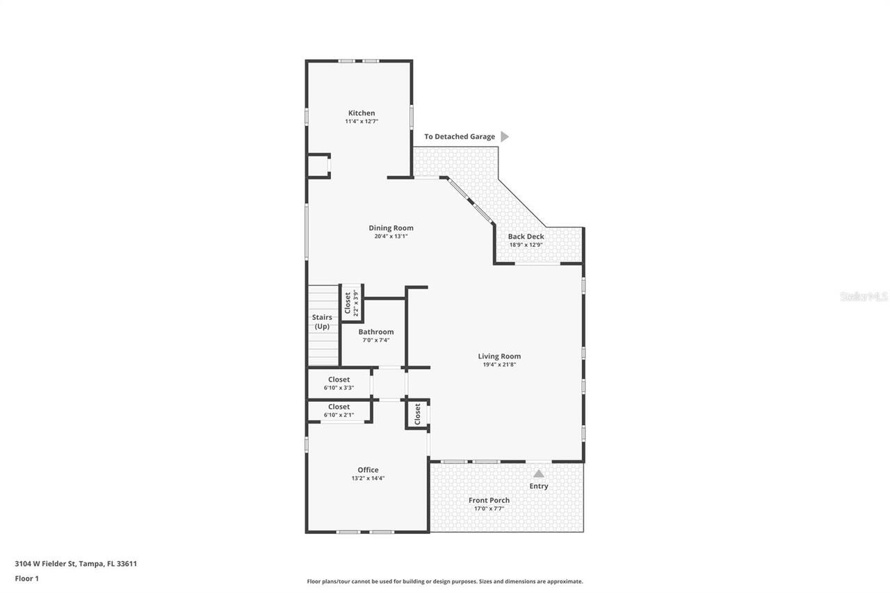
As-Is, Docs Available, Floor Plan Available
Road Surface Type
Asphalt
Roof
Shingle
Room Count
11
Senior Community YN
false
Sewer
Public Sewer
Showing Requirements
Supra Lock Box, 24 Hour Notice, Appointment Only, ShowingTime
Status Change Timestamp
2026-03-05T17:30:32.000Z
Stories Total
2
Tax Annual Amount
3507.28
Tax Block
6
Tax Book Number
5-40
Tax Legal Description
OAKELLAR E 110 FT OF LOTS 1 AND 2 LESS E 60 FT THEREOF AND N 9.26 FT OF E 110 FT OF LOT 33 LESS E 60 FT THEREOF BLOCK 6
Tax Lot
33
Tax Year
2024
Total Acreage
0 to less than 1/4
Total Annual Fees
0.00
Total Monthly Fees
0.00
Township
30
Universal Property Id
US-12057-N-0330183000006000012-R-N
Unparsed Address
3104 W FIELDER ST
Utilities
Cable Available, Electricity Connected, Fiber Optics, Public, Water Connected
Water Source
Public
Waterfront YN
false
Window Features
Blinds
Zoning
RS-50
Neighborhood Map
Popup

Property Photos
Listing Photo
Listing Photo
Listing Photo
Listing Photo
Listing Photo
Listing Photo
Listing Photo
Listing Photo
Listing Photo
Listing Photo
Listing Photo
Listing Photo
Listing Photo
Listing Photo
Listing Photo
Listing Photo
Listing Photo
Listing Photo
Listing Photo
Listing Photo
Listing Photo
Listing Photo
Listing Photo
Listing Photo
Listing Photo
Listing Photo
Listing Photo
Listing Photo
Listing Photo
Listing Photo
Listing Photo
Listing Photo
Listing Photo
Listing Photo
Listing Photo
Listing Photo
Listing Photo
Listing Photo
Listing Photo
Listing Photo
Listing Photo
Listing Photo
Listing Photo
Listing Photo
Listing Photo
Listing Photo
Listing Photo
Listing Photo
Listing Photo
Listing Photo
Listing Photo
Listing Photo
Listing Photo
Listing Photo
Listing Photo
Listing Photo
Listing Photo
Listing Photo
Listing Photo
Listing Photo
Listing Photo
Listing Photo
Listing Photo
Listing Photo
Listing Photo
Listing Photo
Listing Photo
Listing Photo
Listing Photo
Listing Photo
Listing Photo
Listing Photo
Listing Photo
Listing Photo
Listing Photo
Listing Photo
Listing Photo
Listing Photo
Listing Photo
Listing Photo
Listing Photo
Listing Photo
Listing Photo
Listing Photo
Listing Photo
Listing Photo
Listing Photo
Listing Photo
Listing Photo
Listing Photo
Listing Photo
Listing Photo
Listing Photo
Listing Photo
Listing Photo
Listing Photo
Listing Photo
Listing Photo
Listing Photo
Listing Photo
Listing Photo
Listing Photo
Listing Photo
Listing Photo
Listing Photo
Listing Photo
Listing Photo
Listing Photo

MLS #MFRTB8480089 Listing courtesy of Keller Williams St Pete Realty provided by Stellar MLS.

Similar Listings

$925,000
1021 E Hamilton Avenue
Tampa
4BR/4BA
| Active
$950,000
12628 Stanwyck Circle
Tampa
4BR/4BA
| Pending
$970,000
211 S Obrien Street
Tampa
4BR/4BA
| Active
$975,000
4808 W Juno Street
Tampa
4BR/4BA
| Pending



All listing information is deemed reliable but not guaranteed and should be independently verified through personal inspection by appropriate professionals. Listings displayed on this website may be subject to prior sale or removal from sale; availability of any listing should always be independent verified. Listing information is provided for consumer personal, non-commercial use, solely to identify potential properties for potential purchase; all other use is strictly prohibited and may violate relevant federal and state law. The source of the listing data is as follows: Stellar MLS (updated 3/12/26 11:49 PM) |

Listing Search



Translate Tool

Featured Listings
St Petersburg Real Estate
$1,399,500
3 BED
3 BATH
WELCOME TO 8101 38TH AVE N, ST PETERSBURG —This is the modern ranch layout you have been looking for. The primary bedroo... Read More
Orlando Real Estate
$839,990
5 BED
4 BATH
Under Construction. EverBe is a new master planned community where convenience and connections combine to create a new s... Read More
The Villages Real Estate
$1,300,000
4 BED
2 BATH
Experience the Essence of Living the Dream in this Beautiful Designer 4 Bedroom 2 Bath “Ivy” in the Village of Newell. T... Read More
Orlando Real Estate
$1,000,000
5 BED
5 BATH
Experience luxury living in Eagle Creek, one of Lake Nona’s premier gated golf course communities. Built in 2022, this s... Read More
Howey In The Hills Real Estate
$995,000
3 BED
2 BATH
Welcome to a place where your family can truly spread out, grow, and make lifelong memories. Nestled on 9.875 beautiful ... Read More
Tampa Real Estate
$1,050,000
4 BED
3 BATH
Welcome to 5003 W Neptune Way, a beautifully reimagined coastal-inspired residence tucked within South Tampa's highly de... Read More
Redington Beach Real Estate
$1,350,000
3 BED
2 BATH
Welcome to a rare waterfront opportunity in the charming coastal community of Redington Beach. Situated directly on the ... Read More
Kissimmee Real Estate
$830,000
5 BED
4 BATH
Welcome to a rare opportunity in Kissimmee where space, privacy, and versatility come together on an extraordinary 3-acr... Read More
Flagler Beach Real Estate
$819,900
3 BED
2 BATH
Experience the ultimate Florida waterfront lifestyle in this beautifully maintained saltwater canal POOL home that has N... Read More
Land O Lakes Real Estate
$825,000
5 BED
5 BATH
Nearly 4,900 Sq Ft | Dual Primary Suites | Office + Huge Loft | Quiet Cul-de-Sac in Gate-Guarded Lakeshore Ranch Welcome... Read More
Contact Sandra Pardo

407-990-2746

Wendy Morris LLC

Licensed in the State of Florida
BK 3146762
16797 Broadwater Avenue
Winter Garden, Florida 34787

Your privacy is our utmost concern. We will never sell your personal information. Privacy Policy
©2026 sandrapardohomes.com - all rights reserved. | Site Map