407-990-2746
Menu

307 62nd Street, Holmes Beach, FL

NEXT
PREV
$4,200,000

($1,424/sqft)

List Status: Active
307 62nd Street
Holmes Beach, FL 34217


4 beds
4 baths
2950 living sqft
Top Features
  • Subdivision: Holmes Beach 17th Unit
  • Built in  1962
  • Single Family Residence
Description
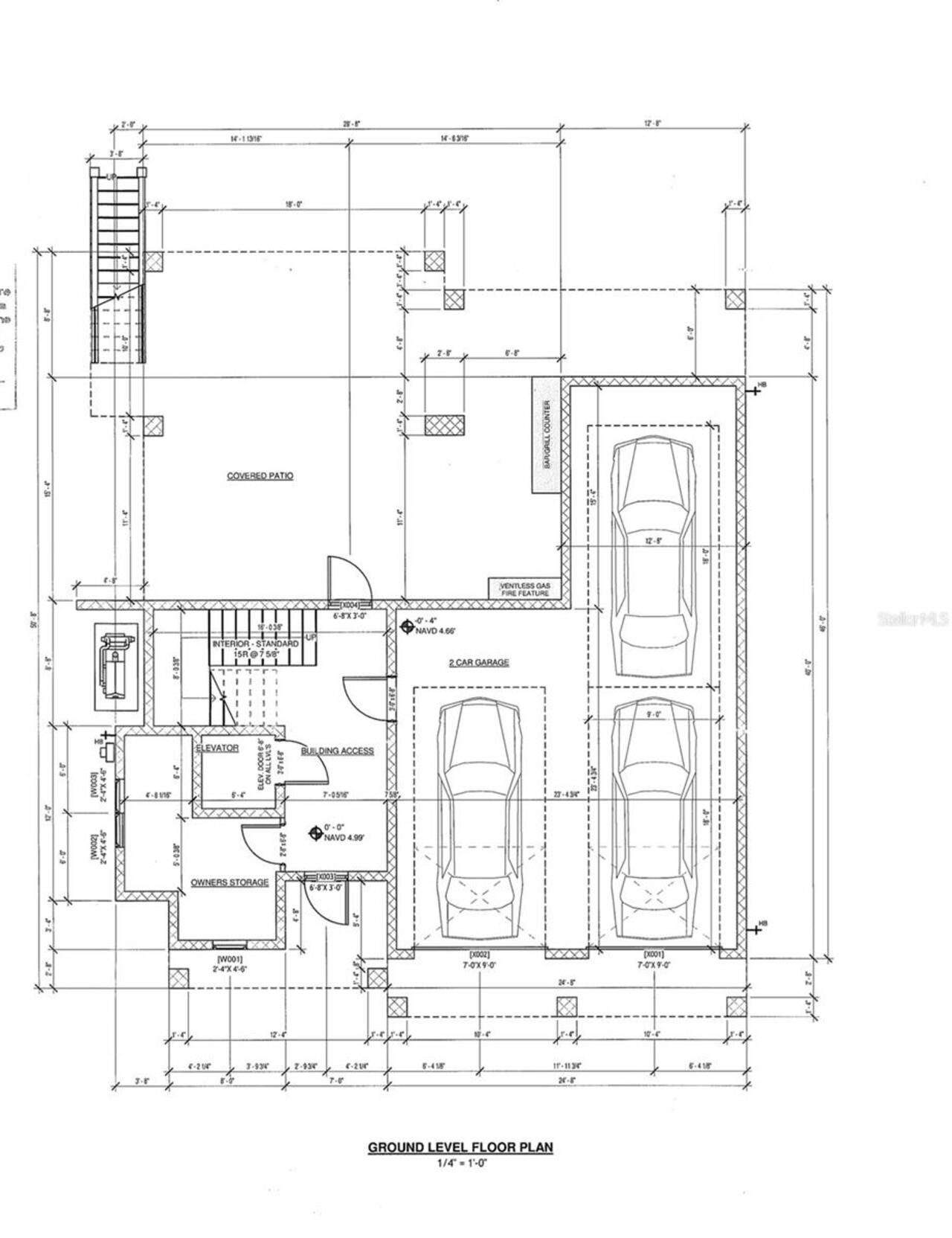
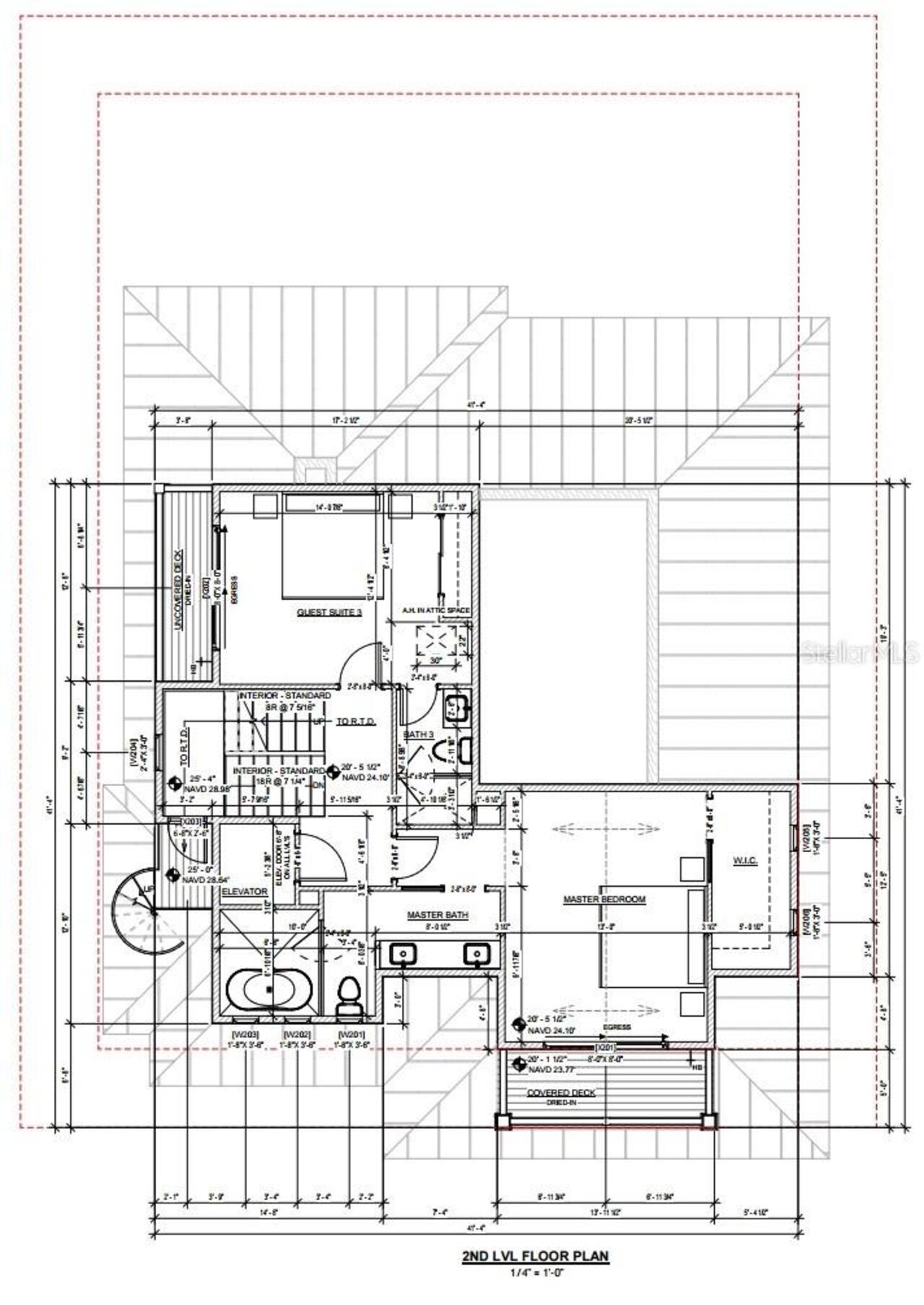
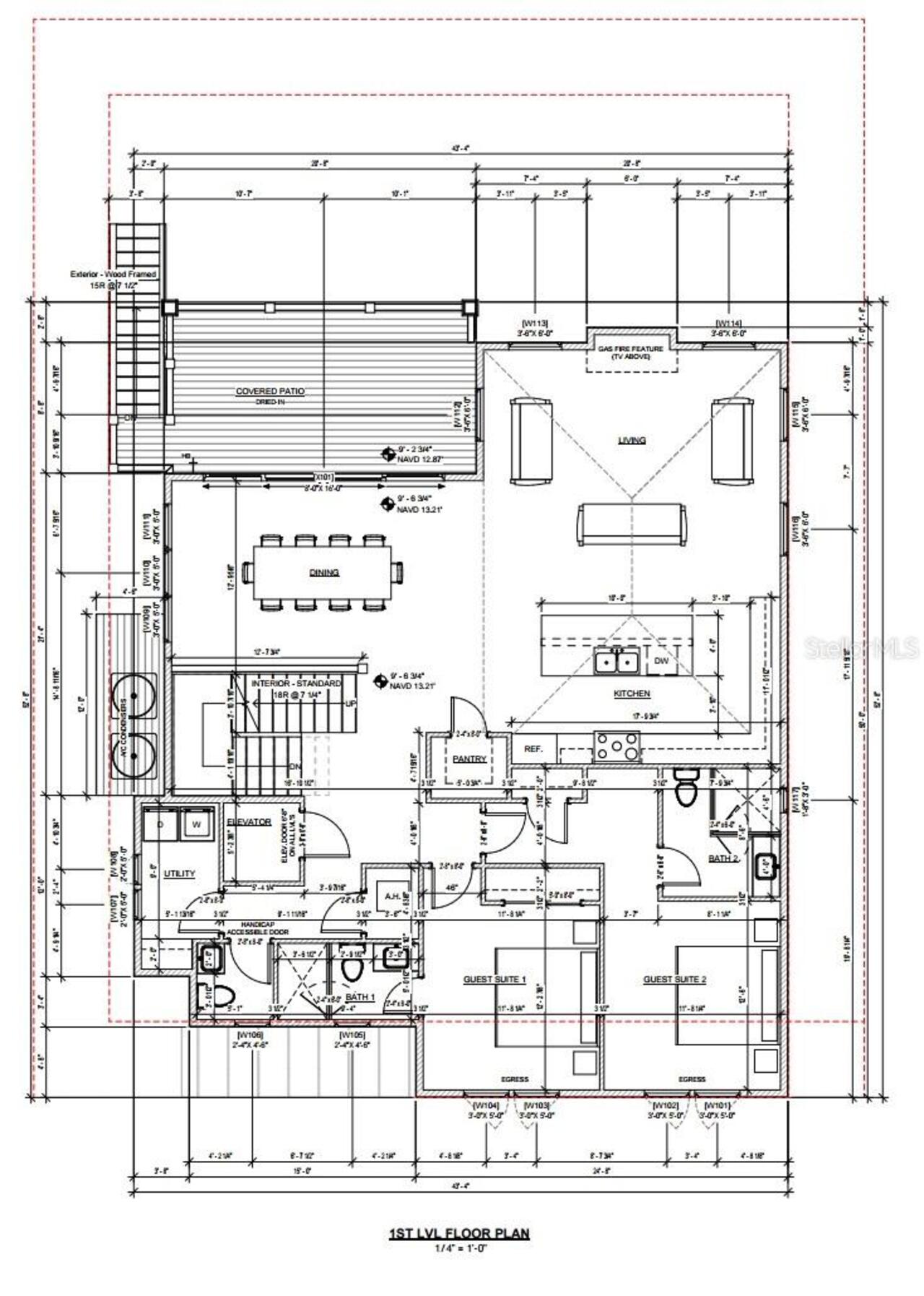
Pre-Construction. To be built. Welcome to coastal luxury living in the heart of Holmes Beach. This newly constructed elevated residence offers the perfect blend of modern design, refined finishes, and the relaxed elegance of island life. Thoughtfully designed across three levels, this stunning home features four spacious bedrooms, four full bathrooms, and nearly 3,000 square feet of beautifully designed living space. The main living level showcases an open-concept layout ideal for entertaining, where the kitchen, dining, and living areas flow seamlessly together beneath soaring ceilings. Large windows invite abundant natural light while framing the lush tropical surroundings. The gourmet kitchen is designed for both everyday living and hosting, complete with a large island, generous storage, and easy access to the outdoor living spaces. Upstairs, the private primary suite provides a tranquil retreat featuring a walk-in closet and a luxurious en-suite bathroom. Additional guest bedrooms offer comfortable accommodations for family and visitors while maintaining privacy throughout the home. Outdoor living is at the heart of this island residence. Multiple covered decks provide inviting spaces to relax and enjoy coastal breezes, while the rooftop deck offers an elevated setting for sunset views and entertaining under the Florida sky. Built to modern coastal standards, the home features elevated construction, a durable standing seam metal roof, and hurricane-rated design elements suited for life near the water. The ground level includes a spacious two-car garage, storage, and convenient access to the home's elevator for seamless movement between floors. Located just moments from the pristine beaches of Anna Maria Island, as well as local dining, boutique shopping, and marina access, this property offers the perfect balance of privacy and proximity to everything the island lifestyle has to offer. Whether as a primary residence, vacation home, or investment opportunity, th
Property Details
Additional Information
Additional Parcels YN
false
Alternate Key Folio Num
7233100002
Appliances
Dishwasher, Exhaust Fan, Microwave, Range, Refrigerator
Association YN
false
Attached Garage YN
true
Available For Lease YN
1
Bathrooms Total Integer
4
Builder License Number
CGC1519169
Builder Name
Eason Builders Group Inc.
Building Area Source
Owner
Building Area Total
4200
Building Area Total Srch SqM
390.19
Building Area Units
Square Feet
Calculated List Price By Calculated SqFt
1423.73
Carport YN
false
Construction Materials
Block, Frame
Cooling
Central Air
Country
US
Cumulative Days On Market
2
Current Price
4200000.00
Direction Faces
Northeast
Exterior Features
Balcony, Lighting, Private Yard, Rain Gutters, Sidewalk
Fireplace YN
false
Flood Zone Code
AE
Flood Zone Date
2021-08-10
Flood Zone Panel
12081C0139F
Flooring
Hardwood, Luxury Vinyl
Foundation Details
Pillar/Post/Pier, Slab
Furnished
Unfurnished
Garage Spaces
2
Garage YN
true
Green Energy Efficient
HVAC, Insulation
Heating
Central
Interior Features
Ceiling Fans(s), Elevator, High Ceilings, PrimaryBedroom Upstairs, Vaulted Ceiling(s)
Internet Address Display YN
true
Internet Automated Valuation Display YN
true
Internet Consumer Comment YN
true
Internet Entire Listing Display YN
true
Laundry Features
Inside, Laundry Room
Levels
Two
List AOR
Suncoast Tampa
Living Area Meters
274.06
Living Area Source
Owner
Living Area Units
Square Feet
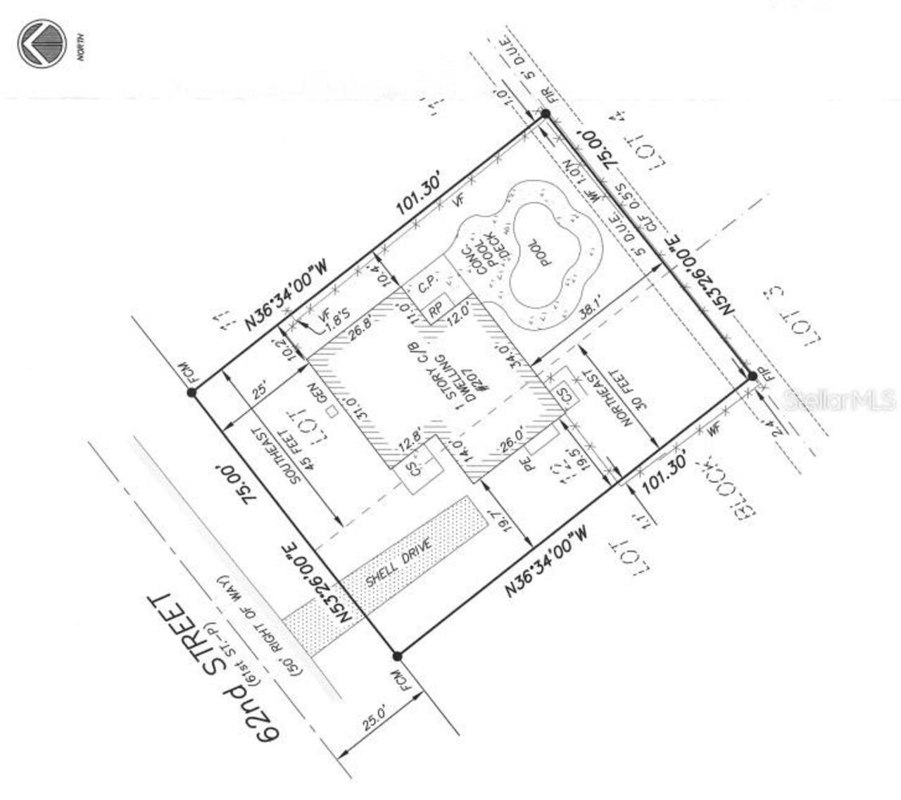
Lot Size Acres
0.17
Lot Size Square Feet
7501
Lot Size Square Meters
697
Minimum Lease
No Minimum
Modification Timestamp
2026-03-06T19:04:13.343Z
New Construction YN
true
Occupant Type
Vacant
Other Equipment
Private Yard
Ownership
Fee Simple
Parcel Number
7233100002
Patio And Porch Features
Deck
Permit Number
MAJ23-000054
Pool Private YN
true
Postal Code Plus 4
1511
Projected Completion Date
2026-09-30T00:00:00.000
Property Condition
Pre-Construction
Public Survey Range
16
Public Survey Section
20
RATIO Current Price By Calculated SqFt
1423.73
Road Surface Type
Asphalt
Roof
Metal
Room Count
11
SW Subdiv Community Name
Seaside Gardens
Senior Community YN
false
Sewer
Public Sewer
Showing Requirements
Call Listing Agent
Status Change Timestamp
2026-03-05T00:44:02.000Z
Tax Annual Amount
7618
Tax Block
1
Tax Book Number
10-4
Tax Legal Description
SWLY 45 FT OF LOT 11 & NELY 30 FT OF LOT 12 BLK 1 HOLMES BEACH 17TH UNIT PI#72331.0000/2
Tax Lot
11
Tax Year
2024
Total Acreage
0 to less than 1/4
Total Annual Fees
0.00
Total Monthly Fees
0.00
Township
34
Universal Property Id
US-12081-N-7233100002-R-N
Unparsed Address
307 62ND ST
Utilities
BB/HS Internet Available, Cable Available, Electricity Available, Water Available
Water Source
Public
Waterfront YN
false
Zoning
R2
Neighborhood Map
Popup

Property Photos
Listing Photo
Listing Photo
Listing Photo
Listing Photo
Listing Photo
Listing Photo
Listing Photo
Listing Photo
Listing Photo
Listing Photo
Listing Photo
Listing Photo
Listing Photo
Listing Photo
Listing Photo
Listing Photo
Listing Photo
Listing Photo
Listing Photo
Listing Photo
Listing Photo
Listing Photo
Listing Photo
Listing Photo
Listing Photo
Listing Photo
Listing Photo
Listing Photo
Listing Photo
Listing Photo
Listing Photo
Listing Photo
Listing Photo
Listing Photo

MLS #MFRTB8482085 Listing courtesy of Fidicity Realty Inc provided by Stellar MLS.

Similar Listings

$3,995,000
401 77th Street
Holmes Beach
4BR/4BA
| Active
$3,995,000
7003 Holmes Boulevard
Holmes Beach
4BR/4BA
| Active
$4,295,000
305 55th Street
Holmes Beach
4BR/4BA
| Active
$4,440,000
215 83rd Street
Holmes Beach
4BR/4BA
| Active



All listing information is deemed reliable but not guaranteed and should be independently verified through personal inspection by appropriate professionals. Listings displayed on this website may be subject to prior sale or removal from sale; availability of any listing should always be independent verified. Listing information is provided for consumer personal, non-commercial use, solely to identify potential properties for potential purchase; all other use is strictly prohibited and may violate relevant federal and state law. The source of the listing data is as follows: Stellar MLS (updated 3/12/26 4:34 PM) |

Listing Search



Translate Tool

Featured Listings
Clermont Real Estate
$1,130,000
5 BED
4 BATH
Under contract-accepting backup offers. LOCATION, LOCATION -Country living close to town! NO HOA! Original owners!! Don’... Read More
Bradenton Real Estate
$1,150,000
3 BED
3 BATH
FINAL OPPORTUNITY! This nearly new 2025 Pallazio with over $200,000 in upgrades shows like a model and is currently the ... Read More
Holiday Real Estate
$1,195,000
6 BED
6 BATH
Welcome to this one-of-a-kind exclusive waterfront home in Holiday, set on 1.18 acres at the end of a quiet cul-de-sac o... Read More
Tampa Real Estate
$1,499,000
3 BED
2 BATH
Welcome to this beautifully renovated Cape Cod home in New Suburb Beautiful—one of Tampa’s most cherished, historic neig... Read More
Tampa Real Estate
$1,400,000
3 BED
3 BATH
Under contract-accepting backup offers. Castillo Tower at Westshore Yacht Club. Exquisite renovation of the coveted “01”... Read More
Reunion Real Estate
$1,000,000
5 BED
4 BATH
Welcome to the Pirate & Princess House, a one-of-a-kind immersive retreat in Reunion Resort’s Liberty Bluff neighborhood... Read More
Orlando Real Estate
$1,299,900
6 BED
4 BATH
Located in the beautiful, gated community of Phillips Grove, this STUNNING home provides ample living space and a range ... Read More
North Redington Beach Real Estate
$849,000
3 BED
2 BATH
Welcome to one of the most unique and historical properties in North Redington Beach, where Old Florida charm meets mode... Read More
Bradenton Real Estate
$1,400,000
3 BED
2 BATH
Welcome to your country oasis in town — a beautifully updated 3-bedroom, 2-bath home situated on private land with a pon... Read More
Bradenton Real Estate
$999,000
3 BED
3 BATH
*** Wow! Huge Price Improvement*** If you want space AND serenity with gorgeous sunsets off of Sapphire Lake this is the... Read More
Contact Sandra Pardo

407-990-2746

Wendy Morris LLC

Licensed in the State of Florida
BK 3146762
16797 Broadwater Avenue
Winter Garden, Florida 34787

Your privacy is our utmost concern. We will never sell your personal information. Privacy Policy
©2026 sandrapardohomes.com - all rights reserved. | Site Map