407-990-2746
Menu

307 16th Avenue, Indian Rocks Beach, FL

NEXT
PREV
$1,049,900

($626/sqft)

List Status: Pending
307 16th Avenue
Indian Rocks Beach, FL 33785


3 beds
2 baths
1678 living sqft
Top Features
  • Subdivision: Indian Beach Re-revised 3rd Add
  • Built in  1951
  • Single Family Residence
Description
Property Details
Additional Information
Additional Lease Restrictions
Buyer to verify lease restrictions
Additional Parcels YN
false
Appliances
Bar Fridge, Built-In Oven, Dryer, Microwave, Range, Refrigerator, Washer
Association YN
false
Attached Garage YN
true
Available For Lease YN
1
Bathrooms Total Integer
2
Building Area Source
Appraiser
Building Area Total
2114
Building Area Total Srch SqM
196.40
Building Area Units
Square Feet
Calculated List Price By Calculated SqFt
625.69
Carport YN
false
Construction Materials
Block, Stucco
Contract Status
Appraisal, Financing, Inspections
Cooling
Central Air, Mini-Split Unit(s)
Country
US
Cumulative Days On Market
79
Current Price
1049900.00
Direction Faces
North
Elementary School
Anona Elementary-PN
Exist Lease Tenant YN
1
Expected Closing Date
2025-12-23T00:00:00.000
Exterior Features
Other
Fencing
Fenced
Fireplace YN
false
Flood Zone Code
AE
Floor Number
1
Flooring
Tile
Foundation Details
Slab
Garage Dimensions
10x12
Garage Spaces
1
Garage YN
true
Heating
Electric
High School
Largo High-PN
Interior Features
Ceiling Fans(s), Kitchen/Family Room Combo, Living Room/Dining Room Combo, Primary Bedroom Main Floor, Solid Surface Counters, Thermostat, Window Treatments
Internet Address Display YN
true
Internet Automated Valuation Display YN
true
Internet Consumer Comment YN
false
Internet Entire Listing Display YN
true
Laundry Features
Laundry Room
Levels
One
List AOR
Suncoast Tampa
Living Area Meters
155.89
Living Area Source
Appraiser
Living Area Units
Square Feet
Lot Features
Corner Lot, Flood Insurance Required, FloodZone, Landscaped, Paved
Lot Size Acres
0.14
Lot Size Dimensions
50x121
Lot Size Square Feet
6050
Lot Size Square Meters
562
Middle Or Junior School
Seminole Middle-PN
Minimum Lease
1-7 Days
Modification Timestamp
2025-11-28T15:24:09.201Z
Month To Month Or Weekly YN
1
New Construction YN
false
Occupant Type
Tenant
Ownership
Fee Simple
Parcel Number
01-30-14-42084-002-0030
Patio And Porch Features
Covered, Rear Porch, Screened
Pet Restrictions
NONE
Pets Allowed
Yes
Pool Private YN
true
Postal Code Plus 4
2823
Property Condition
Completed
Property Description
Corner Unit
Public Remarks
Under contract-accepting backup offers. STUNNING INDIAN ROCKS BEACH RANCHER | This beautifully updated home is STR friendly and has a proven track record of averaging $10, 000/month in income making this home a great money maker for the right investor. The 5-star reviews attract the new clients and keep the past clients coming back! If you are not an investor and looking for your next home to live in, no worries, you can enjoy this FULLY FURNISHED home that's just minutes away and within walking distance to the sandy white beaches of the Gulf. If you had a long day and don't feel like walking, don't worry, take the golf cart that is included with the sale of the home! If it isn't a beach day, just walk across the street to Kolb park and enjoy the tennis courts, playground, basketball courts, pickleball, and there's even a skate park down the road. Have a boat and are tired of waiting, and waiting, and waiting for the chance to drop your boat in the water? No problem, there is a community boat ramp just a block away! If you are still reading this and haven't scrolled through the pool pictures yet, let me give you a brief description, PARADISE!! This $90, 000+ pool was installed in 2023 without cutting any corners and done right! Yes, it's heated so you can enjoy it even on the coldest of days. This home also has a huge 269sf covered and screened in area overlooking the pool and yes, it has a wet bar. Newer HVAC, energy efficient double-pane hurricane windows, and new 2025 roof coating with a 10-year transferable warranty. So when you come see this home, bring your bags and your toothbrush, because that's all you'll need!
Public Survey Range
14
Public Survey Section
01
Purchase Contract Date
2025-11-28
RATIO Current Price By Calculated SqFt
625.69
Realtor Info
As-Is, Docs Available, Floor Plan Available, No Sign, Short Term Rental Allowed
Road Surface Type
Asphalt
Roof
Membrane
Room Count
5
Senior Community YN
false
Sewer
Public Sewer
Showing Requirements
Appointment Only, See Remarks
Spa YN
false
Status Change Timestamp
2025-11-28T15:24:01.000Z
Stories Total
1
Tax Annual Amount
10289.15
Tax Block
2
Tax Book Number
25-30
Tax Legal Description
INDIAN BEACH RE-REVISED 3RD ADD BLK 2, LOT 3 LESS S 47.74 FT
Tax Lot
3
Tax Year
2024
Total Acreage
0 to less than 1/4
Total Annual Fees
0.00
Total Monthly Fees
0.00
Township
30
Universal Property Id
US-12103-N-013014420840020030-R-N
Unparsed Address
307 16TH AVE
Utilities
Public, Sewer Connected, Water Connected
Water Source
Public
Waterfront YN
false
Window Features
Double Pane Windows, ENERGY STAR Qualified Windows, Window Treatments
Neighborhood Map
Popup

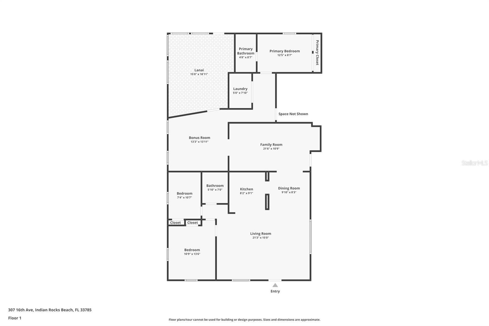
Property Photos
Listing Photo
Listing Photo
Listing Photo
Listing Photo
Listing Photo
Listing Photo
Listing Photo
Listing Photo
Listing Photo
Listing Photo
Listing Photo
Listing Photo
Listing Photo
Listing Photo
Listing Photo
Listing Photo
Listing Photo
Listing Photo
Listing Photo
Listing Photo
Listing Photo
Listing Photo
Listing Photo
Listing Photo
Listing Photo
Listing Photo
Listing Photo
Listing Photo
Listing Photo
Listing Photo
Listing Photo
Listing Photo
Listing Photo
Listing Photo
Listing Photo
Listing Photo
Listing Photo
Listing Photo
Listing Photo
Listing Photo
Listing Photo
Listing Photo
Listing Photo
Listing Photo
Listing Photo
Listing Photo
Listing Photo
Listing Photo
Listing Photo
Listing Photo
Listing Photo
Listing Photo
Listing Photo
Listing Photo
Listing Photo
Listing Photo
Listing Photo
Listing Photo
Listing Photo
Listing Photo
Listing Photo
Listing Photo
Listing Photo
Listing Photo
Listing Photo
Listing Photo
Listing Photo
Listing Photo
Listing Photo
Listing Photo
Listing Photo
Listing Photo
Listing Photo
Listing Photo
Listing Photo
Listing Photo
Listing Photo
Listing Photo
Listing Photo
Listing Photo
Listing Photo
Listing Photo
Listing Photo
Listing Photo
Listing Photo
Listing Photo
Listing Photo
Listing Photo
Listing Photo
Listing Photo
Listing Photo
Listing Photo
Listing Photo
Listing Photo
Listing Photo
Listing Photo
Listing Photo
Listing Photo
Listing Photo
Listing Photo
Listing Photo
Listing Photo
Listing Photo
Listing Photo
Listing Photo
Listing Photo
Listing Photo
Listing Photo
Listing Photo
Listing Photo
Listing Photo
Listing Photo
Listing Photo
Listing Photo
Listing Photo
Listing Photo
Listing Photo
Listing Photo

MLS #MFRTB8426424 Listing courtesy of Engel & Volkers St. Pete provided by Stellar MLS.

Similar Listings

$960,000
812 Gulf Blvd
Indian Rocks Beach
3BR/2BA
| Active
$985,000
399 2nd Street
Indian Rocks Beach
3BR/2BA
| Active
$995,000
100 Windrush Boulevard
Indian Rocks Beach
3BR/2BA
| Active
$1,050,000
2031 20th Avenue Parkway
Indian Rocks Beach
3BR/2BA
| Active



All listing information is deemed reliable but not guaranteed and should be independently verified through personal inspection by appropriate professionals. Listings displayed on this website may be subject to prior sale or removal from sale; availability of any listing should always be independent verified. Listing information is provided for consumer personal, non-commercial use, solely to identify potential properties for potential purchase; all other use is strictly prohibited and may violate relevant federal and state law. The source of the listing data is as follows: Stellar MLS (updated 12/18/25 1:49 PM) |

Listing Search



Translate Tool

Featured Listings
St Petersburg Real Estate
$859,000
4 BED
3 BATH
Longboat Key Real Estate
$1,190,000
2 BED
2 BATH
Reddick Real Estate
$1,375,000
3 BED
2 BATH
Orlando Real Estate
$1,050,000
4 BED
2 BATH
Clearwater Real Estate
$889,000
2 BED
2 BATH
Lakewood Ranch Real Estate
$1,199,000
3 BED
3 BATH
Tampa Real Estate
$1,250,000
4 BED
2 BATH
Sarasota Real Estate
$999,000
2 BED
2 BATH
St Petersburg Real Estate
$1,290,000
5 BED
5 BATH
Tampa Real Estate
$1,394,999
3 BED
3 BATH
Contact Sandra Pardo

407-990-2746

Wendy Morris LLC

Licensed in the State of Florida
BK 3146762
16797 Broadwater Avenue
Winter Garden, Florida 34787

Your privacy is our utmost concern. We will never sell your personal information. Privacy Policy
©2025 sandrapardohomes.com - all rights reserved. | Site Map