407-990-2746
Menu

3058 Ne 20th Terrace, Ocala, FL

NEXT
PREV
$273,990

($183/sqft)

List Status: Pending
3058 Ne 20th Terrace
Ocala, FL 34470


4 beds
2 baths
1498 living sqft
Top Features
  • Subdivision: Emerson Pointe
  • Built in  2026
  • Single Family Residence
Description
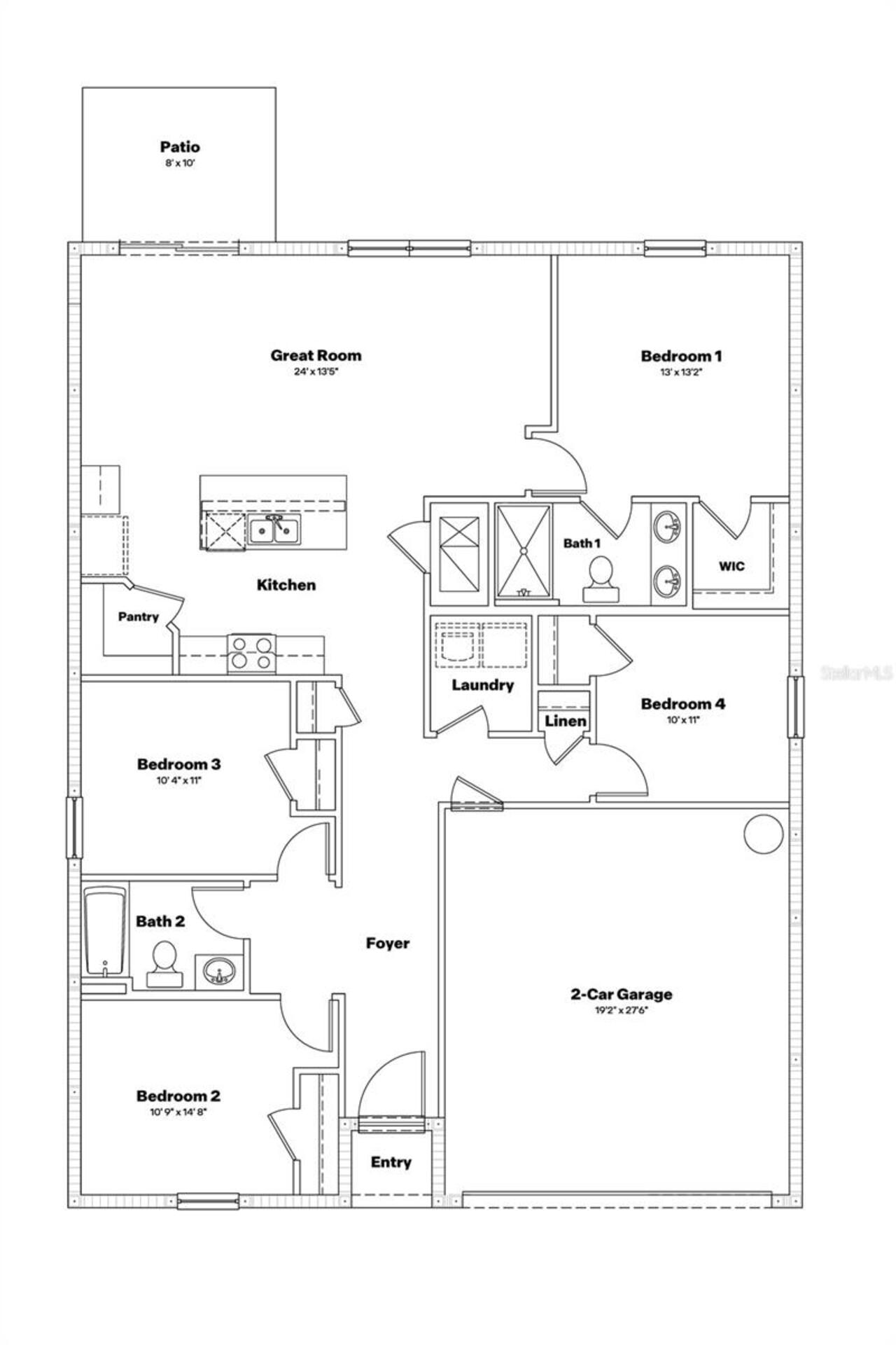
Under Construction. This all concrete block constructed, one-story home optimizes living space, featuring an open-concept kitchen overlooking the great room and outdoor patio. The well-appointed kitchen comes with all stainless-steel appliances, including a built-in dishwasher, range, and microwave. Bedroom 1 is located at the rear of the home for privacy and features an ensuite bathroom and walk-in closet near the bathroom. Two additional bedrooms at the front of the home are separated by the second bathroom. The third bedroom is located across the hallway near the laundry room. Pictures, photographs, colors, features, and sizes are for illustration purposes only and will vary from the homes as built. Home and community information including pricing, included features, terms, availability and amenities are subject to change and prior sale at any time without notice or obligation. CRC057592.
Property Details
Additional Information
Additional Lease Restrictions
Per HOA Guidelines
Additional Parcels YN
false
Appliances
Dishwasher, Microwave, Range
Approval Process
Per HOA Guidelines
Association Approval Required YN
1
Association Email
Ayla@boydrealestategroup.com
Association Fee
95
Association Fee Frequency
Monthly
Association Fee Requirement
Required
Association YN
true
Attached Garage YN
true
Available For Lease YN
1
Bathrooms Total Integer
2
Builder License Number
CRC057592
Builder Model
Freeport II
Builder Name
DR Horton INC
Building Area Source
Builder
Building Area Total
1498
Building Area Total Srch SqM
139.17
Building Area Units
Square Feet
Calculated List Price By Calculated SqFt
182.90
Carport YN
false
Construction Materials
Block
Cooling
Central Air
Country
US
Cumulative Days On Market
69
Current Price
273990.00
Direction Faces
Northeast
Elementary School
Ocala Springs Elem. School
Expected Closing Date
2027-02-01T00:00:00.000
Fireplace YN
false
Flood Zone Code
x
Flooring
Carpet, Luxury Vinyl
Foundation Details
Slab
Furnished
Unfurnished
Garage Spaces
2
Garage YN
true
Heating
Electric, Heat Pump
High School
Vanguard High School
Home Warranty YN
true
Interior Features
Open Floorplan
Internet Address Display YN
true
Internet Automated Valuation Display YN
true
Internet Consumer Comment YN
false
Internet Entire Listing Display YN
true
Laundry Features
Laundry Room
Lease Restrictions YN
1
Levels
One
List AOR
Ocala - Marion
Living Area Meters
139.17
Living Area Source
Builder
Living Area Units
Square Feet
Lot Size Acres
0.14
Lot Size Square Feet
6000
Lot Size Square Meters
557
Middle Or Junior School
Fort King Middle School
Minimum Lease
7 Months
Modification Timestamp
2026-03-24T17:33:11.794Z
Monthly HOA Amount
95.00
New Construction YN
true
Occupant Type
Vacant
Other Equipment
Irrigation Equipment
Ownership
Fee Simple
Parcel Number
24286-084-00
Permit Number
2025073545
Pet Restrictions
Per HOA Guidelines
Pets Allowed
Yes
Pool Private YN
false
Previous List Price
275990
Price Change Timestamp
2026-03-17T19:26:27.000Z
Projected Completion Date
2026-04-28T00:00:00.000
Property Condition
Under Construction
Public Survey Range
22
Public Survey Section
04
Purchase Contract Date
2026-03-24
RATIO Current Price By Calculated SqFt
182.90
Road Surface Type
Paved
Roof
Shingle
Room Count
3
Senior Community YN
false
Sewer
Public Sewer
Showing Requirements
Contact Call Center
Status Change Timestamp
2026-03-24T17:32:15.000Z
Tax Block
-
Tax Book Number
016/102
Tax Legal Description
SEC 04 TWP 15 RGE 22 PLAT BOOK 016 PAGE 102 EMERSON POINTE PHASE 1 LOT 84
Tax Lot
84
Tax Year
2025
Total Acreage
0 to less than 1/4
Total Annual Fees
1140.00
Total Monthly Fees
95.00
Township
15
Universal Property Id
US-12083-N-2428608400-R-N
Unparsed Address
3058 NE 20TH TER
Utilities
Other
Water Source
Public
Waterfront YN
false
Zoning
PUD
Neighborhood Map
Popup

Property Photos
Listing Photo
Listing Photo
Listing Photo
Listing Photo
Listing Photo
Listing Photo
Listing Photo
Listing Photo
Listing Photo
Listing Photo
Listing Photo
Listing Photo
Listing Photo
Listing Photo
Listing Photo
Listing Photo
Listing Photo
Listing Photo
Listing Photo
Listing Photo
Listing Photo
Listing Photo
Listing Photo
Listing Photo
Listing Photo
Listing Photo
Listing Photo
Listing Photo
Listing Photo
Listing Photo
Listing Photo
Listing Photo
Listing Photo
Listing Photo
Listing Photo
Listing Photo
Listing Photo
Listing Photo
Listing Photo
Listing Photo
Listing Photo
Listing Photo
Listing Photo
Listing Photo
Listing Photo
Listing Photo
Listing Photo
Listing Photo
Listing Photo
Listing Photo

MLS #MFROM716626 Listing courtesy of Dr Horton Realty Of West Central Florida provided by Stellar MLS.

Similar Listings

$249,000
9399 Se 35th Court
Ocala
4BR/2BA
| Pending
$249,000
2400 Ne 37th Street
Ocala
4BR/2BA
| Active
$249,900
16789 Sw 62nd Street
Ocala
4BR/2BA
| Active
$250,000
8525 Sw 136th Loop
Ocala
4BR/2BA
| Active



All listing information is deemed reliable but not guaranteed and should be independently verified through personal inspection by appropriate professionals. Listings displayed on this website may be subject to prior sale or removal from sale; availability of any listing should always be independent verified. Listing information is provided for consumer personal, non-commercial use, solely to identify potential properties for potential purchase; all other use is strictly prohibited and may violate relevant federal and state law. The source of the listing data is as follows: Stellar MLS (updated 3/26/26 1:12 AM) |

Listing Search



Translate Tool

Featured Listings
Maitland Real Estate
$995,000
3 BED
2 BATH
Rare opportunity to own a private 0.66-acre estate lot in Maitland with deeded direct Lake Sybelia access. 790 S Lake Sy... Read More
Nokomis Real Estate
$1,499,000
3 BED
3 BATH
Where Modern Design Meets Coastal Luxury - Designed for both refined comfort and seamless indoor-outdoor living, this ex... Read More
Lake Mary Real Estate
$819,900
4 BED
3 BATH
Welcome to your dream home in the highly desirable Lake Mary area! This exceptional residence sits proudly on a premium ... Read More
New Port Richey Real Estate
$898,000
5 BED
3 BATH
One or more photo(s) has been virtually staged. MOVE IN READY!! Exquisite WATERFRONT Retreat! Boater’s PARADISE! Welcome... Read More
Bradenton Real Estate
$800,000
5 BED
4 BATH
One or more photo(s) has been virtually staged. A million-dollar view — offered at $800,000. Set on a premium 1/3-acre l... Read More
Orlando Real Estate
$1,165,000
6 BED
5 BATH
*****PRICE IMPROVEMENT!!!******Ask about a lender provided rate buy-down credit on this home! ****Welcome to Eagle Creek... Read More
Winter Garden Real Estate
$980,000
4 BED
3 BATH
Delight your clients with this unique opportunity in Watermark, one of the most desirable communities in Winter Garden. ... Read More
Port Charlotte Real Estate
$1,290,000
4 BED
3 BATH
One or more photo(s) has been virtually staged. RARE BRAND NEW WATERFRONT CUSTOM HOME IS A BOATERS DREAM! **$20,000 SELL... Read More
New Port Richey Real Estate
$850,000
3 BED
3 BATH
Waterfront Paradise: Deep Water Access & 2025 Fully Remodeled Home. Experience the ultimate Gulf Harbors lifestyle in th... Read More
St Petersburg Real Estate
$1,399,500
4 BED
3 BATH
NOW ATTRACTIVELY PRICED FOR TODAY'S MARKET, THIS HOME PRESENTS AN EXCEPTIONAL OPPORTUNITY —This is the modern ranch layo... Read More
Contact Sandra Pardo

407-990-2746

Wendy Morris LLC

Licensed in the State of Florida
BK 3146762
16797 Broadwater Avenue
Winter Garden, Florida 34787

Your privacy is our utmost concern. We will never sell your personal information. Privacy Policy
©2026 sandrapardohomes.com - all rights reserved. | Site Map