407-990-2746
Menu

3013 Tansy Street, Tavares, FL

NEXT
PREV
$330,000

($144/sqft)

List Status: Active
3013 Tansy Street
Tavares, FL 32778


3 beds
2 baths
2296 living sqft
Top Features
  • Subdivision: Avalon Park Tavares Ph 1
  • Built in  2023
  • Single Family Residence
Description
Property Details
Additional Information
Additional Lease Restrictions
Buyer to verify.
Additional Parcels YN
false
Alternate Key Folio Num
3927455
Appliances
Dishwasher, Electric Water Heater, Microwave, Other
Approval Process
Buyer to verify.
Association Approval Required YN
1
Association Fee
223
Association Fee Frequency
Quarterly
Association Fee Includes
Pool, Other
Association Fee Requirement
Required
Association YN
true
Attached Garage YN
true
Bathrooms Total Integer
3
Building Area Source
Public Records
Building Area Total
2296
Building Area Total Srch SqM
213.31
Building Area Units
Square Feet
Calculated List Price By Calculated SqFt
143.73
Carport YN
false
Community Features
Pool
Construction Materials
Block, Stucco
Cooling
Central Air
Country
US
Cumulative Days On Market
28
Current Price
330000.00
Direction Faces
Southeast
Exterior Features
Other
Fireplace YN
false
Flood Zone Code
X
Flood Zone Date
2012-12-18
Flood Zone Panel
12069C0355E
Flooring
Carpet, Tile
Foundation Details
Slab
Furnished
Unfurnished
Garage Spaces
2
Garage YN
true
Heating
Central
Interior Features
L Dining, Primary Bedroom Main Floor, Stone Counters
Internet Address Display YN
true
Internet Automated Valuation Display YN
false
Internet Consumer Comment YN
false
Internet Entire Listing Display YN
true
Laundry Features
Laundry Room
Lease Restrictions YN
1
Levels
Two
List AOR
Orlando Regional
Living Area Meters
213.31
Living Area Source
Public Records
Living Area Units
Square Feet
Lot Size Acres
0.12
Lot Size Square Feet
5417
Lot Size Square Meters
503
Minimum Lease
No Minimum
Modification Timestamp
2026-02-05T01:31:09.181Z
Monthly HOA Amount
74.33
New Construction YN
false
Occupant Type
Vacant
Ownership
Fee Simple
Parcel Number
15-19-26-0020-000-18800
Pets Allowed
Yes
Pool Private YN
false
Postal Code Plus 4
2085
Previous List Price
338000
Price Change Timestamp
2026-02-05T01:31:04.000Z
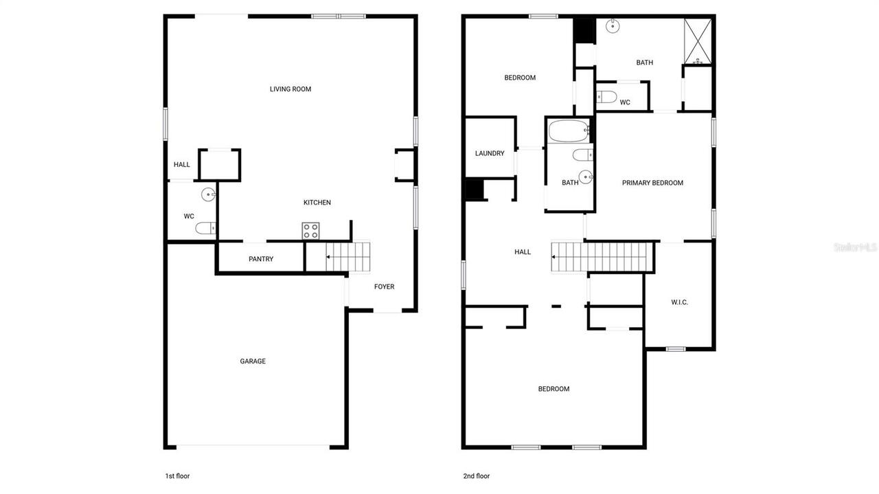
Public Remarks
Welcome to 3013 Tansy St, a property that exudes elegance and sophistication. The heart of the home is the kitchen, boasting a large island that provides ample space for meal preparation and entertaining. The kitchen's aesthetic is further enhanced by an accent backsplash, adding a touch of modern flair. Stainless steel appliances are included, ensuring a sleek and contemporary look. The primary bathroom is a haven of relaxation, featuring double sinks for added convenience. Outside, a patio awaits, perfect for enjoying a morning coffee or an evening drink. This property is a testament to tasteful design and modern living. Don't miss out on this unique opportunity to make this as your new home.. Included 100-Day Home Warranty with buyer activation
Public Survey Range
26
Public Survey Section
15
RATIO Current Price By Calculated SqFt
143.73
Road Surface Type
Asphalt
Roof
Shingle
Room Count
3
Security Features
Security System Owned
Senior Community YN
false
Sewer
Public Sewer
Showing Requirements
Appointment Only, See Remarks, ShowingTime
Spa YN
false
Status Change Timestamp
2026-01-07T23:49:19.000Z
Tax Annual Amount
3624
Tax Book Number
75-48-53
Tax Legal Description
AVALON PARK TAVARES PHASE 1 PB 75 PG 48-53 LOT 188 ORB 6118 PG 1751
Tax Lot
188
Tax Year
2025
Total Acreage
0 to less than 1/4
Total Annual Fees
892.00
Total Monthly Fees
74.33
Township
19
Universal Property Id
US-12069-N-151926002000018800-R-N
Unparsed Address
3013 TANSY ST
Utilities
Electricity Available, Water Available
Water Source
Public
Waterfront YN
false
Zoning
RES
Neighborhood Map
Popup

Property Photos
Listing Photo
Listing Photo
Listing Photo
Listing Photo
Listing Photo
Listing Photo
Listing Photo
Listing Photo
Listing Photo
Listing Photo
Listing Photo
Listing Photo
Listing Photo
Listing Photo
Listing Photo
Listing Photo
Listing Photo
Listing Photo
Listing Photo
Listing Photo
Listing Photo
Listing Photo
Listing Photo
Listing Photo
Listing Photo
Listing Photo
Listing Photo
Listing Photo
Listing Photo
Listing Photo
Listing Photo
Listing Photo
Listing Photo
Listing Photo
Listing Photo
Listing Photo
Listing Photo
Listing Photo
Listing Photo
Listing Photo
Listing Photo
Listing Photo
Listing Photo
Listing Photo
Listing Photo
Listing Photo
Listing Photo
Listing Photo
Listing Photo
Listing Photo
Listing Photo
Listing Photo
Listing Photo
Listing Photo

MLS #MFRO6371459 Listing courtesy of Opendoor Brokerage Llc provided by Stellar MLS.

Similar Listings

$298,000
2523 Martins Run
Tavares
3BR/2BA
| Active
$299,000
4490 Treasure Cay Road
Tavares
3BR/2BA
| Active
$299,000
6002 Sailboat Avenue
Tavares
3BR/2BA
| Active
$299,900
1018 Southland Drive
Tavares
3BR/2BA
| Active



All listing information is deemed reliable but not guaranteed and should be independently verified through personal inspection by appropriate professionals. Listings displayed on this website may be subject to prior sale or removal from sale; availability of any listing should always be independent verified. Listing information is provided for consumer personal, non-commercial use, solely to identify potential properties for potential purchase; all other use is strictly prohibited and may violate relevant federal and state law. The source of the listing data is as follows: Stellar MLS (updated 2/6/26 4:56 PM) |

Listing Search



Translate Tool

Featured Listings
Windermere Real Estate
$1,060,000
4 BED
4 BATH
Winter Garden Real Estate
$825,000
5 BED
3 BATH
Montverde Real Estate
$1,300,000
4 BED
4 BATH
Orlando Real Estate
$875,000
3 BED
2 BATH
Lutz Real Estate
$1,395,000
6 BED
4 BATH
Umatilla Real Estate
$975,000
4 BED
3 BATH
Davenport Real Estate
$800,000
7 BED
5 BATH
Bradenton Real Estate
$1,195,000
3 BED
2 BATH
Indian Rocks Beach Real Estate
$999,000
2 BED
2 BATH
Deland Real Estate
$889,990
3 BED
4 BATH
Contact Sandra Pardo

407-990-2746

Wendy Morris LLC

Licensed in the State of Florida
BK 3146762
16797 Broadwater Avenue
Winter Garden, Florida 34787

Your privacy is our utmost concern. We will never sell your personal information. Privacy Policy
©2026 sandrapardohomes.com - all rights reserved. | Site Map