407-990-2746
Menu

3013 S West Shore, Tampa, FL

NEXT
PREV
$3,699,000

($633/sqft)

List Status: Active
3013 S West Shore
Tampa, FL 33629


5 beds
5 baths
5841 living sqft
Top Features
  • Subdivision: Omar Sub
  • Built in  2025
  • Single Family Residence
Description
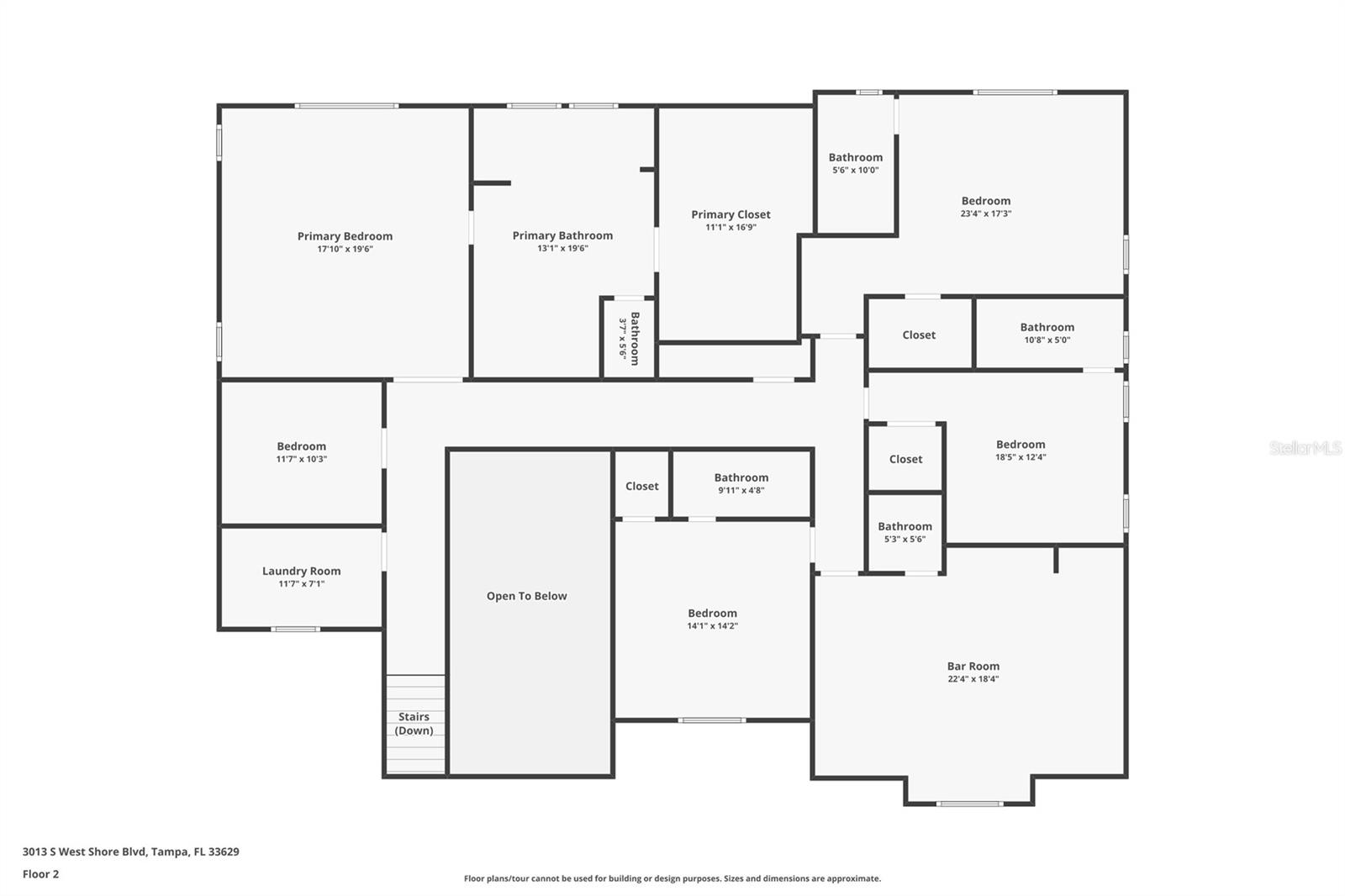
Introducing Westshore Reserve, an exclusive new construction estate in the heart of Sunset Park, built by Kingfisher Development—a highly regarded local builder known for exceptional quality, timeless design, and superior craftsmanship.This custom residence delivers refined modern luxury on an oversized .38-acre lot, privately set back from the street and secured by a gated entry. Thoughtfully designed for both elegance and livability, the home showcases impeccable detail, custom finishes, and seamless indoor-outdoor integration.A dramatic 22-foot two-story foyer anchors the home, featuring a cable-railed overlook and abundant natural light. The main level includes a private office with a custom accent wall, a formal dining room with detailed ceiling design, and a Butler’s Bar leading to a glass-enclosed wine room—designed for elevated entertaining. The chef’s kitchen features a Wolf natural gas range, Subzero paneled refrigerator, expansive walk-in pantry, and a sunlit breakfast nook overlooking the outdoor oasis.The open-concept great room opens to an outdoor oasis featuring a massive, private backyard with lush tropical landscaping, a saltwater inground pool and spa, and an expansive covered lanai complete with a fully equipped outdoor kitchen, grill station, fireplace, and a dedicated first-floor pool bath—the perfect setting for effortless entertaining and resort-style living. The first-floor suite offers flexibility as a guest or primary bedroom, with a walk-in closet and spa-like bath. The upstairs primary suite is a true statement of luxury, featuring a spa-inspired bathroom with a chandelier suspended above the soaking tub, and an oversized walk-in shower with dual entries and dual rainfall showerheads. The space is complemented by his and her vanities and an impeccably designed walk-in closet, complete with a center island and custom-built-ins crafted with exceptional detail and quality. Three additional bedrooms each offer private baths and walk-in closet
Property Details
Additional Information
Additional Lease Restrictions
Buyer and buyers agent to verify all restrictions with local municipalities
Additional Parcels YN
false
Additional Rooms
Bonus Room, Den/Library/Office, Formal Dining Room Separate, Media Room
Appliances
Bar Fridge, Built-In Oven, Convection Oven, Dishwasher, Disposal, Exhaust Fan, Freezer, Ice Maker, Microwave, Range, Range Hood, Refrigerator, Tankless Water Heater, Touchless Faucet
Association YN
false
Attached Garage YN
true
Available For Lease YN
1
Bathrooms Total Integer
7
Builder Model
Custom
Builder Name
Kingfisher Development LLC
Building Area Source
Builder
Building Area Total
8077
Building Area Total Srch SqM
750.38
Building Area Units
Square Feet
Calculated List Price By Calculated SqFt
633.28
Carport YN
false
Construction Materials
Block, Stucco
Cooling
Central Air
Country
US
Cumulative Days On Market
156
Current Price
3699000.00
Direction Faces
East
Elementary School
Dale Mabry Elementary-HB
Exterior Features
Awning(s), Lighting, Outdoor Grill, Outdoor Kitchen, Private Mailbox, Rain Gutters, Shade Shutter(s), Sidewalk, Sliding Doors
Fencing
Fenced, Other, Vinyl
Fireplace Features
Gas, Insert, Outside
Fireplace YN
true
Flood Zone Code
AE
Flooring
Carpet, Hardwood, Tile
Foundation Details
Stem Wall
Garage Spaces
4
Garage YN
true
Heating
Central, Electric
High School
Plant-HB
Interior Features
Built-in Features, Ceiling Fans(s), Eat-in Kitchen, High Ceilings, Kitchen/Family Room Combo, Open Floorplan, Thermostat, Walk-In Closet(s)
Internet Address Display YN
true
Internet Automated Valuation Display YN
true
Internet Consumer Comment YN
true
Internet Entire Listing Display YN
true
Laundry Features
Inside
Levels
Two
List AOR
Orlando Regional
Living Area Meters
542.65
Living Area Source
Builder
Living Area Units
Square Feet
Lot Features
City Limits, Landscaped, Oversized Lot, Sidewalk, Paved
Lot Size Acres
0.38
Lot Size Square Feet
16495
Lot Size Square Meters
1532
Middle Or Junior School
Coleman-HB
Minimum Lease
No Minimum
Modification Timestamp
2026-03-07T20:05:18.745Z
New Construction YN
true
Occupant Type
Vacant
Other Equipment
Irrigation Equipment
Other Structures
Outdoor Kitchen
Ownership
Fee Simple
Parcel Number
A-32-29-18-3T6-000000-00014.0
Patio And Porch Features
Covered, Deck, Front Porch, Patio, Rear Porch
Pet Restrictions
*Buyer and buyers agent to verify all restrictions with local municipalities
Pool Dimensions
30'x14'
Pool Private YN
true
Postal Code Plus 4
7640
Previous List Price
3799000
Price Change Timestamp
2026-02-24T19:06:51.000Z
Property Condition
Completed
Property Description
Elevated
Public Survey Range
18
Public Survey Section
32
RATIO Current Price By Calculated SqFt
633.28
Realtor Info
As-Is
Road Surface Type
Paved
Roof
Metal, Shingle
Room Count
4
Security Features
Security Fencing/Lighting/Alarms, Security Gate
Senior Community YN
false
Sewer
Public Sewer
Showing Requirements
Appointment Only, Call Listing Agent, Listing Agent Must Accompany, See Remarks
Spa Features
Heated, In Ground
Spa YN
true
Status Change Timestamp
2025-10-28T15:14:56.000Z
Tax Annual Amount
6465.21
Tax Block
000000
Tax Book Number
33/25
Tax Legal Description
OMAR SUBDIVISION A PORTION OF LOTS 13 AND 14 MORE PARTICULARLY DESC AS: COMM AT NE COR OF LOT 11 THN ON WLY R/W LINE OF S WEST SHORE BLVD S 18 DEG 44 MIN 00 SEC W 230.09 FT FOR POB THN CONT ON WLY R/W LINE ON THE ELY BDRY OF SD LOT 13 AND LOT 14 S 18 DEG 44 MIN 00 SEC W 83.40 FT THN N 79 DEG 53 MIN 59 SEC W 192.23 FT TO PT ON WLY BDRY OF LOT 14 THN N 11 DEG 13 MIN 39 SEC E 84.40 FT THN S 79 DEG 21 MIN 20 SEC E 203.10 FT TO POB
Tax Lot
11
Tax Year
2024
Total Acreage
1/4 to less than 1/2
Total Annual Fees
0.00
Total Monthly Fees
0.00
Township
29
Universal Property Id
US-12057-N-32291836000000000140-R-N
Unparsed Address
3013 S WEST SHORE
Utilities
BB/HS Internet Available, Electricity Connected, Natural Gas Connected, Public, Sewer Connected, Underground Utilities, Water Connected
Vegetation
Trees/Landscaped
Water Source
Public
Waterfront YN
false
Window Features
Storm Window(s)
Zoning
RS-75
Neighborhood Map
Popup

Property Photos
Listing Photo
Listing Photo
Listing Photo
Listing Photo
Listing Photo
Listing Photo
Listing Photo
Listing Photo
Listing Photo
Listing Photo
Listing Photo
Listing Photo
Listing Photo
Listing Photo
Listing Photo
Listing Photo
Listing Photo
Listing Photo
Listing Photo
Listing Photo
Listing Photo
Listing Photo
Listing Photo
Listing Photo
Listing Photo
Listing Photo
Listing Photo
Listing Photo
Listing Photo
Listing Photo
Listing Photo
Listing Photo
Listing Photo
Listing Photo
Listing Photo
Listing Photo
Listing Photo
Listing Photo
Listing Photo
Listing Photo
Listing Photo
Listing Photo
Listing Photo
Listing Photo
Listing Photo
Listing Photo
Listing Photo
Listing Photo
Listing Photo
Listing Photo
Listing Photo
Listing Photo
Listing Photo
Listing Photo
Listing Photo
Listing Photo
Listing Photo
Listing Photo
Listing Photo
Listing Photo
Listing Photo
Listing Photo
Listing Photo
Listing Photo
Listing Photo
Listing Photo
Listing Photo
Listing Photo
Listing Photo
Listing Photo
Listing Photo
Listing Photo
Listing Photo
Listing Photo
Listing Photo
Listing Photo
Listing Photo
Listing Photo
Listing Photo
Listing Photo
Listing Photo
Listing Photo
Listing Photo
Listing Photo
Listing Photo
Listing Photo
Listing Photo
Listing Photo
Listing Photo
Listing Photo
Listing Photo
Listing Photo
Listing Photo
Listing Photo
Listing Photo
Listing Photo
Listing Photo
Listing Photo
Listing Photo
Listing Photo
Listing Photo
Listing Photo
Listing Photo
Listing Photo
Listing Photo
Listing Photo

MLS #MFRTB8441359 Listing courtesy of South Cedar Real Estate, Inc provided by Stellar MLS.

Similar Listings

$3,445,000
4614 W Tennyson Avenue
Tampa
5BR/5BA
| Active
$3,448,000
214 S Renellie Drive
Tampa
5BR/5BA
| Active
$3,495,000
423 S Royal Poinciana Drive
Tampa
5BR/5BA
| Active
$3,499,000
3007 S West Shore Boulevard
Tampa
5BR/5BA
| Active



All listing information is deemed reliable but not guaranteed and should be independently verified through personal inspection by appropriate professionals. Listings displayed on this website may be subject to prior sale or removal from sale; availability of any listing should always be independent verified. Listing information is provided for consumer personal, non-commercial use, solely to identify potential properties for potential purchase; all other use is strictly prohibited and may violate relevant federal and state law. The source of the listing data is as follows: Stellar MLS (updated 3/13/26 11:06 PM) |

Listing Search



Translate Tool

Featured Listings
Orlando Real Estate
$1,500,000
4 BED
4 BATH
Welcome to a one-of-a-kind masterpiece in the coveted gated community of Phillips Grove—a fully customized, renovated re... Read More
Orlando Real Estate
$900,000
5 BED
3 BATH
A rare opportunity to own a private 3.78 acre lakefront retreat with direct access to Lake Hiawassee, offering the perfe... Read More
Clearwater Beach Real Estate
$1,279,000
3 BED
2 BATH
**Experience refined coastal living in this elegant, architecturally rich townhouse on Island Estates.** From the moment... Read More
Holmes Beach Real Estate
$1,050,000
4 BED
3 BATH
2 BLOCKS FROM WHITE AVE WALKWAY TO THE BEACH! Spacious 4 bedroom 3 bath elevated home! NEW ROOF 2025! As you enter the m... Read More
Odessa Real Estate
$1,175,000
5 BED
4 BATH
One or more photo(s) has been virtually staged. Homes like this rarely become available in Odessa! Tucked away beneath m... Read More
Bradenton Real Estate
$925,000
4 BED
3 BATH
Buy with equity built in! This incredible price invites you to make this home your own! Let’s make a deal! Introducing t... Read More
St Petersburg Real Estate
$927,900
5 BED
3 BATH
Seller Offering $10,000 Toward Rate Buy-Down with an acceptable offer!!! SELLER MOTIVATED!! Welcome to this beautifully ... Read More
Kissimmee Real Estate
$1,385,777
5 BED
3 BATH
Luxury Lakefront Dream Home with Boat Dock, Pool, Sunset Views, and So Much More. Experience luxury lakefront living in ... Read More
Longwood Real Estate
$1,095,000
4 BED
3 BATH
Located in the highly sought-after community of The Springs, this stunning estate offers an exceptional opportunity to e... Read More
Dade City Real Estate
$875,000
4 BED
3 BATH
Under contract-accepting backup offers. One or more photo(s) has been virtually staged. ACREAGE, HOUSE, DETACHED IN-LAW ... Read More
Contact Sandra Pardo

407-990-2746

Wendy Morris LLC

Licensed in the State of Florida
BK 3146762
16797 Broadwater Avenue
Winter Garden, Florida 34787

Your privacy is our utmost concern. We will never sell your personal information. Privacy Policy
©2026 sandrapardohomes.com - all rights reserved. | Site Map