407-990-2746
Menu

3000 N Highland Avenue, Tampa, FL

NEXT
PREV
$999,990

($333/sqft)

List Status: Active
3000 N Highland Avenue
Tampa, FL 33603


4 beds
3 baths
3004 living sqft
Top Features
  • Subdivision: Riverside Heights
  • Built in  2026
  • Single Family Residence
Description
Under Construction. UNDER CONSTRUCTION New Construction in Tampa Heights – Unbeatable Value & Prime Location! *Price includes an enhanced storm protection package with white vinyl impact windows, impact glass exterior doors (where applicable), and a 50-AMP generator inlet for a portable generator (generator and inlet cord not included). Welcome to Tampa Heights, one of Tampa’s most sought-after and rapidly growing urban core communities! This brand-new 4-bedroom, 3.5-bathroom home offers the perfect mix of modern living, walkability, and unbeatable value. Enjoy quick access to the best of Tampa, including Armature Works, Michelin-starred restaurants, and Sprouts Farmers Market. Conveniently situated between I-275 and Downtown Tampa, you’re just minutes from Midtown, International Plaza, and Bay Street, making shopping, dining, and entertainment effortless. For outdoor enthusiasts, the Tampa Riverwalk, Water Works Park, and Julian B. Lane Riverfront Park are all just five minutes away, offering endless opportunities for waterfront walks, biking, and community events. And with the exciting Landing at Riverwalk set to debut in Q3 2025, Riverside Heights continues to thrive as one of Tampa’s most dynamic neighborhoods. Whether you’re strolling along the waterfront, indulging in world-class dining, or exploring downtown’s cultural scene, this home places you at the center of it all. Don’t miss this rare opportunity—schedule your private tour today!
Property Details
Additional Information
Additional Parcels YN
false
Additional Rooms
Den/Library/Office, Formal Dining Room Separate, Great Room, Loft
Alternate Key Folio Num
182312-0000
Appliances
Dishwasher, Disposal, Electric Water Heater, Microwave, Range
Architectural Style
Florida, Traditional
Association YN
false
Attached Garage YN
true
Bathrooms Total Integer
4
Builder License Number
CRC1326613
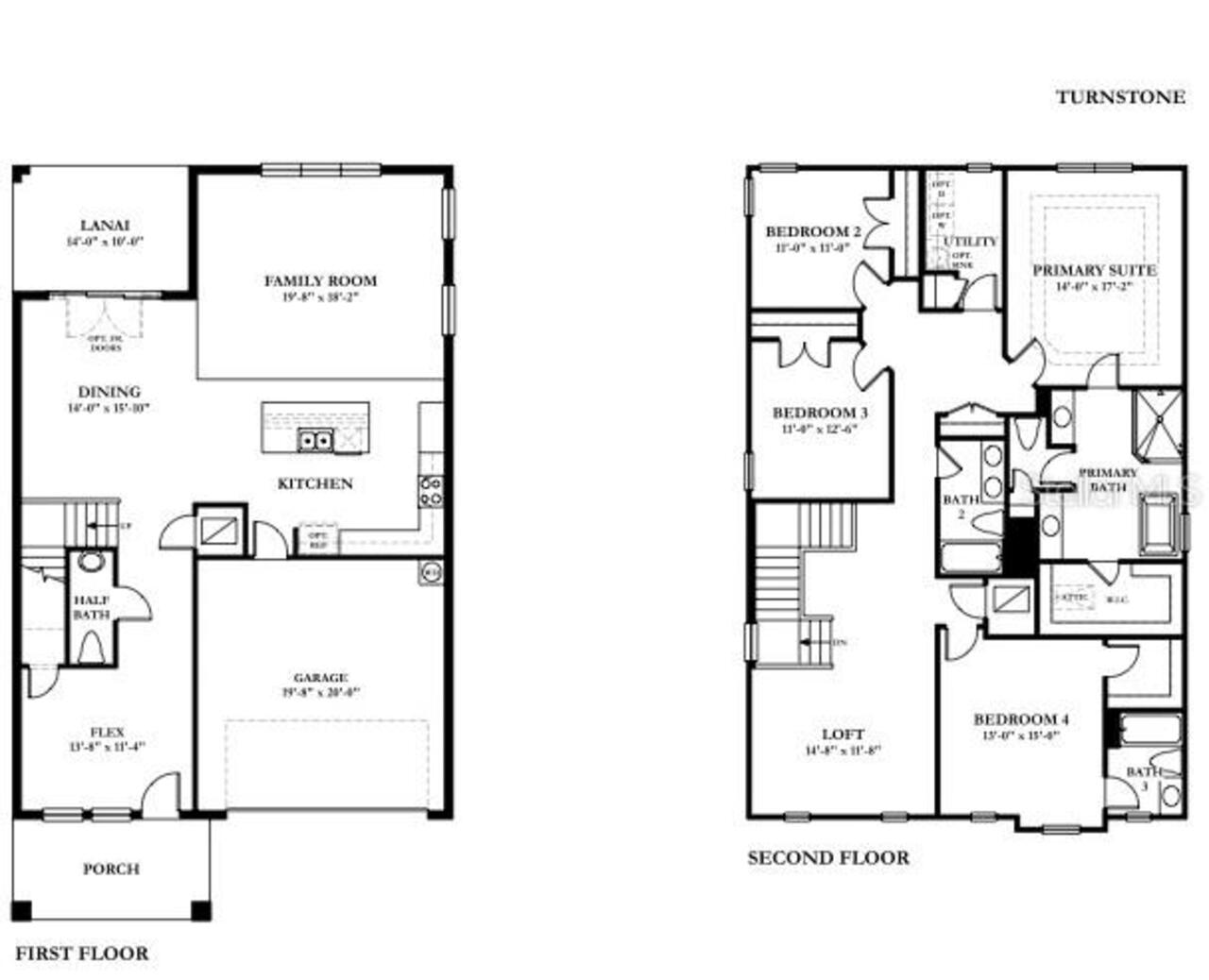
Builder Model
Turnstone A
Builder Name
Domain Homes
Building Area Source
Builder
Building Area Total
3004
Building Area Total Srch SqM
279.08
Building Area Units
Square Feet
Calculated List Price By Calculated SqFt
332.89
Carport YN
false
Construction Materials
Block, Stucco
Cooling
Central Air
Country
US
Current Price
999990.00
Direction Faces
North
Disaster Mitigation
Above Flood Plain, Hurricane Shutters/Windows
Elementary School
Graham-HB
Exterior Features
Balcony, French Doors, Hurricane Shutters, Lighting, Rain Gutters, Sidewalk
Fireplace YN
false
Flood Zone Code
X
Flooring
Carpet, Ceramic Tile
Foundation Details
Slab
Furnished
Unfurnished
Garage Spaces
2
Garage YN
true
Green Energy Efficient
Appliances
Heating
Central
High School
Hillsborough-HB
Home Warranty YN
true
Interior Features
Eat-in Kitchen, In Wall Pest System, PrimaryBedroom Upstairs, Thermostat, Tray Ceiling(s), Walk-In Closet(s)
Internet Address Display YN
true
Internet Automated Valuation Display YN
true
Internet Consumer Comment YN
true
Internet Entire Listing Display YN
true
Laundry Features
Inside, Laundry Room, Upper Level
Levels
Two
List AOR
Suncoast Tampa
Living Area Meters
279.08
Living Area Source
Builder
Living Area Units
Square Feet
Lot Features
Cleared, City Limits, Sidewalk
Lot Size Acres
0.13
Lot Size Dimensions
53X99
Lot Size Square Feet
5247
Lot Size Square Meters
487
Middle Or Junior School
Stewart-HB
Modification Timestamp
2026-04-30T06:16:09.064Z
New Construction YN
true
Occupant Type
Owner
Other Equipment
Irrigation Equipment
Ownership
Fee Simple
Parcel Number
A-12-29-18-4QQ-000003-00014.0
Patio And Porch Features
Covered, Front Porch, Rear Porch
Permit Number
BLD-25-0515834
Pets Allowed
Yes
Pool Private YN
false
Projected Completion Date
2026-07-22T00:00:00.000
Property Condition
Under Construction
Public Survey Range
18
Public Survey Section
12
RATIO Current Price By Calculated SqFt
332.89
Realtor Info
Floor Plan Available, Survey Available, Termite Bond/Warranty
Road Surface Type
Asphalt
Roof
Shingle
Room Count
10
Security Features
Smoke Detector(s)
Senior Community YN
false
Sewer
Public Sewer
Showing Requirements
Call Listing Office
Status Change Timestamp
2026-04-30T05:41:37.000Z
Tax Annual Amount
433.23
Tax Block
3
Tax Book Number
8/56
Tax Legal Description
LOT 14, BLOCK 3, "MAP OF ADAMS PLACE", ACCORDING TO THE MAP OR PLAT THEREOF AS RECORDED IN PLAT BOOK 8, PAGE 56, OF THE PUBLIC RECORDS OF HILLSBOROUGH COUNTY, FLORIDA
Tax Lot
14
Tax Year
2025
Total Acreage
0 to less than 1/4
Total Annual Fees
0.00
Total Monthly Fees
0.00
Township
29
Universal Property Id
US-12057-N-1229184000003000140-R-N
Unparsed Address
3000 N HIGHLAND AVE
Utilities
BB/HS Internet Available, Cable Available, Electricity Connected, Public
Vegetation
Mature Landscaping, Trees/Landscaped
Water Source
Public
Waterfront YN
false
Window Features
ENERGY STAR Qualified Windows
Zoning
RS-50
Neighborhood Map
Popup

Property Photos
Listing Photo
Listing Photo
Listing Photo
Listing Photo
Listing Photo
Listing Photo
Listing Photo
Listing Photo
Listing Photo
Listing Photo
Listing Photo
Listing Photo

MLS #MFRTB8503233 Listing courtesy of Domain Realty Llc provided by Stellar MLS.

Similar Listings

$900,000
707 S Lois Avenue
Tampa
4BR/3BA
| Pending
$914,900
412 S Albany Avenue
Tampa
4BR/3BA
| Active
$915,000
10021 Brompton Drive
Tampa
4BR/3BA
| Active
$924,990
6307 S Main Avenue
Tampa
4BR/3BA
| Active



All listing information is deemed reliable but not guaranteed and should be independently verified through personal inspection by appropriate professionals. Listings displayed on this website may be subject to prior sale or removal from sale; availability of any listing should always be independent verified. Listing information is provided for consumer personal, non-commercial use, solely to identify potential properties for potential purchase; all other use is strictly prohibited and may violate relevant federal and state law. The source of the listing data is as follows: Stellar MLS (updated 4/30/26 3:05 AM) |

Listing Search



Translate Tool

Featured Listings
Land O Lakes Real Estate
$1,100,000
5 BED
3 BATH
Nestled within the gated enclave of Rose Pointe and set on a beautiful pond-view homesite, this Homes by West Bay Signat... Read More
Tampa Real Estate
$1,049,990
4 BED
3 BATH
Under Construction. UNDER CONSTRUCTION - FLOOD RESISTANT – LUXURY LIVING NEAR BAYSHORE BLVD - Unbeatable Value Prime Loc... Read More
Tampa Real Estate
$999,990
4 BED
3 BATH
Under Construction. UNDER CONSTRUCTION New Construction in Tampa Heights – Unbeatable Value & Prime Location! *Price inc... Read More
Lutz Real Estate
$945,000
4 BED
3 BATH
One or more photos have been virtually staged. One of a kind professionally designed spec home used by the builder as an... Read More
Palm Harbor Real Estate
$894,000
5 BED
3 BATH
One or more photo(s) has been virtually staged. Nestled in the sought after gated community of Foxberry Run within Ridge... Read More
Palm Harbor Real Estate
$929,900
4 BED
3 BATH
Rare opportunity to live in the highly desirable Country Woods Neighborhood within Palm Harbor/Dunedin. Beautifully kept... Read More
Reunion Real Estate
$1,485,000
5 BED
5 BATH
Custom Quality Built Home centrally located in the Reunion Florida Gated Community. 15 Minutes to Disney, 15 Minutes to ... Read More
St Petersburg Real Estate
$1,200,000
3 BED
2 BATH
Welcome to a home that has been filled with love, laughter, and countless unforgettable memories. This beautifully maint... Read More
Summerfield Real Estate
$999,999
4 BED
3 BATH
Situated on 10 private acres in Summerfield, just minutes from The Villages, this exceptional gated estate offers the pe... Read More
Sumterville Real Estate
$875,000
4 BED
3 BATH
Country Charm meets you in this 4/3 home with 37x60 pole barn with gorgeous fully fenced, landscaped 10 Acres. This is a... Read More
Contact Sandra Pardo

407-990-2746

Wendy Morris LLC

Licensed in the State of Florida
BK 3146762
16797 Broadwater Avenue
Winter Garden, Florida 34787

Your privacy is our utmost concern. We will never sell your personal information. Privacy Policy
©2026 sandrapardohomes.com - all rights reserved. | Site Map