407-990-2746
Menu

300 Newbury N Place, St Petersburg, FL

NEXT
PREV
$945,000

($239/sqft)

List Status: Active
300 Newbury N Place
St Petersburg, FL 33716


3 beds
3 baths
3950 living sqft
Top Features
  • Subdivision: Back Bay At Carillon
  • Built in  2008
  • Townhouse
Description
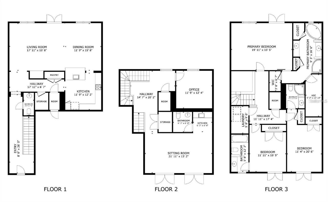
Experience elevated luxury living in this stunning three-story townhome in the highly sought-after Back Bay at Carillon, located in the heart of St. Petersburg’s premier Gateway Corridor. Offering nearly 4,000 square feet of refined living space, this exceptional residence combines upscale design, modern convenience, and an unbeatable central location just minutes from Downtown St. Petersburg, Tampa, Tampa International Airport (TPA), St. Pete-Clearwater Airport (PIE), and Florida’s award-winning Gulf beaches. Perfectly positioned for executives, relocation buyers, remote professionals, or those seeking a luxury second home, this spacious open-concept floor plan features soaring 20-foot ceilings in the main living area, 10-foot ceilings on upper levels, and abundant natural light throughout. A private elevator provides seamless access to all three floors from the oversized garage. Designed with both elegance and functionality in mind, the interior showcases solid wood cabinetry, granite countertops, crown molding, a butler’s pantry, wet bar, dedicated home office, and an expansive bonus/family room ideal for entertaining, multi-generational living, or flexible use. The luxurious primary suite offers private balcony access, generous proportions, and a peaceful retreat atmosphere, while two additional en-suite bedrooms provide comfort and privacy for guests or family. Enjoy the best of Florida living with multiple private balconies, a spacious patio overlooking tranquil lake views, and direct access to scenic walking trails and lakeside boardwalks throughout Carillon Point. Residents of Back Bay at Carillon enjoy resort-style amenities including a community pool, clubhouse, fitness center, and beautifully maintained grounds with a low-maintenance lifestyle. Conveniently located near top employers, Feather Sound Country Club, shopping, dining, and major commuter routes, this luxury St. Petersburg townhome offers the perfect blend of lifestyle, location, and value. Rare
Property Details
Property Features
Property Sub Type
Townhouse
County
Pinellas
Subdivision
BACK BAY AT CARILLON
Building Name
300
Additional Information
Additional Lease Restrictions
Confirm with Association
Additional Parcels YN
false
Additional Rooms
Den/Library/Office, Media Room
Alternate Key Folio Num
123016020300000520
Appliances
Dishwasher, Microwave, Range, Refrigerator
Approval Process
Confirm with Association
Association Approval Required YN
1
Association Email
Nmartin@pbmfla.com
Association Fee
565
Association Fee Frequency
Monthly
Association Fee Includes
Pool
Association Fee Requirement
Required
Association YN
true
Attached Garage YN
true
Available For Lease YN
1
Bathrooms Total Integer
5
Building Area Source
Public Records
Building Area Total
3950
Building Area Total Srch SqM
366.97
Building Area Units
Square Feet
Calculated List Price By Calculated SqFt
239.24
Carport YN
false
Community Features
Clubhouse, Fitness Center, Pool
Construction Materials
Block
Cooling
Central Air
Country
US
Cumulative Days On Market
76
Current Price
945000.00
Direction Faces
Northwest
Elementary School
Pinellas Central Elem-PN
Exterior Features
Balcony, Other
Fireplace YN
false
Flood Zone Code
AE
Flood Zone Date
2021-08-24
Flood Zone Panel
12103C0143H
Flooring
Carpet, Tile
Foundation Details
Slab
Furnished
Unfurnished
Garage Spaces
2
Garage YN
true
Heating
Central
High School
Pinellas Park High-PN
Homestead YN
1
Interior Features
Crown Molding, Elevator, High Ceilings, Open Floorplan, Solid Wood Cabinets, Stone Counters, Walk-In Closet(s), Wet Bar
Internet Address Display YN
true
Internet Automated Valuation Display YN
false
Internet Consumer Comment YN
false
Internet Entire Listing Display YN
true
Laundry Features
Inside, Laundry Room
Lease Restrictions YN
1
Levels
One
List AOR
Suncoast Tampa
Living Area Meters
366.97
Living Area Source
Public Records
Living Area Units
Square Feet
Lot Size Acres
0.06
Lot Size Square Feet
2464
Lot Size Square Meters
229
Middle Or Junior School
Fitzgerald Middle-PN
Minimum Lease
1-2 Years
Modification Timestamp
2026-05-27T21:35:09.859Z
Monthly HOA Amount
565.00
New Construction YN
false
Number Of Pets
4
Occupant Type
Owner
Ownership
Fee Simple
Parcel Number
12-30-16-02030-000-0520
Pet Restrictions
Confirm with Association
Pet Size
Medium (36-60 Lbs.)
Pets Allowed
Size Limit
Pool Private YN
false
Postal Code Plus 4
1307
Previous List Price
959000
Price Change Timestamp
2026-04-29T16:07:50.000Z
Public Survey Range
16
Public Survey Section
12
RATIO Current Price By Calculated SqFt
239.24
Road Surface Type
Paved
Roof
Tile
Room Count
7
Senior Community YN
false
Sewer
Public Sewer
Showing Requirements
Supra Lock Box, ShowingTime
Status Change Timestamp
2026-03-12T12:24:29.000Z
Stories Total
3
Tax Annual Amount
8536.1
Tax Block
000
Tax Book Number
134-77
Tax Legal Description
BACK BAY AT CARILLON LOT 52
Tax Lot
52
Tax Year
2024
Total Acreage
0 to less than 1/4
Total Annual Fees
6780.00
Total Monthly Fees
565.00
Township
30
Universal Property Id
US-12103-N-123016020300000520-R-N
Unparsed Address
300 NEWBURY PL N
Utilities
Electricity Connected, Sewer Connected, Water Connected
Water Source
Public
Waterfront YN
false
Neighborhood Map
Popup

Property Photos
Listing Photo
Listing Photo
Listing Photo
Listing Photo
Listing Photo
Listing Photo
Listing Photo
Listing Photo
Listing Photo
Listing Photo
Listing Photo
Listing Photo
Listing Photo
Listing Photo
Listing Photo
Listing Photo
Listing Photo
Listing Photo
Listing Photo
Listing Photo
Listing Photo
Listing Photo
Listing Photo
Listing Photo
Listing Photo
Listing Photo
Listing Photo
Listing Photo
Listing Photo
Listing Photo
Listing Photo
Listing Photo
Listing Photo
Listing Photo
Listing Photo
Listing Photo
Listing Photo
Listing Photo
Listing Photo
Listing Photo
Listing Photo
Listing Photo
Listing Photo
Listing Photo
Listing Photo
Listing Photo
Listing Photo
Listing Photo
Listing Photo
Listing Photo
Listing Photo
Listing Photo
Listing Photo
Listing Photo
Listing Photo
Listing Photo
Listing Photo
Listing Photo
Listing Photo
Listing Photo
Listing Photo
Listing Photo
Listing Photo
Listing Photo
Listing Photo
Listing Photo
Listing Photo
Listing Photo
Listing Photo
Listing Photo
Listing Photo
Listing Photo
Listing Photo
Listing Photo
Listing Photo
Listing Photo
Listing Photo
Listing Photo
Listing Photo
Listing Photo
Listing Photo
Listing Photo
Listing Photo
Listing Photo
Listing Photo
Listing Photo
Listing Photo
Listing Photo
Listing Photo
Listing Photo
Listing Photo
Listing Photo
Listing Photo
Listing Photo
Listing Photo
Listing Photo
Listing Photo
Listing Photo
Listing Photo
Listing Photo
Listing Photo
Listing Photo
Listing Photo
Listing Photo
Listing Photo
Listing Photo
Listing Photo
Listing Photo
Listing Photo
Listing Photo
Listing Photo
Listing Photo
Listing Photo
Listing Photo
Listing Photo
Listing Photo
Listing Photo
Listing Photo
Listing Photo
Listing Photo
Listing Photo
Listing Photo
Listing Photo
Listing Photo
Listing Photo
Listing Photo
Listing Photo
Listing Photo
Listing Photo
Listing Photo
Listing Photo
Listing Photo
Listing Photo
Listing Photo
Listing Photo
Listing Photo
Listing Photo
Listing Photo
Listing Photo
Listing Photo
Listing Photo
Listing Photo
Listing Photo
Listing Photo
Listing Photo
Listing Photo

MLS #MFRTB8472311 Listing courtesy of Keller Williams St Pete Realty provided by Stellar MLS.

Similar Listings

$855,000
600 3rd S Avenue
St Petersburg
3BR/3BA
| Active
$860,000
2168 9th N Avenue
St Petersburg
3BR/3BA
| Active
$860,000
2168 9th N Avenue
St Petersburg
3BR/3BA
| Active
$860,000
2168 9th N Avenue
St Petersburg
3BR/3BA
| Active



All listing information is deemed reliable but not guaranteed and should be independently verified through personal inspection by appropriate professionals. Listings displayed on this website may be subject to prior sale or removal from sale; availability of any listing should always be independent verified. Listing information is provided for consumer personal, non-commercial use, solely to identify potential properties for potential purchase; all other use is strictly prohibited and may violate relevant federal and state law. The source of the listing data is as follows: Stellar MLS (updated 5/27/26 6:56 PM) |

Listing Search



Translate Tool

Featured Listings
Apollo Beach Real Estate
$1,195,000
4 BED
3 BATH
Under contract-accepting backup offers. Welcome to an extraordinary waterfront estate—an impeccably curated coastal retr... Read More
Orlando Real Estate
$1,449,000
5 BED
4 BATH
New Construction. Price reduction!! Builder is offering a $15,000 BUYER INCENTIVE towards closing costs and pre-paids as... Read More
Orlando Real Estate
$1,479,000
5 BED
4 BATH
This beautiful new luxury construction home in College Park has been enhanced with additional upgrades and lush landscap... Read More
Winter Garden Real Estate
$1,049,900
5 BED
4 BATH
Welcome to 3208 Sailing Pier Ave, the original model home at The Estates at Lakeview Preserve. Built in 2023, this stunn... Read More
Orlando Real Estate
$1,295,000
5 BED
4 BATH
This Reef model in Laureate Park offers one of the most sought after floor plans in the neighborhood, featuring 4 bedroo... Read More
New Smyrna Beach Real Estate
$999,800
4 BED
3 BATH
One or more photo(s) has been virtually staged. This estate property offers a rare combination of some of today’s most s... Read More
Leesburg Real Estate
$899,000
4 BED
2 BATH
One or more photo(s) has been virtually staged. Exquisite Waterfront Estate on Lake Harris with Birdcage Enclosed Pool, ... Read More
Longboat Key Real Estate
$895,000
2 BED
2 BATH
Gulfside Condo on north Longboat Key with direct beach access: This 2-bedroom, with bonus room, second floor condo offer... Read More
Venice Real Estate
$1,000,000
4 BED
3 BATH
Set on 3.47 fenced acres in Venice, this exceptional 4-bedroom, 3-bath estate, a rare blend of privacy, space and modern... Read More
Sorrento Real Estate
$1,290,000
5 BED
3 BATH
Bring your horses to this very private 5 acre estate. 3912 Sq Ft block home on 5 acres with 4 stall barn including feed ... Read More
Contact Sandra Pardo

407-990-2746

Wendy Morris LLC

Licensed in the State of Florida
BK 3146762
16797 Broadwater Avenue
Winter Garden, Florida 34787

Your privacy is our utmost concern. We will never sell your personal information. Privacy Policy
©2026 sandrapardohomes.com - all rights reserved. | Site Map