407-990-2746
Menu

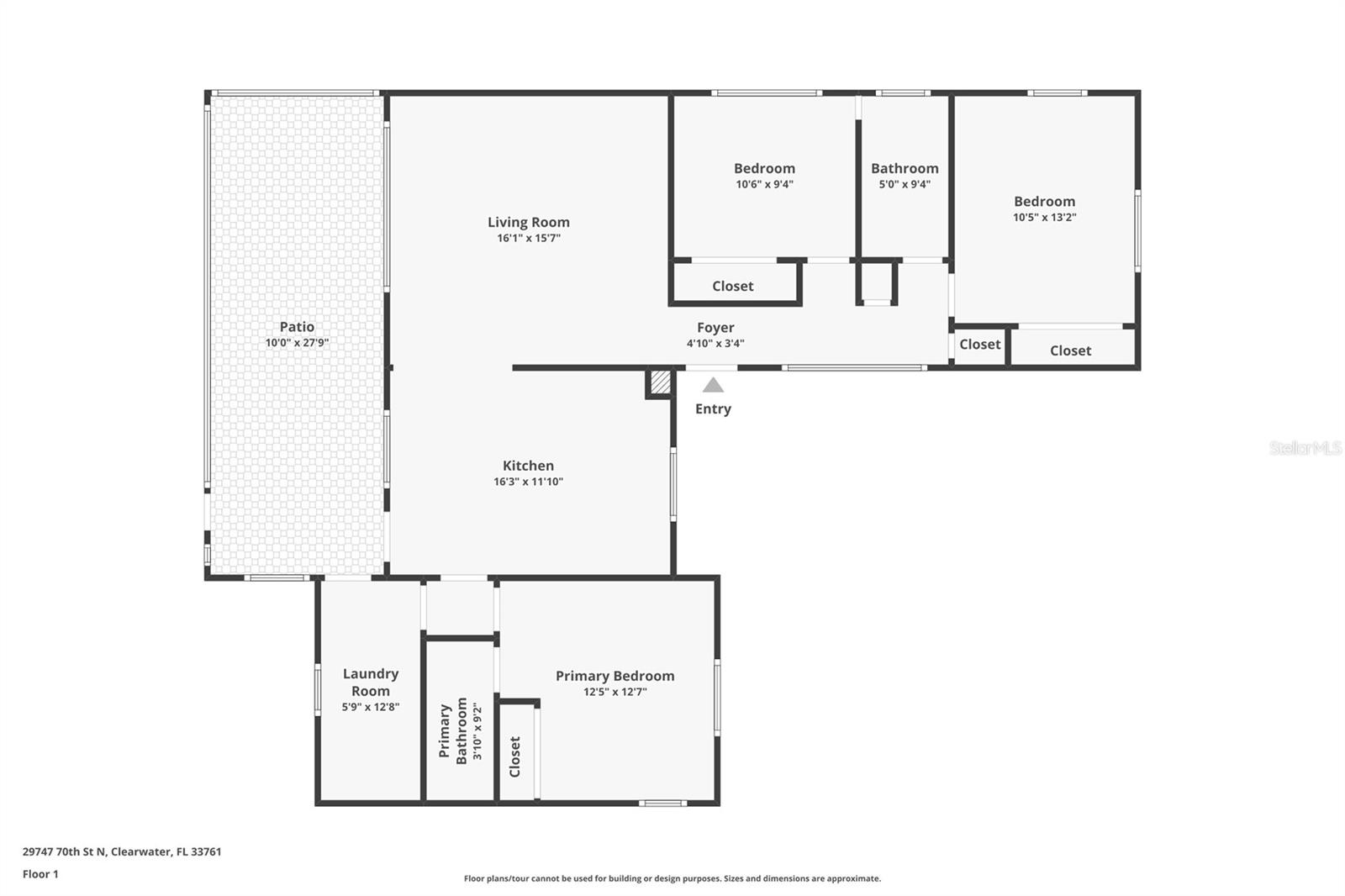
29747 70th N Street, Clearwater, FL

NEXT
PREV
$335,000

($255/sqft)

List Status: Pending
29747 70th N Street
Clearwater, FL 33761


3 beds
2 baths
1313 living sqft
Top Features
  • Subdivision: Curlew City
  • Built in  1960
  • Single Family Residence
Description
Under contract-accepting backup offers. Charming 3BR/2BA Clearwater home with 1,313 sq ft of living space. Features luxury vinyl plank flooring, tile baths, and a screened, covered back porch. Front and back yards are filled with growing fruit trees—no grass to mow! Driveway parking, no HOA, and optional furnishings including 4 smart TVs. Recent updates include: BRAND NEW ROOF (12/2025), exterior and interior paint (2022), LVP (2022), tankless water heater (2021), HVAC (2021), shower doors (12/2024), Maytag dishwasher (2021), Diivoo water system (on timer), growing fruit trees, & Vevor premium heavy duty weed barrier fabric in front and back yard (12/2021). Not in a flood or evacuation zone. Conveniently located near Honeymoon Island, Caladesi Island State Park, Clearwater Beach, Pier 60, 20 minutes from Tampa Airport and conveniently near shopping. Great opportunity for full-time living or a seasonal retreat.
Property Details
Additional Information
Additional Lease Restrictions
Check with municipality; a permit is required for Airbnb, must apply
Additional Parcels YN
false
Appliances
Dishwasher, Dryer, Microwave, Range, Refrigerator, Tankless Water Heater, Washer
Association YN
false
Available For Lease YN
1
Bathrooms Total Integer
2
Building Area Source
Public Records
Building Area Total
1596
Building Area Total Srch SqM
148.27
Building Area Units
Square Feet
Calculated List Price By Calculated SqFt
255.14
Carport YN
false
Community Features
Street Lights
Construction Materials
Block
Contract Status
Appraisal, Financing, Inspections
Cooling
Central Air
Country
US
Cumulative Days On Market
86
Current Price
335000.00
Direction Faces
West
Elementary School
Curlew Creek Elementary-PN
Expected Closing Date
2026-04-17T00:00:00.000
Fencing
Chain Link, Wood
Fireplace YN
false
Flood Zone Code
X
Flood Zone Date
2003-09-03
Flood Zone Panel
12103C0086G
Flooring
Luxury Vinyl, Tile
Foundation Details
Slab
Furnished
Negotiable
Garage YN
false
Heating
Central, Electric
High School
Countryside High-PN
Home Warranty YN
false
Interior Features
Ceiling Fans(s), Eat-in Kitchen, Split Bedroom, Thermostat, Window Treatments
Internet Address Display YN
true
Internet Automated Valuation Display YN
false
Internet Consumer Comment YN
false
Internet Entire Listing Display YN
true
Laundry Features
Laundry Room
Lease Restrictions YN
1
Levels
One
List AOR
Orlando Regional
Living Area Meters
121.98
Living Area Source
Public Records
Living Area Units
Square Feet
Lot Size Acres
0.15
Lot Size Dimensions
60x108
Lot Size Square Feet
6456
Lot Size Square Meters
600
Middle Or Junior School
Palm Harbor Middle-PN
Minimum Lease
No Minimum
Modification Timestamp
2026-03-17T12:49:09.581Z
New Construction YN
false
Occupant Type
Vacant
Other Equipment
Irrigation Equipment
Ownership
Fee Simple
Parcel Number
18 28 16 20106 019 0070
Patio And Porch Features
Covered, Rear Porch, Screened
Pets Allowed
Yes
Pool Private YN
false
Previous List Price
345000
Price Change Timestamp
2026-01-02T18:47:57.000Z
Public Survey Range
16
Public Survey Section
18
Purchase Contract Date
2026-03-17
RATIO Current Price By Calculated SqFt
255.14
Realtor Info
See Attachments, Sign
Road Responsibility
Public Maintained Road
Road Surface Type
Paved
Roof
Shingle
Room Count
7
Security Features
Security Lights, Smoke Detector(s)
Senior Community YN
false
Sewer
Public Sewer
Showing Requirements
Supra Lock Box, ShowingTime
Status Change Timestamp
2026-03-17T12:48:20.000Z
Tax Annual Amount
4407.29
Tax Block
019
Tax Book Number
51/19
Tax Legal Description
CURLEW CITY BLK S, LOT 7
Tax Lot
0070
Tax Year
2025
Total Acreage
0 to less than 1/4
Total Annual Fees
0.00
Total Monthly Fees
0.00
Township
28
Universal Property Id
US-12103-N-182816201060190070-R-N
Unparsed Address
29747 70TH ST N
Utilities
BB/HS Internet Available, Cable Available, Electricity Connected, Phone Available, Sewer Connected, Water Connected
Vegetation
Fruit Trees
Water Source
Public
Waterfront YN
false
Window Features
Blinds
Zoning
R-3
Zoning Compatible YN
1
Neighborhood Map
Popup

Property Photos
Listing Photo
Listing Photo
Listing Photo
Listing Photo
Listing Photo
Listing Photo
Listing Photo
Listing Photo
Listing Photo
Listing Photo
Listing Photo
Listing Photo
Listing Photo
Listing Photo
Listing Photo
Listing Photo
Listing Photo
Listing Photo
Listing Photo
Listing Photo
Listing Photo
Listing Photo
Listing Photo
Listing Photo
Listing Photo
Listing Photo
Listing Photo
Listing Photo
Listing Photo
Listing Photo
Listing Photo
Listing Photo
Listing Photo
Listing Photo
Listing Photo
Listing Photo
Listing Photo
Listing Photo
Listing Photo
Listing Photo
Listing Photo
Listing Photo
Listing Photo
Listing Photo

MLS #MFRTB8449292 Listing courtesy of The Wilkins Way Llc provided by Stellar MLS.

Similar Listings

$305,000
2640 Enterprise E Road
Clearwater
3BR/2BA
| Active
$309,000
2699 Seville Boulevard
Clearwater
3BR/2BA
| Active
$314,000
3054 Branch Drive
Clearwater
3BR/2BA
| Pending
$314,900
5834 Darren N Court
Clearwater
3BR/2BA
| Pending



All listing information is deemed reliable but not guaranteed and should be independently verified through personal inspection by appropriate professionals. Listings displayed on this website may be subject to prior sale or removal from sale; availability of any listing should always be independent verified. Listing information is provided for consumer personal, non-commercial use, solely to identify potential properties for potential purchase; all other use is strictly prohibited and may violate relevant federal and state law. The source of the listing data is as follows: Stellar MLS (updated 3/19/26 4:28 AM) |

Listing Search



Translate Tool

Featured Listings
St Petersburg Real Estate
$1,350,000
4 BED
3 BATH
In the beloved St Pete neighborhood of Historic Kenwood, this is custom-reimagined POOL home has been refined with moder... Read More
Clearwater Real Estate
$1,179,500
2 BED
2 BATH
LUXURY, LIGHT & LOCATION: YOUR DREAM CLEARWATER CONDO Welcome to an extraordinary, fully updated beachside residence in ... Read More
Bartow Real Estate
$849,900
3 BED
2 BATH
Country with Class or County Chic—either way, this custom 2017 home delivers both style and serenity on 5.43 acres just ... Read More
Spring Hill Real Estate
$920,000
4 BED
3 BATH
Private Gated Estate on 2.59 Acres with Resort-Style Outdoor Living Welcome to your own private retreat—situated on 2.59... Read More
Orlando Real Estate
$1,099,000
5 BED
5 BATH
LIKE NEW WITH LUXURY UPGRADES IN EAGLE CREEK! Welcome to 10151 Henbury Street, ideally positioned within Lake Nona’s pre... Read More
Land O Lakes Real Estate
$815,000
4 BED
5 BATH
Located in the gated community of Pristine Lake Preserve, this beautifully maintained Biscayne II model from Homes by We... Read More
Sarasota Real Estate
$849,654
5 BED
3 BATH
Under Construction. What's Special: Corner Lot | Cul-de-Sac Lot | Game Room | New Floor Plan. New Construction - July Co... Read More
Sarasota Real Estate
$886,990
5 BED
4 BATH
Under Construction. New and exciting, this expansive 5-bedroom, 4.5-bath residence offers 3,483 square feet of thoughtfu... Read More
Dunedin Real Estate
$889,000
3 BED
2 BATH
Welcome to San Ruffino Phase II, an elegant three-story luxury townhome offering 3 bedrooms, 2.5 bathrooms, an in-home e... Read More
Sarasota Real Estate
$1,095,000
3 BED
3 BATH
Stunning and rare opportunity in Lido Towers on Lido Key. This completely renovated 3-bedroom, 3-bath residence offers a... Read More
Contact Sandra Pardo

407-990-2746

Wendy Morris LLC

Licensed in the State of Florida
BK 3146762
16797 Broadwater Avenue
Winter Garden, Florida 34787

Your privacy is our utmost concern. We will never sell your personal information. Privacy Policy
©2026 sandrapardohomes.com - all rights reserved. | Site Map