407-990-2746
Menu

2950 Ne 20th Terrace, Ocala, FL

NEXT
PREV
$269,990

($203/sqft)

List Status: Active
2950 Ne 20th Terrace
Ocala, FL 34470


3 beds
2 baths
1328 living sqft
Top Features
  • Subdivision: Emerson Pointe
  • Built in  2025
  • Single Family Residence
Description
Property Details
Additional Information
Additional Lease Restrictions
Per HOA Guidelines
Additional Parcels YN
false
Appliances
Dishwasher, Microwave, Range
Approval Process
Per HOA Guidelines
Association Approval Required YN
1
Association Email
ayla@boydrealestategroup.com
Association Fee
95
Association Fee Frequency
Monthly
Association Fee Requirement
Required
Association YN
true
Attached Garage YN
true
Available For Lease YN
1
Bathrooms Total Integer
2
Builder License Number
CRC057592
Builder Model
Archer II
Builder Name
DR Horton INC
Building Area Source
Builder
Building Area Total
1328
Building Area Total Srch SqM
123.38
Building Area Units
Square Feet
Calculated List Price By Calculated SqFt
203.31
Carport YN
false
Construction Materials
Block
Cooling
Central Air
Country
US
Cumulative Days On Market
41
Current Price
269990.00
Direction Faces
Northeast
Elementary School
Ocala Springs Elem. School
Fireplace YN
false
Flood Zone Code
x
Flooring
Carpet, Luxury Vinyl
Foundation Details
Slab
Garage Spaces
2
Garage YN
true
Heating
Electric, Heat Pump
High School
Vanguard High School
Home Warranty YN
true
Interior Features
Open Floorplan
Internet Address Display YN
true
Internet Automated Valuation Display YN
true
Internet Consumer Comment YN
false
Internet Entire Listing Display YN
true
Laundry Features
Laundry Room
Lease Restrictions YN
1
Levels
One
List AOR
Ocala - Marion
Living Area Meters
123.38
Living Area Source
Builder
Living Area Units
Square Feet
Lot Size Acres
0.14
Lot Size Square Feet
6000
Lot Size Square Meters
557
Middle Or Junior School
Fort King Middle School
Minimum Lease
7 Months
Modification Timestamp
2025-12-16T18:20:09.557Z
Monthly HOA Amount
95.00
New Construction YN
true
Occupant Type
Vacant
Other Equipment
Irrigation Equipment
Ownership
Fee Simple
Parcel Number
24286-077-00
Permit Number
2025072325
Pet Restrictions
Per HOA Guidelines
Pets Allowed
Yes
Pool Private YN
false
Previous List Price
274070
Price Change Timestamp
2025-12-16T18:19:57.000Z
Projected Completion Date
2026-02-20T00:00:00.000
Property Condition
Under Construction
Public Remarks
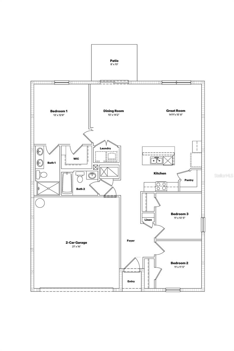
Under Construction. This single-story, all concrete block constructed 3 bedroom, 2 bathroom home features an open concept floorplan that optimizes living space. The spacious kitchen overlooks the great room, dining area, and outdoor patio. The kitchen comes full equipped with stainless-steel appliances including a built-in dishwasher, range, and microwave. The primary suite is located towards the back of the home, featuring a spacious walk-in closet and ensuite bathroom with double vanity sinks. Two additional bedrooms are located towards the front of the home and share a bathroom across the hall. Pictures, photographs, colors, features, and sizes are for illustration purposes only and will vary from the homes as built. Home and community information including pricing, included features, terms, availability and amenities are subject to change and prior sale at any time without notice or obligation. CRC057592.
Public Survey Range
22
Public Survey Section
04
RATIO Current Price By Calculated SqFt
203.31
Road Surface Type
Paved
Roof
Shingle
Room Count
4
Senior Community YN
false
Sewer
Public Sewer
Showing Requirements
Contact Call Center
Status Change Timestamp
2025-11-05T18:16:34.000Z
Tax Block
-
Tax Book Number
016/102
Tax Legal Description
SEC 04 TWP 15 RGE 22 PLAT BOOK 016 PAGE 102 EMERSON POINTE PHASE 1 LOT 77
Tax Lot
77
Tax Year
2025
Total Acreage
0 to less than 1/4
Total Annual Fees
1140.00
Total Monthly Fees
95.00
Township
15
Universal Property Id
US-12083-N-2428607700-R-N
Unparsed Address
2950 NE 20TH TER
Utilities
Other
Water Source
Public
Waterfront YN
false
Zoning
PUD
Neighborhood Map
Popup

Property Photos
Listing Photo
Listing Photo
Listing Photo
Listing Photo
Listing Photo
Listing Photo
Listing Photo
Listing Photo
Listing Photo
Listing Photo
Listing Photo
Listing Photo
Listing Photo
Listing Photo
Listing Photo
Listing Photo
Listing Photo
Listing Photo
Listing Photo
Listing Photo
Listing Photo
Listing Photo
Listing Photo
Listing Photo
Listing Photo
Listing Photo
Listing Photo
Listing Photo
Listing Photo
Listing Photo
Listing Photo
Listing Photo
Listing Photo
Listing Photo
Listing Photo
Listing Photo
Listing Photo
Listing Photo
Listing Photo
Listing Photo
Listing Photo
Listing Photo
Listing Photo
Listing Photo
Listing Photo
Listing Photo
Listing Photo
Listing Photo

MLS #MFROM712958 Listing courtesy of Dr Horton Realty Of West Central Florida provided by Stellar MLS.

Similar Listings

$243,500
870 Nw 69th Street
Ocala
3BR/2BA
| Pending
$244,900
200 Oak Lane Run
Ocala
3BR/2BA
| Active
$244,900
2 Pine Pass Drive
Ocala
3BR/2BA
| Active
$244,900
7 Poplar Court
Ocala
3BR/2BA
| Active



All listing information is deemed reliable but not guaranteed and should be independently verified through personal inspection by appropriate professionals. Listings displayed on this website may be subject to prior sale or removal from sale; availability of any listing should always be independent verified. Listing information is provided for consumer personal, non-commercial use, solely to identify potential properties for potential purchase; all other use is strictly prohibited and may violate relevant federal and state law. The source of the listing data is as follows: Stellar MLS (updated 12/19/25 6:20 AM) |

Listing Search



Translate Tool

Featured Listings
Longboat Key Real Estate
$830,000
2 BED
2 BATH
Dover Real Estate
$1,290,000
4 BED
3 BATH
Clearwater Beach Real Estate
$1,247,000
4 BED
3 BATH
Tampa Real Estate
$899,000
3 BED
3 BATH
Bradenton Real Estate
$844,900
3 BED
3 BATH
Bradenton Real Estate
$1,125,000
3 BED
3 BATH
Davenport Real Estate
$999,000
6 BED
4 BATH
Treasure Island Real Estate
$829,000
2 BED
2 BATH
North Redington Beach Real Estate
$1,240,000
2 BED
2 BATH
Bradenton Real Estate
$999,999
4 BED
3 BATH
Contact Sandra Pardo

407-990-2746

Wendy Morris LLC

Licensed in the State of Florida
BK 3146762
16797 Broadwater Avenue
Winter Garden, Florida 34787

Your privacy is our utmost concern. We will never sell your personal information. Privacy Policy
©2025 sandrapardohomes.com - all rights reserved. | Site Map