407-990-2746
Menu

2936 W Knights Avenue Unit: Unit: B, Tampa, FL

NEXT
PREV
$1,150,000

($504/sqft)

List Status: Active
2936 W Knights Avenue
Tampa, FL 33611


3 beds
2 baths
2284 living sqft
Top Features
  • Subdivision: Bay Bluff
  • Built in  2007
  • Townhouse
Description
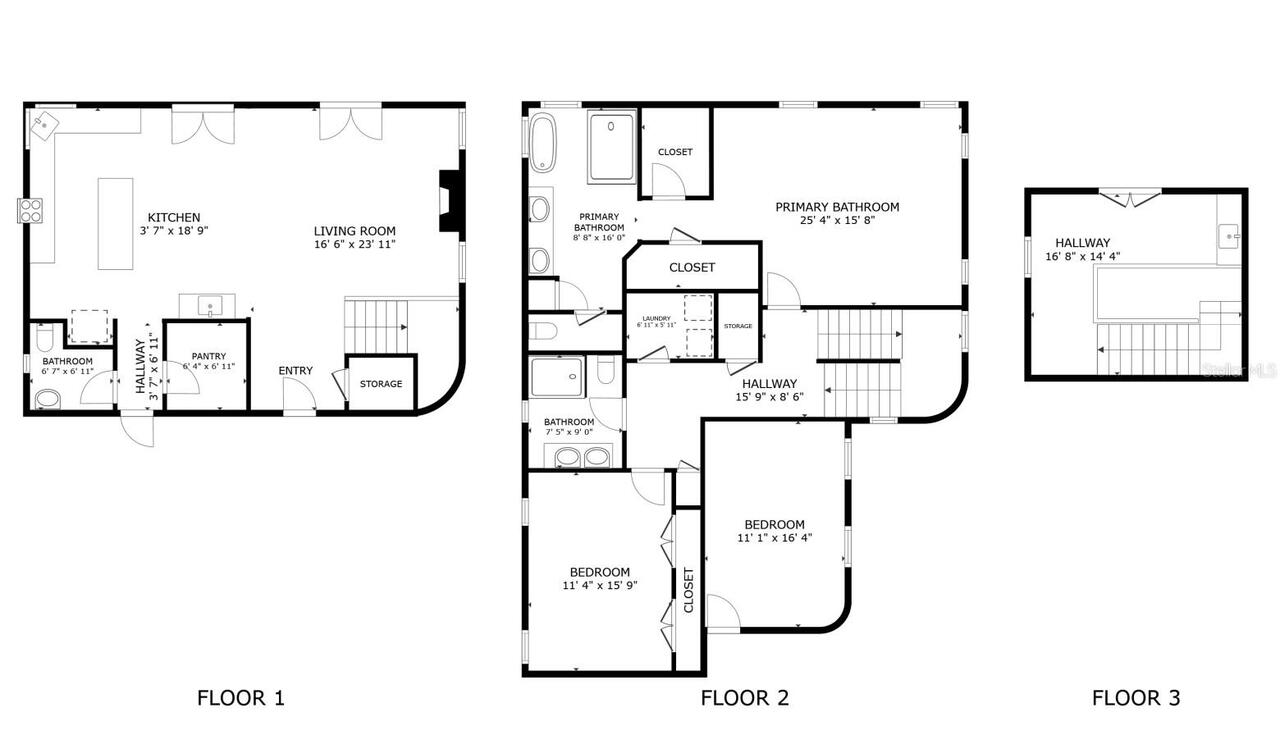
This exceptional Mediterranean townhome is one of a kind, offering a rare combination of space, privacy, and livability just steps from Bayshore Boulevard. With only one neighboring residence, three open exterior walls, a wide footprint, a private backyard, first-floor living and kitchen spaces, and no HOA, it truly lives like a single-family home. Plus, no flood insurance required (Flood Zone X) despite being steps from the iconic Bayshore Boulevard. Immediately upon entry, the light-filled first floor wows for both everyday living and easy entertaining. Real hardwood floors, tall ceilings, abundant windows, and thoughtful indoor–outdoor flow create an open, airy feel throughout, with exterior access directly to the backyard through two sets of double French doors. The gourmet kitchen features an oversized island, Taj Mahal quartzite countertops, tumbled marble backsplash, gas range with custom hood, premium KitchenAid and Jenn-Air appliances, and Newport Brass fixtures. A matching wet bar sits conveniently adjacent to the dining area, which flows seamlessly into the sun-filled living room anchored by a limestone-clad fireplace. A stylish powder room, sizable pantry, and storage-ready entry closet round out the main floor. All three oversized bedrooms are located on the second level, accessed by an extra-wide, gracefully curved staircase accented by designer lighting and architectural detailing. The spacious primary suite features two generously built-out walk-in closets and a spa-inspired bath with a freestanding soaking tub, glass-enclosed shower with body sprays, Delta fixtures, a private water closet, and a linen closet. The second bathroom is finished with stylish Mediterranean tile and Moen fixtures, and a large laundry room is conveniently located on the same floor. Above, a third-level observatory lounge with a full wet bar opens to a private 1,300-square-foot rooftop terrace, a rare and flexible bonus space ideal for outdoor living. This layout, location,
Property Details
Additional Information
Additional Parcels YN
false
Appliances
Dishwasher, Disposal, Dryer, Exhaust Fan, Microwave, Range Hood, Washer
Architectural Style
Mediterranean
Association YN
false
Attached Garage YN
true
Available For Lease YN
1
Bathrooms Total Integer
3
Building Area Source
Public Records
Building Area Total
2784
Building Area Total Srch SqM
258.64
Building Area Units
Square Feet
Calculated List Price By Calculated SqFt
503.50
Carport YN
false
Construction Materials
Stucco
Cooling
Zoned
Country
US
Cumulative Days On Market
6
Current Price
1150000.00
Direction Faces
North
Elementary School
Roosevelt-HB
Exterior Features
Awning(s), Balcony, Shade Shutter(s)
Fireplace Features
Gas
Fireplace YN
true
Flood Zone Code
X
Flooring
Ceramic Tile, Terrazzo, Wood
Foundation Details
Slab
Furnished
Negotiable
Garage Spaces
2
Garage YN
true
Heating
Central, Zoned
High School
Plant-HB
Home Warranty YN
false
Interior Features
Built-in Features, Ceiling Fans(s), Coffered Ceiling(s), Crown Molding, Dry Bar, High Ceilings, Kitchen/Family Room Combo, Living Room/Dining Room Combo, Open Floorplan, PrimaryBedroom Upstairs, Solid Surface Counters, Solid Wood Cabinets, Split Bedroom, Stone Counters, Tray Ceiling(s), Walk-In Closet(s), Wet Bar, Window Treatments
Internet Address Display YN
true
Internet Automated Valuation Display YN
false
Internet Consumer Comment YN
false
Internet Entire Listing Display YN
true
Laundry Features
Electric Dryer Hookup, Gas Dryer Hookup, Laundry Room
Levels
Three Or More
List AOR
Suncoast Tampa
Living Area Meters
212.19
Living Area Source
Public Records
Living Area Units
Square Feet
Lot Features
City Limits
Lot Size Acres
0.06
Lot Size Square Feet
3000
Lot Size Square Meters
279
Middle Or Junior School
Coleman-HB
Minimum Lease
1-7 Days
Modification Timestamp
2026-03-26T13:54:10.281Z
New Construction YN
false
Occupant Type
Owner
Other Equipment
Irrigation Equipment
Ownership
Fee Simple
Parcel Number
A-03-30-18-3VN-000002-00008.B
Patio And Porch Features
Covered, Deck, Patio, Porch
Pets Allowed
Cats OK, Dogs OK, Yes
Pool Private YN
false
Property Attached YN
true
Property Description
End Unit
Public Survey Range
18
Public Survey Section
03
RATIO Current Price By Calculated SqFt
503.50
Road Surface Type
Asphalt
Roof
Other, Tile
Room Count
6
Security Features
Security System Owned
Senior Community YN
false
Sewer
Public Sewer
Showing Requirements
Call Listing Agent, See Remarks
Status Change Timestamp
2026-03-26T13:22:24.000Z
Tax Annual Amount
12212.3
Tax Block
000002
Tax Book Number
0003/0002
Tax Legal Description
BAY BLUFF E 1/2 OF LOT 8 BLOCK 2
Tax Lot
000080
Tax Year
2024
Total Acreage
0 to less than 1/4
Total Annual Fees
0.00
Total Monthly Fees
0.00
Township
30
Universal Property Id
US-12057-N-033018300000200008-S-B
Unparsed Address
2936 W KNIGHTS AVE #B
Utilities
Public
Water Source
Public
Waterfront YN
false
Zoning
RM-12
Zoning Compatible YN
1
Neighborhood Map
Popup

Property Photos
Listing Photo
Listing Photo
Listing Photo
Listing Photo
Listing Photo
Listing Photo
Listing Photo
Listing Photo
Listing Photo
Listing Photo
Listing Photo
Listing Photo
Listing Photo
Listing Photo
Listing Photo
Listing Photo
Listing Photo
Listing Photo
Listing Photo
Listing Photo
Listing Photo
Listing Photo
Listing Photo
Listing Photo
Listing Photo
Listing Photo
Listing Photo
Listing Photo
Listing Photo
Listing Photo
Listing Photo
Listing Photo
Listing Photo
Listing Photo
Listing Photo
Listing Photo
Listing Photo
Listing Photo
Listing Photo
Listing Photo
Listing Photo
Listing Photo
Listing Photo
Listing Photo
Listing Photo
Listing Photo
Listing Photo
Listing Photo
Listing Photo
Listing Photo
Listing Photo
Listing Photo
Listing Photo
Listing Photo
Listing Photo
Listing Photo
Listing Photo
Listing Photo
Listing Photo
Listing Photo
Listing Photo
Listing Photo
Listing Photo
Listing Photo
Listing Photo
Listing Photo
Listing Photo
Listing Photo
Listing Photo
Listing Photo
Listing Photo
Listing Photo
Listing Photo
Listing Photo
Listing Photo
Listing Photo
Listing Photo
Listing Photo
Listing Photo
Listing Photo
Listing Photo
Listing Photo
Listing Photo
Listing Photo
Listing Photo
Listing Photo
Listing Photo
Listing Photo
Listing Photo
Listing Photo
Listing Photo
Listing Photo
Listing Photo
Listing Photo
Listing Photo
Listing Photo

MLS #MFRTB8490755 Listing courtesy of Jgz Properties provided by Stellar MLS.

Similar Listings

$1,050,000
2208 N Boulevard
Tampa
3BR/2BA
| Active
$1,059,000
5823 Bowen Daniel Drive
Tampa
3BR/2BA
| Active
$1,070,000
312 S Arrawana Avenue
Tampa
3BR/2BA
| Active
$1,075,000
4625 W Longfellow Avenue
Tampa
3BR/2BA
| Pending



All listing information is deemed reliable but not guaranteed and should be independently verified through personal inspection by appropriate professionals. Listings displayed on this website may be subject to prior sale or removal from sale; availability of any listing should always be independent verified. Listing information is provided for consumer personal, non-commercial use, solely to identify potential properties for potential purchase; all other use is strictly prohibited and may violate relevant federal and state law. The source of the listing data is as follows: Stellar MLS (updated 3/26/26 10:58 AM) |

Listing Search



Translate Tool

Featured Listings
Celebration Real Estate
$901,990
3 BED
2 BATH
Under Construction. The Mackinac is a stunning single-story home in Celebration, FL, featuring 10-foot ceilings, an expa... Read More
Montverde Real Estate
$1,149,000
4 BED
4 BATH
Welcome to this stunning, fully renovated modern farmhouse nestled within the peaceful Vinola Gardens neighborhood in th... Read More
St Petersburg Real Estate
$949,000
3 BED
2 BATH
One or more photo(s) has been virtually staged. New Construction, NO HOA, NO Flood Insurance and up to $10,000 towards r... Read More
Punta Gorda Real Estate
$1,475,000
3 BED
3 BATH
HUGE PRICE ADJUSTMENT!!! DON'T MISS OUT! A WORK OF ART, CASUAL-MODERN ELEGANCE - designed for contemporary - Florida wat... Read More
Sarasota Real Estate
$839,999
6 BED
4 BATH
Rare. Refined. Ready. This is the home Sarasota buyers have been waiting for — a meticulously maintained, one-owner esta... Read More
Tampa Real Estate
$875,000
4 BED
3 BATH
One or more photo(s) has been virtually staged. Just steps from Midtown and within the coveted Mitchell, Wilson, and Pla... Read More
New Port Richey Real Estate
$869,000
3 BED
2 BATH
This Key West style Elevated home did not flood during hurricane Helene. It boasts 131’ of seawall frontage on the deep ... Read More
Tampa Real Estate
$944,900
4 BED
3 BATH
Welcome to this brand-new home, crafted by a local builder and architect in the Tampa Bay area. It promises exceptional ... Read More
Lithia Real Estate
$849,000
5 BED
4 BATH
WESTBAY POOL HOME - Located in the heart of FishHawk Ranch’s highly desirable Garden District, this elegant WestBay Cala... Read More
Loxahatchee Real Estate
$1,200,000
3 BED
2 BATH
Live Where the World Comes to Ride Welcome to your own slice of equestrian paradise just minutes from Wellington, the he... Read More
Contact Sandra Pardo

407-990-2746

Wendy Morris LLC

Licensed in the State of Florida
BK 3146762
16797 Broadwater Avenue
Winter Garden, Florida 34787

Your privacy is our utmost concern. We will never sell your personal information. Privacy Policy
©2026 sandrapardohomes.com - all rights reserved. | Site Map