407-990-2746
Menu

2914 Dick Wilson Drive, Sarasota, FL

NEXT
PREV
$1,574,000

($444/sqft)

List Status: Active
2914 Dick Wilson Drive
Sarasota, FL 34240


4 beds
4 baths
3546 living sqft
Top Features
  • View: Park/Greenbelt
  • Subdivision: Laurel Oak Estates Sec 02
  • Built in  1994
  • Single Family Residence
Description
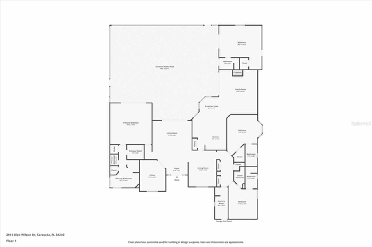
Prepare to fall in love with this exquisite four-bedroom, four-bath, three-car garage, pool residence on a generous, almost-acre, lot in Sarasota’s Laurel Oak Estates. Entering the driveway, you will instantly appreciate the *Brand new* flat tile roof installed using the Hybrid system for attaching tiles involves 2 Muro Coated Tile Screws and Tilebond tile adhesive on the tile ensuring peace of mind for decades to come. As you exit your vehicle, the property's allure begins to unfold with the lush, mature landscaping, where majestic Oaks provide a serene canopy of shade. A convenient circular driveway welcomes you, leading to a grand double-door entrance that sets the stage for what lies beyond in 3,546 square feet under air. Upon stepping in, the elegance continues with luxurious Italian tile flooring and vaulted ceilings that guide you throughout the home. Your eyes are naturally drawn to the spacious screened-in lanai and the inviting gas-heated pool with connected spa, promising endless relaxation, and entertainment. The heart of the home Kraftmaid kitchen features new Bosch appliances and instant hot water dispenser, soft-close drawers and granite countertop extending seamlessly your outdoor dining experience through the pass-through window. The primary en-suite is a sanctuary of modern elegance, featuring ample closet space, completely updated and redesigned bath with a walk-in shower, double vanity with soft close drawers and standalone soaking tub. Unique fourth bedroom stands out with its versatility, serving as an ideal home office or a private Casita / mother-in-law suite, complete with its own separate outdoor entrance. This space offers privacy and independence for extended family or work-from-home professionals. The residence has been completely replumbed in November 2024 with durable, long-lasting PEX piping. The home has new solid wood doors throughout, and a new air conditioner installed in May 2025. The fully fenced in backyard and separate side-ya
Property Details
Additional Information
Accessibility Features
Accessible Bedroom, Accessible Entrance, Accessible Kitchen Appliances, Accessible Central Living Area
Additional Lease Restrictions
Please see HOA rules and regulations
Additional Parcels YN
false
Additional Rooms
Den/Library/Office, Family Room, Formal Dining Room Separate, Formal Living Room Separate, Interior In-Law Suite w/Private Entry
Alternate Key Folio Num
0241010022
Appliances
Built-In Oven, Cooktop, Dishwasher, Dryer, Ice Maker, Microwave, Refrigerator, Washer, Wine Refrigerator
Approval Process
Please see HOA rules and regulations
Architectural Style
Custom
Association Amenities
Cable TV, Fence Restrictions, Gated, Security
Association Approval Required YN
1
Association Email
Locamanager@comcast.net
Association Fee
1036
Association Fee Frequency
Quarterly
Association Fee Requirement
Required
Association URL
https://www.laureloakhoa.com/community
Association YN
true
Attached Garage YN
true
Available For Lease YN
1
Bathrooms Total Integer
4
Building Area Source
Public Records
Building Area Total
4696
Building Area Total Srch SqM
436.27
Building Area Units
Square Feet
Calculated List Price By Calculated SqFt
443.88
Carport YN
false
Community Features
Deed Restrictions, Gated Community - Guard, Golf Carts OK, Golf, Sidewalks, Special Community Restrictions
Construction Materials
Block
Cooling
Central Air
Country
US
Cumulative Days On Market
144
Current Price
1574000.00
Direction Faces
Southeast
Elementary School
Tatum Ridge Elementary
Exterior Features
Dog Run, French Doors, Lighting, Outdoor Shower, Rain Gutters, Sidewalk, Sliding Doors
Fencing
Chain Link, Fenced, Wood
Fireplace Features
Family Room, Gas, Stone
Fireplace YN
true
Flood Zone Code
x500
Flooring
Ceramic Tile
Foundation Details
Slab
Garage Dimensions
22X33
Garage Spaces
3
Garage YN
true
Heating
Central
High School
Sarasota High
Homestead YN
1
Interior Features
Accessibility Features, Built-in Features, Cathedral Ceiling(s), Ceiling Fans(s), Crown Molding, Eat-in Kitchen, High Ceilings, Kitchen/Family Room Combo, Open Floorplan, Primary Bedroom Main Floor, Solid Wood Cabinets, Split Bedroom, Stone Counters, Tray Ceiling(s), Vaulted Ceiling(s), Walk-In Closet(s)
Internet Address Display YN
true
Internet Automated Valuation Display YN
false
Internet Consumer Comment YN
false
Internet Entire Listing Display YN
true
Laundry Features
Laundry Room
Lease Restrictions YN
1
Levels
One
List AOR
Sarasota - Manatee
Living Area Meters
329.43
Living Area Source
Public Records
Living Area Units
Square Feet
Lot Features
In County, Landscaped, Paved, Private
Lot Size Acres
0.86
Lot Size Square Feet
37388
Lot Size Square Meters
3473
Middle Or Junior School
McIntosh Middle
Minimum Lease
6 Months
Modification Timestamp
2025-10-21T14:49:08.975Z
Monthly HOA Amount
345.33
New Construction YN
false
Num Times per Year
1
Number Of Pets
2
Occupant Type
Owner
Other Equipment
Irrigation Equipment
Ownership
Fee Simple
Parcel Number
0241010022
Pet Size
Extra Large (101+ Lbs.)
Pets Allowed
Dogs OK, Number Limit, Yes
Pool Dimensions
15X25
Pool Private YN
true
Postal Code Plus 4
8730
Public Survey Range
19E
Public Survey Section
32
RATIO Current Price By Calculated SqFt
443.88
Realtor Info
No Sign
Road Surface Type
Asphalt
Roof
Tile
Room Count
10
SW Subdiv Community Name
Laurel Oak Estates
Senior Community YN
false
Sewer
Public Sewer
Showing Requirements
24 Hour Notice, Appointment Only, Listing Agent Must Accompany, See Remarks, ShowingTime
Spa Features
Heated, In Ground
Spa YN
true
Status Change Timestamp
2025-05-30T23:58:56.000Z
Stories Total
1
Tax Annual Amount
5324.47
Tax Book Number
34-11
Tax Legal Description
LOT 84 LAUREL OAK ESTATES SEC 2
Tax Lot
84
Tax Year
2024
Total Acreage
1/2 to less than 1
Total Annual Fees
4144.00
Total Monthly Fees
345.33
Township
36S
Universal Property Id
US-12115-N-0241010022-R-N
Unparsed Address
2914 DICK WILSON DR
Utilities
Cable Connected, Electricity Connected, Propane
Vegetation
Fruit Trees, Mature Landscaping, Oak Trees
Water Source
Public
Waterfront YN
false
Zoning
RE2
Neighborhood Map
Popup

Property Photos
Listing Photo
Listing Photo
Listing Photo
Listing Photo
Listing Photo
Listing Photo
Listing Photo
Listing Photo
Listing Photo
Listing Photo
Listing Photo
Listing Photo
Listing Photo
Listing Photo
Listing Photo
Listing Photo
Listing Photo
Listing Photo
Listing Photo
Listing Photo
Listing Photo
Listing Photo
Listing Photo
Listing Photo
Listing Photo
Listing Photo
Listing Photo
Listing Photo
Listing Photo
Listing Photo
Listing Photo
Listing Photo
Listing Photo
Listing Photo
Listing Photo
Listing Photo
Listing Photo
Listing Photo
Listing Photo
Listing Photo
Listing Photo
Listing Photo
Listing Photo
Listing Photo
Listing Photo
Listing Photo
Listing Photo
Listing Photo
Listing Photo
Listing Photo
Listing Photo
Listing Photo
Listing Photo
Listing Photo
Listing Photo
Listing Photo
Listing Photo
Listing Photo
Listing Photo
Listing Photo
Listing Photo
Listing Photo
Listing Photo
Listing Photo
Listing Photo
Listing Photo
Listing Photo
Listing Photo
Listing Photo
Listing Photo
Listing Photo
Listing Photo
Listing Photo
Listing Photo
Listing Photo
Listing Photo
Listing Photo
Listing Photo
Listing Photo
Listing Photo
Listing Photo
Listing Photo
Listing Photo
Listing Photo
Listing Photo
Listing Photo
Listing Photo
Listing Photo
Listing Photo
Listing Photo
Listing Photo
Listing Photo
Listing Photo
Listing Photo
Listing Photo
Listing Photo
Listing Photo
Listing Photo
Listing Photo
Listing Photo
Listing Photo
Listing Photo
Listing Photo
Listing Photo
Listing Photo
Listing Photo
Listing Photo
Listing Photo
Listing Photo
Listing Photo
Listing Photo
Listing Photo
Listing Photo
Listing Photo
Listing Photo
Listing Photo
Listing Photo
Listing Photo
Listing Photo
Listing Photo
Listing Photo
Listing Photo
Listing Photo
Listing Photo
Listing Photo
Listing Photo
Listing Photo
Listing Photo
Listing Photo
Listing Photo
Listing Photo
Listing Photo
Listing Photo
Listing Photo
Listing Photo
Listing Photo
Listing Photo
Listing Photo
Listing Photo
Listing Photo
Listing Photo
Listing Photo
Listing Photo
Listing Photo
Listing Photo
Listing Photo
Listing Photo
Listing Photo
Listing Photo
Listing Photo
Listing Photo
Listing Photo
Listing Photo
Listing Photo
Listing Photo
Listing Photo
Listing Photo
Listing Photo
Listing Photo
Listing Photo
Listing Photo
Listing Photo

MLS #MFRA4654292 Listing courtesy of Premier Sotheby's International Realty provided by Stellar MLS.

Similar Listings

$1,425,000
12432 Golden Sage Drive
Sarasota
4BR/4BA
| Active
$1,465,990
6341 Isla Del Ray Avenue
Sarasota
4BR/4BA
| Pending
$1,495,000
1504 Corfu Place
Sarasota
4BR/4BA
| Active
$1,495,000
7872 Mainsail Lane
Sarasota
4BR/4BA
| Active



All listing information is deemed reliable but not guaranteed and should be independently verified through personal inspection by appropriate professionals. Listings displayed on this website may be subject to prior sale or removal from sale; availability of any listing should always be independent verified. Listing information is provided for consumer personal, non-commercial use, solely to identify potential properties for potential purchase; all other use is strictly prohibited and may violate relevant federal and state law. The source of the listing data is as follows: Stellar MLS (updated 4/12/26 12:11 PM) |

Listing Search



Translate Tool

Featured Listings
Indian Shores Real Estate
$855,000
3 BED
3 BATH
Rare Coastal Opportunity-Water Views+ Beach Access+ Just Renovated +3 Full Baths Under 900K! Wake up to tranquil water v... Read More
Sarasota Real Estate
$950,000
2 BED
2 BATH
Lakefront Luxury Living, in Lakehouse Cove at Waterside. This custom home showcases unparalleled upgrades and designer f... Read More
Bradenton Real Estate
$800,000
5 BED
4 BATH
An exceptional residence that truly redefines elegance, comfort, and Florida living. Located in the sought-after gated c... Read More
Clearwater Beach Real Estate
$950,000
2 BED
2 BATH
Now priced to sell, one of the best opportunities on Clearwater beach. Wake up to the sound of waves and end your day wi... Read More
St Petersburg Real Estate
$925,000
5 BED
4 BATH
Under contract-accepting backup offers. Discover the pinnacle of modern living in the heart of St. Petersburg's vibrant ... Read More
Clearwater Real Estate
$1,100,000
5 BED
3 BATH
Stunning Executive Home in Highly Sought-After Countrypark subdivision. Nestled on a quiet cul-de-sac in one of Clearwat... Read More
Orlando Real Estate
$1,229,900
4 BED
3 BATH
One or more photo(s) has been virtually staged. NEW CONSTRUCTION IN COLLEGE PARK!! PRICE IMPROVEMENT!! Welcome to the vi... Read More
St Petersburg Real Estate
$1,300,000
3 BED
2 BATH
Live the ultimate Florida lifestyle in this waterfront pool home on Boca Ciega Bay. Welcome to 7172 S Shore Drive in Sou... Read More
Orlando Real Estate
$810,000
3 BED
2 BATH
Exquisite Fully Renovated Golf-Front Residence in the Heart of Dr. Phillips Presenting a rare opportunity to own a compl... Read More
Lithia Real Estate
$850,000
3 BED
2 BATH
One or more photo(s) has been virtually staged. Welcome to your private Lithia country estate on 5.18 acres, where you c... Read More
Contact Sandra Pardo

407-990-2746

Wendy Morris LLC

Licensed in the State of Florida
BK 3146762
16797 Broadwater Avenue
Winter Garden, Florida 34787

Your privacy is our utmost concern. We will never sell your personal information. Privacy Policy
©2026 sandrapardohomes.com - all rights reserved. | Site Map