407-990-2746
Menu

27102 Harbour Oaks Boulevard, Punta Gorda, FL

NEXT
PREV
$389,000

($184/sqft)

List Status: Pending
27102 Harbour Oaks Boulevard
Punta Gorda, FL 33983


3 beds
2 baths
2115 living sqft
Top Features
  • View: Park/Greenbelt, Trees/Woods
  • Subdivision: Harbour Heights
  • Built in  1995
  • Single Family Residence
Description
Property Details
Additional Information
Additional Parcels YN
false
Alternate Key Folio Num
402310102014
Appliances
Dishwasher, Dryer, Microwave, Range, Refrigerator, Washer
Approval Process
follow the docs attached
Association Approval Required YN
1
Association Email
mike.sanchez@alliantproperty.com
Association Fee
185
Association Fee Frequency
Monthly
Association Fee Requirement
Required
Association YN
true
Attached Garage YN
true
Available For Lease YN
1
Bathrooms Total Integer
2
Building Area Source
Public Records
Building Area Total
2772
Building Area Total Srch SqM
257.53
Building Area Units
Square Feet
Calculated List Price By Calculated SqFt
183.92
Carport YN
false
Construction Materials
Stucco
Contract Status
Appraisal, Financing, Inspections
Cooling
Central Air
Country
US
Cumulative Days On Market
184
Current Price
389000.00
Direction Faces
South
Expected Closing Date
2026-02-12T00:00:00.000
Exterior Features
Sidewalk, Tennis Court(s)
Fireplace YN
false
Flood Zone Code
X
Flooring
Ceramic Tile
Foundation Details
Slab
Garage Spaces
2
Garage YN
true
Heating
Central
Homestead YN
1
Interior Features
Built-in Features, Ceiling Fans(s), Primary Bedroom Main Floor, Walk-In Closet(s)
Internet Address Display YN
true
Internet Automated Valuation Display YN
false
Internet Consumer Comment YN
true
Internet Entire Listing Display YN
true
Laundry Features
Inside
Levels
One
List AOR
Port Charlotte
Living Area Meters
196.49
Living Area Source
Public Records
Living Area Units
Square Feet
Lot Size Acres
0.23
Lot Size Square Feet
9999
Lot Size Square Meters
929
Minimum Lease
3 Months
Modification Timestamp
2026-01-16T18:00:09.539Z
Monthly HOA Amount
185.00
New Construction YN
false
Number Of Pets
2
Occupant Type
Vacant
Ownership
Fee Simple
Parcel Number
402310102014
Patio And Porch Features
Screened
Pets Allowed
Cats OK, Dogs OK, Number Limit, Yes
Pool Private YN
true
Postal Code Plus 4
6506
Previous List Price
399000
Price Change Timestamp
2026-01-11T16:27:39.000Z
Public Remarks
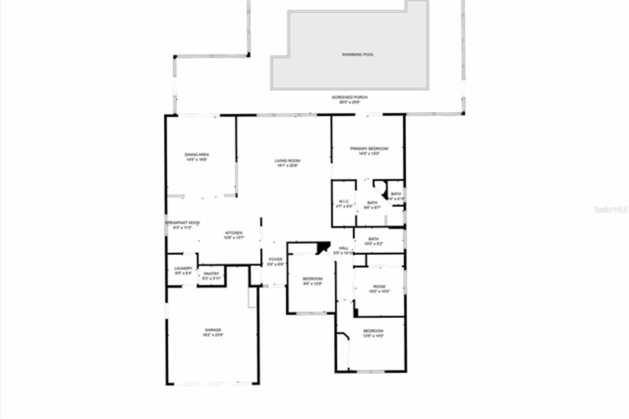
Under contract-accepting backup offers. AMAZING DEAL in the desirable gated community of Harbour Oaks-a fantastic value with great potential!!! NEW IMPROVED PRICE!!! This well-built residence needs only a few cosmetic updates and minor repairs to restore its original charm. Ideal for first-time buyers, snow birds, or investors seeking a quick-value renovation. Dont miss the Opportunity to make this Harbour Oaks property your own-Priced to Sell and Easy to Show!! !SPECIAL FINANCING OPPORTUNITY ! 1/0 temporary rate buydown that will reduce your monthly payments is available via our preferred lender!!! Harbour Oaks is a secluded neighborhood nestled alongside the scenic Peace River Preserve. This private enclave is known for its beautifully landscaped, tree-lined streets and charming atmosphere. Residents enjoy exclusive access to community amenities including a playground, tennis and basketball courts, and a variety of family-friendly events hosted by an active social committee, such as a Halloween hayride, holiday lighting party, Easter egg hunt, and annual neighborhood garage sale. This well-designed 3-bedroom, 2-bathroom home offers over 2, 000 square feet of living space and a smart split floor plan for added privacy and comfort. Featuring both a living room and family room, a dining area, and a flexible den/office space, this home has room for everyone. The spacious kitchen includes ample cabinetry and stainless steel appliances, with potential for a few updates to bring it to its full modern potential. The Laundry is right off the kitchen featuring Whirpool Washer and Dryer and a good size closet. Step outside to your extended lanai and sparkling blue pool, perfectly framed by a lush, tropical greenbelt—no rear neighbors in sight! It’s the perfect spot to enjoy your morning coffee while listening to the serene sounds of Florida’s native birds. Additional highlights include: • Tile flooring throughout • Generously sized primary suite with walk-in closet and updated en-suite bath • AC (2018) • Updated electrical • Durable metal roof (2005) • 2-car garage • Hurricane shutters • Extra parking pad
Public Survey Range
23E
Public Survey Section
10
Purchase Contract Date
2026-01-11
RATIO Current Price By Calculated SqFt
183.92
Road Surface Type
Paved
Roof
Metal
Room Count
3
SW Subdiv Community Name
Harbour Oaks
Senior Community YN
false
Sewer
Public Sewer
Showing Requirements
Combination Lock Box
Status Change Timestamp
2026-01-12T02:15:13.000Z
Stories Total
1
Tax Annual Amount
6178.36
Tax Block
255
Tax Book Number
4-50
Tax Legal Description
HBH 014 0255 0038 HARBOUR HEIGHTS SEC 14 BLK 255 LTS 38 & 39 604/188 CD1346/1205 1386/746 1390/553 CD1394/1142 E1414/409 1517/50 2509/706 4460/1899 AFF4577/403-MF
Tax Lot
38
Tax Year
2024
Total Acreage
0 to less than 1/4
Total Annual Fees
2220.00
Total Monthly Fees
185.00
Township
40S
Universal Property Id
US-12015-N-402310102014-R-N
Unparsed Address
27102 HARBOUR OAKS BLVD
Utilities
Public
Vegetation
Trees/Landscaped
Water Source
Public
Waterfront YN
false
Zoning
RSF3.5
Neighborhood Map
Popup

Property Photos
Listing Photo
Listing Photo
Listing Photo
Listing Photo
Listing Photo
Listing Photo
Listing Photo
Listing Photo
Listing Photo
Listing Photo
Listing Photo
Listing Photo
Listing Photo
Listing Photo
Listing Photo
Listing Photo
Listing Photo
Listing Photo
Listing Photo
Listing Photo
Listing Photo
Listing Photo
Listing Photo
Listing Photo
Listing Photo
Listing Photo
Listing Photo
Listing Photo
Listing Photo
Listing Photo
Listing Photo
Listing Photo
Listing Photo
Listing Photo
Listing Photo
Listing Photo
Listing Photo
Listing Photo
Listing Photo
Listing Photo
Listing Photo
Listing Photo
Listing Photo
Listing Photo
Listing Photo
Listing Photo
Listing Photo
Listing Photo
Listing Photo
Listing Photo
Listing Photo
Listing Photo
Listing Photo
Listing Photo
Listing Photo
Listing Photo
Listing Photo
Listing Photo
Listing Photo
Listing Photo
Listing Photo
Listing Photo
Listing Photo
Listing Photo
Listing Photo
Listing Photo
Listing Photo
Listing Photo
Listing Photo
Listing Photo
Listing Photo
Listing Photo
Listing Photo
Listing Photo
Listing Photo
Listing Photo
Listing Photo
Listing Photo
Listing Photo
Listing Photo
Listing Photo
Listing Photo
Listing Photo
Listing Photo
Listing Photo
Listing Photo
Listing Photo
Listing Photo
Listing Photo
Listing Photo
Listing Photo
Listing Photo
Listing Photo
Listing Photo
Listing Photo
Listing Photo
Listing Photo
Listing Photo
Listing Photo
Listing Photo
Listing Photo
Listing Photo
Listing Photo
Listing Photo
Listing Photo
Listing Photo
Listing Photo
Listing Photo
Listing Photo
Listing Photo
Listing Photo
Listing Photo
Listing Photo
Listing Photo
Listing Photo
Listing Photo
Listing Photo
Listing Photo
Listing Photo
Listing Photo
Listing Photo
Listing Photo
Listing Photo
Listing Photo
Listing Photo
Listing Photo

MLS #MFRC7512090 Listing courtesy of Berkshire Hathaway Homeservice provided by Stellar MLS.

Similar Listings

$355,000
2860 Suncoast Lakes
Punta Gorda
3BR/2BA
| Active
$359,000
900 E Marion Avenue
Punta Gorda
3BR/2BA
| Active
$359,000
4093 River Bank Way
Punta Gorda
3BR/2BA
| Pending
$359,000
5034 San Rocco Court
Punta Gorda
3BR/2BA
| Pending



All listing information is deemed reliable but not guaranteed and should be independently verified through personal inspection by appropriate professionals. Listings displayed on this website may be subject to prior sale or removal from sale; availability of any listing should always be independent verified. Listing information is provided for consumer personal, non-commercial use, solely to identify potential properties for potential purchase; all other use is strictly prohibited and may violate relevant federal and state law. The source of the listing data is as follows: Stellar MLS (updated 1/29/26 4:07 AM) |

Listing Search



Translate Tool

Featured Listings
Bradenton Real Estate
$1,195,000
3 BED
2 BATH
Tampa Real Estate
$874,900
3 BED
3 BATH
North Port Real Estate
$824,900
4 BED
2 BATH
Palm Coast Real Estate
$985,000
4 BED
3 BATH
Tierra Verde Real Estate
$1,475,000
3 BED
2 BATH
Clearwater Beach Real Estate
$1,150,000
2 BED
2 BATH
Oak Hill Real Estate
$925,000
3 BED
2 BATH
Port Charlotte Real Estate
$899,000
4 BED
2 BATH
Orlando Real Estate
$850,000
4 BED
3 BATH
Orlando Real Estate
$950,000
4 BED
3 BATH
Contact Sandra Pardo

407-990-2746

Wendy Morris LLC

Licensed in the State of Florida
BK 3146762
16797 Broadwater Avenue
Winter Garden, Florida 34787

Your privacy is our utmost concern. We will never sell your personal information. Privacy Policy
©2026 sandrapardohomes.com - all rights reserved. | Site Map