407-990-2746
Menu

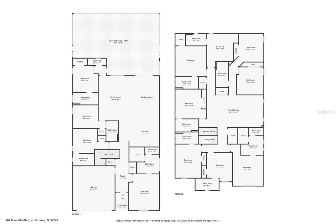
262 Marcello Boulevard, Kissimmee, FL

NEXT
PREV
$899,999

($189/sqft)

List Status: Active
262 Marcello Boulevard
Kissimmee, FL 34746


12 beds
11 baths
4762 living sqft
Top Features
  • Subdivision: Bellavida Resort
  • Built in  2023
  • Single Family Residence
Description
Experience the ultimate in Florida luxury at 262 Marcello Blvd, a stunning, fully furnished 12-bedroom, 11.5-bathroom estate located in the prestigious gated community of BellaVida Resort. Designed to captivate, this property is a short-term rental powerhouse and a dream for large families alike. The interior boasts an array of expertly themed rooms, including immersive Mario, Star Wars, Mickey, Comics, and Encanto spaces, plus a Harry Potter room complete with a custom bed slide. Entertainment is endless with a private theater room and a professionally converted garage game room, while the screened-in lanai features a sparkling private pool and hot tub for soaking in the sunshine.Beyond the doorstep, BellaVida Resort offers world-class amenities, including a 6,700-square-foot clubhouse, resort-style pool, fitness center, basketball and volleyball courts, and a scenic 15-acre lake with walking trails. This prime location puts you minutes from Walt Disney World, Universal Studios, and top-tier dining and shopping along the US-192 corridor. Whether you are an investor looking for a high-yield vacation rental, a primary buyer seeking a spacious sanctuary, or a second-home owner wanting a slice of the magic, this turnkey property offers the perfect blend of location, luxury, and themed excitement
Property Details
Additional Information
Additional Lease Restrictions
7-day minimum short-term rental.
Additional Parcels YN
false
Alternate Key Folio Num
242528105500010330
Appliances
Dishwasher, Dryer, Microwave, Range, Refrigerator, Washer
Association Email
spando@accessdifference.com
Association Fee
1294.38
Association Fee Frequency
Quarterly
Association Fee Includes
Cable TV, Maintenance Grounds, Other, Recreational Facilities, Trash
Association Fee Requirement
Required
Association YN
true
Attached Garage YN
true
Available For Lease YN
1
Bathrooms Total Integer
12
Building Area Source
Public Records
Building Area Total
5389
Building Area Total Srch SqM
500.65
Building Area Units
Square Feet
Calculated List Price By Calculated SqFt
189.00
Carport YN
false
Community Features
Clubhouse, Fitness Center, Gated Community - Guard, Playground, Pool, Sidewalks
Construction Materials
Block, Concrete, Stucco
Cooling
Central Air
Country
US
Current Price
899999.00
Direction Faces
North
Exterior Features
Sidewalk
Fireplace YN
false
Flood Zone Code
x
Flood Zone Date
2013-06-18
Flood Zone Panel
12097C0065G
Flooring
Carpet, Tile
Foundation Details
Slab
Furnished
Furnished
Garage Spaces
2
Garage YN
true
Heating
Central, Electric
Interior Features
Ceiling Fans(s)
Internet Address Display YN
true
Internet Automated Valuation Display YN
true
Internet Consumer Comment YN
true
Internet Entire Listing Display YN
true
Laundry Features
Laundry Closet
Lease Restrictions YN
1
Levels
Two
List AOR
Osceola
Living Area Meters
442.40
Living Area Source
Public Records
Living Area Units
Square Feet
Lot Size Acres
0.13
Lot Size Square Feet
5663
Lot Size Square Meters
526
Minimum Lease
1-7 Days
Modification Timestamp
2026-03-31T19:44:10.774Z
Monthly HOA Amount
431.46
New Construction YN
false
Number Of Pets
2
Occupant Type
Tenant
Ownership
Fee Simple
Parcel Number
24-25-28-1055-0001-0330
Pet Restrictions
Domestic pets and up to two pets permitted
Pets Allowed
Number Limit, Yes
Pool Private YN
true
Public Survey Range
28E
Public Survey Section
24
RATIO Current Price By Calculated SqFt
189.00
Realtor Info
Floor Plan Available, Short Term Rental Allowed
Road Surface Type
Paved
Roof
Shingle
Room Count
15
Senior Community YN
false
Sewer
Public Sewer
Showing Requirements
ShowingTime
Spa Features
In Ground
Spa YN
true
Status Change Timestamp
2026-03-31T19:41:21.000Z
Stories Total
2
Tax Annual Amount
13678.94
Tax Block
0001
Tax Book Number
28-161-162
Tax Legal Description
BELLAVIDA PH 2C PB 28 PGS 161-162 LOT 33
Tax Lot
33
Tax Year
2025
Total Acreage
0 to less than 1/4
Total Annual Fees
5177.52
Total Monthly Fees
431.46
Township
25S
Universal Property Id
US-12097-N-242528105500010330-R-N
Unparsed Address
262 MARCELLO BLVD
Utilities
BB/HS Internet Available, Cable Available, Electricity Available, Phone Available, Public, Water Available
Water Source
Public
Waterfront YN
false
Zoning
RESI
Neighborhood Map
Popup

Property Photos
Listing Photo
Listing Photo
Listing Photo
Listing Photo
Listing Photo
Listing Photo
Listing Photo
Listing Photo
Listing Photo
Listing Photo
Listing Photo
Listing Photo
Listing Photo
Listing Photo
Listing Photo
Listing Photo
Listing Photo
Listing Photo
Listing Photo
Listing Photo
Listing Photo
Listing Photo
Listing Photo
Listing Photo
Listing Photo
Listing Photo
Listing Photo
Listing Photo
Listing Photo
Listing Photo
Listing Photo
Listing Photo
Listing Photo
Listing Photo
Listing Photo
Listing Photo
Listing Photo
Listing Photo
Listing Photo
Listing Photo
Listing Photo
Listing Photo
Listing Photo
Listing Photo
Listing Photo
Listing Photo
Listing Photo
Listing Photo
Listing Photo
Listing Photo
Listing Photo
Listing Photo
Listing Photo
Listing Photo
Listing Photo
Listing Photo
Listing Photo
Listing Photo
Listing Photo
Listing Photo
Listing Photo
Listing Photo
Listing Photo
Listing Photo
Listing Photo
Listing Photo
Listing Photo
Listing Photo
Listing Photo
Listing Photo
Listing Photo
Listing Photo
Listing Photo
Listing Photo
Listing Photo
Listing Photo
Listing Photo
Listing Photo
Listing Photo
Listing Photo
Listing Photo
Listing Photo
Listing Photo
Listing Photo
Listing Photo
Listing Photo
Listing Photo
Listing Photo
Listing Photo
Listing Photo
Listing Photo
Listing Photo
Listing Photo
Listing Photo
Listing Photo
Listing Photo
Listing Photo
Listing Photo
Listing Photo
Listing Photo
Listing Photo
Listing Photo
Listing Photo
Listing Photo
Listing Photo
Listing Photo
Listing Photo
Listing Photo
Listing Photo
Listing Photo
Listing Photo
Listing Photo
Listing Photo
Listing Photo
Listing Photo
Listing Photo
Listing Photo
Listing Photo
Listing Photo
Listing Photo
Listing Photo
Listing Photo
Listing Photo
Listing Photo
Listing Photo
Listing Photo
Listing Photo
Listing Photo
Listing Photo
Listing Photo
Listing Photo
Listing Photo
Listing Photo
Listing Photo

MLS #MFRS5146865 Listing courtesy of Team Donovan provided by Stellar MLS.

Similar Listings

$835,000
4496 Monado Drive
Kissimmee
12BR/11BA
| Active
$850,000
368 Marcello Boulevard
Kissimmee
12BR/11BA
| Pending
$860,000
274 Marcello Boulevard
Kissimmee
12BR/11BA
| Active
$899,000
266 Marcello Boulevard
Kissimmee
12BR/11BA
| Pending



All listing information is deemed reliable but not guaranteed and should be independently verified through personal inspection by appropriate professionals. Listings displayed on this website may be subject to prior sale or removal from sale; availability of any listing should always be independent verified. Listing information is provided for consumer personal, non-commercial use, solely to identify potential properties for potential purchase; all other use is strictly prohibited and may violate relevant federal and state law. The source of the listing data is as follows: Stellar MLS (updated 3/31/26 5:19 PM) |

Listing Search



Translate Tool

Featured Listings
Altamonte Springs Real Estate
$1,399,000
4 BED
5 BATH
Welcome to this beautifully crafted home built in 2004, located in the private, gated community of Spring Lake Pointe, j... Read More
Apollo Beach Real Estate
$890,000
3 BED
3 BATH
Experience the best of Florida living in this exceptional Key West I model by WestBay Builders in the community of Water... Read More
Kissimmee Real Estate
$1,500,000
9 BED
8 BATH
Reunion Resort Escape: 9BR Whitemarsh Cove Villa—Pool, Theater, & Disney Thrills! To all Investors —welcome to 7638 Whit... Read More
Sarasota Real Estate
$875,000
4 BED
3 BATH
Welcome to 7228 Great Egret Blvd. a beautifully designed Ashwood model by Meritage Homes, nestled in the gated community... Read More
Sarasota Real Estate
$899,000
5 BED
3 BATH
STUNNING and IMMACULATE home! Welcome to 5732 Liatris Cir. featuring 5 bedrooms and 3 1/2 baths, nestled on a private, d... Read More
Land O Lakes Real Estate
$1,099,000
4 BED
3 BATH
Step inside and experience the transformation! ALL INTERIOR WALLS HAVE JUST BEEN REPAINTED IN A NEUTRAL COLOR PALETTE!! ... Read More
Sarasota Real Estate
$1,038,264
5 BED
4 BATH
Under Construction. What's Special: Loft | Pond View | Close to Trails | Dedicated Study. New Construction – November Co... Read More
Morriston Real Estate
$1,500,000
5 BED
3 BATH
2021 Lovely Upscale Farm Home with Pool and attached yet completely separate 1200sf 2nd home only 15 minutes to WEC ( Th... Read More
Mount Dora Real Estate
$1,289,000
5 BED
3 BATH
This is a nearly completed downtown Mount Dora compound offering three separate living spaces and the ability to live, r... Read More
Port Orange Real Estate
$1,200,000
4 BED
2 BATH
Welcome to 1908 Poppy Ln in the desirable Spruce Creek Farms community of Port Orange—a fully remodeled estate offering ... Read More
Contact Sandra Pardo

407-990-2746

Wendy Morris LLC

Licensed in the State of Florida
BK 3146762
16797 Broadwater Avenue
Winter Garden, Florida 34787

Your privacy is our utmost concern. We will never sell your personal information. Privacy Policy
©2026 sandrapardohomes.com - all rights reserved. | Site Map