407-990-2746
Menu

26110 84th E Avenue Unit: Unit: Lot 86, Myakka City, FL

NEXT
PREV
$990,000

($346/sqft)

List Status: Active
26110 84th E Avenue
Myakka City, FL 34251


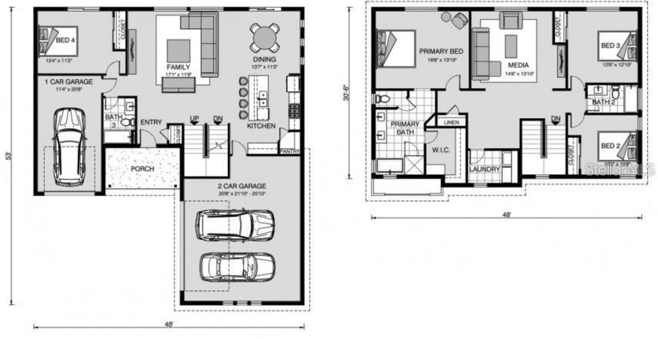
4 beds
3 baths
2861 living sqft
Top Features
  • Subdivision: Goldens First Add
  • Built in  2026
  • Single Family Residence
Description
Property Details
Additional Information
Additional Parcels YN
false
Alternate Key Folio Num
335636109
Appliances
Other
Association YN
false
Attached Garage YN
true
Bathrooms Total Integer
3
Building Area Source
Builder
Building Area Total
3781
Building Area Total Srch SqM
351.27
Building Area Units
Square Feet
Calculated List Price By Calculated SqFt
346.03
Carport YN
false
Construction Materials
Stucco
Cooling
Central Air
Country
US
Cumulative Days On Market
29
Current Price
990000.00
Direction Faces
North
Exterior Features
Other
Fireplace YN
false
Flood Zone Code
x
Flooring
Luxury Vinyl
Foundation Details
Block
Furnished
Unfurnished
Garage Spaces
3
Garage YN
true
Heating
Electric
Interior Features
Walk-In Closet(s)
Internet Address Display YN
true
Internet Automated Valuation Display YN
true
Internet Consumer Comment YN
true
Internet Entire Listing Display YN
true
Laundry Features
Other
Levels
One
List AOR
Sarasota - Manatee
Living Area Meters
265.80
Living Area Source
Builder
Living Area Units
Square Feet
Lot Size Acres
1.16
Lot Size Square Feet
50660
Lot Size Square Meters
4706
Modification Timestamp
2026-01-20T11:52:28.700Z
New Construction YN
true
Occupant Type
Vacant
Ownership
Fee Simple
Parcel Number
335636109
Pool Private YN
false
Projected Completion Date
2026-07-31T00:00:00.000
Property Condition
Pre-Construction
Public Remarks
Pre-Construction. To be built. Pre-Construction. To be built. Your very own custom home with an acre of land with NO HOA's and No CDD fully customized to fit your personal taste & lifestyle! Introducing the Dayton by GJ Gardner a fully customizable modern 4 bedroom-3 bath featuring a 3-car garage and all the 21st century energy efficiencies you'd expect from a new home. Builder has ability to build any home plan of your choosing on this parcel. The Dayton is for illustration purposes and features our Signature Express package. Do you have own home design in mind? GJ Gardner Custom Home Builders can help whether you currently own land, or you are searching for the perfect parcel. GJ Gardner international custom home builders is transforming the way custom homes are purchased with transparent upfront pricing, superior build quality and five-star customer service throughout the build process! Speak to a new home consultant today and let GJ Gardner make your new custom home dream become a reality. GJ Gardner Custom Home Builders Where Your Vision Finds Its Home!
Public Survey Range
20E
Public Survey Section
35
RATIO Current Price By Calculated SqFt
346.03
Road Surface Type
Other
Roof
Tile
Room Count
3
SW Subdiv Community Name
Goldens
Senior Community YN
false
Sewer
Septic Needed, Septic Tank
Showing Requirements
24 Hour Notice, Appointment Only, Call Listing Agent
Status Change Timestamp
2026-01-19T13:58:38.000Z
Tax Annual Amount
559.73
Tax Block
C
Tax Legal Description
LOTS 86 THRU 90, INCLUSIVE AND A PORTION OF LOT 85, BLK C AND LOTS 7 THRU 9 INCLUSIVE AND A PORTION OF LOT 10, BLK D, ALL OF THE PLAT OF THE GOLDEN ADDITION TO THE TOWN OF VERNA
Tax Lot
86
Tax Year
2024
Total Acreage
1 to less than 2
Total Annual Fees
0.00
Total Monthly Fees
0.00
Township
35S
Universal Property Id
US-12081-N-335636109-S-Lot 86
Unparsed Address
26110 84TH AVE E #Lot 86
Utilities
Electricity Available
Water Source
Well, Well Required
Waterfront YN
false
Zoning
RESI
Neighborhood Map
Popup

Property Photos
Listing Photo
Listing Photo
Listing Photo
Listing Photo
Listing Photo
Listing Photo
Listing Photo
Listing Photo
Listing Photo
Listing Photo
Listing Photo
Listing Photo
Listing Photo
Listing Photo
Listing Photo
Listing Photo

MLS #MFRA4678891 Listing courtesy of Preferred Shore Llc provided by Stellar MLS.

Similar Listings

$950,000
10222 289th E Street
Myakka City
4BR/3BA
| Active



All listing information is deemed reliable but not guaranteed and should be independently verified through personal inspection by appropriate professionals. Listings displayed on this website may be subject to prior sale or removal from sale; availability of any listing should always be independent verified. Listing information is provided for consumer personal, non-commercial use, solely to identify potential properties for potential purchase; all other use is strictly prohibited and may violate relevant federal and state law. The source of the listing data is as follows: Stellar MLS (updated 1/30/26 4:23 AM) |

Listing Search



Translate Tool

Featured Listings
Bradenton Real Estate
$1,195,000
3 BED
2 BATH
Longwood Real Estate
$835,000
4 BED
3 BATH
Wesley Chapel Real Estate
$915,000
5 BED
4 BATH
Sarasota Real Estate
$1,350,000
3 BED
2 BATH
Orlando Real Estate
$975,000
3 BED
3 BATH
Apollo Beach Real Estate
$929,000
5 BED
4 BATH
Sarasota Real Estate
$895,000
3 BED
3 BATH
St Petersburg Real Estate
$839,900
3 BED
2 BATH
Davenport Real Estate
$899,000
10 BED
8 BATH
Myakka City Real Estate
$950,000
4 BED
3 BATH
Contact Sandra Pardo

407-990-2746

Wendy Morris LLC

Licensed in the State of Florida
BK 3146762
16797 Broadwater Avenue
Winter Garden, Florida 34787

Your privacy is our utmost concern. We will never sell your personal information. Privacy Policy
©2026 sandrapardohomes.com - all rights reserved. | Site Map