407-990-2746
Menu

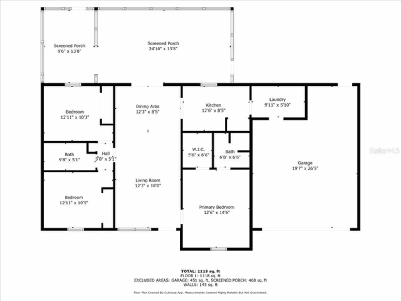
26 Hemlock Terrace Drive, Ocala, FL

NEXT
PREV
$249,500

($200/sqft)

List Status: Active
26 Hemlock Terrace Drive
Ocala, FL 34472


3 beds
2 baths
1246 living sqft
Top Features
  • Subdivision: Silver Spgs Shores Un 19
  • Built in  2003
  • Single Family Residence
Description
One or more photo(s) has been virtually staged. PRICE IMPROVEMENT! Move-In Ready Gem in Silver Springs Shores. Welcome to this immaculate and freshly updated home, nestled in a quiet, convenient Silver Springs Shores neighborhood—just minutes from SR-35, Maricamp Road, and Downtown Ocala. Love the outdoors? You’re within walking distant to the scenic Baseline Trailhead and Park, and just a short drive from Lake Weir, and Carney Island – perfect for weekend adventures, boating, or hiking. This meticulously maintained 3-bedroom, 2-bath split-plan home features brand-new plush carpeting in the bedrooms, stylish tile flooring in the main living areas, and fresh interior and exterior paint throughout. The kitchen is equipped with newer appliances, and sleek LED lighting updated ceiling fans, and modern blinds, providing both comfort and efficiency. Enjoy relaxing afternoons in the spacious 364 square-foot sunroom or entertain guests on the screened-in patio—perfect for outdoor dining or weekend grilling. The fully vinyl-fenced backyard provides privacy and ample space for gardening, pets, or play. An oversized 2-car garage offers room for a workbench or extra storage and leads directly into a large laundry room for added convenience. Major upgrades include a new roof (2022) and HVAC system (2017), with sanitized A/C ducts and recently pumped septic system for added peace of mind.
Property Details
Additional Information
Additional Parcels YN
false
Alternate Key Folio Num
9019-0358-02
Appliances
Dishwasher, Electric Water Heater, Microwave, Range, Refrigerator
Association YN
false
Attached Garage YN
true
Available For Lease YN
1
Bathrooms Total Integer
2
Building Area Source
Public Records
Building Area Total
1246
Building Area Total Srch SqM
115.76
Building Area Units
Square Feet
Calculated List Price By Calculated SqFt
200.24
Carport YN
false
Complex Community Name NCCB
SILVER SPRINGS SHORE
Construction Materials
Block, Stucco
Cooling
Central Air
Country
US
Cumulative Days On Market
114
Current Price
249500.00
Direction Faces
East
Exterior Features
Private Mailbox, Rain Gutters
Fireplace YN
false
Flood Zone Code
X
Flooring
Carpet, Ceramic Tile
Foundation Details
Slab
Furnished
Unfurnished
Garage Spaces
2
Garage YN
true
Heating
Electric
Homestead YN
1
Interior Features
Ceiling Fans(s), Open Floorplan, Split Bedroom, Thermostat, Walk-In Closet(s)
Internet Address Display YN
true
Internet Automated Valuation Display YN
false
Internet Consumer Comment YN
false
Internet Entire Listing Display YN
true
Laundry Features
Inside
Levels
One
List AOR
Ocala - Marion
Living Area Meters
115.76
Living Area Source
Public Records
Living Area Units
Square Feet
Lot Size Acres
0.23
Lot Size Dimensions
80x125
Lot Size Square Feet
10019
Lot Size Square Meters
931
Minimum Lease
No Minimum
Modification Timestamp
2025-10-11T17:05:26.127Z
New Construction YN
false
Occupant Type
Vacant
Ownership
Fee Simple
Parcel Number
9019-0358-02
Pets Allowed
Yes
Pool Private YN
false
Postal Code Plus 4
6273
Previous List Price
259000
Price Change Timestamp
2025-08-23T19:04:41.000Z
Property Condition
Completed
Public Survey Range
23E
Public Survey Section
32
RATIO Current Price By Calculated SqFt
200.24
Road Surface Type
Asphalt
Roof
Shingle
Room Count
9
Senior Community YN
false
Sewer
Septic Tank
Showing Requirements
Combination Lock Box
Status Change Timestamp
2025-06-19T19:05:20.000Z
Stories Total
1
Tax Annual Amount
1546.78
Tax Block
358
Tax Book Number
J-154SILVER
Tax Legal Description
SEC 32 TWP 15 RGE 23 PLAT BOOK J PAGE 154 SILVER SPRINGS SHORES UNIT 19 BLK 358 LOT 2
Tax Lot
2
Tax Year
2024
Total Acreage
0 to less than 1/4
Total Annual Fees
0.00
Total Monthly Fees
0.00
Township
15S
Universal Property Id
US-12083-N-9019035802-R-N
Unparsed Address
26 HEMLOCK TERRACE DR
Utilities
Cable Available, Electricity Connected
Water Source
Well
Waterfront YN
false
Zoning
R1
Neighborhood Map
Popup

Property Photos
Listing Photo
Listing Photo
Listing Photo
Listing Photo
Listing Photo
Listing Photo
Listing Photo
Listing Photo
Listing Photo
Listing Photo
Listing Photo
Listing Photo
Listing Photo
Listing Photo
Listing Photo
Listing Photo
Listing Photo
Listing Photo
Listing Photo
Listing Photo
Listing Photo
Listing Photo
Listing Photo
Listing Photo
Listing Photo
Listing Photo
Listing Photo
Listing Photo
Listing Photo
Listing Photo
Listing Photo
Listing Photo
Listing Photo
Listing Photo
Listing Photo
Listing Photo
Listing Photo
Listing Photo
Listing Photo
Listing Photo
Listing Photo
Listing Photo
Listing Photo
Listing Photo
Listing Photo
Listing Photo
Listing Photo
Listing Photo
Listing Photo
Listing Photo
Listing Photo
Listing Photo
Listing Photo
Listing Photo
Listing Photo
Listing Photo
Listing Photo
Listing Photo
Listing Photo
Listing Photo
Listing Photo
Listing Photo

MLS #MFROM704038 Listing courtesy of Watson Realty Corp provided by Stellar MLS.

Similar Listings

$224,900
7385 Sw 103rd Lane
Ocala
3BR/2BA
| Active
$224,900
5780 Nw 62nd Place
Ocala
3BR/2BA
| Pending
$224,900
910 Ne 11th Avenue
Ocala
3BR/2BA
| Active
$224,900
426 Spring Lane
Ocala
3BR/2BA
| Active



All listing information is deemed reliable but not guaranteed and should be independently verified through personal inspection by appropriate professionals. Listings displayed on this website may be subject to prior sale or removal from sale; availability of any listing should always be independent verified. Listing information is provided for consumer personal, non-commercial use, solely to identify potential properties for potential purchase; all other use is strictly prohibited and may violate relevant federal and state law. The source of the listing data is as follows: Stellar MLS (updated 4/29/26 5:03 AM) |

Listing Search



Translate Tool

Featured Listings
Christmas Real Estate
$949,999
4 BED
2 BATH
One or more photo(s) has been virtually staged. CUSTOM BUILT FARMHOUSE HOME, LIKE NEW CONDITION, IN CHRISTMAS ESTATES. L... Read More
Redington Beach Real Estate
$1,300,000
3 BED
2 BATH
Welcome to your dream coastal retreat in the heart of Redington Beach—a beautifully renovated waterfront home where mode... Read More
Bradenton Real Estate
$865,000
3 BED
2 BATH
See a video here: https://youtu.be/92cBu1J4AKc -LAKEWOOD NATIONAL GOLF COUNTRY CLUB in Lakewood Ranch that is the #1 mul... Read More
Tampa Real Estate
$1,199,000
4 BED
3 BATH
Build Your Dream Home on Tampa’s Most Coveted Island Nestled in the heart of exclusive Davis Islands, this rare oversize... Read More
Boca Grande Real Estate
$1,375,000
3 BED
3 BATH
One or more photo(s) has been virtually staged. Some island properties are easy to understand from photos. Others reveal... Read More
Bradenton Real Estate
$965,000
2 BED
2 BATH
Most people see a house but the wise buyer sees the checklist of things they won't have to deal with for the next twenty... Read More
Sarasota Real Estate
$1,150,000
3 BED
3 BATH
Located in the desirable Waverley neighborhood of Sarasota, this beautifully appointed Medallion Santa Maria floor plan ... Read More
Bradenton Real Estate
$1,150,000
3 BED
2 BATH
Welcome to your private oasis in Harbour Isle, a premier coastal resort community on Anna Maria Sound. This stunning Mar... Read More
Oviedo Real Estate
$1,099,000
4 BED
3 BATH
City Place Live + Work + Play Townhome – Investment Opportunity Located in the heart of Oviedo on the Park, this unique ... Read More
Palm Harbor Real Estate
$1,100,000
3 BED
3 BATH
Welcome to 300 Driftwood Drive West in Palm Harbor. This exceptional one story waterfront home offers bright open spaces... Read More
Contact Sandra Pardo

407-990-2746

Wendy Morris LLC

Licensed in the State of Florida
BK 3146762
16797 Broadwater Avenue
Winter Garden, Florida 34787

Your privacy is our utmost concern. We will never sell your personal information. Privacy Policy
©2026 sandrapardohomes.com - all rights reserved. | Site Map