407-990-2746
Menu

2571 Ames Haven Road, Kissimmee, FL

NEXT
PREV
$749,900

($293/sqft)

List Status: Pending
2571 Ames Haven Road
Kissimmee, FL 34744


4 beds
3 baths
2556 living sqft
Top Features
  • Frontage: Lake Front
  • View: Water, Trees/Woods
  • Subdivision: None
  • Built in  1920
  • Single Family Residence
Description
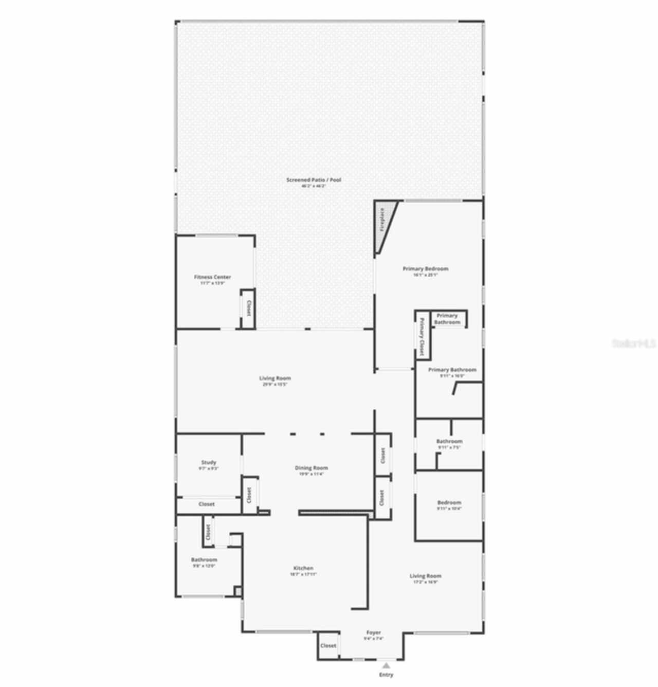
Under contract-accepting backup offers. TROPICAL LAKEFRONT OASIS with GUEST COTTAGE on 1.64 acres - No HOA + 2 Large DETACHED GARAGES(3 Bays) and WORKSHOP. Escape to this beautifully updated 4-bedroom, 3-bath single-story home + Cottage situated on a true lakefront lot along the private shores of Fish Lake. The main home features 2,556 sq ft of living space (5,396 sq ft under roof), thoughtfully designed with natural light, soothing colors, and warm finishes throughout. The open-concept layout flows seamlessly for everyday living and entertaining, while the home’s tasteful updates and abundant windows create a serene, welcoming atmosphere. A fully equipped detached guest cottage includes its own kitchen and offers excellent flexibility for multigenerational living, private guest accommodations, or potential rental income. Outdoors, enjoy lush, Key West-inspired landscaping with mature plumeria, tabebuia, bougainvillea, cypress trees, and natural Florida brush. A charming bench swing hangs in the shade, adding to the peaceful, resort-style ambiance. The property also includes two detached garages — one of which could be converted into additional living or recreational space. The seller already has plans for the conversion. A wooden dock structure is already in place and and is ready to be rebuilt — offering incredible potential for enjoying lakefront living at its best. RECENT UPGRADES: Kitchen Remodel with Quartz countertops. The property has 2 AC units both have been updated(2018 &2023) Kitchen Remodel with Quartz countertops. Metal Roof front half & sky lights of Main Home(2019), Metal Roof on front half(2021) RUN BY PROPANE GAS: Kitchen Stove, Kitchen Water Heater & additional Rinnai Water Tankless Water Heater(2020) & Dryer. Exterior Main Electrical Panel and Pole(2021) Pool Heater(2017) Garage Doors(2018) Asphalt Driveway (2020) New Electrical Main Panel Outside & Pole(2021) The south side of Ames Haven is scheduled to become a Cul De Sac. Tucked away on 1.64 a
Property Details
Additional Information
Additional Lease Restrictions
Please refer to local municipality for zoning guidelines.
Additional Parcels YN
false
Additional Rooms
Family Room, Formal Dining Room Separate, Inside Utility
Appliances
Dishwasher, Dryer, Gas Water Heater, Microwave, Range, Refrigerator, Tankless Water Heater, Washer, Water Softener
Approval Process
Please refer to local municipality for zoning guidelines.
Architectural Style
Contemporary
Association YN
false
Attached Garage YN
false
Available For Lease YN
1
Bathrooms Total Integer
3
Building Area Source
Owner
Building Area Total
5396
Building Area Total Srch SqM
501.30
Building Area Units
Square Feet
Calculated List Price By Calculated SqFt
293.39
Carport YN
false
Construction Materials
HardiPlank Type, Vinyl Siding, Frame, Wood Siding
Cooling
Central Air
Country
US
Cumulative Days On Market
239
Current Price
749900.00
Direction Faces
South
Expected Closing Date
2026-04-17T00:00:00.000
Exterior Features
Lighting, Private Mailbox
Fencing
Chain Link, Fenced, Vinyl
Fireplace Features
Electric, Family Room, Primary Bedroom, Wood Burning
Fireplace YN
true
Flood Zone Code
X
Flood Zone Date
2013-06-18
Flood Zone Panel
12097C0090G
Flooring
Bamboo, Carpet, Ceramic Tile, Concrete, Cork, Laminate, Wood
Foundation Details
Crawlspace, Slab
Furnished
Unfurnished
Future Land Use
LDR
Garage Spaces
4
Garage YN
true
Heating
Central, Electric
Homestead YN
1
Interior Features
Ceiling Fans(s), Eat-in Kitchen, Open Floorplan, Primary Bedroom Main Floor, Solid Surface Counters, Split Bedroom, Thermostat, Window Treatments
Internet Address Display YN
true
Internet Automated Valuation Display YN
false
Internet Consumer Comment YN
false
Internet Entire Listing Display YN
true
Laundry Features
Gas Dryer Hookup, Inside
Levels
One
List AOR
Osceola
Listing Exclusion YN
1
Living Area Meters
237.46
Living Area Source
Public Records
Living Area Units
Square Feet
Lot Features
Cleared, Cul-De-Sac, In County, Landscaped, Level, Near Marina, Near Public Transit, Oversized Lot, Private, Paved
Lot Size Acres
1.64
Lot Size Dimensions
73 x 979
Lot Size Square Feet
86684
Lot Size Square Meters
8053
Minimum Lease
7 Months
Modification Timestamp
2026-04-15T22:25:09.115Z
New Construction YN
false
Number Of Septics
1
Number Of Wells
1
Occupant Type
Owner
Other Structures
Cabana, Guest House, Other, Storage, Workshop
Ownership
Fee Simple
Parcel Number
32-25-30-0000-0380-0000
Patio And Porch Features
Covered, Enclosed, Rear Porch, Screened
Pet Restrictions
Please refer to local municipality for zoning guidelines.
Pets Allowed
Yes
Pool Dimensions
33x15
Pool Private YN
true
Previous List Price
849000
Price Change Timestamp
2025-12-17T22:09:31.000Z
Property Attached YN
false
Property Condition
Completed
Public Survey Range
30
Public Survey Section
32
Purchase Contract Date
2026-02-14
RATIO Current Price By Calculated SqFt
293.39
Realtor Info
As-Is, Brochure Available, Floor Plan Available, See Attachments, Sign, Survey Available
Road Responsibility
Public Maintained Road
Road Surface Type
Asphalt, Paved
Roof
Metal
Room Count
13
Security Features
Closed Circuit Camera(s), Smoke Detector(s)
Senior Community YN
false
Sewer
Septic Tank
Showing Requirements
ShowingTime
Spa Features
Heated, In Ground
Spa YN
true
Status Change Timestamp
2026-02-18T11:06:55.000Z
Tax Annual Amount
4045
Tax Block
0380/0000
Tax Book Number
0000/0000
Tax Legal Description
BEG 877.10 FT E OF SW COR RUN E 73 FT, N TO LAKE, W 73 FT, S TO POB
Tax Lot
0000
Tax Year
2024
Total Acreage
1 to less than 2
Total Annual Fees
0.00
Total Monthly Fees
0.00
Township
25
Universal Property Id
US-12097-N-322530000003800000-R-N
Unparsed Address
2571 AMES HAVEN RD
Utilities
BB/HS Internet Available, Electricity Connected, Phone Available, Propane, Public, Underground Utilities
Vegetation
Fruit Trees, Mature Landscaping, Oak Trees, Trees/Landscaped
Water Access
Lake
Water Access YN
1
Water Body Name
FISH LAKE
Water Extras
Skiing Allowed
Water Extras YN
1
Water Frontage Feet Lake
73
Water Source
Well
Water View
Lake
Water View YN
1
Waterfront Feet Total
73
Waterfront YN
true
Window Features
Skylight(s)
Zoning
ORS-1
Zoning Compatible YN
1
Neighborhood Map
Popup

Property Photos
Listing Photo
Listing Photo
Listing Photo
Listing Photo
Listing Photo
Listing Photo
Listing Photo
Listing Photo
Listing Photo
Listing Photo
Listing Photo
Listing Photo
Listing Photo
Listing Photo
Listing Photo
Listing Photo
Listing Photo
Listing Photo
Listing Photo
Listing Photo
Listing Photo
Listing Photo
Listing Photo
Listing Photo
Listing Photo
Listing Photo
Listing Photo
Listing Photo
Listing Photo
Listing Photo
Listing Photo
Listing Photo
Listing Photo
Listing Photo
Listing Photo
Listing Photo
Listing Photo
Listing Photo
Listing Photo
Listing Photo
Listing Photo
Listing Photo
Listing Photo
Listing Photo
Listing Photo
Listing Photo
Listing Photo
Listing Photo
Listing Photo
Listing Photo
Listing Photo
Listing Photo
Listing Photo
Listing Photo
Listing Photo
Listing Photo
Listing Photo
Listing Photo
Listing Photo
Listing Photo
Listing Photo
Listing Photo
Listing Photo
Listing Photo
Listing Photo
Listing Photo
Listing Photo
Listing Photo
Listing Photo
Listing Photo
Listing Photo
Listing Photo
Listing Photo
Listing Photo
Listing Photo
Listing Photo
Listing Photo
Listing Photo
Listing Photo
Listing Photo
Listing Photo
Listing Photo
Listing Photo
Listing Photo
Listing Photo
Listing Photo
Listing Photo
Listing Photo
Listing Photo
Listing Photo
Listing Photo
Listing Photo
Listing Photo
Listing Photo
Listing Photo
Listing Photo
Listing Photo
Listing Photo
Listing Photo
Listing Photo
Listing Photo
Listing Photo
Listing Photo
Listing Photo
Listing Photo
Listing Photo
Listing Photo
Listing Photo
Listing Photo
Listing Photo
Listing Photo
Listing Photo
Listing Photo
Listing Photo
Listing Photo
Listing Photo
Listing Photo
Listing Photo
Listing Photo
Listing Photo
Listing Photo
Listing Photo
Listing Photo
Listing Photo
Listing Photo
Listing Photo
Listing Photo
Listing Photo
Listing Photo
Listing Photo
Listing Photo
Listing Photo
Listing Photo
Listing Photo
Listing Photo
Listing Photo
Listing Photo
Listing Photo
Listing Photo
Listing Photo
Listing Photo
Listing Photo
Listing Photo
Listing Photo
Listing Photo
Listing Photo
Listing Photo
Listing Photo
Listing Photo
Listing Photo
Listing Photo
Listing Photo
Listing Photo
Listing Photo
Listing Photo
Listing Photo
Listing Photo
Listing Photo
Listing Photo
Listing Photo
Listing Photo
Listing Photo
Listing Photo
Listing Photo
Listing Photo
Listing Photo
Listing Photo
Listing Photo
Listing Photo
Listing Photo
Listing Photo
Listing Photo

MLS #MFRS5129375 Listing courtesy of East Park Realty Llc provided by Stellar MLS.

Similar Listings

$675,000
8008 Sandy Toes Way
Kissimmee
4BR/3BA
| Active
$679,900
4524 Sequel Road
Kissimmee
4BR/3BA
| Active
$688,999
2987 Boating Boulevard
Kissimmee
4BR/3BA
| Active
$699,000
2743 Kissimmee Bay Circle
Kissimmee
4BR/3BA
| Active



All listing information is deemed reliable but not guaranteed and should be independently verified through personal inspection by appropriate professionals. Listings displayed on this website may be subject to prior sale or removal from sale; availability of any listing should always be independent verified. Listing information is provided for consumer personal, non-commercial use, solely to identify potential properties for potential purchase; all other use is strictly prohibited and may violate relevant federal and state law. The source of the listing data is as follows: Stellar MLS (updated 4/21/26 12:00 AM) |

Listing Search



Translate Tool

Featured Listings
Punta Gorda Real Estate
$860,000
5 BED
4 BATH
Welcome to this beautifully designed Roseland model by Pulte, located in the sought-after Northridge at Babcock Ranch. T... Read More
Sanford Real Estate
$1,395,000
4 BED
3 BATH
Welcome to this spectacular custom-built estate within the guard-gated enclave of Lake Markham Preserve. Spanning over a... Read More
Lutz Real Estate
$979,900
4 BED
3 BATH
Luxuriously upgraded EAST-facing home in gated Cordoba Estates on a rare 0.62-acre lot backing to conservation with no r... Read More
Maitland Real Estate
$979,000
4 BED
3 BATH
Beautiful and spacious home at 1281 Wellington Terrace featuring high beam ceilings and elegant tile floors throughout. ... Read More
Port Charlotte Real Estate
$849,000
3 BED
3 BATH
One or more photo(s) has been virtually staged. Stunning 2021-built Canal-front home with 2.5 miles from Myakka & Peace ... Read More
Lithia Real Estate
$850,000
3 BED
2 BATH
Under contract-accepting backup offers. One or more photo(s) has been virtually staged. Welcome to your private Lithia c... Read More
Clermont Real Estate
$1,199,000
5 BED
5 BATH
Meticulously designed contemporary residence nestled in the gated enclave of The Moorings of Clermont. Situated on a uni... Read More
Ocala Real Estate
$889,500
4 BED
3 BATH
Welcome to this stately 2-story traditional home, built in 1982 and meticulously crafted with a blend of HardiPlank sidi... Read More
Micanopy Real Estate
$1,200,000
4 BED
3 BATH
One of a Kind Country Retreat! Custom Jacobsen Home on 51.7 acres located on CR 234 just outside Micanopy. Property is s... Read More
Sarasota Real Estate
$1,175,000
2 BED
2 BATH
****There is nothing left to do. Nothing to imagine. Completed in 2022, everything has been upgraded and transformed int... Read More
Contact Sandra Pardo

407-990-2746

Wendy Morris LLC

Licensed in the State of Florida
BK 3146762
16797 Broadwater Avenue
Winter Garden, Florida 34787

Your privacy is our utmost concern. We will never sell your personal information. Privacy Policy
©2026 sandrapardohomes.com - all rights reserved. | Site Map