407-990-2746
Menu

255 The Esplanade N Unit: Unit: 106, Venice, FL

NEXT
PREV
$650,000

($485/sqft)

List Status: Active
255 The Esplanade N
Venice, FL 34285


2 beds
2 baths
1340 living sqft
Top Features
  • Frontage: Beach Front, Gulf/Ocean
  • View: Water
  • Subdivision: Gulf Shores
  • Built in  1973
  • Condominium
Description
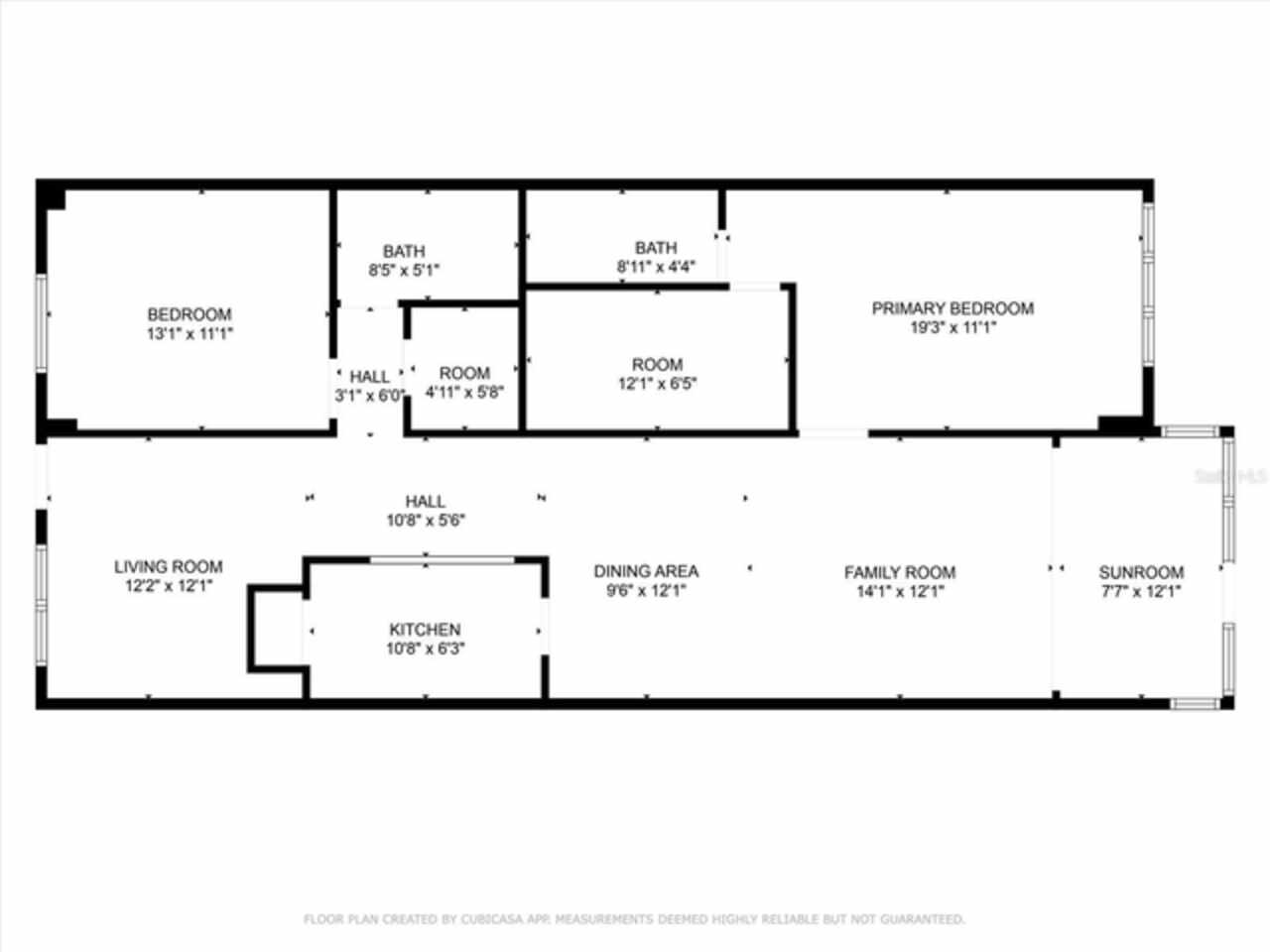
DIRECT GULF FRONT. STEPS TO THE BEACH.2 BEDROOM/ 2 BATHROOM. HEATED POOL. HVAC 2025. Welcome to Unit #106—your own slice of paradise with the Gulf of Mexico as your backyard. This direct Gulf-front, 2-bedroom, 2-bathroom condominium offers a premier coastal lifestyle. Just steps from the heated community pool and sandy shores, this residence invites you to relax and unwind. Inside, a versatile bonus space near the entry can serve as a den, office, or extra guest accommodations. The split floor plan provides privacy with a guest bedroom located at the front of the unit, complemented by a nearby full bath and a spacious walk-in storage closet. The kitchen features ample cabinet space and a pantry, and flows into the dining and living areas. From the living room and enclosed lanai, enjoy stunning views of the Gulf. The lanai features automated high-end blinds and opens to a beautifully updated paver walkway that leads directly to the pool and beach. The spacious primary suite also boasts Gulf views, a walk-in closet, and an en-suite bath with a walk-in shower and remote-controlled blinds. The community has no planned special assessments related to hurricane damage, and recent updates include refreshed landscaping and a newly remodeled clubhouse, serving as a social hub for residents. The community has also completed their Reserve and Engineer Studies and is exceptionally well managed. Additional outdoor storage is included. Ideally located just minutes from the historic charm of Downtown Venice—with its iconic West Venice Avenue lined with Mediterranean-style architecture, over 100 unique shops, art galleries, cafés and lively events—and just a short ride to I-75 and award-winning Sarasota Memorial Hospital, this Gulf-front lifestyle you've been waiting for. Copy and paste this link for a luxury video.
Property Details
Additional Information
Additional Lease Restrictions
Please see Condominium Association Rules and Regulations.
Additional Parcels YN
false
Additional Rooms
Den/Library/Office
Additional Water Information
This first floor unit is just steps from the Gulf of Mexico.
Alternate Key Folio Num
0175144005
Appliances
Dishwasher, Disposal, Electric Water Heater, Microwave, Range
Approval Process
Please see Condominium Association Rules and Regulations.
Association Amenities
Elevator(s), Lobby Key Required, Other, Pool
Association Approval Required YN
1
Association Email
kcweb@keys-caldwell.com
Association Fee Frequency
Quarterly
Association Fee Includes
Cable TV, Common Area Taxes, Pool, Escrow Reserves Fund, Insurance, Maintenance Structure, Maintenance Grounds, Management, Other, Pest Control, Sewer, Trash, Water
Association Fee Requirement
Required
Association URL
https://255gulfshores.com/
Association YN
true
Available For Lease YN
1
Bathrooms Total Integer
2
Building Area Source
Public Records
Building Area Total
1460
Building Area Total Srch SqM
135.64
Building Area Units
Square Feet
Building Elevator YN
1
Calculated List Price By Calculated SqFt
485.07
Carport Spaces
1
Carport YN
true
Community Features
Buyer Approval Required, Community Mailbox, Irrigation-Reclaimed Water, Pool, Sidewalks
Condo Fees
3100
Condo Fees Term
Quarterly
Construction Materials
Concrete
Cooling
Central Air
Country
US
Cumulative Days On Market
98
Current Price
650000.00
Direction Faces
West
Disaster Mitigation
Hurricane Shutters/Windows
Elementary School
Venice Elementary
Exterior Features
Lighting, Other, Outdoor Shower, Sidewalk, Storage
Fireplace YN
false
Flood Zone Code
X500
Flood Zone Date
2024-03-27
Flood Zone Panel
12115C0327G
Floor Number
1
Flooring
Luxury Vinyl, Tile
Foundation Details
Pillar/Post/Pier
Garage YN
false
Heating
Central, Electric
High School
Venice Senior High
Interior Features
Living Room/Dining Room Combo, Other, Solid Surface Counters, Thermostat
Internet Address Display YN
true
Internet Automated Valuation Display YN
false
Internet Consumer Comment YN
false
Internet Entire Listing Display YN
true
Laundry Features
Common Area, Other, Same Floor As Condo Unit
Lease Restrictions YN
1
Levels
One
List AOR
Venice
Listing Exclusion YN
1
Living Area Meters
124.49
Living Area Source
Public Records
Living Area Units
Square Feet
Lot Features
CoastalConstruction Control Line, City Limits, In County, Landscaped, Sidewalk, Paved
Lot Size Acres
0.31
Lot Size Square Feet
13487
Lot Size Square Meters
1253
Middle Or Junior School
Venice Area Middle
Minimum Lease
3 Months
Modification Timestamp
2025-10-05T17:05:25.667Z
Monthly Condo Fee Amount
1033
New Construction YN
false
Num Times per Year
4
Occupant Type
Vacant
Other Equipment
Irrigation Equipment
Ownership
Condominium
Parcel Number
0175144005
Patio And Porch Features
Enclosed, Rear Porch, Screened
Pets Allowed
No
Pool Private YN
false
Postal Code Plus 4
1518
Property Description
Mid Rise
Public Survey Range
18
Public Survey Section
12
RATIO Current Price By Calculated SqFt
485.07
Realtor Info
As-Is, Assoc approval required, Floor Plan Available, Lease Restrictions, No Sign, Other, Remediation Accomplished, See Attachments
Road Responsibility
Public Maintained Road
Road Surface Type
Asphalt
Roof
Built-Up
Room Count
8
SW Subdiv Community Name
Gulf Shores
Security Features
Smoke Detector(s)
Senior Community YN
false
Sewer
Public Sewer
Showing Requirements
Supra Lock Box, See Remarks, ShowingTime
Status Change Timestamp
2025-06-29T23:12:23.000Z
Stories Total
10
Tax Annual Amount
7449
Tax Book Number
953-1548
Tax Legal Description
UNIT 106 GULF SHORES
Tax Lot
NA
Tax Year
2024
Total Annual Fees
12400.00
Total Monthly Fees
1033.33
Township
39
Universal Property Id
US-12115-N-0175144005-S-106
Unparsed Address
255 THE ESPLANADE N #106
Utilities
Cable Connected, Electricity Connected, Public, Sewer Connected, Water Connected
Water Access
Beach - Access Deeded, Gulf/Ocean
Water Access YN
1
Water Body Name
GULF OF MEXICO
Water Source
Public
Water View
Beach, Gulf/Ocean - Partial
Water View YN
1
Waterfront YN
true
Window Features
Blinds, Window Treatments
Zoning
RMF4
Neighborhood Map
Popup

Property Photos
Listing Photo
Listing Photo
Listing Photo
Listing Photo
Listing Photo
Listing Photo
Listing Photo
Listing Photo
Listing Photo
Listing Photo
Listing Photo
Listing Photo
Listing Photo
Listing Photo
Listing Photo
Listing Photo
Listing Photo
Listing Photo
Listing Photo
Listing Photo
Listing Photo
Listing Photo
Listing Photo
Listing Photo
Listing Photo
Listing Photo
Listing Photo
Listing Photo
Listing Photo
Listing Photo
Listing Photo
Listing Photo
Listing Photo
Listing Photo
Listing Photo
Listing Photo
Listing Photo
Listing Photo
Listing Photo
Listing Photo
Listing Photo
Listing Photo
Listing Photo
Listing Photo
Listing Photo
Listing Photo
Listing Photo
Listing Photo
Listing Photo
Listing Photo
Listing Photo
Listing Photo
Listing Photo
Listing Photo
Listing Photo
Listing Photo
Listing Photo
Listing Photo
Listing Photo
Listing Photo
Listing Photo
Listing Photo
Listing Photo
Listing Photo
Listing Photo
Listing Photo
Listing Photo
Listing Photo
Listing Photo
Listing Photo

MLS #MFRN6139459 Listing courtesy of Keller Williams Island Life Real Estate provided by Stellar MLS.

Similar Listings

$585,000
23524 Copperleaf Drive
Venice
2BR/2BA
| Active
$585,000
24193 Spartina Drive
Venice
2BR/2BA
| Active
$585,000
845 The Esplanade N
Venice
2BR/2BA
| Active
$589,000
950 Tarpon Center Drive
Venice
2BR/2BA
| Active



All listing information is deemed reliable but not guaranteed and should be independently verified through personal inspection by appropriate professionals. Listings displayed on this website may be subject to prior sale or removal from sale; availability of any listing should always be independent verified. Listing information is provided for consumer personal, non-commercial use, solely to identify potential properties for potential purchase; all other use is strictly prohibited and may violate relevant federal and state law. The source of the listing data is as follows: Stellar MLS (updated 4/24/26 12:27 PM) |

Listing Search



Translate Tool

Featured Listings
Montverde Real Estate
$895,000
3 BED
2 BATH
Under contract-accepting backup offers. On a beautifully manicured half-acre lot with mature landscaping and stunning, l... Read More
St Petersburg Real Estate
$835,000
4 BED
2 BATH
Under contract-accepting backup offers. Motivated Seller! Don't miss the opportunity to own this unique and stunning hom... Read More
Winter Park Real Estate
$1,395,000
3 BED
3 BATH
Luxury Lakeview Townhome in Winter Park! Experience elevated living in this newly built 3-bedroom, 3.5-bath residence wi... Read More
Plant City Real Estate
$1,299,990
4 BED
4 BATH
Under contract-accepting backup offers. One or more photo(s) has been virtually staged. One or more photo(s) has been vi... Read More
Tavares Real Estate
$899,000
4 BED
3 BATH
WELCOME TO YOUR NEW HOME! This custom-built executive home situated on a 1.67 acre canal/water front lot offers exceptio... Read More
Clermont Real Estate
$974,300
4 BED
4 BATH
Under Construction. Welcome to Parkside Trails! Explore the charm of this premier Clermont location, offering exclusive ... Read More
Palm Coast Real Estate
$889,000
4 BED
2 BATH
Welcome to your waterfront retreat in Palm Coast coveted sailboat country. The rare 180-foot southern exposure tip lot o... Read More
Reunion Real Estate
$950,000
5 BED
4 BATH
Active Club Membership! Offered fully furnished and turnkey! Positioned along the Arnold Palmer Legacy Golf Course, this... Read More
Tampa Real Estate
$960,000
3 BED
2 BATH
Classic Spanish style home located well off the road in Beach Park! A long pavered driveway and courtyard with 7’ block ... Read More
Safety Harbor Real Estate
$949,000
3 BED
2 BATH
Under contract-accepting backup offers. Perfectly positioned just steps from vibrant downtown Safety Harbor, this unique... Read More
Contact Sandra Pardo

407-990-2746

Wendy Morris LLC

Licensed in the State of Florida
BK 3146762
16797 Broadwater Avenue
Winter Garden, Florida 34787

Your privacy is our utmost concern. We will never sell your personal information. Privacy Policy
©2026 sandrapardohomes.com - all rights reserved. | Site Map