407-990-2746
Menu

2506 18th W Avenue, Bradenton, FL

NEXT
PREV
$535,900

($330/sqft)

List Status: Active
2506 18th W Avenue
Bradenton, FL 34205


3 beds
2 baths
1623 living sqft
Top Features
  • Subdivision: Seminole Park
  • Built in  1951
  • Single Family Residence
Description
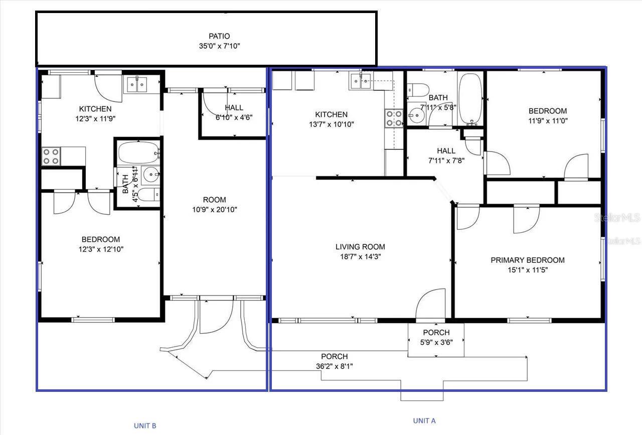
Turnkey Property fully equipped and furnished boasts two units, the main house has 2 Bedrooms and 1 Bath, and an In-Law Suite featuring 1 Bedroom and 1 Bath with a separate driveway and entrance which provides an excellent setup for a multi-generational family or as an investment. This updated home features a new kitchen with a quartz countertop, brand new stainless steel appliances, vinyl flooring throughout the whole house, new plumbing, new electrical panel and wires, Impact windows, new water heater, replaced washer and dryer, also front doors were replaced as well, fenced backyard, security cameras around the property for unparalleled comfort and security. Enjoy a private backyard oasis complete with a jacuzzi and a spacious gazebo. The backyard has space for your boat or RV. Sitting on an impressive almost 15,000 SqFt. Simply bring your belongings and you’re ready to enjoy the coming up summer. Conveniently located just 8 miles to Anna Maria Island and 2 miles from Downtown Bradenton, providing various entertainment options including waterfront bars, restaurants, and Saturday markets. This property is great as a permanent, temporary, or rental residence. Simply an investor’s dream without deed restrictions, HOA, and rests outside the flood zone.
Property Details
Additional Information
Additional Parcels YN
false
Alternate Key Folio Num
4130100003
Appliances
Dishwasher, Dryer, Ice Maker, Microwave, Range, Refrigerator, Tankless Water Heater, Washer
Association YN
false
Available For Lease YN
1
Bathrooms Total Integer
2
Building Area Source
Owner
Building Area Total
1623
Building Area Total Srch SqM
150.78
Building Area Units
Square Feet
Calculated List Price By Calculated SqFt
330.19
Carport YN
false
Condo Fees Term
Annual
Construction Materials
Block
Cooling
Central Air
Country
US
Cumulative Days On Market
100
Current Price
535900.00
Direction Faces
Southeast
Exterior Features
Sauna
Fireplace YN
false
Flood Zone Code
X
Flood Zone Date
2021-08-10
Flood Zone Panel
12081C0302F
Flooring
Luxury Vinyl
Foundation Details
Block
Furnished
Turnkey
Garage YN
false
Heating
Central
Home Warranty YN
false
Interior Features
Eat-in Kitchen, Open Floorplan, Primary Bedroom Main Floor, Sauna, Stone Counters
Internet Address Display YN
true
Internet Automated Valuation Display YN
false
Internet Consumer Comment YN
false
Internet Entire Listing Display YN
true
Laundry Features
Inside
Levels
One
List AOR
Orlando Regional
Living Area Meters
150.78
Living Area Source
Owner
Living Area Units
Square Feet
Lot Size Acres
0.34
Lot Size Square Feet
14710
Lot Size Square Meters
1367
Minimum Lease
No Minimum
Modification Timestamp
2026-02-10T12:59:08.891Z
New Construction YN
false
Occupant Type
Vacant
Ownership
Fee Simple
Parcel Number
4130100003
Pets Allowed
Yes
Pool Private YN
false
Postal Code Plus 4
4612
Previous List Price
549900
Price Change Timestamp
2026-02-10T02:05:13.000Z
Public Survey Range
17
Public Survey Section
34
RATIO Current Price By Calculated SqFt
330.19
Road Surface Type
Asphalt
Roof
Shingle
Room Count
6
SW Subdiv Community Name
Seminole Park
Senior Community YN
false
Sewer
Public Sewer
Showing Requirements
Call Owner, See Remarks
Status Change Timestamp
2026-02-10T12:57:25.000Z
Tax Annual Amount
4409
Tax Block
3
Tax Book Number
2-107
Tax Legal Description
LOT 1 BLK 3 SEMINOLE PARK PI#41301.0000/3
Tax Lot
1
Tax Year
2024
Total Acreage
1/4 to less than 1/2
Total Annual Fees
0.00
Total Monthly Fees
0.00
Township
34
Universal Property Id
US-12081-N-4130100003-R-N
Unparsed Address
2506 18TH AVE W
Utilities
BB/HS Internet Available, Electricity Connected, Sewer Connected, Water Connected
Water Source
Public
Waterfront YN
false
Zoning
R1B
Neighborhood Map
Popup

Property Photos
Listing Photo
Listing Photo
Listing Photo
Listing Photo
Listing Photo
Listing Photo
Listing Photo
Listing Photo
Listing Photo
Listing Photo
Listing Photo
Listing Photo
Listing Photo
Listing Photo
Listing Photo
Listing Photo
Listing Photo
Listing Photo
Listing Photo
Listing Photo
Listing Photo
Listing Photo
Listing Photo
Listing Photo
Listing Photo
Listing Photo
Listing Photo
Listing Photo
Listing Photo
Listing Photo
Listing Photo
Listing Photo
Listing Photo
Listing Photo
Listing Photo
Listing Photo
Listing Photo
Listing Photo
Listing Photo
Listing Photo
Listing Photo
Listing Photo
Listing Photo
Listing Photo
Listing Photo
Listing Photo
Listing Photo
Listing Photo
Listing Photo
Listing Photo
Listing Photo
Listing Photo
Listing Photo
Listing Photo
Listing Photo
Listing Photo
Listing Photo
Listing Photo
Listing Photo
Listing Photo
Listing Photo
Listing Photo
Listing Photo
Listing Photo
Listing Photo
Listing Photo
Listing Photo
Listing Photo
Listing Photo
Listing Photo
Listing Photo
Listing Photo

MLS #MFRO6347717 Listing courtesy of Beycome Of Florida Llc provided by Stellar MLS.

Similar Listings

$482,635
8215 Seaflower Parkway
Bradenton
3BR/2BA
| Active
$484,000
401 27th W Street
Bradenton
3BR/2BA
| Active
$484,000
3206 45th E Way
Bradenton
3BR/2BA
| Pending
$485,000
219 70th Nw Street
Bradenton
3BR/2BA
| Pending



All listing information is deemed reliable but not guaranteed and should be independently verified through personal inspection by appropriate professionals. Listings displayed on this website may be subject to prior sale or removal from sale; availability of any listing should always be independent verified. Listing information is provided for consumer personal, non-commercial use, solely to identify potential properties for potential purchase; all other use is strictly prohibited and may violate relevant federal and state law. The source of the listing data is as follows: Stellar MLS (updated 2/13/26 11:21 PM) |

Listing Search



Translate Tool

Featured Listings
Windermere Real Estate
$885,000
6 BED
4 BATH
Stunning upgraded house in Windermere Isle in Gas community, NO Carpet in the house. Two downstairs bedrooms are perfect... Read More
Riverview Real Estate
$945,000
6 BED
4 BATH
WATERFRONT!!! Elegance and charm collide in this well appointed 6 bedroom, 4 bath, 3 car garage home with resort style l... Read More
Orlando Real Estate
$1,060,000
3 BED
3 BATH
ASK ABOUT SELLER CONCESSIONS TO BUYER. Beautiful Contemporary modern home in the Hourglass area in the Boone and Blanker... Read More
Ocala Real Estate
$1,250,750
5 BED
4 BATH
Welcome to South Point, an exclusive gated community of luxury estate homes in desirable Southeast Ocala. Tucked away on... Read More
Bradenton Real Estate
$1,175,000
3 BED
2 BATH
Enjoy incredible double lake views, with incredible sunsets. Turnkey just bring your toothbrush and bathing suit. If you... Read More
Longboat Key Real Estate
$1,295,000
3 BED
3 BATH
This meticulously renovated, maintenance-free residence is situated within the esteemed Harbour Oaks community on Longbo... Read More
Hudson Real Estate
$1,050,000
4 BED
3 BATH
Exceptional Business Opportunity with Dual Addresses and Paid Impact Fees! Seize this rare chance to build or expand you... Read More
Crystal Beach Real Estate
$1,399,000
3 BED
2 BATH
Wake up to endless Gulf views in this stunning geodesic dome retreat. Designed for strength and energy efficiency, this ... Read More
Sarasota Real Estate
$1,350,000
3 BED
3 BATH
The West Indies Beacon floor plan in Cassia at Skye Ranch greets you with a bright open foyer that immediately sets the ... Read More
Tampa Real Estate
$850,000
4 BED
3 BATH
Welcome to 3704 W Platt Street in Tampa 33609, located in the highly sought-after Plant High School district. This South... Read More
Contact Sandra Pardo

407-990-2746

Wendy Morris LLC

Licensed in the State of Florida
BK 3146762
16797 Broadwater Avenue
Winter Garden, Florida 34787

Your privacy is our utmost concern. We will never sell your personal information. Privacy Policy
©2026 sandrapardohomes.com - all rights reserved. | Site Map