407-990-2746
Menu

24490 Yacht Club Boulevard, Punta Gorda, FL

NEXT
PREV
$1,449,900

($1,108/sqft)

List Status: Pending
24490 Yacht Club Boulevard
Punta Gorda, FL 33955


3 beds
3 baths
1309 living sqft
Top Features
  • View: Garden
  • Subdivision: Pirate Harbor
  • Built in  2015
  • Single Family Residence
Description
Property Details
Additional Information
Additional Parcels YN
false
Additional Rooms
Den/Library/Office, Great Room
Alternate Key Folio Num
422319427003
Appliances
Dishwasher, Electric Water Heater, Microwave, Range, Refrigerator
Association YN
false
Attached Garage YN
true
Available For Lease YN
1
Bathrooms Total Integer
4
Building Area Source
Public Records
Building Area Total
3237
Building Area Total Srch SqM
300.73
Building Area Units
Square Feet
Calculated List Price By Calculated SqFt
1107.64
Carport YN
false
Construction Materials
Concrete
Cooling
Central Air
Country
US
Cumulative Days On Market
148
Current Price
1449900.00
Direction Faces
Southwest
Expected Closing Date
2025-12-29T00:00:00.000
Exterior Features
Balcony, Garden, Hurricane Shutters, Other, Outdoor Kitchen, Storage
Fencing
Fenced
Fireplace YN
false
Flood Zone Code
AE
Flooring
Laminate
Foundation Details
Stilt/On Piling
Garage Spaces
18
Garage YN
true
Heating
Central
Interior Features
Built-in Features, Ceiling Fans(s), Kitchen/Family Room Combo, Open Floorplan, PrimaryBedroom Upstairs, Thermostat, Walk-In Closet(s)
Internet Address Display YN
true
Internet Automated Valuation Display YN
false
Internet Consumer Comment YN
false
Internet Entire Listing Display YN
true
Laundry Features
Inside, Washer Hookup
Levels
Two
List AOR
Sarasota - Manatee
Living Area Meters
121.61
Living Area Source
Public Records
Living Area Units
Square Feet
Lot Features
Irregular Lot, Landscaped
Lot Size Acres
4.2
Lot Size Square Feet
182952
Lot Size Square Meters
16997
Minimum Lease
No Minimum
Modification Timestamp
2025-12-10T11:15:08.779Z
New Construction YN
false
Occupant Type
Vacant
Other Structures
Barn(s), Finished RV Port, Other, Outdoor Kitchen, Storage
Ownership
Fee Simple
Parcel Number
422319427003
Patio And Porch Features
Covered, Patio, Porch, Screened
Pool Private YN
true
Postal Code Plus 4
1735
Previous List Price
1499900
Price Change Timestamp
2025-12-03T21:58:04.000Z
Property Description
Elevated, Stilt Home
Public Remarks
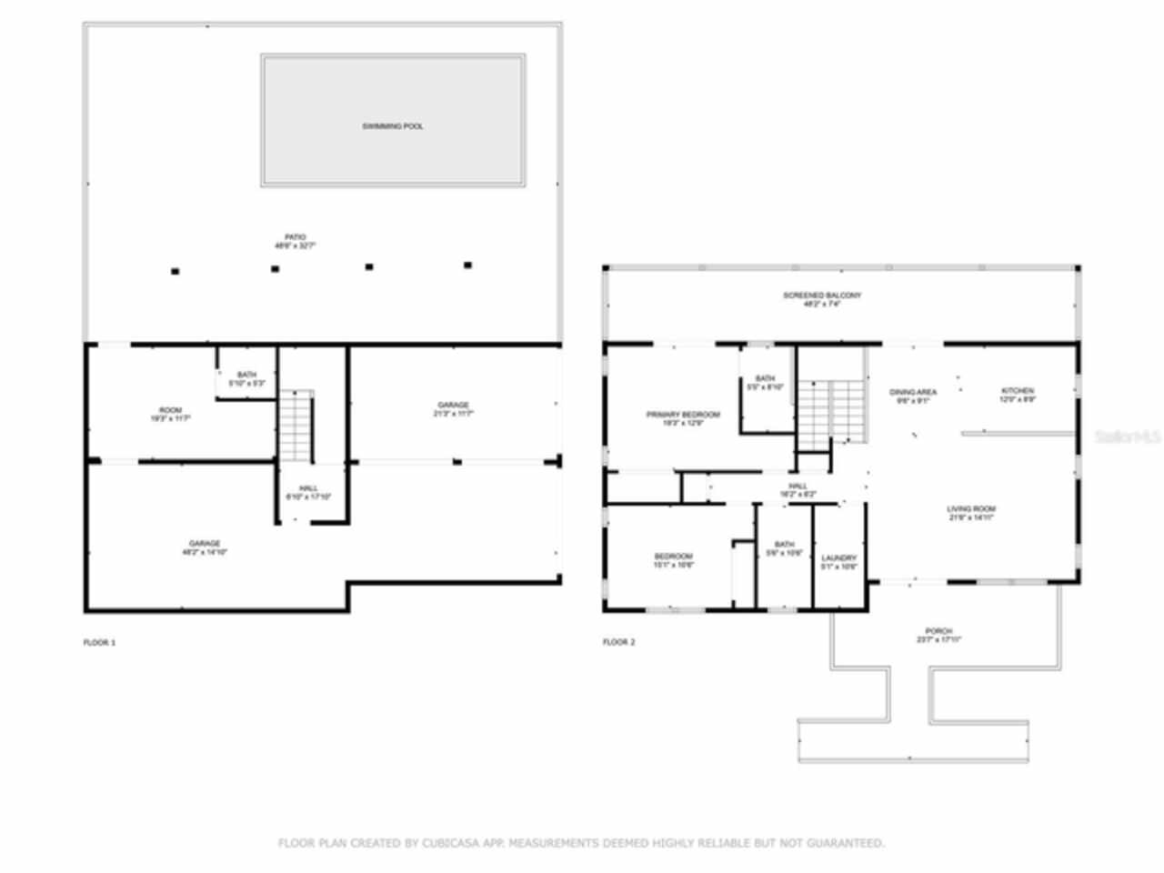
Under contract-accepting backup offers. A STUNNING HOME ON FOUR ACRES WITH PRIVATE LAKE AND A 5, 000 Sq foot garage - it will easily hold 18 plus cars with plenty of additional room! This property is meticulous and unrivaled with possibilities! GORGEOUS renovated home in the peaceful boating community of Pirate Harbor in Punta Gorda, Florida set on its own private gated and fenced lot. This elevated, move-in-ready residence features 2 bedrooms + den, 3 full baths, and 1 half bath, with f thoughtfully redesigned space. Every inch has been updated to provide modern comfort, coastal charm, and functional design in a prime canal-side setting. The interior boasts an open-concept layout with a fully remodeled kitchen featuring Corian countertops, stainless steel appliances, and contemporary cabinetry. The main living spaces are finished with luxury vinyl plank flooring, combining timeless style with everyday durability. Lots of natural light fills the home, creating a bright and welcoming atmosphere. Both bedrooms are spacious and well-appointed, while the bathrooms are updated with high-end materials and clean, modern styling. In the downstairs garage there is a versatile space currently used as an office/den that can easily be converted into a third bedroom, providing flexible living options. The garage also includes a half bath and is equipped with an easily installable flood protection barrier, offering added security and peace of mind during storm season. The property also features a massive, detached warehouse/garage capable of housing up to eighteen plus vehicles, with its own full bath, workshop space, and a matching flood barrier system—making both structures storm-prepared while still easily accessible for daily use. This setup is ideal for car collectors, hobbyists, or anyone needing serious storage and utility space.. Additional bonus - dedicated area for RV parking, complete with water and sewer connections to support your recreational lifestyle. Step into the fully fenced backyard, your own private oasis completes with a sparkling pool and custom outdoor kitchen—perfect for entertaining guests, relaxing with family, or soaking up the Florida sun in privacy. Additional highlights include a metal roof for long-term durability and low maintenance, as well as southwest-facing front exposure, which fills the home with warm natural light and stunning sunset views. Located just minutes from open water via Pirate Harbor’s deep-water canal system, in a neighborhood POA of only $150 a year which includes boat access, this home is a true dream, with quick access to Charlotte Harbor and the Gulf of Mexico. You're also conveniently close to downtown Punta Gorda, I-75, waterfront dining, marinas, and Gulf Coast beaches. Whether you're seeking a full-time home, seasonal escape, or a versatile waterfront property with premium features and smart storm-ready enhancements, 24490 Yacht Club Blvd delivers exceptional quality, peace of mind, and the relaxed Florida lifestyle—all in one of Southwest Florida’s most desirable boating communities.
Public Survey Range
23E
Public Survey Section
19
Purchase Contract Date
2025-12-10
RATIO Current Price By Calculated SqFt
1107.64
Realtor Info
As-Is
Road Surface Type
Paved
Roof
Metal
Room Count
4
SW Subdiv Community Name
Pirate Harbor
Senior Community YN
false
Sewer
Public Sewer
Showing Requirements
ShowingTime
Spa YN
false
Status Change Timestamp
2025-12-10T11:14:25.000Z
Stories Total
2
Tax Annual Amount
11569.94
Tax Block
C
Tax Book Number
5-15
Tax Legal Description
PIR 002 000C 0013 PIRATE HARBOR UN 2 4.20 AC. M/L ALL OR PORTIONS OF LTS 13 34 THRU 39 BLK C LTS 8 THRU 13 LTS 19 THRU 23 BLK D LTS 7 THRU 11 BLK E LTS 19 THRU 22 BLK H & PORTIONS OF VAC GRAND RD S & SANTA ROSA & SPANISH MAIN RD ADJ THERETO ALSO DESC AS BEG AT SE COR
Tax Lot
13
Tax Year
2024
Total Acreage
5 to less than 10
Total Annual Fees
0.00
Total Monthly Fees
0.00
Township
42S
Universal Property Id
US-12015-N-422319427003-R-N
Unparsed Address
24490 YACHT CLUB BLVD
Utilities
Cable Available, Electricity Available, Sewer Available, Water Available
Water Access
Lake
Water Access YN
1
Water Extras
Fishing Pier
Water Extras YN
1
Water Source
Public
Water View
Canal, Lake
Water View YN
1
Waterfront YN
false
Zoning
RSF3.5
Neighborhood Map
Popup

Property Photos
Listing Photo
Listing Photo
Listing Photo
Listing Photo
Listing Photo
Listing Photo
Listing Photo
Listing Photo
Listing Photo
Listing Photo
Listing Photo
Listing Photo
Listing Photo
Listing Photo
Listing Photo
Listing Photo
Listing Photo
Listing Photo
Listing Photo
Listing Photo
Listing Photo
Listing Photo
Listing Photo
Listing Photo
Listing Photo
Listing Photo
Listing Photo
Listing Photo
Listing Photo
Listing Photo
Listing Photo
Listing Photo
Listing Photo
Listing Photo
Listing Photo
Listing Photo
Listing Photo
Listing Photo
Listing Photo
Listing Photo
Listing Photo
Listing Photo
Listing Photo
Listing Photo
Listing Photo
Listing Photo
Listing Photo
Listing Photo
Listing Photo
Listing Photo
Listing Photo
Listing Photo
Listing Photo
Listing Photo
Listing Photo
Listing Photo
Listing Photo
Listing Photo
Listing Photo
Listing Photo
Listing Photo
Listing Photo
Listing Photo
Listing Photo
Listing Photo
Listing Photo
Listing Photo
Listing Photo
Listing Photo
Listing Photo
Listing Photo
Listing Photo
Listing Photo
Listing Photo
Listing Photo
Listing Photo
Listing Photo
Listing Photo
Listing Photo
Listing Photo
Listing Photo
Listing Photo
Listing Photo
Listing Photo
Listing Photo
Listing Photo
Listing Photo
Listing Photo
Listing Photo
Listing Photo
Listing Photo
Listing Photo
Listing Photo
Listing Photo
Listing Photo
Listing Photo
Listing Photo
Listing Photo
Listing Photo
Listing Photo
Listing Photo
Listing Photo
Listing Photo
Listing Photo
Listing Photo
Listing Photo
Listing Photo
Listing Photo
Listing Photo
Listing Photo
Listing Photo
Listing Photo
Listing Photo
Listing Photo
Listing Photo
Listing Photo
Listing Photo
Listing Photo
Listing Photo
Listing Photo
Listing Photo
Listing Photo
Listing Photo
Listing Photo
Listing Photo
Listing Photo
Listing Photo
Listing Photo
Listing Photo
Listing Photo

MLS #MFRA4658850 Listing courtesy of Re/max Sunshine provided by Stellar MLS.

Similar Listings

$1,379,900
5000 Palermo Dr
Punta Gorda
3BR/3BA
| Pending
$1,399,000
1700 Los Alamos Drive
Punta Gorda
3BR/3BA
| Active
$1,399,000
758 Monaco
Punta Gorda
3BR/3BA
| Active
$1,450,000
1945 Jamaica Way
Punta Gorda
3BR/3BA
| Active



All listing information is deemed reliable but not guaranteed and should be independently verified through personal inspection by appropriate professionals. Listings displayed on this website may be subject to prior sale or removal from sale; availability of any listing should always be independent verified. Listing information is provided for consumer personal, non-commercial use, solely to identify potential properties for potential purchase; all other use is strictly prohibited and may violate relevant federal and state law. The source of the listing data is as follows: Stellar MLS (updated 12/10/25 7:41 AM) |

Listing Search



Translate Tool

Featured Listings
Duette Real Estate
$1,099,000
5 BED
3 BATH
Odessa Real Estate
$1,050,000
4 BED
3 BATH
Parrish Real Estate
$949,900
4 BED
3 BATH
Bradenton Real Estate
$874,900
3 BED
2 BATH
Gainesville Real Estate
$1,060,031
5 BED
5 BATH
Bradenton Real Estate
$1,398,354
3 BED
3 BATH
Celebration Real Estate
$865,000
4 BED
3 BATH
Kissimmee Real Estate
$970,000
12 BED
11 BATH
Myakka City Real Estate
$826,000
4 BED
3 BATH
Myakka City Real Estate
$990,000
4 BED
3 BATH
Contact Sandra Pardo

407-990-2746

Wendy Morris LLC

Licensed in the State of Florida
BK 3146762
16797 Broadwater Avenue
Winter Garden, Florida 34787

Your privacy is our utmost concern. We will never sell your personal information. Privacy Policy
©2025 sandrapardohomes.com - all rights reserved. | Site Map