407-990-2746
Menu

24139 Jolly Roger Boulevard, Punta Gorda, FL

NEXT
PREV
$1,235,000

($732/sqft)

List Status: Active
24139 Jolly Roger Boulevard
Punta Gorda, FL 33955


3 beds
2 baths
1687 living sqft
Top Features
  • Frontage: Bay/Harbor
  • View: Water
  • Subdivision: Pirate Harbor
  • Built in  1988
  • Single Family Residence
Description
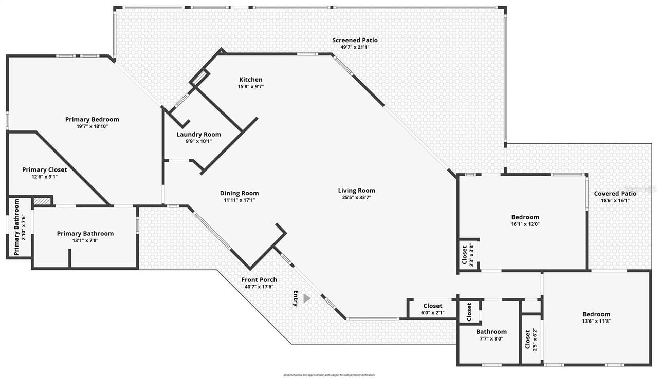
Welcome to your very own piece of Paradise in the highly sought-after Pirate Harbor Community! If you are dreaming of the Ideal Florida Waterfront Lifestyle, 210 ft. of Waterfront with Unobstructed Views of Charlotte Harbor and all the way thru to Boca Grande Pass and beyond to the Gulf of Mexico, protected by Seawall and Mangroves giving you complete Direct Access to Pristine Charlotte Harbor for World Class Boating and Fishing, plus a short Boat Ride to Boca Grande and the Gulf of Mexico then this Home is your Perfect choice. The Many Features of this Custom Designed and Graceful Estate Home includes High End Finishes throughout, the Attention to Detail is throughout, from Floor to Ceiling, take in the Open Floor Plan with High Ceilings and Solid Hardwood Maple Flooring throughout, as you enter through the Double Doors with Etched Glass, you are greeted by the Incredible Waterfront Views, Spacious Great Room, Soaring Ceilings, Semi-Separate Dining Area with one of kind built-in Wet Bar with Wine Cooler, this is a must see! Uniquely Designed and Custom Built Chef’s Kitchen with Gas Gagganeau Cooktop with separate Wok Burner, Built in Double ovens, Beautiful Solid Tiger Maple Wood Cabinets with Artisan Carved Glass Doors, track pendent and task lighting, Expansive Breakfast Bar, Custom Stone Counters, High End Appliances, Sub-zero side-by-side Refrigerator/Freezer, undercounter GE Fridge, Indoor Grill, Miele Dishwasher, and amazing Waterfront Views. The Private Primary En-Suite, with sliding glass door offers access to the Screened Deck, Custom Designed Primary Spa with Freestanding Curved Blue Glass Walk in Shower, Granite Counters and His and Her's Vanities, Walk in Closet, Italina Slate Tile and Custom Lighting. Split Floor Plan with Two Guest Bedrooms and a Guest Bath, all rooms have Water Views, Inside Laundry Room with extra Storage, Exterior tankless propane Water Heater, Whole House water softener system with R/O Drinking water system, Closed cell foam insul
Property Details
Additional Information
Additional Parcels YN
false
Additional Rooms
Attic, Formal Dining Room Separate, Great Room, Inside Utility
Alternate Key Folio Num
422319301009
Appliances
Bar Fridge, Built-In Oven, Cooktop, Dishwasher, Dryer, Gas Water Heater, Indoor Grill, Kitchen Reverse Osmosis System, Range, Refrigerator, Tankless Water Heater, Washer, Water Filtration System, Whole House R.O. System, Wine Refrigerator
Architectural Style
Key West
Association YN
false
Bathrooms Total Integer
2
Building Area Source
Public Records
Building Area Total
3203
Building Area Total Srch SqM
297.57
Building Area Units
Square Feet
Calculated List Price By Calculated SqFt
732.07
Carport Spaces
3
Carport YN
true
Construction Materials
Frame, Wood Siding
Cooling
Central Air
Country
US
Cumulative Days On Market
95
Current Price
1235000.00
Direction Faces
North
Disaster Mitigation
Hurricane Shutters/Windows
Elementary School
East Elementary
Exterior Features
Hurricane Shutters, Sliding Doors
Fireplace YN
false
Flood Zone Code
VE*
Flood Zone Date
2022-12-15
Flood Zone Panel
12015C0416G
Flooring
Tile, Wood
Foundation Details
Stilt/On Piling
Furnished
Unfurnished
Garage YN
false
Green Energy Efficient
Insulation
Heating
Central, Electric
High School
Charlotte High
Home Warranty YN
false
Homestead YN
1
Interior Features
Built-in Features, Ceiling Fans(s), Eat-in Kitchen, High Ceilings, Open Floorplan, Solid Wood Cabinets, Split Bedroom, Stone Counters, Walk-In Closet(s), Wet Bar
Internet Address Display YN
true
Internet Automated Valuation Display YN
true
Internet Consumer Comment YN
true
Internet Entire Listing Display YN
true
Laundry Features
Inside, Laundry Room
Levels
One
List AOR
Port Charlotte
Living Area Meters
156.73
Living Area Source
Owner
Living Area Units
Square Feet
Lot Features
Cul-De-Sac, In County, Paved
Lot Size Acres
0.42
Lot Size Square Feet
18292
Lot Size Square Meters
1699
Middle Or Junior School
Punta Gorda Middle
Modification Timestamp
2026-04-20T14:52:10.228Z
New Construction YN
false
Occupant Type
Vacant
Ownership
Fee Simple
Parcel Number
422319301009
Patio And Porch Features
Deck, Front Porch, Rear Porch, Screened
Pet Restrictions
AS PER CHARLOTTE COUNTY ZONING CODES
Pets Allowed
Yes
Pool Private YN
false
Postal Code Plus 4
1722
Previous List Price
1240000
Price Change Timestamp
2026-04-20T14:51:59.000Z
Public Survey Range
23E
Public Survey Section
19
RATIO Current Price By Calculated SqFt
732.07
Realtor Info
See Attachments
Road Surface Type
Paved
Roof
Metal
Room Count
7
SW Subdiv Community Name
Pirate Harbor
Senior Community YN
false
Sewer
Public Sewer
Showing Requirements
Combination Lock Box, See Remarks, ShowingTime
Spa YN
false
Status Change Timestamp
2026-01-15T14:43:57.000Z
Stories Total
1
Tax Annual Amount
6883.75
Tax Block
Q
Tax Book Number
5-15
Tax Legal Description
PIR 000 000Q 0008 PIRATE HARBOR BLK Q LT 8 178/74 338/116 485/941 550/2143 551/1651 QCD830/1336 1641/342
Tax Lot
8
Tax Year
2025
Total Acreage
1/4 to less than 1/2
Total Annual Fees
0.00
Total Monthly Fees
0.00
Township
42S
Universal Property Id
US-12015-N-422319301009-R-N
Unparsed Address
24139 JOLLY ROGER BLVD
Utilities
Electricity Connected, Propane, Sewer Connected, Water Connected
Vegetation
Mature Landscaping, Trees/Landscaped
Water Access
Bay/Harbor, Canal - Saltwater, Gulf/Ocean, Gulf/Ocean to Bay, Intracoastal Waterway
Water Access YN
1
Water Extras
Bridges - No Fixed Bridges, Lift, Seawall - Concrete, Seawall - Other
Water Extras YN
1
Water Frontage Feet Bay Harbor
200
Water Source
Public
Water View
Bay/Harbor - Full, Gulf/Ocean to Bay, Intracoastal Waterway
Water View YN
1
Waterfront Feet Total
200
Waterfront YN
true
Window Features
Skylight(s)
Zoning
RSF3.5
Zoning Compatible YN
1
Neighborhood Map
Popup

Property Photos
Listing Photo
Listing Photo
Listing Photo
Listing Photo
Listing Photo
Listing Photo
Listing Photo
Listing Photo
Listing Photo
Listing Photo
Listing Photo
Listing Photo
Listing Photo
Listing Photo
Listing Photo
Listing Photo
Listing Photo
Listing Photo
Listing Photo
Listing Photo
Listing Photo
Listing Photo
Listing Photo
Listing Photo
Listing Photo
Listing Photo
Listing Photo
Listing Photo
Listing Photo
Listing Photo
Listing Photo
Listing Photo
Listing Photo
Listing Photo
Listing Photo
Listing Photo
Listing Photo
Listing Photo
Listing Photo
Listing Photo
Listing Photo
Listing Photo
Listing Photo
Listing Photo
Listing Photo
Listing Photo
Listing Photo
Listing Photo
Listing Photo
Listing Photo
Listing Photo
Listing Photo
Listing Photo
Listing Photo
Listing Photo
Listing Photo
Listing Photo
Listing Photo
Listing Photo
Listing Photo
Listing Photo
Listing Photo
Listing Photo
Listing Photo
Listing Photo
Listing Photo
Listing Photo
Listing Photo
Listing Photo
Listing Photo
Listing Photo
Listing Photo
Listing Photo
Listing Photo
Listing Photo
Listing Photo
Listing Photo
Listing Photo
Listing Photo
Listing Photo
Listing Photo
Listing Photo
Listing Photo
Listing Photo
Listing Photo
Listing Photo
Listing Photo
Listing Photo
Listing Photo
Listing Photo
Listing Photo
Listing Photo
Listing Photo
Listing Photo
Listing Photo
Listing Photo
Listing Photo
Listing Photo
Listing Photo
Listing Photo
Listing Photo
Listing Photo
Listing Photo
Listing Photo
Listing Photo
Listing Photo
Listing Photo
Listing Photo
Listing Photo
Listing Photo
Listing Photo
Listing Photo
Listing Photo
Listing Photo
Listing Photo
Listing Photo
Listing Photo
Listing Photo
Listing Photo
Listing Photo
Listing Photo
Listing Photo
Listing Photo
Listing Photo
Listing Photo
Listing Photo
Listing Photo
Listing Photo

MLS #MFRC7520133 Listing courtesy of Re/max Harbor Realty provided by Stellar MLS.

Similar Listings

$1,149,900
630 Coronado Drive
Punta Gorda
3BR/2BA
| Active
$1,149,999
24454 Nova Lane
Punta Gorda
3BR/2BA
| Active
$1,185,000
490 Sorrento Court
Punta Gorda
3BR/2BA
| Active
$1,190,000
112 Great Isaac Court
Punta Gorda
3BR/2BA
| Pending



All listing information is deemed reliable but not guaranteed and should be independently verified through personal inspection by appropriate professionals. Listings displayed on this website may be subject to prior sale or removal from sale; availability of any listing should always be independent verified. Listing information is provided for consumer personal, non-commercial use, solely to identify potential properties for potential purchase; all other use is strictly prohibited and may violate relevant federal and state law. The source of the listing data is as follows: Stellar MLS (updated 5/11/26 10:13 AM) |

Listing Search



Translate Tool

Featured Listings
St Petersburg Real Estate
$1,389,900
5 BED
3 BATH
Exceptional waterfront pool home in the highly desirable Venetian Isles in St Petersburg, offering deep water and unobst... Read More
Sarasota Real Estate
$950,000
2 BED
2 BATH
Experience the best of beachfront living at Lido Ambassador with this rarely available 6th-floor residence, lovingly mai... Read More
University Park Real Estate
$1,150,000
3 BED
3 BATH
Welcome home to Wilton Crescent, an amenity-rich community tucked behind the gates of University Park Country Club. Perf... Read More
Tarpon Springs Real Estate
$1,500,000
3 BED
3 BATH
Stunning, newly constructed single-story custom home built in 2024 and tucked behind the gates of the exclusive enclave ... Read More
Crystal River Real Estate
$1,250,000
3 BED
2 BATH
What’s behind the gate?? Some properties check boxes. This one rewrites the list entirely. Tucked behind electric entran... Read More
Land O Lakes Real Estate
$850,000
4 BED
4 BATH
Welcome to this beautifully designed 4-bedroom, 4-bath home in the highly sought-after Bexley community of Land O’ Lakes... Read More
Ponte Vedra Beach Real Estate
$1,200,000
4 BED
3 BATH
Fully updated and move-in ready, this model-like home offers exceptional flow, thoughtful design, and one of the most fu... Read More
Tampa Real Estate
$975,000
3 BED
3 BATH
Welcome to this beautiful residence with breathtaking views of the sparkling heated pool and Hillsborough Bay! This exqu... Read More
St Petersburg Real Estate
$1,250,000
3 BED
2 BATH
Over $46,000 in designer UPGRADES including custom walk-in closets, motorized window shades, Restoration Hardware lighti... Read More
Port Charlotte Real Estate
$899,000
4 BED
2 BATH
WELCOME to a truly special waterfront offering where NATURAL BEAUTY, PRIVACY, and BOATING FREEDOM come together in one u... Read More
Contact Sandra Pardo

407-990-2746

Wendy Morris LLC

Licensed in the State of Florida
BK 3146762
16797 Broadwater Avenue
Winter Garden, Florida 34787

Your privacy is our utmost concern. We will never sell your personal information. Privacy Policy
©2026 sandrapardohomes.com - all rights reserved. | Site Map