407-990-2746
Menu

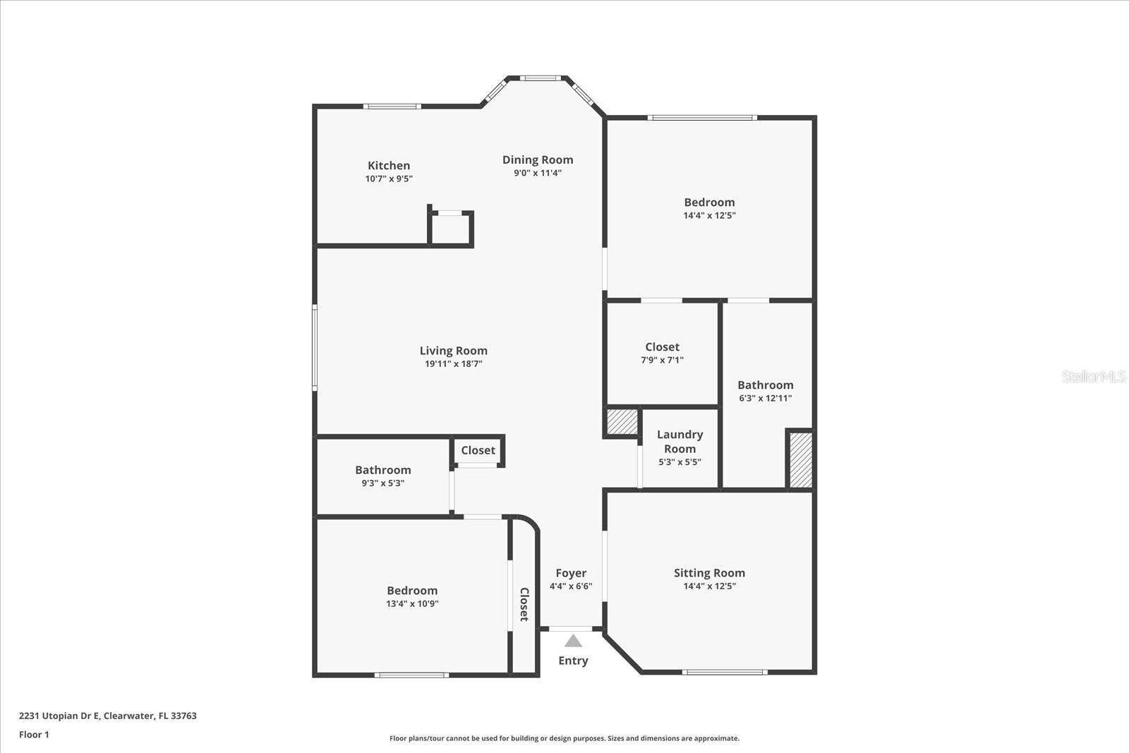
2231 Utopian E Drive Unit: Unit: 309, Clearwater, FL

NEXT
PREV
$224,900

($170/sqft)

List Status: Pending
2231 Utopian E Drive
Clearwater, FL 33763


3 beds
2 baths
1325 living sqft
Top Features
  • Subdivision: On Top Of The World
  • Built in  1995
  • Condominium
Description
Under contract-accepting backup offers. This well-maintained 3rd-floor condo in gated community features vaulted ceilings that create a light, bright, and open feel. This building was built in 1995 and is located in On Top of the World – Paradise, this desirable retirement community offers comfortable, low-maintenance living. The kitchen includes a newer refrigerator and a convenient closet pantry. The spacious primary bedroom offers a walk-in closet and an en suite bathroom with a double vanity and walk-in shower. Both bathrooms feature newer toilets and updated fixtures. The third bedroom is currently used as a den and includes a hidden closet behind built-in bookshelves, providing flexible living options. Convenient elevator and storage access are located right next to the unit. This condo has been lightly used seasonally during the winter and spring months for the past 20 years, resulting in a well-cared-for, move-in-ready home. Enjoy an active lifestyle with outstanding community amenities including a fitness center, tennis and pickleball courts, resort-style pool, clubhouse, shuffleboard and a 9 and 18 hole golf course. Ideally located close to Publix, shopping, restaurants, and everyday conveniences. Furniture is negotiable, offering an easy and seamless transition for the new owner.
Property Details
Additional Information
Additional Lease Restrictions
must verify with condo management
Additional Parcels YN
false
Additional Rooms
Inside Utility
Alternate Key Folio Num
062916641290923090
Appliances
Dishwasher, Disposal, Dryer, Electric Water Heater, Microwave, Range, Refrigerator, Washer
Approval Process
must verify with condo management
Association Amenities
Clubhouse, Elevator(s), Fitness Center, Gated, Golf Course, Pickleball Court(s), Pool, Recreation Facilities, Shuffleboard Court, Spa/Hot Tub, Storage, Tennis Court(s), Wheelchair Access
Association Approval Required YN
1
Association Fee Frequency
Monthly
Association Fee Includes
Cable TV, Pool, Insurance, Internet, Maintenance Structure, Maintenance Grounds, Management, Pest Control, Recreational Facilities, Security, Sewer, Trash, Water
Association Fee Requirement
Required
Association URL
www.otowclearwaterinfo.com
Association YN
true
Available For Lease YN
1
Bathrooms Total Integer
2
Building Area Source
Public Records
Building Area Total
1325
Building Area Total Srch SqM
123.10
Building Area Units
Square Feet
Building Elevator YN
1
Calculated List Price By Calculated SqFt
169.74
Carport YN
false
Community Features
Association Recreation - Lease, Buyer Approval Required, Deed Restrictions, Dog Park, Fitness Center, Gated Community - No Guard, Golf, Pool, Sidewalks, Tennis Court(s), Wheelchair Access
Condo Fees
567
Condo Fees Term
Monthly
Construction Materials
Block, Stucco
Contract Status
Inspections
Cooling
Central Air
Country
US
Cumulative Days On Market
41
Current Price
224900.00
Direction Faces
North
Expected Closing Date
2026-04-07T00:00:00.000
Exterior Features
Sidewalk
Fireplace YN
false
Flood Zone Code
X
Floor Number
3
Flooring
Carpet, Laminate, Tile
Foundation Details
Other
Furnished
Negotiable
Garage YN
false
Heating
Central, Electric
Interior Features
Ceiling Fans(s), Living Room/Dining Room Combo, Open Floorplan, Vaulted Ceiling(s), Walk-In Closet(s)
Internet Address Display YN
true
Internet Automated Valuation Display YN
true
Internet Consumer Comment YN
true
Internet Entire Listing Display YN
true
Laundry Features
Electric Dryer Hookup, Inside, Laundry Room
Lease Restrictions YN
1
Levels
One
List AOR
Suncoast Tampa
Living Area Meters
123.10
Living Area Source
Public Records
Living Area Units
Square Feet
Lot Features
Sidewalk, Paved
Max Pet Weight
100
Minimum Lease
6 Months
Modification Timestamp
2026-02-14T11:19:09.051Z
Monthly Condo Fee Amount
567
New Construction YN
false
Number Of Pets
1
Occupant Type
Owner
Ownership
Condominium
Parcel Number
06-29-16-64129-092-3090
Pet Size
Large (61-100 Lbs.)
Pets Allowed
Yes
Pool Private YN
false
Postal Code Plus 4
4243
Previous List Price
244900
Price Change Timestamp
2026-02-07T15:15:10.000Z
Public Survey Range
16
Public Survey Section
06
Purchase Contract Date
2026-02-13
RATIO Current Price By Calculated SqFt
169.74
Realtor Info
Assoc approval required
Road Surface Type
Paved
Roof
Other
Room Count
5
Senior Community YN
true
Sewer
Public Sewer
Showing Requirements
Supra Lock Box, Appointment Only, ShowingTime
Status Change Timestamp
2026-02-14T11:19:06.000Z
Stories Total
3
Tax Annual Amount
2932.34
Tax Book Number
116-1
Tax Legal Description
ON TOP OF THE WORLD UNIT 88 CONDO BLDG 92, APT 309
Tax Year
2024
Total Annual Fees
6804.00
Total Monthly Fees
567.00
Township
29
Universal Property Id
US-12103-N-062916641290923090-S-309
Unparsed Address
2231 UTOPIAN DR E #309
Utilities
BB/HS Internet Available, Cable Connected, Electricity Connected, Phone Available, Public, Sewer Connected, Water Connected
Water Source
Public
Waterfront YN
false
Window Features
Drapes, Shades
Neighborhood Map
Popup

Property Photos
Listing Photo
Listing Photo
Listing Photo
Listing Photo
Listing Photo
Listing Photo
Listing Photo
Listing Photo
Listing Photo
Listing Photo
Listing Photo
Listing Photo
Listing Photo
Listing Photo
Listing Photo
Listing Photo
Listing Photo
Listing Photo
Listing Photo
Listing Photo
Listing Photo
Listing Photo
Listing Photo
Listing Photo
Listing Photo
Listing Photo
Listing Photo
Listing Photo
Listing Photo
Listing Photo
Listing Photo
Listing Photo
Listing Photo
Listing Photo
Listing Photo
Listing Photo
Listing Photo
Listing Photo
Listing Photo
Listing Photo
Listing Photo
Listing Photo
Listing Photo
Listing Photo
Listing Photo
Listing Photo
Listing Photo
Listing Photo
Listing Photo
Listing Photo
Listing Photo
Listing Photo
Listing Photo
Listing Photo
Listing Photo
Listing Photo
Listing Photo
Listing Photo
Listing Photo
Listing Photo
Listing Photo
Listing Photo
Listing Photo
Listing Photo
Listing Photo
Listing Photo
Listing Photo
Listing Photo
Listing Photo
Listing Photo

MLS #MFRTB8460506 Listing courtesy of Re/max Action First Of Florida provided by Stellar MLS.

Similar Listings

$207,500
1880 Sylvan Drive
Clearwater
3BR/2BA
| Pending
$209,900
29250 Us Highway 19 N
Clearwater
3BR/2BA
| Pending
$214,900
3455 Countryside Boulevard
Clearwater
3BR/2BA
| Active
$214,900
1621 N Washington Avenue
Clearwater
3BR/2BA
| Pending



All listing information is deemed reliable but not guaranteed and should be independently verified through personal inspection by appropriate professionals. Listings displayed on this website may be subject to prior sale or removal from sale; availability of any listing should always be independent verified. Listing information is provided for consumer personal, non-commercial use, solely to identify potential properties for potential purchase; all other use is strictly prohibited and may violate relevant federal and state law. The source of the listing data is as follows: Stellar MLS (updated 3/19/26 10:14 AM) |

Listing Search



Translate Tool

Featured Listings
St Petersburg Real Estate
$1,495,000
6 BED
4 BATH
Welcome to your dream home—where timeless craftsmanship and modern sophistication converge in this stunning new construc... Read More
St Pete Beach Real Estate
$900,000
2 BED
2 BATH
WAKE UP TO THE GULF EVERY SINGLE DAY !! PREMIER BEACHFRONT LUXURY LIVING AT BEAU MONDE OFFERING A 2ND FLOOR CONDO FEATUR... Read More
Tavares Real Estate
$1,400,000
6 BED
4 BATH
Set on 2.32 PICTURESQUE ACRES inside the GATED ~ EQUESTRIAN COMMUNITY of Beauclair Ranch Club, this CUSTOM BUILT ~ 6-bed... Read More
Wesley Chapel Real Estate
$900,000
5 BED
4 BATH
Welcome to a home that truly sets the standard for luxury living. Perfectly positioned on a private conservation lot wit... Read More
Tampa Real Estate
$1,129,990
4 BED
3 BATH
Pre-Construction. To be built. New Construction in North Hyde Park – Mitchell Wilson Plant!! Pre-construction buyers can... Read More
St Petersburg Real Estate
$800,000
3 BED
2 BATH
Modern coastal meets effortless entertaining. With an open floor plan and a backyard designed for year-round lounging, t... Read More
Oldsmar Real Estate
$1,280,000
4 BED
3 BATH
Under Construction. This stunning new three-story residence by Danva Construction perfectly blends modern luxury with re... Read More
Port Charlotte Real Estate
$1,500,000
4 BED
4 BATH
Experience a lifestyle of unmatched luxury and serenity at 3690 Como Street—an extraordinary waterfront residence set wi... Read More
New Port Richey Real Estate
$829,000
3 BED
3 BATH
ONE OWNER CUSTOM HOME constructed on a 6ft elevated building pad so it hasn't had any flooding damage and hence enjoys m... Read More
The Villages Real Estate
$825,000
3 BED
3 BATH
~GOLF COURSE AND WATER VIEW~ ~ROOM FOR A POOL~ ~GLASS ENCLOSED LANAI~ ~DINING ROOM TABLE & 6 CHAIRS + ALL LANAI FURNITUR... Read More
Contact Sandra Pardo

407-990-2746

Wendy Morris LLC

Licensed in the State of Florida
BK 3146762
16797 Broadwater Avenue
Winter Garden, Florida 34787

Your privacy is our utmost concern. We will never sell your personal information. Privacy Policy
©2026 sandrapardohomes.com - all rights reserved. | Site Map