407-990-2746
Menu

2178 Ne 28th Place, Ocala, FL

NEXT
PREV
$270,990

($204/sqft)

List Status: Pending
2178 Ne 28th Place
Ocala, FL 34470


3 beds
2 baths
1328 living sqft
Top Features
  • Subdivision: Emerson Pointe
  • Built in  2026
  • Single Family Residence
Description
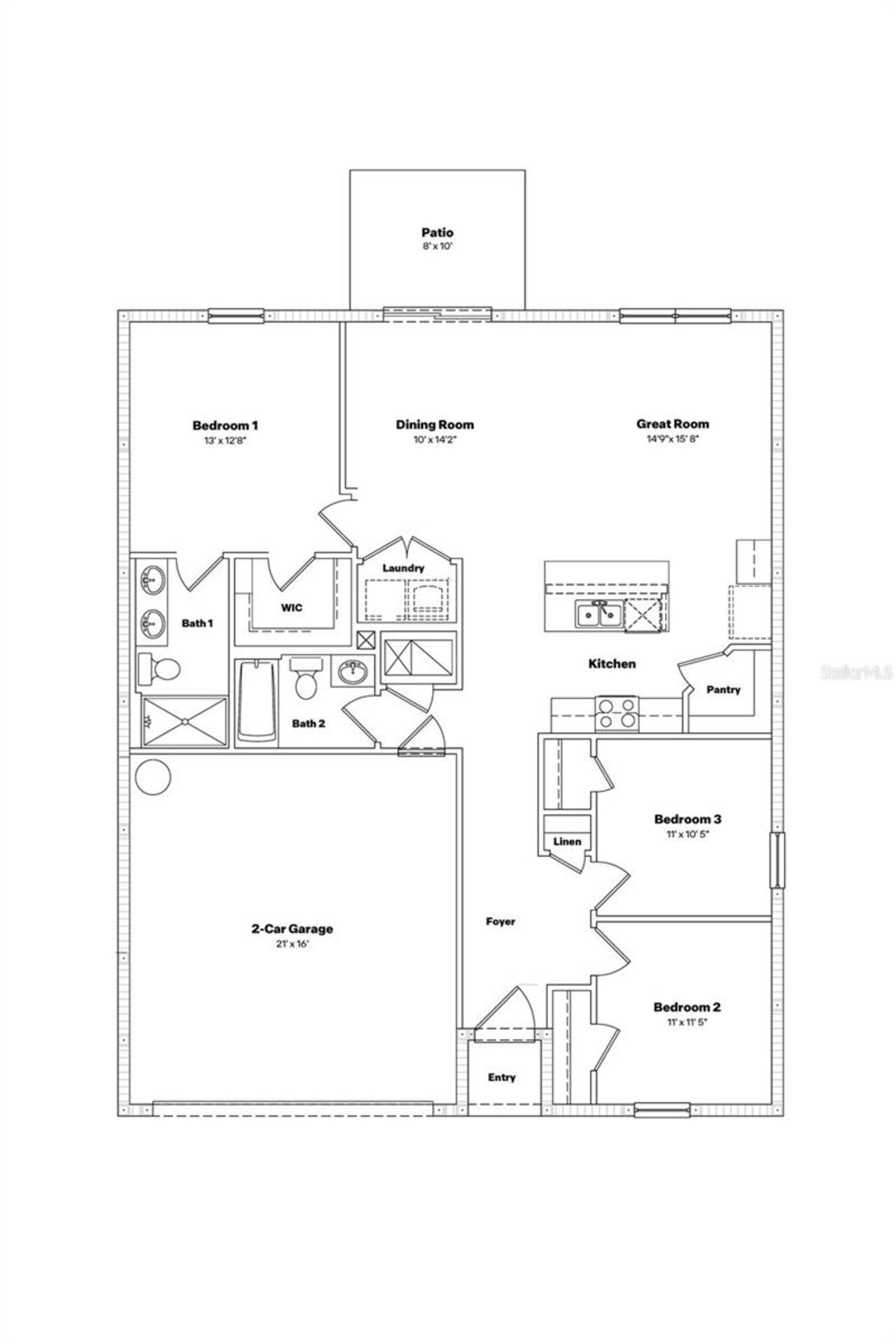
Under Construction. This single-story, all concrete block constructed 3 bedroom, 2 bathroom home features an open concept floorplan that optimizes living space. The spacious kitchen overlooks the great room, dining area, and outdoor patio. The kitchen comes full equipped with stainless-steel appliances including a built-in dishwasher, range, and microwave. The primary suite is located towards the back of the home, featuring a spacious walk-in closet and ensuite bathroom with double vanity sinks. Two additional bedrooms are located towards the front of the home and share a bathroom across the hall. Pictures, photographs, colors, features, and sizes are for illustration purposes only and will vary from the homes as built. Home and community information including pricing, included features, terms, availability and amenities are subjext to change and prior sale at any time without notice or obligation. CRC057592.
Property Details
Property Features
Property Sub Type
Single Family Residence
County
Marion
Subdivision
EMERSON POINTE
Additional Information
Additional Lease Restrictions
Per HOA Guidelines
Additional Parcels YN
false
Appliances
Dishwasher, Microwave, Range
Approval Process
Per HOA Guidelines
Association Approval Required YN
1
Association Email
ayla@boydrealestategroup.com
Association Fee
95
Association Fee Frequency
Monthly
Association Fee Requirement
Required
Association YN
true
Attached Garage YN
true
Available For Lease YN
1
Bathrooms Total Integer
2
Builder License Number
CRC057592
Builder Model
Archer II
Builder Name
DR Horton INC
Building Area Source
Builder
Building Area Total
1328
Building Area Total Srch SqM
123.38
Building Area Units
Square Feet
Calculated List Price By Calculated SqFt
204.06
Carport YN
false
Construction Materials
Block
Cooling
Central Air
Country
US
Cumulative Days On Market
89
Current Price
270990.00
Direction Faces
Northeast
Elementary School
Ocala Springs Elem. School
Expected Closing Date
2027-03-01T00:00:00.000
Fireplace YN
false
Flood Zone Code
x
Flooring
Carpet, Luxury Vinyl
Foundation Details
Slab
Furnished
Unfurnished
Garage Spaces
2
Garage YN
true
Heating
Electric, Heat Pump
High School
Vanguard High School
Home Warranty YN
true
Interior Features
Open Floorplan
Internet Address Display YN
true
Internet Automated Valuation Display YN
true
Internet Consumer Comment YN
false
Internet Entire Listing Display YN
true
Laundry Features
Laundry Room
Lease Restrictions YN
1
Levels
One
List AOR
Ocala - Marion
Living Area Meters
123.38
Living Area Source
Builder
Living Area Units
Square Feet
Lot Size Acres
0.17
Lot Size Square Feet
7200
Lot Size Square Meters
669
Middle Or Junior School
Fort King Middle School
Minimum Lease
7 Months
Modification Timestamp
2026-04-27T15:19:09.363Z
Monthly HOA Amount
95.00
New Construction YN
true
Occupant Type
Vacant
Other Equipment
Irrigation Equipment
Ownership
Fee Simple
Parcel Number
24286-102-00
Permit Number
BLD25-2693
Pet Restrictions
Per HOA Guidelines
Pets Allowed
Yes
Pool Private YN
false
Previous List Price
273990
Price Change Timestamp
2026-04-08T12:32:23.000Z
Projected Completion Date
2026-05-20T00:00:00.000
Property Condition
Under Construction
Public Survey Range
22
Public Survey Section
04
Purchase Contract Date
2026-04-27
RATIO Current Price By Calculated SqFt
204.06
Road Surface Type
Paved
Roof
Shingle
Room Count
4
Senior Community YN
false
Sewer
Public Sewer
Showing Requirements
Contact Call Center
Status Change Timestamp
2026-04-27T15:18:21.000Z
Tax Block
-
Tax Book Number
016/102
Tax Legal Description
SEC 04 TWP 15 RGE 22 PLAT BOOK 016 PAGE 124 EMERSON POINTE PHASE 1A LOT 102
Tax Lot
102
Tax Year
2025
Total Acreage
0 to less than 1/4
Total Annual Fees
1140.00
Total Monthly Fees
95.00
Township
15
Universal Property Id
US-12083-N-2428610200-R-N
Unparsed Address
2178 NE 28TH PL
Utilities
Other
Water Source
Public
Waterfront YN
false
Zoning
PUD
Neighborhood Map
Popup

Property Photos
Listing Photo
Listing Photo
Listing Photo
Listing Photo
Listing Photo
Listing Photo
Listing Photo
Listing Photo
Listing Photo
Listing Photo
Listing Photo
Listing Photo
Listing Photo
Listing Photo
Listing Photo
Listing Photo
Listing Photo
Listing Photo
Listing Photo
Listing Photo
Listing Photo
Listing Photo
Listing Photo
Listing Photo
Listing Photo
Listing Photo
Listing Photo
Listing Photo
Listing Photo
Listing Photo
Listing Photo
Listing Photo
Listing Photo
Listing Photo
Listing Photo
Listing Photo
Listing Photo
Listing Photo
Listing Photo
Listing Photo
Listing Photo
Listing Photo
Listing Photo
Listing Photo
Listing Photo
Listing Photo
Listing Photo
Listing Photo
Listing Photo
Listing Photo

MLS #MFROM717637 Listing courtesy of Dr Horton Realty Of West Central Florida provided by Stellar MLS.

Similar Listings

$243,990
3726 Ne 32nd Court
Ocala
3BR/2BA
| Active
$244,000
8061 Sw 81st Loop
Ocala
3BR/2BA
| Active
$244,000
16592 Sw 31st Circle
Ocala
3BR/2BA
| Pending
$244,500
14174 Sw 28th Lane
Ocala
3BR/2BA
| Pending



All listing information is deemed reliable but not guaranteed and should be independently verified through personal inspection by appropriate professionals. Listings displayed on this website may be subject to prior sale or removal from sale; availability of any listing should always be independent verified. Listing information is provided for consumer personal, non-commercial use, solely to identify potential properties for potential purchase; all other use is strictly prohibited and may violate relevant federal and state law. The source of the listing data is as follows: Stellar MLS (updated 5/17/26 9:17 AM) |

Listing Search



Translate Tool

Featured Listings
Tampa Real Estate
$824,999
4 BED
3 BATH
One or more photo(s) has been virtually staged. Welcome to 8005 Cypress Crossing Court in the sought-after Grand Hampton... Read More
Tampa Real Estate
$1,099,000
4 BED
3 BATH
Welcome to this Bayshore Beautiful nearly new home on a lovely tree lined street steps from Bayshore Blvd.  Step into th... Read More
Lutz Real Estate
$965,000
4 BED
3 BATH
Discover luxury living in this stunning single-story pool home at 19128 Centre Rose Blvd in the prestigious gated Faberg... Read More
Mount Dora Real Estate
$1,395,000
4 BED
4 BATH
A hidden gem in Mount Dora! This spectacular home is ideally on the highest ridge in Mount Dora and within short distanc... Read More
Winter Garden Real Estate
$997,000
5 BED
3 BATH
Under contract-accepting backup offers. The lakefront life of grandeur awaits you in this stunningly enhanced North Have... Read More
Tarpon Springs Real Estate
$1,395,000
3 BED
2 BATH
A Rare Gulf-Front Estate Defined by Elegance, Privacy, and Coastal Artistry Set along the pristine shoreline with direct... Read More
Sarasota Real Estate
$925,000
4 BED
2 BATH
From the moment you arrive, you’ll fall in love with the charm, warmth, and unbeatable location of this tropical Mediter... Read More
Tavares Real Estate
$1,100,000
4 BED
4 BATH
Experience the ultimate Harris Chain lifestyle in this beautifully remodeled lakefront estate with NO HOA. Rest easy wit... Read More
Reunion Real Estate
$806,000
6 BED
4 BATH
EPIC golf course frontage residence located at Reunion Resort. ACTIVE MEMBERSHIP! Situated safely along the 6th hole of ... Read More
Port Charlotte Real Estate
$925,000
3 BED
2 BATH
Experience a rare waterfront oasis at the end of a quiet cul-de-sac! This stunning 3BR, 2.5BA home spans 2,189 SQ FT, of... Read More
Contact Sandra Pardo

407-990-2746

Wendy Morris LLC

Licensed in the State of Florida
BK 3146762
16797 Broadwater Avenue
Winter Garden, Florida 34787

Your privacy is our utmost concern. We will never sell your personal information. Privacy Policy
©2026 sandrapardohomes.com - all rights reserved. | Site Map