407-990-2746
Menu

21351 Canal Drive, Brooksville, FL

NEXT
PREV
$229,643

($179/sqft)

List Status: Active
21351 Canal Drive
Brooksville, FL 34601


3 beds
2 baths
1280 living sqft
Top Features
  • Subdivision: Damac Modular Home Park
  • Built in  2025
  • Manufactured Home
Description
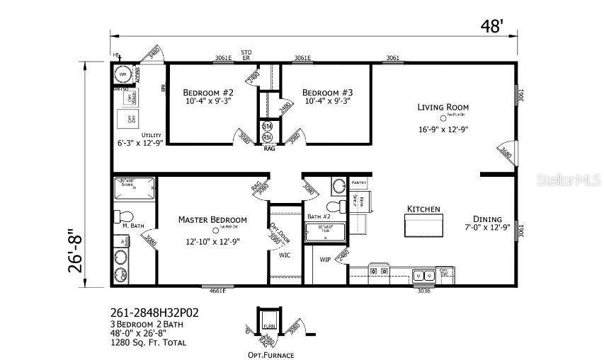
Pre-Construction. To be built. Welcome to your dream home, 21351 Canal Drive, Brooksville, FL 34601! Corner lot with a cul-de-sac, offering less through-traffic and a sense of privacy. This beautifully designed 3-bedroom, 2-bathroom brand-new manufactured home offers a spacious, open floor plan ideal for modern living. From the moment you step inside, you’ll appreciate the high-quality finishes and attention to detail with vinyl flooring throughout. The spacious living room seamlessly flows into the kitchen and dining area, perfect for entertaining guests. The master bedroom is a serene retreat, with a luxurious en-suite master bath with a dual sink vanity, shower and a walk-in closet. The second bathroom offers a tub, perfect for unwinding after a long day. The chef-inspired kitchen is equipped with brand-new stainless-steel appliances, featuring a central island with a breakfast bar, shaker-style cabinets and walk-in pantry. Two additional bedrooms provide plenty of space for family members or guests, each with walk-in closet. The added family room provides even more space to spread out, whether you need a home office, playroom, or second living area. Additionally, the utility room is a great space for laundry and storage, adding to the home’s overall convenience. Situated just a short drive from essential services and local attractions. Downtown Brooksville, with its historic charm, festivals, shops, and eateries, is approximately 2 miles away. Nature lovers will appreciate the proximity to the Withlacoochee State Trail, about 4 miles away, offering expansive pathways perfect for biking, walking, and enjoying the beautiful Florida outdoors. For a classic Florida experience, attractions like Weeki Wachee Springs are also easily accessible. This home is a prime location with no HOA or lot rent to worry about. Don't miss out on this incredible opportunity to make this brand-new home yours! Schedule your viewing today and experience the best of Florida living.
Property Details
Additional Information
Additional Parcels YN
false
Additional Rooms
Inside Utility
Alternate Key Folio Num
00837811
Appliances
Dishwasher, Electric Water Heater, Range, Refrigerator
Architectural Style
Other
Association YN
false
Bathrooms Total Integer
2
Body Type
Double Wide
Building Area Source
Builder
Building Area Total
1280
Building Area Total Srch SqM
118.92
Building Area Units
Square Feet
Calculated List Price By Calculated SqFt
179.41
Carport YN
false
Construction Materials
Vinyl Siding
Cooling
Central Air
Country
US
Cumulative Days On Market
168
Current Price
229643.00
Direction Faces
Southeast
Elementary School
Brooksville Elementary
Exterior Features
Other, Private Mailbox
Fireplace YN
false
Flood Zone Code
X
Flood Zone Date
2012-02-02
Flood Zone Panel
12053C0184D
Flooring
Vinyl
Foundation Details
Concrete Perimeter, Crawlspace, Pillar/Post/Pier
Garage YN
false
Heating
Central
High School
Hernando High
Home Warranty YN
true
Interior Features
Eat-in Kitchen, Kitchen/Family Room Combo, Open Floorplan, Primary Bedroom Main Floor, Thermostat, Walk-In Closet(s)
Internet Address Display YN
true
Internet Automated Valuation Display YN
true
Internet Consumer Comment YN
true
Internet Entire Listing Display YN
true
Laundry Features
Electric Dryer Hookup, Inside, Laundry Room, Washer Hookup
Levels
One
List AOR
East Polk
Living Area Meters
118.92
Living Area Source
Builder
Living Area Units
Square Feet
Lot Features
Cul-De-Sac, In County, Level, Paved
Lot Size Acres
0.14
Lot Size Square Feet
6292
Lot Size Square Meters
585
Make
Champion
Middle Or Junior School
D.S. Parrot Middle
Model
Prime-2848H32P02
Modification Timestamp
2026-04-23T13:32:09.383Z
New Construction YN
true
Occupant Type
Vacant
Ownership
Fee Simple
Parcel Number
R11-222-19-1660-0000-0700
Patio And Porch Features
Front Porch, Side Porch
Pool Private YN
false
Postal Code Plus 4
1419
Previous List Price
229644
Price Change Timestamp
2026-04-23T13:32:04.000Z
Projected Completion Date
2025-12-03T00:00:00.000
Property Condition
Pre-Construction
Property Description
In M/H Community
Public Survey Range
19
Public Survey Section
11
RATIO Current Price By Calculated SqFt
179.41
Realtor Info
Docs Available, Floor Plan Available, Owner Will Assist with closing costs, See Attachments, Sign
Road Surface Type
Asphalt, Paved
Roof
Shingle
Room Count
8
Security Features
Smoke Detector(s)
Senior Community YN
false
Sewer
Public Sewer
Showing Requirements
Call Listing Agent, Combination Lock Box, Go Direct, Other, See Remarks, ShowingTime
Status Change Timestamp
2025-11-06T11:48:57.000Z
Tax Annual Amount
1107
Tax Block
0000
Tax Book Number
12-31
Tax Legal Description
DAMAC MODULAR HOME PARK UNIT 1 LOT 70 ORB 455 PG 54 ORB 563 PG 1794
Tax Lot
70
Tax Year
2024
Total Acreage
0 to less than 1/4
Total Annual Fees
0.00
Total Monthly Fees
0.00
Township
22
Universal Property Id
US-12053-N-1122219166000000700-R-N
Unparsed Address
21351 CANAL DR
Utilities
BB/HS Internet Available, Cable Available, Electricity Connected, Phone Available, Sewer Connected, Water Connected
Vegetation
Oak Trees
Water Source
Public
Waterfront YN
false
Zoning
RES
Neighborhood Map
Popup

Property Photos
Listing Photo
Listing Photo
Listing Photo
Listing Photo
Listing Photo
Listing Photo
Listing Photo
Listing Photo
Listing Photo
Listing Photo
Listing Photo
Listing Photo
Listing Photo
Listing Photo
Listing Photo
Listing Photo
Listing Photo
Listing Photo
Listing Photo
Listing Photo
Listing Photo
Listing Photo
Listing Photo
Listing Photo
Listing Photo
Listing Photo
Listing Photo
Listing Photo
Listing Photo
Listing Photo
Listing Photo
Listing Photo
Listing Photo
Listing Photo
Listing Photo
Listing Photo
Listing Photo
Listing Photo
Listing Photo
Listing Photo
Listing Photo
Listing Photo
Listing Photo
Listing Photo
Listing Photo
Listing Photo
Listing Photo
Listing Photo
Listing Photo
Listing Photo
Listing Photo
Listing Photo
Listing Photo
Listing Photo
Listing Photo
Listing Photo
Listing Photo
Listing Photo
Listing Photo
Listing Photo
Listing Photo
Listing Photo

MLS #MFRP4936949 Listing courtesy of J&t Property Solutions Group Llc provided by Stellar MLS.

Similar Listings

$209,000
8593 Silverbell Loop
Brooksville
3BR/2BA
| Active
$209,000
9722 Scepter Avenue
Brooksville
3BR/2BA
| Active
$209,500
8339 Weatherford Avenue
Brooksville
3BR/2BA
| Active
$215,000
8341 Highpoint Boulevard
Brooksville
3BR/2BA
| Active



All listing information is deemed reliable but not guaranteed and should be independently verified through personal inspection by appropriate professionals. Listings displayed on this website may be subject to prior sale or removal from sale; availability of any listing should always be independent verified. Listing information is provided for consumer personal, non-commercial use, solely to identify potential properties for potential purchase; all other use is strictly prohibited and may violate relevant federal and state law. The source of the listing data is as follows: Stellar MLS (updated 4/24/26 6:27 AM) |

Listing Search



Translate Tool

Featured Listings
Holmes Beach Real Estate
$1,099,000
3 BED
3 BATH
Enjoy the stunning sunset views from your own Gulf-front condo on Anna Maria Island. This 3BR/3BA private end unit, with... Read More
Land O Lakes Real Estate
$925,000
4 BED
3 BATH
Welcome to luxury living in the highly sought-after Bexley community of Land O’ Lakes, known for its resort-style pools,... Read More
St Petersburg Real Estate
$1,095,000
5 BED
4 BATH
Luxury Pool Home with ADU in Prime Old Pasadena Location Expertly curated for luxury living and effortless entertaining,... Read More
Clearwater Beach Real Estate
$949,000
2 BED
2 BATH
Commanding the 12th floor just below the penthouse at the prestigious Sand Key Club, this impeccably renovated Gulf-fron... Read More
Dunnellon Real Estate
$979,000
4 BED
2 BATH
Presenting an exceptional luxury homestead of exceptional quality — 7.77 fully fenced acres where privacy, tranquility, ... Read More
Tarpon Springs Real Estate
$830,000
5 BED
3 BATH
Stunning 2019-built "Royal" model where coastal luxury meets modern efficiency — and every major system has already been... Read More
St Petersburg Real Estate
$975,000
4 BED
3 BATH
Welcome to this beautiful Mediterranean-style, two-story home offering 2,761 sq ft of well-maintained living space, feat... Read More
Dunedin Real Estate
$1,335,000
4 BED
3 BATH
Come see 83 Palm Blvd, a residence arranged for everyday practicality with functional living spaces. The kitchen provide... Read More
Punta Gorda Real Estate
$889,000
3 BED
2 BATH
In Prairie Creek, where riding trails stretch for miles, this 5.17 acre property with a 3 bedroom, 2.5 bathroom home is ... Read More
Windermere Real Estate
$810,000
5 BED
4 BATH
Check out 4309 Saltmarsh Sparrow Dr, a residence featuring a partial flooring replacement that enhances its overall pres... Read More
Contact Sandra Pardo

407-990-2746

Wendy Morris LLC

Licensed in the State of Florida
BK 3146762
16797 Broadwater Avenue
Winter Garden, Florida 34787

Your privacy is our utmost concern. We will never sell your personal information. Privacy Policy
©2026 sandrapardohomes.com - all rights reserved. | Site Map