407-990-2746
Menu

2107 Palma Sola Boulevard Unit: Unit: 10, Bradenton, FL

NEXT
PREV
$325,000

($276/sqft)

List Status: Active
2107 Palma Sola Boulevard
Bradenton, FL 34209


2 beds
2 baths
1178 living sqft
Top Features
  • Subdivision: Palma Sola Shores
  • Built in  1977
  • Manufactured Home
Description
Property Details
Additional Information
Additional Lease Restrictions
Application and Approval required. Contact management to verify whether leasing is allowed.
Additional Parcels YN
false
Alternate Key Folio Num
3909710554
Appliances
Dishwasher, Dryer, Range, Refrigerator, Washer
Approval Process
Application and Approval required.
Association Amenities
Clubhouse, Pool, Shuffleboard Court
Association Approval Required YN
1
Association Email
mbeachy@amiwra.com
Association Fee
300
Association Fee Frequency
Monthly
Association Fee Includes
Pool, Recreational Facilities, Sewer, Trash, Water
Association Fee Requirement
Required
Association URL
www.amiwra.com
Association YN
true
Bathrooms Total Integer
2
Body Type
Double Wide
Building Area Source
Public Records
Building Area Total
1836
Building Area Total Srch SqM
170.57
Building Area Units
Square Feet
Calculated List Price By Calculated SqFt
275.89
Carport Spaces
2
Carport YN
true
Community Features
Buyer Approval Required, Clubhouse, Deed Restrictions, No Truck/RV/Motorcycle Parking, Pool
Construction Materials
Frame
Cooling
Central Air, Humidity Control, Wall/Window Unit(s)
Country
US
Cumulative Days On Market
1
Current Price
325000.00
Direction Faces
North
Elementary School
Palma Sola Elementary
Exterior Features
Hurricane Shutters, Outdoor Shower, Storage
Fireplace YN
false
Flood Zone Code
X500
Flood Zone Date
2021-08-10
Flood Zone Panel
12081C0282F
Flooring
Luxury Vinyl
Foundation Details
Crawlspace
Furnished
Furnished
Garage YN
false
Heating
Central
High School
Manatee High
Homestead YN
1
Interior Features
Ceiling Fans(s), Living Room/Dining Room Combo, Open Floorplan
Internet Address Display YN
true
Internet Automated Valuation Display YN
true
Internet Consumer Comment YN
true
Internet Entire Listing Display YN
true
Laundry Features
Laundry Room, Outside
Lease Restrictions YN
1
Levels
One
List AOR
Sarasota - Manatee
Living Area Meters
109.44
Living Area Source
Public Records
Living Area Units
Square Feet
Lot Size Acres
0.08
Lot Size Square Feet
3528
Lot Size Square Meters
328
Middle Or Junior School
Martha B. King Middle
Modification Timestamp
2025-12-03T11:49:13.186Z
Monthly HOA Amount
300.00
New Construction YN
false
Occupant Type
Owner
Other Structures
Shed(s)
Ownership
Fee Simple
Parcel Number
3909710554
Patio And Porch Features
Enclosed
Pets Allowed
No
Pool Private YN
false
Postal Code Plus 4
4837
Property Condition
Completed
Property Description
In M/H Community
Public Remarks
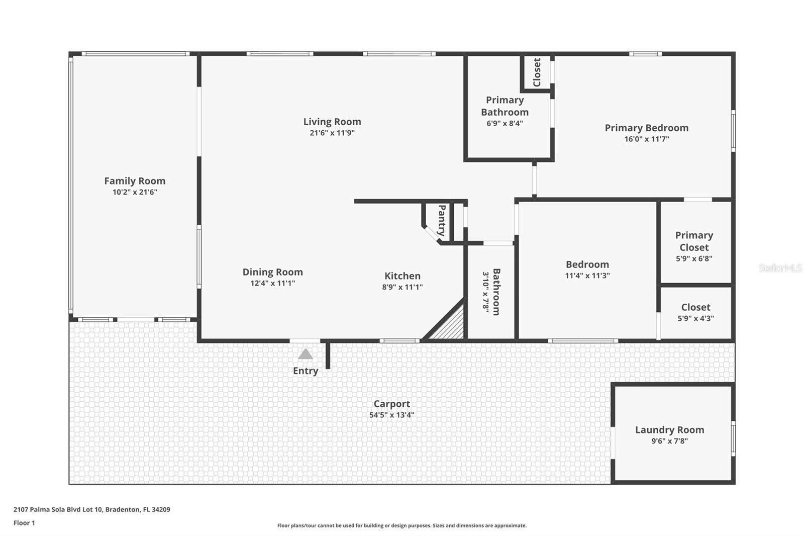
Welcome to Palma Sola Shores, a highly desirable land-owned 55+ community just minutes from Anna Maria Island. This beautifully maintained and fully turn-key 2-bedroom, 2-bath home has been thoughtfully and extensively updated, offering modern comfort and true peace of mind. Inside, you’ll find an inviting and light-filled interior with new flooring, lighting, and fans throughout, all completed in 2019. Both bathrooms were fully renovated the same year with updated electrical, plumbing, lighting, vents, and new showers, creating a fresh and cohesive feel throughout the home. The kitchen was also completely remodeled in 2019 and features new cabinets, appliances, countertops, sink and disposal, along with updated plumbing, electrical, and under-cabinet lighting—making it both beautiful and functional. The spacious sun room serves as an ideal bonus living area and was upgraded with new windows and door, insulated ceiling panels, and new flooring in 2019, along with a new window A/C unit installed in 2025. The primary living spaces are furnished with quality pieces, including an adjustable bed in the primary bedroom and a Tempur-Pedic sleeper sofa in the living room, allowing this home to be enjoyed immediately upon arrival. Additional improvements include a new roof installed in 2022 with a 20-year warranty, a new vapor barrier underneath in 2024, a hot water heater replaced in 2021, and an A/C upgrade in 2019 to cool the sun room more efficiently. The home was termite-tented in October 2025 and comes with a transferable 10-year warranty, providing reassurance for years to come. The driveway was resurfaced with polyaspartic decorative chip coating in 2022, and the property also features decorative curbing added in 2021, a new Maytag washer and dryer installed in the shed in 2025, and a new outdoor shower added in 2024. Palma Sola Shores offers a welcoming coastal lifestyle with access to a heated pool, clubhouse, waterfront dock, and kayak launch, all for an incredibly low HOA fee of just $300 per month. Conveniently located near beaches, Robinson Preserve, grocery stores, restaurants, medical facilities, and SRQ airport, this home offers the perfect blend of comfort, updates, and location. Move right in and enjoy everything this beautifully renovated home and charming community have to offer.
Public Survey Range
17
Public Survey Section
31
RATIO Current Price By Calculated SqFt
275.89
Realtor Info
Assoc approval required
Road Surface Type
Asphalt
Roof
Other
Room Count
9
SW Subdiv Community Name
Palma Sola
Senior Community YN
true
Sewer
Public Sewer
Showing Requirements
Call Listing Agent, ShowingTime
Status Change Timestamp
2025-12-02T11:40:57.000Z
Tax Annual Amount
1045
Tax Book Number
1169-2455
Tax Legal Description
UNIT 10 PALMA SOLA SHORES CONDO PI#39097.1055/4
Tax Lot
10
Tax Year
2024
Total Acreage
0 to less than 1/4
Total Annual Fees
3600.00
Total Monthly Fees
300.00
Township
34
Universal Property Id
US-12081-N-3909710554-S-10
Unparsed Address
2107 PALMA SOLA BLVD #10
Utilities
Cable Connected, Sewer Connected, Water Connected
Water Access
Bay/Harbor, Intracoastal Waterway
Water Access YN
1
Water Extras
Fishing Pier
Water Extras YN
1
Water Source
Public
Waterfront YN
false
Zoning
RSMH4.5
Neighborhood Map
Popup

Property Photos
Listing Photo
Listing Photo
Listing Photo
Listing Photo
Listing Photo
Listing Photo
Listing Photo
Listing Photo
Listing Photo
Listing Photo
Listing Photo
Listing Photo
Listing Photo
Listing Photo
Listing Photo
Listing Photo
Listing Photo
Listing Photo
Listing Photo
Listing Photo
Listing Photo
Listing Photo
Listing Photo
Listing Photo
Listing Photo
Listing Photo
Listing Photo
Listing Photo
Listing Photo
Listing Photo
Listing Photo
Listing Photo
Listing Photo
Listing Photo
Listing Photo
Listing Photo
Listing Photo
Listing Photo
Listing Photo
Listing Photo
Listing Photo
Listing Photo
Listing Photo
Listing Photo
Listing Photo
Listing Photo
Listing Photo
Listing Photo
Listing Photo
Listing Photo
Listing Photo
Listing Photo
Listing Photo
Listing Photo
Listing Photo
Listing Photo
Listing Photo
Listing Photo
Listing Photo
Listing Photo
Listing Photo
Listing Photo
Listing Photo
Listing Photo
Listing Photo
Listing Photo
Listing Photo
Listing Photo
Listing Photo
Listing Photo

MLS #MFRA4673400 Listing courtesy of Preferred Shore Llc provided by Stellar MLS.

Similar Listings

$294,000
9718 Hernando Court
Bradenton
2BR/2BA
| Active
$294,900
4445 46th W Avenue
Bradenton
2BR/2BA
| Active
$294,900
6480 Wild Oak Bay Boulevard
Bradenton
2BR/2BA
| Active
$295,000
6424 Auburn Avenue
Bradenton
2BR/2BA
| Active



All listing information is deemed reliable but not guaranteed and should be independently verified through personal inspection by appropriate professionals. Listings displayed on this website may be subject to prior sale or removal from sale; availability of any listing should always be independent verified. Listing information is provided for consumer personal, non-commercial use, solely to identify potential properties for potential purchase; all other use is strictly prohibited and may violate relevant federal and state law. The source of the listing data is as follows: Stellar MLS (updated 12/15/25 1:28 PM) |

Listing Search



Translate Tool

Featured Listings
Reunion Real Estate
$1,425,000
5 BED
5 BATH
Parrish Real Estate
$884,900
3 BED
2 BATH
Brooksville Real Estate
$1,350,000
5 BED
4 BATH
Port Charlotte Real Estate
$1,099,000
4 BED
3 BATH
Orlando Real Estate
$815,000
5 BED
3 BATH
Redington Shores Real Estate
$1,250,000
3 BED
3 BATH
Bradenton Real Estate
$1,199,999
3 BED
2 BATH
Ocala Real Estate
$899,000
4 BED
3 BATH
North Redington Beach Real Estate
$999,900
3 BED
2 BATH
Longboat Key Real Estate
$949,000
2 BED
2 BATH
Contact Sandra Pardo

407-990-2746

Wendy Morris LLC

Licensed in the State of Florida
BK 3146762
16797 Broadwater Avenue
Winter Garden, Florida 34787

Your privacy is our utmost concern. We will never sell your personal information. Privacy Policy
©2025 sandrapardohomes.com - all rights reserved. | Site Map