407-990-2746
Menu

2087 Edgewater Drive Unit: Unit: C, Clearwater, FL

NEXT
PREV
$1,299,000

($590/sqft)

List Status: Active
2087 Edgewater Drive
Clearwater, FL 33755


3 beds
2 baths
2200 living sqft
Top Features
  • View: Water
  • Subdivision: 2087 Edgewater Condo
  • Built in  1985
  • Townhouse
Description
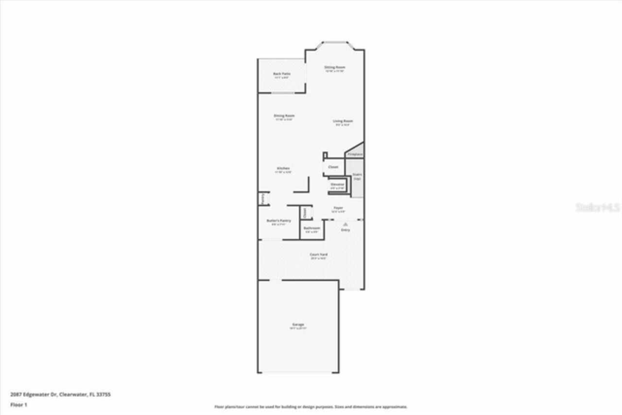
Experience stunning sunsets from the comfort of this spacious and open 3 Bedroom, 2.5 Bathroom townhome overlooking the breathtaking expanse of St. Joseph’s Sound and the Intracoastal waterway. Step into luxury as you enter through the privately gated front courtyard into an elegant foyer that leads into an open living room with panoramic waterfront views. Easily entertain guests in the waterfront dining room & kitchen, complete with bar seating, flat stone stack brick (from the historic Belleview Biltmore Hotel) fireplace, and a private covered lanai and outdoor waterfront patio. The first floor also features a spacious laundry room/butler’s pantry with a full-size washer & dryer and elegant 1/2 bath, front courtyard, two car garage and ample storage. Take your private elevator (or stairs) to the second floor to discover the waterfront primary bedroom with an ensuite bath and another private outdoor covered lanai overlooking breathtaking views of nature, water, Clearwater Beach, Caladesi Island. Enjoy the uplifting view of bikers, walkers and jogger’s enjoying the Edgewater trail. Also on the second floor are 2 nice size additional bedrooms and a second, shared full bathroom. This property is extremely unique with the following combination of features that are hard (if not impossible to duplicate) First, absolutely amazing open water expansive views. Second, Flood zone X (no flood insurance required for lenders) and water did not reach the land of this complex during last year’s “worst flood in 100 years”. Third, Location and proximity to Downtown Dunedin, Honeymoon Island and Clearwater Beach. Fourth, private 2 car garage, 3 full bedrooms, 2.5 baths, Elevator, Community Pool, and exquisite updates including features hickory wood flooring, motorized blinds, custom built closets & a Hurricane-rated windows and garage door with a new automatic opener. The kitchen features recently upgraded, high-end appliances (Bosch, Sub Zero, Café GE, Sharp) & custom cabinetry. Add
Property Details
Additional Information
Additional Lease Restrictions
Confirm with HOA
Additional Parcels YN
false
Additional Rooms
Inside Utility
Alternate Key Folio Num
032915927380000030
Appliances
Dishwasher, Dryer, Microwave, Range, Range Hood, Refrigerator, Washer
Approval Process
Application and processing fee required, confirm with HOA
Association Amenities
Pool
Association Approval Required YN
1
Association Fee
750
Association Fee Frequency
Monthly
Association Fee Includes
Pool, Maintenance Structure, Maintenance Grounds, Sewer, Trash, Water
Association Fee Requirement
Required
Association YN
true
Attached Garage YN
false
Available For Lease YN
1
Bathrooms Total Integer
3
Building Area Source
Public Records
Building Area Total
2200
Building Area Total Srch SqM
204.39
Building Area Units
Square Feet
Building Elevator YN
1
Calculated List Price By Calculated SqFt
590.45
Carport YN
false
Community Features
Deed Restrictions, Pool, Sidewalks
Construction Materials
Block, Frame
Cooling
Central Air
Country
US
Cumulative Days On Market
214
Current Price
1299000.00
Direction Faces
East
Exterior Features
Balcony, Courtyard, Lighting, Sidewalk, Sliding Doors
Fireplace Features
Living Room
Fireplace YN
true
Flood Zone Code
X500
Floor Number
1
Flooring
Carpet, Tile, Wood
Foundation Details
Slab
Garage Spaces
2
Garage YN
true
Heating
Central, Electric
Home Warranty YN
false
Homestead YN
1
Interior Features
Ceiling Fans(s), Crown Molding, Eat-in Kitchen, Elevator, Living Room/Dining Room Combo, Open Floorplan, Solid Surface Counters, Walk-In Closet(s)
Internet Address Display YN
true
Internet Automated Valuation Display YN
true
Internet Consumer Comment YN
true
Internet Entire Listing Display YN
true
Laundry Features
Laundry Room
Lease Restrictions YN
1
Levels
Two
List AOR
Suncoast Tampa
Living Area Meters
204.39
Living Area Source
Public Records
Living Area Units
Square Feet
Lot Size Acres
1.12
Lot Size Square Feet
48954
Lot Size Square Meters
4548
Max Pet Weight
25
Minimum Lease
8-12 Months
Modification Timestamp
2025-10-28T10:59:08.659Z
Monthly HOA Amount
750.00
New Construction YN
false
Num Times per Year
1
Number Of Pets
1
Occupant Type
Owner
Other Exemptions YN
1
Ownership
Fee Simple
Parcel Number
03-29-15-92738-000-0030
Patio And Porch Features
Front Porch, Rear Porch
Pet Restrictions
Confirm with HOA
Pet Size
Small (16-35 Lbs.)
Pets Allowed
Yes
Pool Private YN
false
Postal Code Plus 4
1033
Public Survey Range
15
Public Survey Section
03
RATIO Current Price By Calculated SqFt
590.45
Realtor Info
As-Is, Floor Plan Available
Road Surface Type
Paved
Roof
Tile
Room Count
3
Senior Community YN
false
Sewer
Public Sewer
Showing Requirements
ShowingTime
Status Change Timestamp
2025-03-28T18:42:35.000Z
Stories Total
2
Tax Annual Amount
8398.74
Tax Block
000
Tax Book Number
85-39
Tax Legal Description
2087 EDGEWATER CONDO UNIT C
Tax Lot
0030
Tax Year
2024
Total Acreage
1 to less than 2
Total Annual Fees
9000.00
Total Monthly Fees
750.00
Township
29
Universal Property Id
US-12103-N-032915927380000030-S-C
Unparsed Address
2087 EDGEWATER DR #C
Utilities
BB/HS Internet Available, Cable Available, Electricity Connected, Public, Sewer Connected, Water Connected
Water Access
Bay/Harbor, Intracoastal Waterway
Water Access YN
1
Water Source
Public
Water View
Bay/Harbor - Full, Intracoastal Waterway
Water View YN
1
Waterfront YN
false
Window Features
Blinds
Zoning Compatible YN
1
Neighborhood Map
Popup

Property Photos
Listing Photo
Listing Photo
Listing Photo
Listing Photo
Listing Photo
Listing Photo
Listing Photo
Listing Photo
Listing Photo
Listing Photo
Listing Photo
Listing Photo
Listing Photo
Listing Photo
Listing Photo
Listing Photo
Listing Photo
Listing Photo
Listing Photo
Listing Photo
Listing Photo
Listing Photo
Listing Photo
Listing Photo
Listing Photo
Listing Photo
Listing Photo
Listing Photo
Listing Photo
Listing Photo
Listing Photo
Listing Photo
Listing Photo
Listing Photo
Listing Photo
Listing Photo
Listing Photo
Listing Photo
Listing Photo
Listing Photo
Listing Photo
Listing Photo
Listing Photo
Listing Photo
Listing Photo
Listing Photo
Listing Photo
Listing Photo
Listing Photo
Listing Photo
Listing Photo
Listing Photo
Listing Photo
Listing Photo
Listing Photo
Listing Photo
Listing Photo
Listing Photo
Listing Photo
Listing Photo
Listing Photo
Listing Photo
Listing Photo
Listing Photo
Listing Photo
Listing Photo
Listing Photo
Listing Photo
Listing Photo
Listing Photo
Listing Photo
Listing Photo
Listing Photo
Listing Photo
Listing Photo
Listing Photo
Listing Photo
Listing Photo
Listing Photo
Listing Photo
Listing Photo
Listing Photo
Listing Photo
Listing Photo
Listing Photo
Listing Photo
Listing Photo
Listing Photo
Listing Photo
Listing Photo
Listing Photo
Listing Photo
Listing Photo
Listing Photo
Listing Photo
Listing Photo
Listing Photo
Listing Photo
Listing Photo
Listing Photo
Listing Photo
Listing Photo
Listing Photo
Listing Photo
Listing Photo
Listing Photo
Listing Photo
Listing Photo
Listing Photo
Listing Photo
Listing Photo
Listing Photo
Listing Photo
Listing Photo
Listing Photo
Listing Photo
Listing Photo
Listing Photo
Listing Photo
Listing Photo
Listing Photo
Listing Photo
Listing Photo
Listing Photo
Listing Photo
Listing Photo
Listing Photo
Listing Photo
Listing Photo
Listing Photo
Listing Photo
Listing Photo
Listing Photo
Listing Photo
Listing Photo
Listing Photo
Listing Photo
Listing Photo
Listing Photo
Listing Photo
Listing Photo
Listing Photo
Listing Photo
Listing Photo
Listing Photo
Listing Photo
Listing Photo
Listing Photo
Listing Photo
Listing Photo
Listing Photo
Listing Photo
Listing Photo
Listing Photo
Listing Photo
Listing Photo
Listing Photo
Listing Photo

MLS #MFRTB8367548 Listing courtesy of Burwell Real Estate provided by Stellar MLS.

Similar Listings

$1,298,000
530 S Gulfview Boulevard
Clearwater
3BR/2BA
| Active
$1,300,000
2037 Broadway
Clearwater
3BR/2BA
| Active
$1,330,000
348 Larboard Way
Clearwater
3BR/2BA
| Active
$1,399,000
1582 Gulf Boulevard
Clearwater
3BR/2BA
| Active



All listing information is deemed reliable but not guaranteed and should be independently verified through personal inspection by appropriate professionals. Listings displayed on this website may be subject to prior sale or removal from sale; availability of any listing should always be independent verified. Listing information is provided for consumer personal, non-commercial use, solely to identify potential properties for potential purchase; all other use is strictly prohibited and may violate relevant federal and state law. The source of the listing data is as follows: Stellar MLS (updated 2/12/26 4:18 AM) |

Listing Search



Translate Tool

Featured Listings
St Petersburg Real Estate
$870,000
3 BED
2 BATH
MAJOR INCENTIVE just added! The seller will pay one year of HOA dues at closing, giving you a full year of MAINTENANCE-F... Read More
St Petersburg Real Estate
$825,000
4 BED
3 BATH
One or more photo(s) has been virtually staged. Fully renovated and move-in ready, this exceptional 4 bedroom, 3 bath PO... Read More
Holiday Real Estate
$880,000
3 BED
2 BATH
One or more photo(s) has been virtually staged. This elegant three-bedroom residence with a versatile bonus room is thou... Read More
Plant City Real Estate
$1,349,999
5 BED
5 BATH
Welcome to this beautifully updated estate in Plant City, where modern upgrades meet relaxed Florida living on a spaciou... Read More
Clearwater Beach Real Estate
$849,750
2 BED
2 BATH
ENVIABLE Coastal Contemporary Residence at Dan’s Island on the sugary sands of Sand Key, where the lifestyle is as bold ... Read More
New Smyrna Beach Real Estate
$1,475,000
3 BED
2 BATH
Welcome to this spacious seventh floor 3 bedroom, 2.5 bath Santiago Floor Plan in the Salina Building at Minorca. There ... Read More
Lake Placid Real Estate
$1,399,999
5 BED
3 BATH
One or more photo(s) has been virtually staged. " Waters Edge" on Lake Placid. 3.19 acre estate surrounded by untouched,... Read More
Venice Real Estate
$1,280,000
3 BED
3 BATH
One or more photo(s) has been virtually staged. Experience luxury living in The Reserve, the premier gated enclave withi... Read More
Longboat Key Real Estate
$1,050,000
2 BED
2 BATH
One or more photo(s) has been virtually staged. Situated on an expansive 11,250-square-foot lot, this property offers th... Read More
Longboat Key Real Estate
$1,100,000
4 BED
3 BATH
(Professional photo is coming soon) Stunning curb appeal duplex located in the highly desirable Longboat Key featuring t... Read More
Contact Sandra Pardo

407-990-2746

Wendy Morris LLC

Licensed in the State of Florida
BK 3146762
16797 Broadwater Avenue
Winter Garden, Florida 34787

Your privacy is our utmost concern. We will never sell your personal information. Privacy Policy
©2026 sandrapardohomes.com - all rights reserved. | Site Map