407-990-2746
Menu

2085 S Stonebrook Drive, Homosassa, FL

NEXT
PREV
$950,000

($1,298/sqft)

List Status: Active
2085 S Stonebrook Drive
Homosassa, FL 34448


3 beds
1 baths
732 living sqft
Top Features
  • Subdivision: Highland Pines Aka Spears & Trimble
  • Built in  1971
  • Mobile Home
Description
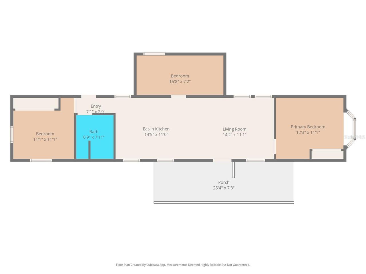
INCOME PRODUCING PROPERTY. TOTAL OF 5 SEPERATE HOUSES!!! House 2 (2019 S Stonebrook) Single family 2 bed 1 bath 12-month lease $1600 a month House 3 (2029 S Stonebrook-Pictures to come) Month-to month $1000 a month House 4 (2045 S Stonebrook) Mobile home 3 bed 2 bath 12-month lease $1500 a month House 5 (2051 S Stonebrook) Mobile home 2 bed 2 bath possible 3 bed Month-to-month $1200 a month All houses are situated on over 3 1/2 acres of land with their own space. See attached floor plans and pictures for each house.
Property Details
Additional Information
Additional Parcels Description
17E19S15 14400
Additional Parcels YN
true
Alternate Key Folio Num
17E19S15 144000010
Appliances
Range, Refrigerator
Association YN
false
Bathrooms Total Integer
1
Body Type
Single Wide
Building Area Source
Public Records
Building Area Total
732
Building Area Total Srch SqM
68.00
Building Area Units
Square Feet
Calculated List Price By Calculated SqFt
1297.81
Carport Spaces
2
Carport YN
true
Construction Materials
Metal Siding, Frame
Cooling
Central Air
Country
US
Currency Monthly Rent Amount
1400.00
Current Price
950000.00
Direction Faces
East
Elementary School
Rock Crusher Elementary School
Exist Lease Tenant YN
1
Exterior Features
Lighting
Fireplace YN
false
Flood Zone Code
AE
Flood Zone Date
2021-01-15
Flood Zone Panel
12017C0304E
Flooring
Luxury Vinyl
Foundation Details
Pillar/Post/Pier
Furnished
Unfurnished
Garage YN
false
Heating
Electric
High School
Crystal River High School
Interior Features
Open Floorplan
Internet Address Display YN
true
Internet Automated Valuation Display YN
true
Internet Consumer Comment YN
false
Internet Entire Listing Display YN
true
Levels
One
List AOR
West Pasco
Living Area Meters
68.00
Living Area Source
Public Records
Living Area Units
Square Feet
Lot Size Acres
3.62
Lot Size Dimensions
100x200
Lot Size Square Feet
157706
Lot Size Square Meters
14651
Middle Or Junior School
Crystal River Middle School
Modification Timestamp
2026-03-24T22:33:09.550Z
Month To Month Or Weekly YN
1
New Construction YN
false
Number Of Lots
2
Occupant Type
Tenant
Ownership
Fee Simple
Parcel Number
17E-19S-15-0000-14400-0010
Pool Private YN
false
Postal Code Plus 4
1803
Previous List Price
590000
Price Change Timestamp
2026-03-24T22:32:38.000Z
Property Description
Out of M/H Community
Public Survey Range
17E
Public Survey Section
15
RATIO Current Price By Calculated SqFt
1297.81
Realtor Info
As-Is
Road Surface Type
Paved
Roof
Metal
Room Count
6
Senior Community YN
false
Sewer
Septic Tank
Showing Requirements
24 Hour Notice, Appointment Only
Status Change Timestamp
2026-03-24T18:26:54.000Z
Stories Total
1
Tax Annual Amount
1199.22
Tax Block
14400
Tax Book Number
3442/1871
Tax Legal Description
BEG AT PT IN N LN MEAS FROM CONC MRKR IN NW COR OF NE1/4 AL N SEC LN N 89 DEG 13M 27S E 108 FT TO E R/W OF CO RD TH AL E R/W LN OF CO RD S 0 DEG 27M 30S E 421.1 FT TO POB TH S 0 D EG 27M 30S E 100 FT TH N 89 DEG 13M 27S E 200 FT TH N 0 D E G 27M 30S W 100 FT TH S 89 DEG 13M 27S W 200 FT TO POB D E SC IN OR BK 1212 PG 1690 & OR BK 1855 PG 201 & THAT PART OF THE NW 1/4 OF THE NW 1/4 OF THE NE 1/4 OFS15-19S-17E, LYING EAST OF OLD ROAD, LESS AND EXCEPT THEFOLLOWING PROPERTY: BEGINNING AT A POINT THAT IS 123.5 FT,
Tax Lot
10
Tax Year
2025
Total Acreage
2 to less than 5
Total Annual Fees
0.00
Total Monthly Fees
0.00
Township
19S
Universal Property Id
US-12017-N-1719150000144000010-R-N
Unparsed Address
2085 S STONEBROOK DR
Utilities
BB/HS Internet Available, Cable Available, Electricity Available, Water Available
Water Source
Well
Waterfront YN
false
Zoning
LDRMH
Neighborhood Map
Popup

Property Photos
Listing Photo
Listing Photo
Listing Photo
Listing Photo
Listing Photo
Listing Photo
Listing Photo
Listing Photo
Listing Photo
Listing Photo
Listing Photo
Listing Photo
Listing Photo
Listing Photo
Listing Photo
Listing Photo
Listing Photo
Listing Photo
Listing Photo
Listing Photo
Listing Photo
Listing Photo
Listing Photo
Listing Photo
Listing Photo
Listing Photo
Listing Photo
Listing Photo
Listing Photo
Listing Photo
Listing Photo
Listing Photo
Listing Photo
Listing Photo
Listing Photo
Listing Photo
Listing Photo
Listing Photo
Listing Photo
Listing Photo
Listing Photo
Listing Photo
Listing Photo
Listing Photo
Listing Photo
Listing Photo
Listing Photo
Listing Photo
Listing Photo
Listing Photo
Listing Photo
Listing Photo
Listing Photo
Listing Photo
Listing Photo
Listing Photo
Listing Photo
Listing Photo
Listing Photo
Listing Photo
Listing Photo
Listing Photo
Listing Photo
Listing Photo
Listing Photo
Listing Photo
Listing Photo
Listing Photo
Listing Photo
Listing Photo
Listing Photo
Listing Photo
Listing Photo
Listing Photo
Listing Photo
Listing Photo
Listing Photo
Listing Photo
Listing Photo
Listing Photo
Listing Photo
Listing Photo
Listing Photo
Listing Photo
Listing Photo
Listing Photo
Listing Photo
Listing Photo
Listing Photo
Listing Photo
Listing Photo
Listing Photo

MLS #MFRW7883692 Listing courtesy of Home Land Real Estate Inc provided by Stellar MLS.



All listing information is deemed reliable but not guaranteed and should be independently verified through personal inspection by appropriate professionals. Listings displayed on this website may be subject to prior sale or removal from sale; availability of any listing should always be independent verified. Listing information is provided for consumer personal, non-commercial use, solely to identify potential properties for potential purchase; all other use is strictly prohibited and may violate relevant federal and state law. The source of the listing data is as follows: Stellar MLS (updated 3/24/26 8:10 PM) |

Listing Search



Translate Tool

Featured Listings
Bradenton Real Estate
$920,000
2 BED
2 BATH
Beautifully updated waterfront home in the highly sought-after boating community of San Remo Shores, offering a rare and... Read More
Orlando Real Estate
$1,095,000
3 BED
3 BATH
BRAND NEW! NOW AVAILABLE! Over $65k of complimentary upgrades of elevator, upgraded cabinetry, modern wine wall staircas... Read More
Orlando Real Estate
$997,000
3 BED
3 BATH
BRAND NEW! NOW AVAILABLE! 3 bed/3.5-bathroom residence featuring an open loft-style living and kitchen design. An except... Read More
Maitland Real Estate
$995,000
3 BED
2 BATH
Rare opportunity to own a private 0.66-acre estate lot in Maitland with direct Lake Sybelia access. 790 S Lake Sybelia D... Read More
Orlando Real Estate
$997,000
3 BED
3 BATH
BRAND NEW! NOW AVAILABLE! 3 bed/3.5-bathroom residence featuring an open loft-style living and kitchen design. An except... Read More
Bradenton Real Estate
$950,000
4 BED
3 BATH
Executive 4 bedroom, 3 bath with heated lap pool, NEW ROOF, NEW EXTERIOR PAINT, NEW WATER SOFTNER, solar panels, gutters... Read More
Bradenton Real Estate
$1,000,000
5 BED
4 BATH
Step into refined luxury in this exceptional custom Lee Wetherington residence, ideally situated in the heart of the cov... Read More
Englewood Real Estate
$950,000
3 BED
3 BATH
Welcome to a home that lives like a resort. This is a rare opportunity to own a coastal-style estate designed for laid-b... Read More
Winter Park Real Estate
$825,000
4 BED
3 BATH
Taylor Morrison, Anastasia Model, 4 bdrm 3.5 baths on premium lot overlooking pond in the Meadows at Hawk's Crest. Large... Read More
Clearwater Beach Real Estate
$950,000
2 BED
2 BATH
NOW REPOSITIONED - WHERE LUXURY MEETS OPPORTUNITY ON CLEARWATER BEACH There are moments in the market that quietly stand... Read More
Contact Sandra Pardo

407-990-2746

Wendy Morris LLC

Licensed in the State of Florida
BK 3146762
16797 Broadwater Avenue
Winter Garden, Florida 34787

Your privacy is our utmost concern. We will never sell your personal information. Privacy Policy
©2026 sandrapardohomes.com - all rights reserved. | Site Map