407-990-2746
Menu

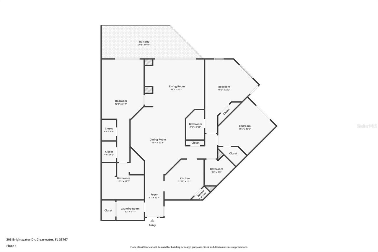
205 Brightwater Drive Unit: Unit: 202, Clearwater Beach, FL

NEXT
PREV
$1,175,000

($583/sqft)

List Status: Active
205 Brightwater Drive
Clearwater Beach, FL 33767


3 beds
3 baths
2017 living sqft
Top Features
  • Frontage: Bay/Harbor, Intracoastal Waterway
  • View: Water
  • Subdivision: Brightwater Point Condo
  • Built in  2006
  • Condominium
Description
Sweeping Intracoastal vistas, playful dolphins, and gentle manatees set the tone for this stunning Clearwater Beach retreat. From the moment you step inside this expansive 3-bedroom, 3-bath residence—boasting over 2,000 sq ft, soaring 11’ ceilings, two private balconies, and PREMIUM UNDER-BUILDING PARKING.you’ll feel the calm of coastal living take over. The interior has been thoughtfully updated with **brand-new luxury vinyl flooring**, fresh finishes, and a bright, modern coastal style that complements the water views at every turn. The kitchen is a true standout, offering updated cabinetry with pull-outs, quartz countertops, stainless-steel appliances, a pantry, and an island with seating—perfect for casual mornings overlooking the water. The spacious living area flows seamlessly to a generous 240+ sq ft balcony where you can unwind to the sound of lapping waves and watch boats drift by. The primary suite feels like a private sanctuary, complete with a tray ceiling, balcony access, SUNRISE VIEWS, and a beautifully reimagined bathroom featuring an updated soaking tub, walk-in shower, double vanities, and dual walk-in closets. Guests will appreciate the privacy and comfort of two additional bedrooms, each with its own updated full bath and access to a separate balcony with gorgeous water views. A dedicated laundry room with storage and a washer/dryer adds convenience, A NEW AC with Transferable warranty and Water Heater installed in 2023, will give you peace of mind, while the in-unit owner’s closet keeps beach gear tucked away. Step outside to enjoy the waterfront pool, or head up to the 5th-floor rooftop terrace for panoramic views of Clearwater Beach and the Intracoastal. With world-class dining, boutique shopping, sugar-sand beaches, and the Gulf of Mexico just minutes away, this location captures the very best of coastal living. Brightwater Point welcomes pets (2 allowed, 25 lbs each) and offers a 1-month minimum rental policy. Don't miss this rare opportunity
Property Details
Property Features
Property Sub Type
Condominium
View
Water
Frontage
Bay/Harbor, Intracoastal Waterway
Pool
Heated, Gunite, Tile, In Ground
County
Pinellas
Subdivision
BRIGHTWATER POINT CONDO
Building Name
BRIGHTWATER POINT CONDO
Additional Information
Additional Lease Restrictions
See association documents for rules and approval process
Additional Parcels YN
false
Alternate Key Folio Num
29-15-08-11495-000-2020
Appliances
Dishwasher, Disposal, Dryer, Electric Water Heater, Microwave, Range, Refrigerator, Washer
Approval Process
See association documents
Architectural Style
Contemporary
Association Amenities
Cable TV, Elevators
Association Approval Required YN
1
Association Email
MariaPProano@associagulfcoast.com
Association Fee Includes
Cable TV, Common Area Taxes, Pool, Escrow Reserves Fund, Maintenance Structure, Maintenance Grounds, Maintenance, Management, Pest Control, Security, Sewer, Trash, Water
Association YN
true
Attached Garage YN
false
Available For Lease YN
1
Bathrooms Total Integer
3
Building Area Source
Public Records
Building Area Total
2017
Building Area Total Srch SqM
187.39
Building Area Units
Square Feet
Building Elevator YN
1
Calculated List Price By Calculated SqFt
582.55
Carport YN
false
Community Features
Association Recreation - Owned, Buyer Approval Required, Community Mailbox, Deed Restrictions, Gated Community - No Guard, Pool, Sidewalks, Street Lights
Condo Fees
1560
Condo Fees Term
Monthly
Construction Materials
Concrete, Stucco
Cooling
Central Air
Country
US
Cumulative Days On Market
44
Current Price
1175000.00
Direction Faces
East
Exterior Features
Balcony, Sliding Doors
Fireplace YN
false
Flood Zone Code
AE
Flood Zone Date
2021-08-24
Flood Zone Panel
12103C0102H
Floor Number
2
Flooring
Luxury Vinyl, Tile
Foundation Details
Slab, Stilt/On Piling
Furnished
Negotiable
Garage Spaces
1
Garage YN
true
Heating
Central, Electric
Home Warranty YN
false
Interior Features
Ceiling Fans(s), Crown Molding, Solid Wood Cabinets, Stone Counters, Tray Ceiling(s), Walk-In Closet(s)
Internet Address Display YN
true
Internet Automated Valuation Display YN
false
Internet Consumer Comment YN
true
Internet Entire Listing Display YN
true
Laundry Features
Inside
Lease Restrictions YN
1
Levels
One
List AOR
Suncoast Tampa
Living Area Meters
187.39
Living Area Source
Public Records
Living Area Units
Square Feet
Lot Features
Flood Insurance Required
Max Pet Weight
25
Minimum Lease
1 Month
Modification Timestamp
2026-04-22T17:45:11.281Z
Monthly Condo Fee Amount
1560
New Construction YN
false
Number Of Pets
2
Occupant Type
Owner
Ownership
Condominium
Parcel Number
08-29-15-11495-000-2020
Patio And Porch Features
Patio
Pet Size
Small (16-35 Lbs.)
Pets Allowed
Yes
Pool Private YN
true
Postal Code Plus 4
2459
Previous List Price
1225000
Price Change Timestamp
2026-04-22T17:44:38.000Z
Public Survey Range
15
Public Survey Section
08
RATIO Current Price By Calculated SqFt
582.55
Realtor Info
As-Is, Docs Available, Lease Restrictions, No Sign
Road Surface Type
Asphalt, Paved
Roof
Other
Room Count
6
Senior Community YN
false
Sewer
Public Sewer
Showing Requirements
Appointment Only, Gate Code Required, ShowingTime
Spa YN
false
Status Change Timestamp
2026-03-09T20:39:23.000Z
Stories Total
5
Tax Annual Amount
17579
Tax Block
11495-0
Tax Book Number
144-83
Tax Legal Description
BRIGHTWATER POINT CONDO UNIT 202
Tax Lot
2020
Tax Year
2024
Total Annual Fees
18720.00
Total Monthly Fees
1560.00
Township
29
Universal Property Id
US-12103-N-082915114950002020-S-202
Unparsed Address
205 BRIGHTWATER DR #202
Utilities
Cable Available, Cable Connected, Electricity Connected, Public, Sewer Connected, Water Connected
Vegetation
Mature Landscaping
Water Access
Bay/Harbor, Intracoastal Waterway
Water Access YN
1
Water Extras
Fishing Pier, Minimum Wake Zone, Seawall - Concrete
Water Extras YN
1
Water Frontage Feet Bay Harbor
150
Water Frontage Feet ICW
150
Water Source
Public
Water View
Bay/Harbor - Full, Intracoastal Waterway
Water View YN
1
Waterfront Feet Total
300
Waterfront YN
true
Window Features
Window Treatments
Neighborhood Map
Popup

Property Photos
Listing Photo
Listing Photo
Listing Photo
Listing Photo
Listing Photo
Listing Photo
Listing Photo
Listing Photo
Listing Photo
Listing Photo
Listing Photo
Listing Photo
Listing Photo
Listing Photo
Listing Photo
Listing Photo
Listing Photo
Listing Photo
Listing Photo
Listing Photo
Listing Photo
Listing Photo
Listing Photo
Listing Photo
Listing Photo
Listing Photo
Listing Photo
Listing Photo
Listing Photo
Listing Photo
Listing Photo
Listing Photo
Listing Photo
Listing Photo
Listing Photo
Listing Photo
Listing Photo
Listing Photo
Listing Photo
Listing Photo
Listing Photo
Listing Photo
Listing Photo
Listing Photo
Listing Photo
Listing Photo
Listing Photo
Listing Photo
Listing Photo
Listing Photo
Listing Photo
Listing Photo
Listing Photo
Listing Photo
Listing Photo
Listing Photo
Listing Photo
Listing Photo
Listing Photo
Listing Photo
Listing Photo
Listing Photo
Listing Photo
Listing Photo
Listing Photo
Listing Photo
Listing Photo
Listing Photo
Listing Photo
Listing Photo
Listing Photo
Listing Photo
Listing Photo
Listing Photo
Listing Photo
Listing Photo
Listing Photo
Listing Photo
Listing Photo
Listing Photo
Listing Photo
Listing Photo
Listing Photo
Listing Photo
Listing Photo
Listing Photo
Listing Photo
Listing Photo
Listing Photo
Listing Photo
Listing Photo
Listing Photo
Listing Photo
Listing Photo
Listing Photo
Listing Photo
Listing Photo
Listing Photo
Listing Photo
Listing Photo
Listing Photo
Listing Photo
Listing Photo
Listing Photo

MLS #MFRTB8472266 Listing courtesy of Coldwell Banker Realty provided by Stellar MLS.

Similar Listings

$1,123,000
411 E Shore Drive
Clearwater Beach
3BR/3BA
| Active
$1,178,200
411 E Shore Drive
Clearwater Beach
3BR/3BA
| Pending
$1,198,000
620 Bayway Boulevard
Clearwater Beach
3BR/3BA
| Active
$1,229,000
200 Brightwater Drive
Clearwater Beach
3BR/3BA
| Active



All listing information is deemed reliable but not guaranteed and should be independently verified through personal inspection by appropriate professionals. Listings displayed on this website may be subject to prior sale or removal from sale; availability of any listing should always be independent verified. Listing information is provided for consumer personal, non-commercial use, solely to identify potential properties for potential purchase; all other use is strictly prohibited and may violate relevant federal and state law. The source of the listing data is as follows: Stellar MLS (updated 5/15/26 9:13 PM) |

Listing Search



Translate Tool

Featured Listings
Kissimmee Real Estate
$830,000
6 BED
6 BATH
Welcome to this outstanding investment opportunity in Veranda Palms. This beautifully home features 6 spacious bedrooms ... Read More
Dunedin Real Estate
$1,275,000
4 BED
2 BATH
Dunedin - Welcome to a truly special property offering privacy, space, and natural beauty rarely found so close to every... Read More
New Port Richey Real Estate
$950,000
3 BED
2 BATH
One or more photo(s) has been virtually staged. Views! Views! Views! Welcome to waterfront paradise in the highly sought... Read More
Clearwater Beach Real Estate
$1,295,000
3 BED
3 BATH
Don’t miss the opportunity to experience a truly one-of-a-kind residence. This combined condo offers breathtaking Gulf a... Read More
St Petersburg Real Estate
$995,000
3 BED
2 BATH
One or more photo(s) has been virtually staged. Welcome to Coquina Key, the best neighborhood in the world, period. This... Read More
New Smyrna Beach Real Estate
$975,000
3 BED
3 BATH
Beautiful Mediterranean-Style Home on 10 Private Acres in Samsula. Experience the rare combination of privacy, space, an... Read More
Fernandina Beach Real Estate
$1,125,000
4 BED
3 BATH
This is the home you deserve. Gorgeous 4-bed, 3-bath home (1.5 years new) in desirable North Hampton Golf Community, and... Read More
Sarasota Real Estate
$1,299,000
5 BED
4 BATH
This meticulously upgraded home blends modern coastal elegance with resort-style indoor and outdoor living. From the mom... Read More
Tampa Real Estate
$839,000
4 BED
3 BATH
Experience the best of Tampa Bay living in this stunning 4-bedroom, 3.5-bath home, which offers 2,832 square feet of tho... Read More
Palm Harbor Real Estate
$1,199,900
3 BED
3 BATH
This uniquely designed, custom 3 Bed 3.5 bath POOL Home has endless details and architectural elements that create a stu... Read More
Contact Sandra Pardo

407-990-2746

Wendy Morris LLC

Licensed in the State of Florida
BK 3146762
16797 Broadwater Avenue
Winter Garden, Florida 34787

Your privacy is our utmost concern. We will never sell your personal information. Privacy Policy
©2026 sandrapardohomes.com - all rights reserved. | Site Map