407-990-2746
Menu

20429 Lagente Circle, Venice, FL

NEXT
PREV
$315,000

($162/sqft)

List Status: Active
20429 Lagente Circle
Venice, FL 34293


3 beds
2 baths
1949 living sqft
Top Features
  • View: Water
  • Subdivision: Gran Paradiso Twnhms 1b
  • Built in  2021
  • Townhouse
Description
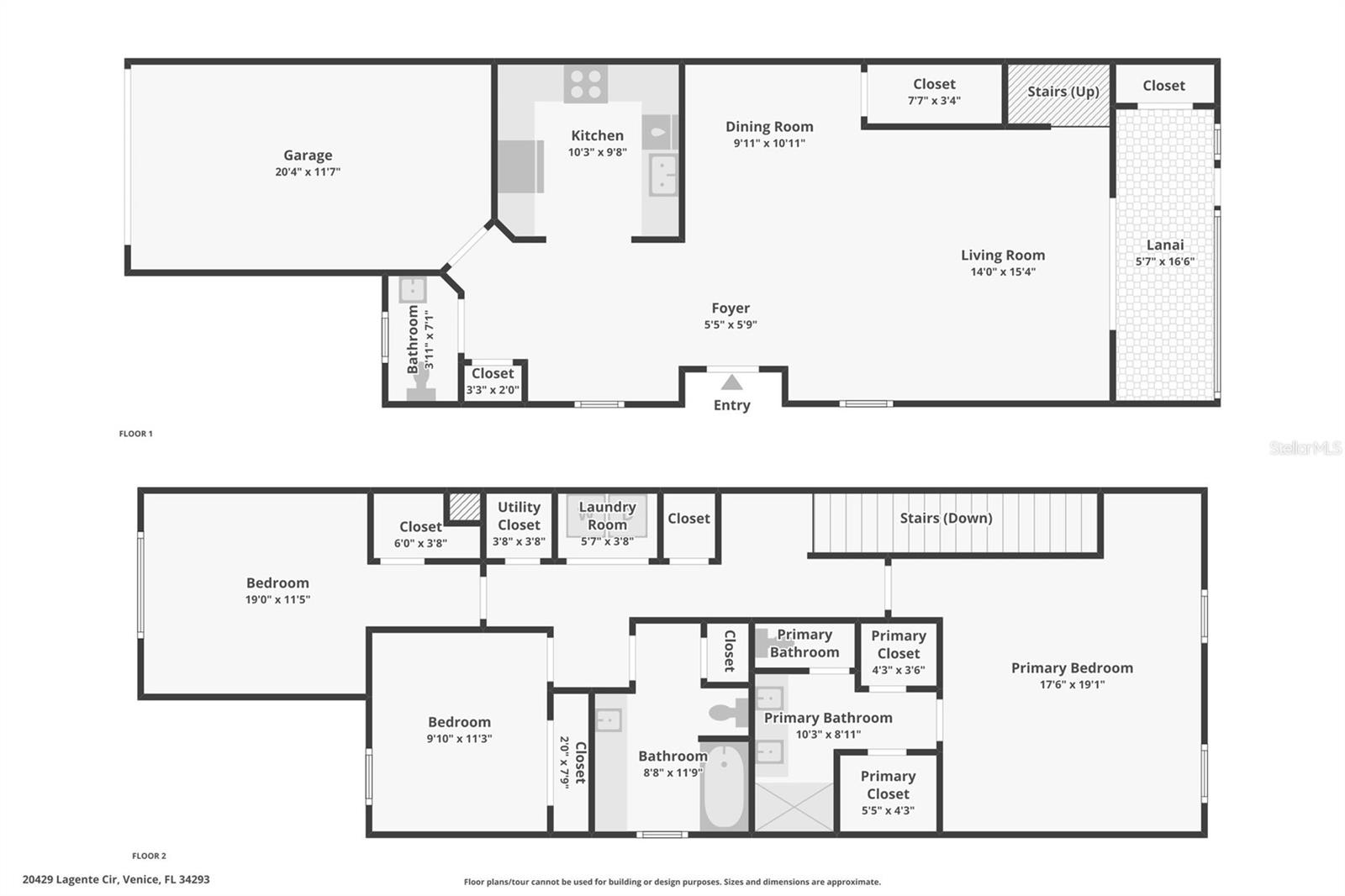
Seller is offering $5K towards closing costs****Turn-key furnished! NOT in a flood zone! This charming corner townhome is designed for both comfort and style, starting with a welcoming paver walkway that leads to your private garage and front porch. Step inside and you’re greeted by an open-concept living area that feels bright, inviting, and perfect for both relaxing and entertaining. High-end window treatments (a significant seller investment) convey elegance and offer privacy. This is a lightly used and impeccably maintained end-unit Townhome. The living and dining spaces flow easily to a covered, screened lanai with pond views — complete with an added shade to block the afternoon sun, making it the perfect spot for morning coffee or an evening glass of wine. The kitchen features granite countertops, stainless steel appliances, and a breakfast bar that keeps you connected while cooking or hosting. Upstairs, plush carpet leads you to the primary suite with two walk-in closets, dual sinks, and a large walk-in shower. Two additional bedrooms offer flexibility for guests, a home office, or hobbies, and share a full bath. You’ll also love the convenience of the upstairs laundry closet, generous storage throughout the home, and peace of mind with a Ring camera already in place. For added value and security, all windows and doors are protected by hurricane shutters just installed in September 2025. Living in Gran Paradiso means more than just a beautiful home — it’s a lifestyle. This 24-hour guard-gated community offers an incredible array of resort-style amenities, from the sparkling pool and fitness center with classes, to pickleball, tennis, and basketball courts. The clubhouse has something for everyone, including a library, craft room, billiards, ping pong, card rooms, plus steam and sauna facilities for total relaxation. With its ideal location in Venice, this home delivers both tranquility and convenience. Enjoy the turn-key lifestyle and warm, welcoming communit
Property Details
Property Features
Property Sub Type
Townhouse
View
Water
Parking
Driveway, Garage Door Opener, Covered
Pool
Other
County
Sarasota
Subdivision
GRAN PARADISO TWNHMS 1B
Building Name
20429
Additional Information
Additional Lease Restrictions
Please refer to the HOA for restrictions
Additional Parcels YN
false
Appliances
Dishwasher, Dryer, Microwave, Range, Refrigerator, Washer
Approval Process
Please refer to the HOA for the approval process and application.
Association Amenities
Basketball Court, Cable TV, Clubhouse, Fence Restrictions, Fitness Center, Gated, Pickleball Court(s), Playground, Pool, Recreation Facilities, Sauna, Security, Spa/Hot Tub, Tennis Court(s), Vehicle Restrictions
Association Approval Required YN
1
Association Email
admin.granparadiso@castlegroup.com
Association Fee
831
Association Fee Frequency
Quarterly
Association Fee Includes
Cable TV, Pool, Internet, Maintenance Structure, Maintenance Grounds, Security
Association Fee Requirement
Required
Association YN
true
Attached Garage YN
true
Available For Lease YN
1
Bathrooms Total Integer
3
Builder Model
Ava
Builder Name
Lennar
Building Area Source
Public Records
Building Area Total
2274
Building Area Total Srch SqM
211.26
Building Area Units
Square Feet
CDDYN
1
Calculated List Price By Calculated SqFt
161.62
Carport YN
false
Community Features
Fitness Center, Golf Carts OK, Playground, Pool, Sidewalks, Tennis Court(s)
Construction Materials
Concrete, Stucco
Cooling
Central Air
Country
US
Cumulative Days On Market
202
Current Price
315000.00
Direction Faces
Southeast
Elementary School
Taylor Ranch Elementary
Exterior Features
Hurricane Shutters, Rain Gutters, Sidewalk, Sliding Doors
Fireplace YN
false
Flood Zone Code
X
Flooring
Carpet, Tile
Foundation Details
Slab
Garage Spaces
1
Garage YN
true
Heating
Central, Electric
High School
Venice Senior High
Interior Features
Ceiling Fans(s), Crown Molding, In Wall Pest System, Kitchen/Family Room Combo, Living Room/Dining Room Combo, Open Floorplan, Smart Home, Stone Counters, Thermostat, Walk-In Closet(s), Window Treatments
Internet Address Display YN
true
Internet Automated Valuation Display YN
true
Internet Consumer Comment YN
true
Internet Entire Listing Display YN
true
Laundry Features
Laundry Closet, Upper Level
Lease Restrictions YN
1
Levels
Two
List AOR
Suncoast Tampa
Living Area Meters
181.07
Living Area Source
Public Records
Living Area Units
Square Feet
Lot Features
Landscaped, Sidewalk, Paved
Lot Size Acres
0.1
Lot Size Square Feet
4597
Lot Size Square Meters
427
Middle Or Junior School
Venice Area Middle
Minimum Lease
1 Month
Modification Timestamp
2026-04-23T15:59:09.273Z
Monthly HOA Amount
277.00
New Construction YN
false
Num Times per Year
4
Number Of Pets
2
Occupant Type
Vacant
Ownership
Fee Simple
Parcel Number
0778111680
Patio And Porch Features
Covered, Rear Porch, Screened
Pet Restrictions
2 total pets-dog and/or cat. No aggressive breeds per county, city or any other ordinance. See Townhome CC&Rs for more info.
Pets Allowed
Breed Restrictions, Number Limit, Yes
Pool Private YN
false
Postal Code Plus 4
2865
Previous List Price
325000
Price Change Timestamp
2026-04-13T17:52:51.000Z
Public Survey Range
20
Public Survey Section
29
RATIO Current Price By Calculated SqFt
161.62
Road Surface Type
Brick, Paved
Roof
Concrete, Tile
Room Count
3
SW Subdiv Community Name
Gran Paradiso
Security Features
Fire Sprinkler System, Gated Community, Security Gate, Security System, Smoke Detector(s)
Senior Community YN
false
Sewer
Public Sewer
Showing Requirements
ShowingTime
Spa YN
false
Status Change Timestamp
2025-10-03T18:06:04.000Z
Stories Total
2
Tax Annual Amount
6727.69
Tax Block
1
Tax Book Number
51-175-181
Tax Legal Description
LOT 168, GRAN PARADISO TOWNHOMES PHASE 1B, PB 51 PG 175-181
Tax Lot
168
Tax Other Annual Assessment Amount
1630
Tax Year
2024
Total Acreage
0 to less than 1/4
Total Annual Fees
6385.24
Total Monthly Fees
532.10
Township
39
Universal Property Id
US-12115-N-0778111680-R-N
Unparsed Address
20429 LAGENTE CIR
Utilities
Cable Available, Cable Connected
Vegetation
Trees/Landscaped
Water Source
Public
Water View
Pond
Water View YN
1
Waterfront YN
false
Window Features
Blinds, Storm Window(s)
Zoning
V
Neighborhood Map
Popup

Property Photos
Listing Photo
Listing Photo
Listing Photo
Listing Photo
Listing Photo
Listing Photo
Listing Photo
Listing Photo
Listing Photo
Listing Photo
Listing Photo
Listing Photo
Listing Photo
Listing Photo
Listing Photo
Listing Photo
Listing Photo
Listing Photo
Listing Photo
Listing Photo
Listing Photo
Listing Photo
Listing Photo
Listing Photo
Listing Photo
Listing Photo
Listing Photo
Listing Photo
Listing Photo
Listing Photo
Listing Photo
Listing Photo
Listing Photo
Listing Photo
Listing Photo
Listing Photo
Listing Photo
Listing Photo
Listing Photo
Listing Photo
Listing Photo
Listing Photo
Listing Photo
Listing Photo
Listing Photo
Listing Photo
Listing Photo
Listing Photo
Listing Photo
Listing Photo
Listing Photo
Listing Photo
Listing Photo
Listing Photo
Listing Photo
Listing Photo
Listing Photo
Listing Photo
Listing Photo
Listing Photo
Listing Photo
Listing Photo
Listing Photo
Listing Photo
Listing Photo
Listing Photo

MLS #MFRTB8433453 Listing courtesy of Redfin Corporation provided by Stellar MLS.

Similar Listings

$284,900
4236 Vicenza Drive
Venice
3BR/2BA
| Active
$285,000
4417 Corso Venetia Boulevard
Venice
3BR/2BA
| Pending
$287,990
10694 Tiger Lily Drive
Venice
3BR/2BA
| Active
$287,990
10714 Tiger Lily Drive
Venice
3BR/2BA
| Active



All listing information is deemed reliable but not guaranteed and should be independently verified through personal inspection by appropriate professionals. Listings displayed on this website may be subject to prior sale or removal from sale; availability of any listing should always be independent verified. Listing information is provided for consumer personal, non-commercial use, solely to identify potential properties for potential purchase; all other use is strictly prohibited and may violate relevant federal and state law. The source of the listing data is as follows: Stellar MLS (updated 5/28/26 12:12 AM) |

Listing Search



Translate Tool

Featured Listings
Maitland Real Estate
$1,175,000
4 BED
4 BATH
Come see 51 Oakleigh Ln, a functional residence arranged for everyday practicality. A comfortable living space features ... Read More
Winter Garden Real Estate
$998,000
5 BED
4 BATH
Under Construction. Discover Silverleaf Oaks in Winter Garden! This new home community will feature a collection of sing... Read More
Orlando Real Estate
$839,000
5 BED
4 BATH
Enjoy Disney fireworks from your front yard! Just minutes from Disney and surrounded by the Windermere area, this beauti... Read More
Indian Shores Real Estate
$1,150,000
2 BED
2 BATH
Rare opportunity to own a fully remodeled beachfront condo in Indian Shores ideally positioned between the Gulf and the ... Read More
Tampa Real Estate
$1,250,000
4 BED
3 BATH
One or more photo(s) has been virtually staged. Welcome to your own private Florida resort paradise. Schedule your priva... Read More
Lakewood Ranch Real Estate
$955,000
4 BED
3 BATH
Push the easy button and move right in to this possibly Turn-Key Florida Dream! Welcome home to this show-stopping Mallo... Read More
Wesley Chapel Real Estate
$809,990
5 BED
3 BATH
PREMIUM CONSERVATION LOT | NEW SALTWATER POOL | FOUR-CAR GARAGE | NO CDD FEES. Welcome to 7754 Hemlock Seed Drive in Wes... Read More
St Petersburg Real Estate
$1,499,000
4 BED
3 BATH
Under Construction. Welcome to an exceptional new construction opportunity in the highly sought-after Allendale Oaks Nei... Read More
Tampa Real Estate
$1,190,000
5 BED
3 BATH
Tucked away on a dead-end street with no through traffic in Southgreen, one of South Tampa’s most charming hidden enclav... Read More
Tampa Real Estate
$1,135,000
5 BED
4 BATH
OPEN HOUSE SATURDAY & SUNDAY! Welcome to 306 E Emma Street, a stunning custom-built 2022 residence tucked away on a quie... Read More
Contact Sandra Pardo

407-990-2746

Wendy Morris LLC

Licensed in the State of Florida
BK 3146762
16797 Broadwater Avenue
Winter Garden, Florida 34787

Your privacy is our utmost concern. We will never sell your personal information. Privacy Policy
©2026 sandrapardohomes.com - all rights reserved. | Site Map