407-990-2746
Menu

201 Cavallini Drive, Nokomis, FL

NEXT
PREV
$489,000

($286/sqft)

List Status: Active
201 Cavallini Drive
Nokomis, FL 34275


3 beds
2 baths
1711 living sqft
Top Features
  • Subdivision: Sorrento South
  • Built in  1964
  • Single Family Residence
Description
Property Details
Additional Information
Additional Lease Restrictions
Buyer to verify Rules and Regulations with HOA and Sarasota County
Additional Parcels YN
false
Alternate Key Folio Num
0166090022
Appliances
Dishwasher, Disposal, Dryer, Electric Water Heater, Range, Range Hood, Refrigerator, Washer
Architectural Style
Florida
Association Email
Deb.newman@icloud.com
Association Fee
300
Association Fee Frequency
Annually
Association Fee Includes
Common Area Taxes
Association Fee Requirement
Required
Association URL
sorrentosouth.org
Association YN
true
Attached Garage YN
true
Available For Lease YN
1
Bathrooms Total Integer
3
Building Area Source
Public Records
Building Area Total
2313
Building Area Total Srch SqM
214.88
Building Area Units
Square Feet
Calculated List Price By Calculated SqFt
285.80
Carport YN
false
Community Features
Buyer Approval Required, Deed Restrictions, Golf Carts OK, Golf
Construction Materials
Block
Cooling
Central Air
Country
US
Cumulative Days On Market
262
Current Price
489000.00
Direction Faces
North
Elementary School
Laurel Nokomis Elementary
Exterior Features
Rain Gutters
Fireplace YN
false
Flood Zone Code
X
Flood Zone Date
2024-03-27
Flood Zone Panel
12115C0239G
Flooring
Ceramic Tile, Laminate, Vinyl
Foundation Details
Slab
Garage Dimensions
22x21
Garage Spaces
2
Garage YN
true
Heating
Central, Electric
High School
Venice Senior High
Interior Features
Ceiling Fans(s), Primary Bedroom Main Floor, Stone Counters, Walk-In Closet(s), Window Treatments
Internet Address Display YN
true
Internet Automated Valuation Display YN
false
Internet Consumer Comment YN
false
Internet Entire Listing Display YN
true
Laundry Features
In Garage, Laundry Room
Lease Restrictions YN
1
Levels
One
List AOR
Sarasota - Manatee
Living Area Meters
158.96
Living Area Source
Public Records
Living Area Units
Square Feet
Lot Size Acres
0.37
Lot Size Square Feet
15986
Lot Size Square Meters
1485
Middle Or Junior School
Laurel Nokomis Middle
Minimum Lease
1 Month
Modification Timestamp
2025-12-02T14:47:09.157Z
Monthly HOA Amount
25.00
New Construction YN
false
Num Times per Year
12
Number Of Pets
10+
Occupant Type
Owner
Ownership
Fee Simple
Parcel Number
0166090022
Patio And Porch Features
Front Porch, Rear Porch
Pet Restrictions
Buyer to verify Rules and Regulations with HOA and Sarasota County
Pets Allowed
Cats OK, Dogs OK
Pool Private YN
true
Postal Code Plus 4
1467
Previous List Price
499750
Price Change Timestamp
2025-11-14T15:17:37.000Z
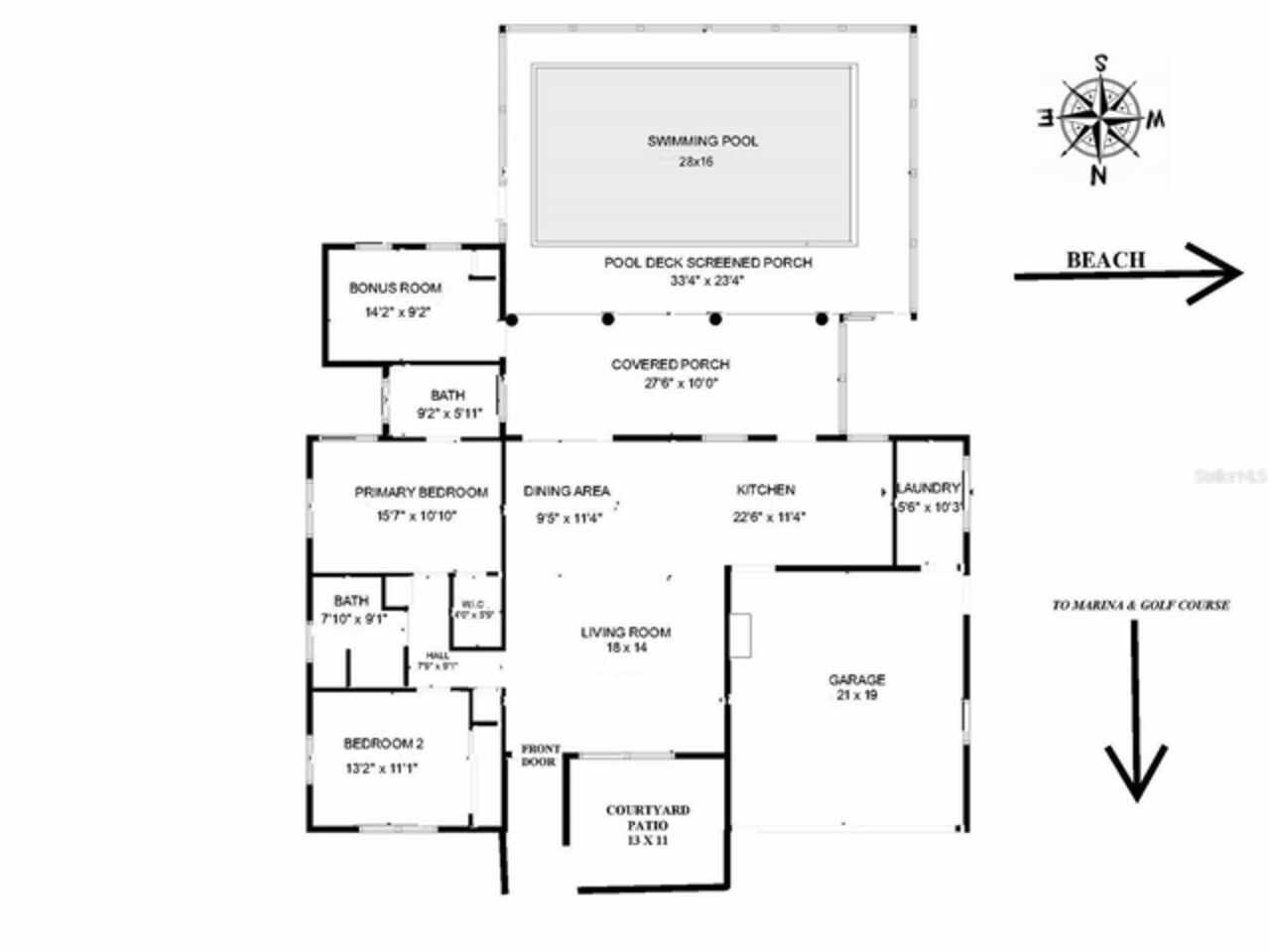
Public Remarks
READY TO GO!! Welcome to SORRENTO SOUTH, a fabulous community "WEST OF THE TRAIL" in NOKOMIS BEACH! This wonderful, 1700+ sq foot 2 bedroom+ BONUS ROOM, 2.5 bath POOL HOME sits on an extra-large 16, 000-square-foot lot with a fully fenced backyard. The open floor plan features a spacious Great Room that seamlessly flows into the expansive & irresistible covered & screened poolside lanai, measuring an impressive 28x10! The stylish oversized kitchen spans an impressive 23 feet, boasting abundant neutral wood cabinetry, granite countertops with breakfast bar. Upgraded appliances include a sleek stainless-steel hood positioned over the central island, adding both function & modern flair to the space, plus NEW Bosch dishwasher, & NEW Hi-End Professional Frigidaire refrigerator. The Master Suite has vinyl flooring & an updated en-suite bathroom featuring a soaking tub, new vanity, toilet, plus walk-in closet. 2nd bedroom is large enough for two twin beds or a king-size. The DETACHED BONUS ROOM, accessed from the covered lanai is flexible & provides a variety options such as, a perfect guestroom, den, library, home office, or roll all those choices into one with a “Murphy Bed”! Outstanding features & updates of this beautiful home include a “one year new” 50 Year Standing Seam Metal Roof, raised-panel doors throughout, updated interior lighting, freshly painted all interior walls & ceilings, courtyard style patio at the front entry, resurfaced pool, new pool pump, electric service panel, extra-wide driveway, oversized garage with separate laundry room, & a cozy brick-paver firepit, perfect for enjoying cool Florida evenings. Plus so close to the beach at this location, yet NOT IN A FLOOD ZONE! Also, conveniently located right in the Sorrento South community which you can walk to, is the Bayshore Executive Public Golf Club & the marina where an opportunity could be possible for a boat slip rental from a private owner! Lastly, Sorrento South is deed-restricted keeping the neighborhood neat, but the HOA fee is only $300 a year! Embrace the Beach Lifestyle from this outstanding location that offers “back road” access with the preferred mode of transportation of a golf cart or bicycle! Easy, peesy ride to Nokomis Beach, Waterfront dining with Live Music daily, all the conveniences of Publix, pharmacy, dog groomers, nail salon, boutique shopping & a great deal more! Free of charge, experience the Gulf Breezes, sounds of the Waves, Water Birds, glimpse of dolphin & manatee swimming by, the occasional bridge opening, & Vibrant Rotating Colors of sunset Flooding the Sky! Only 10 minutes to Historic Downtown Venice Island, with shopping, dining, live music, weekly farmers market & more. Just a short trip to the World-Famous Siesta Key & Downtown Sarasota. Notably, Nokomis Beach & Casey Key are the ONLY beach communities in the region with no high rises, no traffic jams & an expressway from Tamiami Trail to I-75 creating easy access to I-75 & all nearby airports. The allure of this locale is undeniable, with nature & beauty, carefree easy lifestyle, year-round Sunsets, watersports, bountiful fishing, boating, long walks on the beach, strolling down the beach collecting sharks’ teeth & shells, cookouts & much more! A perfect place to enjoy, invest, or both! Exhale, Relax & Feel Time Stand Still, after all, Nokomis Beach is not just a Place, but a State-of-Mind!
Public Survey Range
18
Public Survey Section
26
RATIO Current Price By Calculated SqFt
285.80
Road Responsibility
Public Maintained Road
Road Surface Type
Asphalt
Roof
Membrane, Metal
Room Count
11
SW Subdiv Community Name
Sorrento South
Senior Community YN
false
Sewer
Public Sewer
Showing Requirements
Appointment Only, ShowingTime
Spa YN
false
Status Change Timestamp
2025-03-16T01:08:28.000Z
Stories Total
1
Tax Annual Amount
5214
Tax Block
H
Tax Book Number
19-8
Tax Legal Description
LOT 8 BLK H SORRENTO SOUTH UNIT 5
Tax Lot
8
Tax Year
2024
Total Acreage
1/4 to less than 1/2
Total Annual Fees
300.00
Total Monthly Fees
25.00
Township
38
Universal Property Id
US-12115-N-0166090022-R-N
Unparsed Address
201 CAVALLINI DR
Utilities
Cable Connected, Electricity Connected, Public, Sewer Connected, Water Connected
Vegetation
Mature Landscaping, Trees/Landscaped
Water Access
Marina
Water Access YN
1
Water Source
Public
Waterfront YN
false
Zoning
RSF1
Neighborhood Map
Popup

Property Photos
Listing Photo
Listing Photo
Listing Photo
Listing Photo
Listing Photo
Listing Photo
Listing Photo
Listing Photo
Listing Photo
Listing Photo
Listing Photo
Listing Photo
Listing Photo
Listing Photo
Listing Photo
Listing Photo
Listing Photo
Listing Photo
Listing Photo
Listing Photo
Listing Photo
Listing Photo
Listing Photo
Listing Photo
Listing Photo
Listing Photo
Listing Photo
Listing Photo
Listing Photo
Listing Photo
Listing Photo
Listing Photo
Listing Photo
Listing Photo
Listing Photo
Listing Photo
Listing Photo
Listing Photo
Listing Photo
Listing Photo
Listing Photo
Listing Photo
Listing Photo
Listing Photo
Listing Photo
Listing Photo
Listing Photo
Listing Photo
Listing Photo
Listing Photo
Listing Photo
Listing Photo
Listing Photo
Listing Photo
Listing Photo
Listing Photo
Listing Photo
Listing Photo
Listing Photo
Listing Photo
Listing Photo
Listing Photo
Listing Photo
Listing Photo
Listing Photo
Listing Photo
Listing Photo
Listing Photo
Listing Photo
Listing Photo
Listing Photo
Listing Photo
Listing Photo
Listing Photo
Listing Photo
Listing Photo
Listing Photo
Listing Photo
Listing Photo
Listing Photo
Listing Photo
Listing Photo
Listing Photo
Listing Photo
Listing Photo
Listing Photo
Listing Photo
Listing Photo
Listing Photo
Listing Photo
Listing Photo
Listing Photo
Listing Photo
Listing Photo
Listing Photo
Listing Photo
Listing Photo
Listing Photo
Listing Photo
Listing Photo
Listing Photo
Listing Photo
Listing Photo
Listing Photo
Listing Photo
Listing Photo
Listing Photo
Listing Photo
Listing Photo
Listing Photo
Listing Photo
Listing Photo
Listing Photo
Listing Photo
Listing Photo
Listing Photo
Listing Photo
Listing Photo
Listing Photo
Listing Photo
Listing Photo
Listing Photo
Listing Photo
Listing Photo
Listing Photo
Listing Photo
Listing Photo
Listing Photo
Listing Photo
Listing Photo
Listing Photo
Listing Photo
Listing Photo
Listing Photo
Listing Photo
Listing Photo
Listing Photo
Listing Photo
Listing Photo
Listing Photo
Listing Photo
Listing Photo
Listing Photo
Listing Photo
Listing Photo
Listing Photo
Listing Photo
Listing Photo
Listing Photo
Listing Photo
Listing Photo
Listing Photo
Listing Photo
Listing Photo
Listing Photo
Listing Photo
Listing Photo
Listing Photo
Listing Photo
Listing Photo
Listing Photo
Listing Photo
Listing Photo
Listing Photo
Listing Photo
Listing Photo
Listing Photo
Listing Photo
Listing Photo
Listing Photo
Listing Photo
Listing Photo
Listing Photo
Listing Photo
Listing Photo
Listing Photo
Listing Photo
Listing Photo

MLS #MFRN6137734 Listing courtesy of Ayers And Associates Real Estate provided by Stellar MLS.

Similar Listings

$444,800
135 Ventosa Place
Nokomis
3BR/2BA
| Active
$445,000
122 Bella Vista Terrace
Nokomis
3BR/2BA
| Active
$445,000
524 Casas Bonitas Way
Nokomis
3BR/2BA
| Active
$448,900
232 Teramo Way
Nokomis
3BR/2BA
| Active



All listing information is deemed reliable but not guaranteed and should be independently verified through personal inspection by appropriate professionals. Listings displayed on this website may be subject to prior sale or removal from sale; availability of any listing should always be independent verified. Listing information is provided for consumer personal, non-commercial use, solely to identify potential properties for potential purchase; all other use is strictly prohibited and may violate relevant federal and state law. The source of the listing data is as follows: Stellar MLS (updated 12/5/25 2:02 PM) |

Listing Search



Translate Tool

Featured Listings
Winter Garden Real Estate
$814,900
5 BED
3 BATH
Palm Coast Real Estate
$815,000
3 BED
3 BATH
Sarasota Real Estate
$1,250,000
2 BED
2 BATH
University Park Real Estate
$1,085,000
3 BED
3 BATH
Fort Myers Real Estate
$879,999
4 BED
3 BATH
Gainesville Real Estate
$999,900
5 BED
3 BATH
Lakewood Ranch Real Estate
$949,999
3 BED
2 BATH
Bradenton Real Estate
$1,195,000
2 BED
2 BATH
Orlando Real Estate
$920,000
5 BED
3 BATH
The Villages Real Estate
$895,000
3 BED
2 BATH
Contact Sandra Pardo

407-990-2746

Wendy Morris LLC

Licensed in the State of Florida
BK 3146762
16797 Broadwater Avenue
Winter Garden, Florida 34787

Your privacy is our utmost concern. We will never sell your personal information. Privacy Policy
©2025 sandrapardohomes.com - all rights reserved. | Site Map