407-990-2746
Menu

19787 Gladeview Way, Land O Lakes, FL

NEXT
PREV
$579,990

($146/sqft)

List Status: Pending
19787 Gladeview Way
Land O Lakes, FL 34638


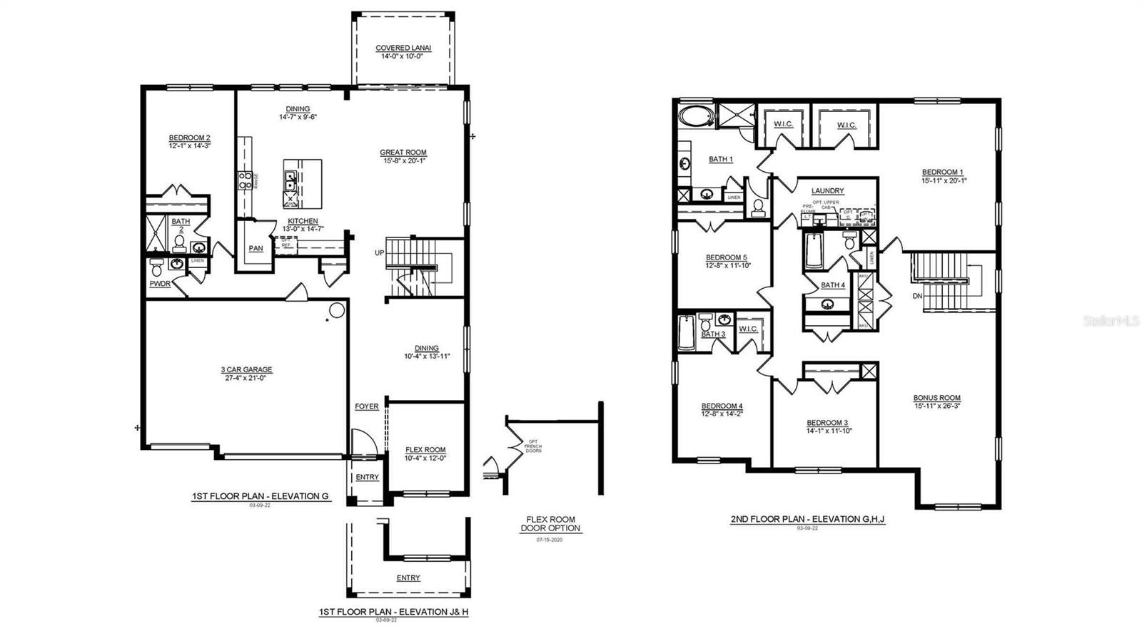
5 beds
4 baths
3975 living sqft
Top Features
  • Subdivision: Deerbrook
  • Built in  2026
  • Single Family Residence
Description
One or more photo(s) has been virtually staged. Under Construction. The builder is offering buyers up to $25,000 towards closing costs with the use of a preferred lender and title company. Located off US-41, Deerbrook showcases new homes in Land O’ Lakes. Homeowners will be a close distance to walking trails and the Suncoast Parkway biking paths, as well as nearby shopping and dining! The Tampa Premium Outlets and Wiregrass Mall are less than 30 minutes away, providing additional shopping and entertainment. Downtown Tampa is just 23 miles away, as is Tampa International Airport. Deerbrook will feature a lineup of our Express, and Tradition floorplans, providing a home for every stage of life! The area is zoned for highly rated Pasco County schools and is just minutes away from US Hwy 41. Each home is constructed with all concrete block construction on 1st and 2nd stories and D.R. Horton’s Smart Home System. Pictures, photographs, colors, features, and sizes are for illustration purposes only and will vary from the homes as built. Home and community information, including pricing, included features, terms, availability, and amenities, are subject to change and prior sale at any time without notice or obligation. Materials may vary based on availability. D.R. Horton Reserves all Rights.
Property Details
Additional Information
Additional Lease Restrictions
Per HOA guidelines
Additional Parcels YN
false
Appliances
Dishwasher, Microwave
Approval Process
Per HOA guidelines
Association Approval Required YN
1
Association Email
Pinereek@accessdifference.com
Association Fee
27
Association Fee Frequency
Monthly
Association Fee Requirement
Required
Association YN
true
Attached Garage YN
true
Available For Lease YN
1
Bathrooms Total Integer
5
Builder License Number
CBC039052
Builder Model
Torino
Builder Name
D.R. Horton
Building Area Source
Builder
Building Area Total
4741
Building Area Total Srch SqM
440.45
Building Area Units
Square Feet
CDDYN
1
Calculated List Price By Calculated SqFt
145.91
Carport YN
false
Complex Community Name NCCB
DEERBROOK
Construction Materials
Block, Stucco
Cooling
Central Air
Country
US
Cumulative Days On Market
87
Current Price
579990.00
Direction Faces
Southwest
Expected Closing Date
2026-10-20T00:00:00.000
Exterior Features
Sliding Doors
Fireplace YN
false
Flood Zone Code
x
Flooring
Carpet, Ceramic Tile
Foundation Details
Slab
Furnished
Unfurnished
Garage Spaces
3
Garage YN
true
Heating
Central
Home Warranty YN
true
Interior Features
Open Floorplan
Internet Address Display YN
true
Internet Automated Valuation Display YN
true
Internet Consumer Comment YN
false
Internet Entire Listing Display YN
true
Laundry Features
Laundry Room
Lease Restrictions YN
1
Levels
Two
List AOR
Suncoast Tampa
Living Area Meters
369.29
Living Area Source
Builder
Living Area Units
Square Feet
Lot Size Acres
0.34
Lot Size Square Feet
15169
Lot Size Square Meters
1409
Minimum Lease
7 Months
Modification Timestamp
2026-03-20T14:39:12.613Z
Monthly HOA Amount
27.00
New Construction YN
true
Occupant Type
Vacant
Ownership
Fee Simple
Parcel Number
03 26 18 0110 01600 0010
Permit Number
2025-00 853
Pets Allowed
Yes
Pool Private YN
false
Previous List Price
599990
Price Change Timestamp
2026-03-10T23:47:54.000Z
Projected Completion Date
2026-06-30T00:00:00.000
Property Condition
Under Construction
Public Survey Range
18
Public Survey Section
03
Purchase Contract Date
2026-03-19
RATIO Current Price By Calculated SqFt
145.91
Road Surface Type
Paved
Roof
Shingle
Room Count
3
Senior Community YN
false
Sewer
Public Sewer
Showing Requirements
Contact Call Center
Status Change Timestamp
2026-03-20T14:38:44.000Z
Tax Block
16
Tax Book Number
96/017
Tax Legal Description
DEERBROOK PHASE 2 PB 96 PG 017 BLOCK 16 LOT 1
Tax Lot
1
Tax Other Annual Assessment Amount
4510
Tax Year
2025
Total Acreage
1/4 to less than 1/2
Total Annual Fees
324.00
Total Monthly Fees
27.00
Township
26
Universal Property Id
US-12101-N-0326180110016000010-R-N
Unparsed Address
19787 GLADEVIEW WAY
Utilities
Underground Utilities
Water Source
Public
Waterfront YN
false
Window Features
Double Pane Windows, Low-Emissivity Windows
Zoning
MPUD
Neighborhood Map
Popup

Property Photos
Listing Photo
Listing Photo
Listing Photo
Listing Photo
Listing Photo
Listing Photo
Listing Photo
Listing Photo
Listing Photo
Listing Photo
Listing Photo
Listing Photo
Listing Photo
Listing Photo
Listing Photo
Listing Photo
Listing Photo
Listing Photo
Listing Photo
Listing Photo
Listing Photo
Listing Photo
Listing Photo
Listing Photo
Listing Photo
Listing Photo
Listing Photo
Listing Photo
Listing Photo
Listing Photo
Listing Photo
Listing Photo

MLS #MFRTB8458411 Listing courtesy of D R Horton Realty Of Tampa Llc provided by Stellar MLS.

Similar Listings

$569,990
6903 Daintree Court
Land O Lakes
5BR/4BA
| Active
$599,000
4850 Walnut Ridge Road
Land O Lakes
5BR/4BA
| Active
$600,000
7018 Cardinalwood Lane
Land O Lakes
5BR/4BA
| Active
$619,740
19828 Holly Flats Lane
Land O Lakes
5BR/4BA
| Active



All listing information is deemed reliable but not guaranteed and should be independently verified through personal inspection by appropriate professionals. Listings displayed on this website may be subject to prior sale or removal from sale; availability of any listing should always be independent verified. Listing information is provided for consumer personal, non-commercial use, solely to identify potential properties for potential purchase; all other use is strictly prohibited and may violate relevant federal and state law. The source of the listing data is as follows: Stellar MLS (updated 4/21/26 5:46 AM) |

Listing Search



Translate Tool

Featured Listings
Orlando Real Estate
$1,130,000
4 BED
2 BATH
Luxury home in Southwest Orlando’s premier gated golf community. This home has been completely reconstructed, the master... Read More
Micanopy Real Estate
$1,200,000
4 BED
3 BATH
One of a Kind Country Retreat! Custom Jacobsen Home on 51.7 acres located on CR 234 just outside Micanopy. Property is s... Read More
Indian Rocks Beach Real Estate
$875,000
4 BED
3 BATH
Welcome to The Walk at Indian Rocks Beach! This 4 bedroom, 3 bathroom townhouse is mere steps away from the sugar sand b... Read More
Port Charlotte Real Estate
$824,900
5 BED
2 BATH
6 CAR DETACHED GARAGE & OVER 1.2 ACRES WITH RECENT REDUCTION! Experience the perfect blend of elegance and functionality... Read More
St Petersburg Real Estate
$815,000
5 BED
4 BATH
Under contract-accepting backup offers. SPACE, PRIVACY & FLORIDA LIVING AT ITS FINEST IN ST PETERSBURG | FL — Welcome to... Read More
Indian Shores Real Estate
$815,000
2 BED
2 BATH
TOES IN THE SAND - END/CORNER UNIT OFFERING BEACHFRONT LIVING WITH PANORAMIC GULF VIEWS IN COVETED INDIAN SHORES, FL | W... Read More
St Petersburg Real Estate
$1,379,500
2 BED
2 BATH
Pre-Construction. To be built. Experience Parisian luxury in Unit #1503 at the iconic Roche Bobois St. Pete Tower. This ... Read More
Venice Real Estate
$1,200,000
4 BED
4 BATH
Experience elevated coastal living in this exceptional 4-bedroom, 4-bath residence with Wine Cellar and Private Sauna. T... Read More
Punta Gorda Real Estate
$860,000
5 BED
4 BATH
Welcome to this beautifully designed Roseland model by Pulte, located in the sought-after Northridge at Babcock Ranch. T... Read More
Maitland Real Estate
$979,000
4 BED
3 BATH
Beautiful and spacious home at 1281 Wellington Terrace featuring high beam ceilings and elegant tile floors throughout. ... Read More
Contact Sandra Pardo

407-990-2746

Wendy Morris LLC

Licensed in the State of Florida
BK 3146762
16797 Broadwater Avenue
Winter Garden, Florida 34787

Your privacy is our utmost concern. We will never sell your personal information. Privacy Policy
©2026 sandrapardohomes.com - all rights reserved. | Site Map