407-990-2746
Menu

19607 Wyndham Lakes Drive, Odessa, FL

NEXT
PREV
$637,000

($289/sqft)

List Status: Active
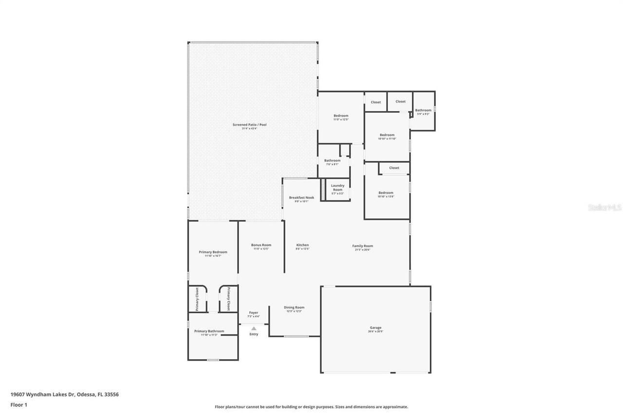
19607 Wyndham Lakes Drive
Odessa, FL 33556


4 beds
3 baths
2202 living sqft
Top Features
  • View: Trees/Woods
  • Subdivision: Wyndham Lake Sub Ph One
  • Built in  1990
  • Single Family Residence
Description
Property Details
Additional Information
Additional Lease Restrictions
contact HOA
Additional Parcels YN
false
Additional Rooms
Interior In-Law Suite w/No Private Entry
Appliances
Dishwasher, Disposal, Electric Water Heater, Microwave, Refrigerator
Approval Process
contact HOA
Architectural Style
Ranch
Association Amenities
Park
Association Email
info@greenacre.com
Association Fee
450
Association Fee Frequency
Annually
Association Fee Requirement
Required
Association URL
https://www.greenacre.com
Association YN
true
Attached Garage YN
true
Available For Lease YN
1
Bathrooms Total Integer
3
Building Area Source
Public Records
Building Area Total
3082
Building Area Total Srch SqM
286.33
Building Area Units
Square Feet
Calculated List Price By Calculated SqFt
289.28
Carport YN
false
Community Features
Park, Sidewalks
Construction Materials
Block, Stucco
Cooling
Central Air
Country
US
Cumulative Days On Market
6
Current Price
637000.00
Direction Faces
North
Elementary School
Hammond Elementary School
Exterior Features
Sidewalk
Fireplace Features
Wood Burning
Fireplace YN
true
Flood Zone Code
X
Flood Zone Date
2008-08-28
Flood Zone Panel
12057C0040H
Flooring
Luxury Vinyl, Tile
Foundation Details
Slab
Furnished
Unfurnished
Garage Spaces
3
Garage YN
true
Heating
Electric
High School
Steinbrenner High School
Home Warranty YN
false
Homestead YN
1
Interior Features
Ceiling Fans(s)
Internet Address Display YN
true
Internet Automated Valuation Display YN
true
Internet Consumer Comment YN
true
Internet Entire Listing Display YN
true
Laundry Features
Inside, Laundry Room
Levels
One
List AOR
Osceola
Living Area Meters
204.57
Living Area Source
Public Records
Living Area Units
Square Feet
Lot Features
Conservation Area, Sidewalk, Paved
Lot Size Acres
0.21
Lot Size Dimensions
74x124
Lot Size Square Feet
9176
Lot Size Square Meters
852
Middle Or Junior School
Madison-HB
Minimum Lease
No Minimum
Modification Timestamp
2026-01-25T19:06:31.176Z
Monthly HOA Amount
37.50
New Construction YN
false
Occupant Type
Owner
Ownership
Fee Simple
Parcel Number
U-03-27-17-00A-000002-00017.1
Pet Restrictions
contact HOA
Pets Allowed
Yes
Pool Private YN
true
Public Remarks
Welcome to this beautifully updated, single-story pool home in the highly desirable Wyndham Lakes community of Odessa, perfectly positioned on a private lot with peaceful preserve views and no rear neighbors, offering exceptional privacy and true Florida indoor-outdoor living. Inside, vaulted ceilings, a skylight, and abundant natural light enhance the open and inviting layout, while the fully remodeled kitchen stands out with white shaker cabinetry, quartz countertops with a striking waterfall island, stainless steel appliances, a dedicated coffee and beverage bar, and included washer and dryer, flowing seamlessly into the family and dining areas anchored by a classic brick fireplace. Just off the kitchen, a light-filled breakfast area provides a comfortable space for casual dining overlooking the outdoor living area. The split floor plan offers comfort and privacy with a spacious primary suite featuring direct access to the screened pool and spa, a spa-inspired en-suite bath, and custom closet systems, while one secondary bedroom includes its own private en-suite bathroom, ideal for guests or multigenerational living, and remaining bedrooms are well-sized and thoughtfully placed. Step outside to a private retreat where the expansive screened lanai and pool area overlook the preserve, featuring a resurfaced pool, new pool deck, and all-new pool equipment including pump, heater, and filter, creating a tranquil setting for relaxing or entertaining year-round. Notable upgrades include a new roof in 2022, a new HVAC system in 2022, luxury vinyl plank flooring, updated bathrooms, custom storage solutions, an epoxy-finished garage floor, and a spacious three-car garage, all within a well-established community offering low HOA fees, neighborhood lakes and a playground, highly regarded schools, and convenient access to shopping, dining, and major roadways.
Public Survey Range
17
Public Survey Section
03
RATIO Current Price By Calculated SqFt
289.28
Realtor Info
As-Is, See Attachments, Sign
Road Surface Type
Asphalt
Roof
Shingle
Room Count
6
Senior Community YN
false
Sewer
Public Sewer
Showing Requirements
Supra Lock Box, Appointment Only, ShowingTime
Spa Features
In Ground
Spa YN
true
Status Change Timestamp
2026-01-20T04:45:56.000Z
Tax Annual Amount
7862
Tax Block
2
Tax Book Number
68-30
Tax Legal Description
WYNDHAM LAKE SUBDIVISION PHASE ONE E 5 FT OF LOT 17 AND LOT 18 LESS THAT PART DESC AS BEG AT SE COR OF LOT 18 RUN N 75 DEG 26 MIN 47 SEC W 11.13 FT THN N 15 DEG 01 MIN 44.5 SEC E 96.73 FT TO PT ON COMMON BDRY OF LOTS 18 & 19 THN S 08 DEG 27 MIN 25 SEC W 97.28 FT ALG BDRY TO POB BLOCK 2
Tax Lot
17
Tax Year
2025
Total Acreage
0 to less than 1/4
Total Annual Fees
450.00
Total Monthly Fees
37.50
Township
27
Universal Property Id
US-12057-N-03271700000002000171-R-N
Unparsed Address
19607 WYNDHAM LAKES DR
Utilities
Cable Connected, Electricity Connected, Public, Sewer Connected
Vegetation
Oak Trees
Water Source
Public
Water View
Lake
Water View YN
1
Waterfront YN
false
Zoning
ASC-1
Zoning Compatible YN
1
Neighborhood Map
Popup

Property Photos
Listing Photo
Listing Photo
Listing Photo
Listing Photo
Listing Photo
Listing Photo
Listing Photo
Listing Photo
Listing Photo
Listing Photo
Listing Photo
Listing Photo
Listing Photo
Listing Photo
Listing Photo
Listing Photo
Listing Photo
Listing Photo
Listing Photo
Listing Photo
Listing Photo
Listing Photo
Listing Photo
Listing Photo
Listing Photo
Listing Photo
Listing Photo
Listing Photo
Listing Photo
Listing Photo
Listing Photo
Listing Photo
Listing Photo
Listing Photo
Listing Photo
Listing Photo
Listing Photo
Listing Photo
Listing Photo
Listing Photo
Listing Photo
Listing Photo
Listing Photo
Listing Photo
Listing Photo
Listing Photo
Listing Photo
Listing Photo
Listing Photo
Listing Photo
Listing Photo
Listing Photo
Listing Photo
Listing Photo
Listing Photo
Listing Photo
Listing Photo
Listing Photo
Listing Photo
Listing Photo
Listing Photo
Listing Photo
Listing Photo
Listing Photo
Listing Photo
Listing Photo
Listing Photo
Listing Photo
Listing Photo
Listing Photo
Listing Photo
Listing Photo
Listing Photo
Listing Photo
Listing Photo
Listing Photo
Listing Photo
Listing Photo
Listing Photo
Listing Photo
Listing Photo
Listing Photo
Listing Photo
Listing Photo
Listing Photo
Listing Photo
Listing Photo
Listing Photo
Listing Photo
Listing Photo
Listing Photo
Listing Photo
Listing Photo
Listing Photo
Listing Photo
Listing Photo
Listing Photo
Listing Photo

MLS #MFRTB8466435 Listing courtesy of Jason Mitchell Real Estate Flo provided by Stellar MLS.

Similar Listings

$575,000
19905 Wyndmill Circle
Odessa
4BR/3BA
| Pending
$599,900
19719 Spring Willow Court
Odessa
4BR/3BA
| Pending
$645,000
17316 Hialeah Drive
Odessa
4BR/3BA
| Active
$650,000
15207 Arbor Hollow Drive
Odessa
4BR/3BA
| Active



All listing information is deemed reliable but not guaranteed and should be independently verified through personal inspection by appropriate professionals. Listings displayed on this website may be subject to prior sale or removal from sale; availability of any listing should always be independent verified. Listing information is provided for consumer personal, non-commercial use, solely to identify potential properties for potential purchase; all other use is strictly prohibited and may violate relevant federal and state law. The source of the listing data is as follows: Stellar MLS (updated 1/30/26 7:24 AM) |

Listing Search



Translate Tool

Featured Listings
Sarasota Real Estate
$1,050,000
5 BED
5 BATH
Bradenton Real Estate
$1,195,000
3 BED
2 BATH
Orlando Real Estate
$975,000
3 BED
3 BATH
St Petersburg Real Estate
$980,000
4 BED
2 BATH
Tampa Real Estate
$1,078,900
4 BED
2 BATH
Winter Garden Real Estate
$1,420,000
5 BED
4 BATH
Gainesville Real Estate
$959,900
4 BED
3 BATH
Ellenton Real Estate
$1,200,000
3 BED
4 BATH
Port Charlotte Real Estate
$950,000
3 BED
2 BATH
Bradenton Real Estate
$875,000
3 BED
3 BATH
Contact Sandra Pardo

407-990-2746

Wendy Morris LLC

Licensed in the State of Florida
BK 3146762
16797 Broadwater Avenue
Winter Garden, Florida 34787

Your privacy is our utmost concern. We will never sell your personal information. Privacy Policy
©2026 sandrapardohomes.com - all rights reserved. | Site Map