407-990-2746
Menu

19519 Gulf Boulevard Unit: Unit: 202, Indian Shores, FL

NEXT
PREV
$990,000

($635/sqft)

List Status: Active
19519 Gulf Boulevard
Indian Shores, FL 33785


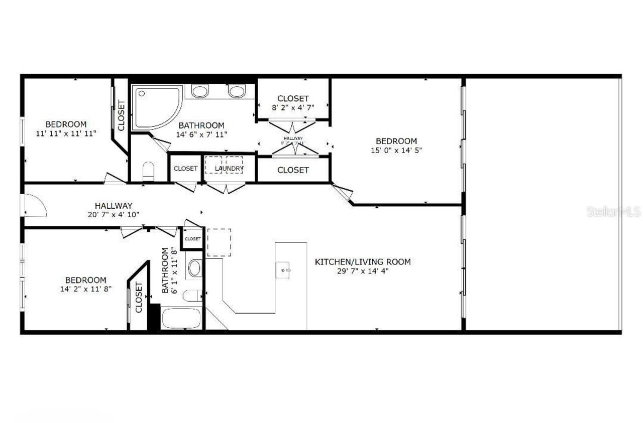
3 beds
2 baths
1560 living sqft
Top Features
  • Frontage: Intracoastal Waterway
  • View: Water, Park/Greenbelt, Pool
  • Subdivision: Dolphin Key Condo
  • Built in  2017
  • Condominium
Description
Life is short, BUY THE BEACH HOUSE! PRICED TO SELL QUICKLY! Welcome Home to your stunning, fully furnished, turn-key (all furniture, kitchenware, decorations, and linens included), 2nd floor luxury condo unit at Dolphin Key, located directly on the Intracoastal Waterway in beautiful Indian Shores within walking distance of several great restaurants. Recently built in 2017 in compliance with the latest Florida hurricane building codes, this unit had ZERO DAMAGE FROM THE 2024 STORMS. Owners in this exclusive 30-unit community enjoy the added safety of post-tension reinforced concrete construction, concrete pile raised foundation, reinforced concrete/metal standing seam roof, HURRICANE RATED IMPACT WINDOWS AND DOORS throughout each unit, and monitored interior fire alarm/sprinkler systems. The building has a new roof and was painted in October 2023, and the HOA board is very friendly and proactive in keeping the building and grounds in pristine condition. Relax and enjoy panoramic Intracoastal Waterway views from your massive 20' x 30', 600 square foot terrace (only 2nd floor units have a 20' x 30' terrace, all other units have 10' x 30' balconies) or take a short walk across Gulf Blvd to enjoy beach access to the sugar sand Indian Shores beaches and turquoise waters of the Gulf of Mexico. You will fall in love with this open concept condo the moment you walk through the front door. 1,560 sq ft, 3 large bedrooms, 2 full bathrooms, 1 under building assigned parking space, 1 parking lot assigned parking space, plenty of guest parking, and deeded use of Cabana 10 to store all of your beach gear. The kitchen was remodeled in 2019 and features 42" KraftMaid custom wood cabinetry with soft close hinges, pantry cabinet, Lazy Susan, oversized quartz countertops, and stainless-steel appliances. This very energy efficient unit also features a tankless hot water heater. The large master bedroom with Intracoastal Waterway views and sliding door access to the terrace also includes
Property Details
Additional Information
Additional Lease Restrictions
Minimum 30 day rental period. BUYER AND BUYER'S AGENT ARE TO VERIFY LEASE RESTRICTIONS WITH AMERITECH PROPERTY MANAGEMENT.
Additional Parcels YN
false
Alternate Key Folio Num
30-14-24-21805-000-2020
Appliances
Dishwasher, Disposal, Dryer, Microwave, Range, Refrigerator, Tankless Water Heater, Washer
Approval Process
Buyer must call Property Manager for application instructions. Blank application is attached.
Architectural Style
Contemporary, Elevated, Florida, Key West
Association Amenities
Elevators, Park, Pool, Security, Spa/Hot Tub
Association Email
SVIGNERY@AMERITECHMAIL.COM
Association Fee Includes
Cable TV, Pool, Escrow Reserves Fund, Insurance, Internet, Maintenance Structure, Maintenance Grounds, Pest Control, Sewer, Trash, Water
Association URL
www.ameritechpropertymanagement.com
Association YN
true
Available For Lease YN
1
Bathrooms Total Integer
2
Building Area Source
Public Records
Building Area Total
1560
Building Area Total Srch SqM
144.93
Building Area Units
Square Feet
Building Elevator YN
1
Calculated List Price By Calculated SqFt
634.62
Carport Spaces
1
Carport YN
true
Community Features
Community Mailbox, Deed Restrictions, Dog Park, Pool, Sidewalks
Complex Community Name NCCB
DOLPHIN KEY
Condo Fees
908
Condo Fees Term
Monthly
Condo Land Included YN
1
Construction Materials
Block, Stucco
Cooling
Central Air
Country
US
Cumulative Days On Market
86
Current Price
990000.00
Direction Faces
West
Disaster Mitigation
Hurricane Shutters/Windows
Elementary School
Bauder Elementary-PN
Exterior Features
Balcony, Dog Run, Fire Pit, Outdoor Grill, Outdoor Shower, Sidewalk, Sliding Doors, Storage
Fencing
Vinyl
Fireplace YN
false
Flood Zone Code
AE
Flood Zone Date
2021-08-24
Flood Zone Panel
12103C0176H
Floor Number
2
Flooring
Ceramic Tile, Vinyl
Foundation Details
Slab
Furnished
Turnkey
Garage YN
false
Green Landscaping
Fl. Friendly/Native Landscape
Heating
Central, Electric, Heat Pump
High School
Seminole High-PN
Homestead YN
1
Interior Features
Ceiling Fans(s), Kitchen/Family Room Combo, Living Room/Dining Room Combo, Open Floorplan, Primary Bedroom Main Floor, Solid Surface Counters, Solid Wood Cabinets, Stone Counters, Thermostat, Walk-In Closet(s), Window Treatments
Internet Address Display YN
true
Internet Automated Valuation Display YN
false
Internet Consumer Comment YN
false
Internet Entire Listing Display YN
true
Laundry Features
Electric Dryer Hookup, Inside, Laundry Closet, Washer Hookup
Lease Restrictions YN
1
Levels
One
List AOR
Suncoast Tampa
Living Area Meters
144.93
Living Area Source
Public Records
Living Area Units
Square Feet
Lot Features
FloodZone, City Limits, Landscaped, Near Marina, Near Public Transit, Paved
Lot Size Acres
2
Lot Size Square Feet
106371
Lot Size Square Meters
9882
Middle Or Junior School
Seminole Middle-PN
Minimum Lease
1 Month
Modification Timestamp
2026-04-27T15:23:09.864Z
Monthly Condo Fee Amount
908
New Construction YN
false
Number Of Lots
1
Number Of Pets
2
Occupant Type
Vacant
Other Equipment
Fire Pit, Irrigation Equipment
Other Structures
Cabana
Ownership
Condominium
Parcel Number
24-30-14-21805-000-2020
Patio And Porch Features
Covered, Deck, Other, Patio, Rear Porch
Pet Restrictions
2 pets, dogs and/or cats, but not weighing more than 50 lbs in total weight combined. BUYER AND BUYER'S AGENT MUST VERIFY PET RESTRICTIONS WITH AMERITECH PROPERTY MANAGEMENT.
Pet Size
Medium (36-60 Lbs.)
Pets Allowed
Cats OK, Dogs OK, Number Limit, Size Limit, Yes
Pool Private YN
true
Postal Code Plus 4
2206
Previous List Price
995000
Price Change Timestamp
2026-04-10T16:13:42.000Z
Property Attached YN
false
Property Condition
Completed
Property Description
Elevated, Mid Rise
Public Survey Range
14
Public Survey Section
24
RATIO Current Price By Calculated SqFt
634.62
Realtor Info
As-Is, Docs Available, Floor Plan Available, Lease Restrictions, No Sign
Road Responsibility
Public Maintained Road
Road Surface Type
Asphalt
Roof
Built-Up
Room Count
6
Security Features
Fire Sprinkler System, Key Card Entry, Smoke Detector(s)
Senior Community YN
false
Sewer
Public Sewer
Showing Requirements
Appointment Only, Call Listing Agent, Listing Agent Must Accompany, No Lockbox, See Remarks
Spa Features
In Ground
Spa YN
true
Status Change Timestamp
2026-02-20T14:26:52.000Z
Stories Total
6
Tax Annual Amount
7187
Tax Block
000
Tax Book Number
160-81
Tax Legal Description
DOLPHIN KEY CONDO UNIT 202 TOGETHER WITH THE USE OF CABANA 10 & PARKING SPACES 1 & 43
Tax Lot
2020
Tax Year
2024
Total Acreage
2 to less than 5
Total Annual Fees
10896.00
Total Monthly Fees
908.00
Township
30
Universal Property Id
US-12103-N-243014218050002020-S-202
Unparsed Address
19519 GULF BLVD #202
Utilities
Cable Connected, Electricity Connected, Fire Hydrant, Phone Available, Public, Sewer Connected, Underground Utilities, Water Connected
Vegetation
Trees/Landscaped
Water Access
Gulf/Ocean, Intracoastal Waterway
Water Access YN
1
Water Extras
Fishing Pier
Water Extras YN
1
Water Frontage Feet ICW
200
Water Source
Public
Water View
Bay/Harbor - Full, Gulf/Ocean - Partial, Intracoastal Waterway
Water View YN
1
Waterfront Feet Total
200
Waterfront YN
true
Window Features
Blinds, Shutters, Storm Window(s), Window Treatments
Zoning
MULTI
Zoning Compatible YN
1
Neighborhood Map
Popup

Property Photos
Listing Photo
Listing Photo
Listing Photo
Listing Photo
Listing Photo
Listing Photo
Listing Photo
Listing Photo
Listing Photo
Listing Photo
Listing Photo
Listing Photo
Listing Photo
Listing Photo
Listing Photo
Listing Photo
Listing Photo
Listing Photo
Listing Photo
Listing Photo
Listing Photo
Listing Photo
Listing Photo
Listing Photo
Listing Photo
Listing Photo
Listing Photo
Listing Photo
Listing Photo
Listing Photo
Listing Photo
Listing Photo
Listing Photo
Listing Photo
Listing Photo
Listing Photo
Listing Photo
Listing Photo
Listing Photo
Listing Photo
Listing Photo
Listing Photo
Listing Photo
Listing Photo
Listing Photo
Listing Photo
Listing Photo
Listing Photo
Listing Photo
Listing Photo
Listing Photo
Listing Photo
Listing Photo
Listing Photo
Listing Photo
Listing Photo
Listing Photo
Listing Photo
Listing Photo
Listing Photo
Listing Photo
Listing Photo
Listing Photo
Listing Photo
Listing Photo
Listing Photo
Listing Photo
Listing Photo
Listing Photo
Listing Photo
Listing Photo
Listing Photo
Listing Photo
Listing Photo
Listing Photo
Listing Photo
Listing Photo
Listing Photo
Listing Photo
Listing Photo
Listing Photo
Listing Photo
Listing Photo
Listing Photo
Listing Photo
Listing Photo
Listing Photo
Listing Photo
Listing Photo
Listing Photo
Listing Photo
Listing Photo
Listing Photo
Listing Photo
Listing Photo
Listing Photo
Listing Photo
Listing Photo
Listing Photo
Listing Photo
Listing Photo
Listing Photo
Listing Photo
Listing Photo
Listing Photo
Listing Photo
Listing Photo
Listing Photo
Listing Photo
Listing Photo
Listing Photo
Listing Photo
Listing Photo
Listing Photo
Listing Photo
Listing Photo
Listing Photo
Listing Photo
Listing Photo
Listing Photo
Listing Photo
Listing Photo
Listing Photo
Listing Photo
Listing Photo
Listing Photo
Listing Photo
Listing Photo
Listing Photo
Listing Photo
Listing Photo
Listing Photo
Listing Photo
Listing Photo
Listing Photo
Listing Photo
Listing Photo
Listing Photo
Listing Photo
Listing Photo
Listing Photo
Listing Photo
Listing Photo
Listing Photo
Listing Photo
Listing Photo
Listing Photo
Listing Photo
Listing Photo
Listing Photo

MLS #MFRTB8477831 Listing courtesy of Charles Rutenberg Realty Inc provided by Stellar MLS.

Similar Listings

$950,000
19530 Gulf Boulevard
Indian Shores
3BR/2BA
| Pending
$1,000,000
20000 Gulf Boulevard
Indian Shores
3BR/2BA
| Active



All listing information is deemed reliable but not guaranteed and should be independently verified through personal inspection by appropriate professionals. Listings displayed on this website may be subject to prior sale or removal from sale; availability of any listing should always be independent verified. Listing information is provided for consumer personal, non-commercial use, solely to identify potential properties for potential purchase; all other use is strictly prohibited and may violate relevant federal and state law. The source of the listing data is as follows: Stellar MLS (updated 5/1/26 12:07 AM) |

Listing Search



Translate Tool

Featured Listings
Lake Mary Real Estate
$1,125,000
4 BED
3 BATH
Located in one of Lake Mary’s most sought-after communities, this beautiful single-story custom pool home in Heathrow bl... Read More
Windermere Real Estate
$1,499,000
4 BED
4 BATH
Welcome to an exceptional opportunity in the exclusive gated enclave of Balmoral home to just 32 custom residences—where... Read More
St Petersburg Real Estate
$1,250,000
3 BED
2 BATH
Why wait to build or rehab when you can *Move Right In* this Beautiful Venetian Isles Waterfront Pool Home on the Point ... Read More
Tampa Real Estate
$1,425,000
4 BED
3 BATH
Welcome to 3512 San Juan, a beautifully updated home that perfectly blends modern style with sophisticated charm. Extens... Read More
Wesley Chapel Real Estate
$949,000
5 BED
5 BATH
Situated against a serene nature view, this 2023 GL Homes masterpiece in Winding Ridge represents the peak of modern Flo... Read More
Tampa Real Estate
$1,500,000
3 BED
2 BATH
A rare gem on Davis Islands, this home remained high and dry with no flooding during the major storms of 2024. This beau... Read More
Parrish Real Estate
$869,999
4 BED
4 BATH
Welcome to Creeks Edge at Twin Rivers — Where Modern Luxury Meets The Florida Lifestyle! Escape the Noise & Embrace the ... Read More
Odessa Real Estate
$975,000
4 BED
3 BATH
Indulge in the ultimate lakefront lifestyle—this is the one you’ve been waiting for to start living your best life. With... Read More
Tampa Real Estate
$1,269,000
2 BED
2 BATH
Pre-Construction. To be built. Under construction. The developers of Hyde Park House are bringing the newest luxury livi... Read More
Sarasota Real Estate
$1,480,000
4 BED
3 BATH
Set in the enchanting, tree-canopied gated community of Bent Tree – The Woodlands, find Modern Elegance in this 4-bed, 3... Read More
Contact Sandra Pardo

407-990-2746

Wendy Morris LLC

Licensed in the State of Florida
BK 3146762
16797 Broadwater Avenue
Winter Garden, Florida 34787

Your privacy is our utmost concern. We will never sell your personal information. Privacy Policy
©2026 sandrapardohomes.com - all rights reserved. | Site Map