407-990-2746
Menu

1810 Nw 23rd Boulevard Unit: Unit: 183, Gainesville, FL

NEXT
PREV
$149,000

($117/sqft)

List Status: Active
1810 Nw 23rd Boulevard
Gainesville, FL 32605


3 beds
2 baths
1278 living sqft
Top Features
  • Subdivision: Creeks Edge Condo
  • Built in  1972
  • Condominium
Description
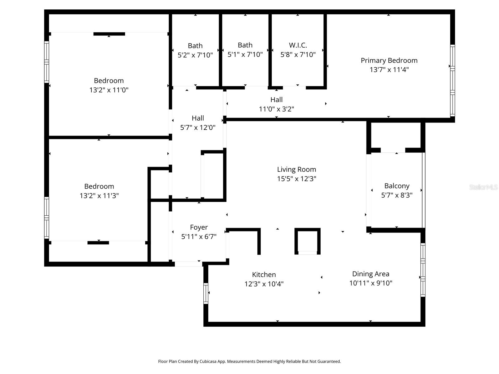
Turn-key three bedroom, two bath in Creeks Edge! Freshly painted interior and brand new carpet! This second floor unit features a spacious living room and dining room, perfect for hosting guests. The kitchen, that overlooks both the dining and living areas, has a refrigerator, range, dishwasher and microwave. There are three spacious bedrooms and two full bathrooms. Enjoy the evening on your private balcony that overlooks an abundant green space. Creeks Edge is filled with mature and unique landscape, a bridge that crosses over Hogtown creek and many areas to enjoy the beauty of the surroundings. The community also features tennis courts, a pool and a clubhouse. Creeks Edge is steps from Gainesville High School, less than 2 miles from UF and Downtown. Schedule your showing today!
Property Details
Additional Information
Additional Lease Restrictions
Buyer to verify leasing restrictions with association.
Additional Parcels YN
false
Alternate Key Folio Num
09003003183
Appliances
Dishwasher, Dryer, Microwave, Range, Refrigerator, Washer
Association Email
rdegale@vestapropertyservices.com
Association Fee Includes
Pool, Escrow Reserves Fund, Maintenance Structure, Maintenance Grounds, Recreational Facilities
Association YN
false
Available For Lease YN
1
Bathrooms Total Integer
2
Building Area Source
Public Records
Building Area Total
1278
Building Area Total Srch SqM
118.73
Building Area Units
Square Feet
Calculated List Price By Calculated SqFt
116.59
Carport YN
false
Community Features
Clubhouse, Playground, Pool, Tennis Court(s)
Condo Fees
465
Condo Fees Term
Monthly
Construction Materials
Stucco
Cooling
Central Air
Country
US
Cumulative Days On Market
30
Current Price
149000.00
Direction Faces
East
Elementary School
Glen Springs Elementary School-AL
Exterior Features
Balcony, Sliding Doors
Fireplace YN
false
Flood Zone Code
X
Flood Zone Date
2006-06-16
Flood Zone Panel
12001C0311D
Floor Number
2
Flooring
Carpet, Ceramic Tile
Foundation Details
Slab
Garage YN
false
Heating
Central
High School
Gainesville High School-AL
Interior Features
Ceiling Fans(s), L Dining, Window Treatments
Internet Address Display YN
true
Internet Automated Valuation Display YN
true
Internet Consumer Comment YN
true
Internet Entire Listing Display YN
true
Laundry Features
Laundry Closet
Lease Restrictions YN
1
Levels
One
List AOR
Gainesville-Alachua
Living Area Meters
118.73
Living Area Source
Public Records
Living Area Units
Square Feet
Lot Size Acres
19.72
Lot Size Square Feet
858825
Lot Size Square Meters
79787
Max Pet Weight
999
Middle Or Junior School
Westwood Middle School-AL
Minimum Lease
7 Months
Modification Timestamp
2025-10-24T19:48:10.698Z
Monthly Condo Fee Amount
465
New Construction YN
false
Occupant Type
Vacant
Ownership
Condominium
Parcel Number
09003-003-183
Pets Allowed
Yes
Pool Private YN
false
Postal Code Plus 4
3043
Previous List Price
154000
Price Change Timestamp
2025-10-24T19:47:23.000Z
Public Survey Range
20
Public Survey Section
30
RATIO Current Price By Calculated SqFt
116.59
Road Surface Type
Paved
Roof
Shingle
Room Count
3
Senior Community YN
false
Sewer
Public Sewer
Showing Requirements
Combination Lock Box
Status Change Timestamp
2025-09-24T14:55:36.000Z
Stories Total
1
Tax Annual Amount
2957.1
Tax Legal Description
CREEKS EDGE CONDO OR 3347/120 BLDG 3 UNIT 183 & UNDIV INT IN COMMON AREA OR 3428/1437
Tax Lot
NA
Tax Year
2024
Total Annual Fees
5580.00
Total Monthly Fees
465.00
Township
09
Universal Property Id
US-12001-N-09003003183-S-183
Unparsed Address
1810 NW 23RD BLVD #183
Utilities
Cable Connected, Electricity Connected, Sewer Connected
Vegetation
Mature Landscaping
Water Source
Public
Waterfront YN
false
Zoning
RESI
Neighborhood Map
Popup

Property Photos
Listing Photo
Listing Photo
Listing Photo
Listing Photo
Listing Photo
Listing Photo
Listing Photo
Listing Photo
Listing Photo
Listing Photo
Listing Photo
Listing Photo
Listing Photo
Listing Photo
Listing Photo
Listing Photo
Listing Photo
Listing Photo
Listing Photo
Listing Photo
Listing Photo
Listing Photo
Listing Photo
Listing Photo
Listing Photo
Listing Photo
Listing Photo
Listing Photo
Listing Photo
Listing Photo
Listing Photo
Listing Photo
Listing Photo
Listing Photo
Listing Photo
Listing Photo
Listing Photo
Listing Photo
Listing Photo
Listing Photo
Listing Photo
Listing Photo
Listing Photo
Listing Photo
Listing Photo
Listing Photo
Listing Photo
Listing Photo
Listing Photo
Listing Photo
Listing Photo
Listing Photo
Listing Photo
Listing Photo
Listing Photo
Listing Photo

MLS #MFRGC534040 Listing courtesy of Union Properties Of Gainesville, Inc. provided by Stellar MLS.

Similar Listings

$138,000
6519 W Newberry Road
Gainesville
3BR/2BA
| Active
$149,000
1810 Nw 23rd Boulevard
Gainesville
3BR/2BA
| Active
$149,900
2110 Sw 69th Drive
Gainesville
3BR/2BA
| Active
$155,000
5528 Sw 4th Place
Gainesville
3BR/2BA
| Active



All listing information is deemed reliable but not guaranteed and should be independently verified through personal inspection by appropriate professionals. Listings displayed on this website may be subject to prior sale or removal from sale; availability of any listing should always be independent verified. Listing information is provided for consumer personal, non-commercial use, solely to identify potential properties for potential purchase; all other use is strictly prohibited and may violate relevant federal and state law. The source of the listing data is as follows: Stellar MLS (updated 4/27/26 6:36 PM) |

Listing Search



Translate Tool

Featured Listings
Orlando Real Estate
$989,000
5 BED
4 BATH
Located on a desirable corner lot in Laureate Park, this beautifully designed home offers flexible living, modern finish... Read More
St Petersburg Real Estate
$1,400,000
3 BED
3 BATH
Step inside a home where every detail has been thoughtfully curated for those who appreciate the finer things in life. 8... Read More
St Petersburg Real Estate
$1,070,000
3 BED
2 BATH
Imagine stepping out your door and being minutes away from the Sundial, Beach Dr. NE, and the St. Pete Pier! This Huntin... Read More
Lake Mary Real Estate
$876,000
4 BED
3 BATH
Welcome to Heathrow and this Spectacular Lakefront Home featuring 4 Bedrooms, 3 Baths Plus an Executive Office. One of t... Read More
Winter Garden Real Estate
$929,999
5 BED
4 BATH
Experience refined Florida living in this exceptional 2023-built lakefront home in the highly sought-after Waterleigh co... Read More
St Petersburg Real Estate
$950,000
2 BED
2 BATH
Experience refined waterfront living in this brilliantly renovated corner residence in Antigua at Dolphin Cay, one of St... Read More
Orlando Real Estate
$805,097
4 BED
3 BATH
One or more photo(s) has been virtually staged. Under Construction. Discover the Tanner A Plan – Thoughtful Design Meets... Read More
Longboat Key Real Estate
$1,050,000
3 BED
3 BATH
Step inside and be immediately greeted by stunning, uninterrupted views of the Gulf of Mexico, setting the tone for this... Read More
Longwood Real Estate
$1,095,000
6 BED
4 BATH
Privately on 1.62 acres along one of the sought-after corridors of Markham Woods Road in Longwood, this exceptional prop... Read More
Ocala Real Estate
$899,900
4 BED
3 BATH
Fully remodeled home on nearly 5 acres—just 1 mile from the Florida Horse Park! This beautifully updated 4 bedroom 3 bat... Read More
Contact Sandra Pardo

407-990-2746

Wendy Morris LLC

Licensed in the State of Florida
BK 3146762
16797 Broadwater Avenue
Winter Garden, Florida 34787

Your privacy is our utmost concern. We will never sell your personal information. Privacy Policy
©2026 sandrapardohomes.com - all rights reserved. | Site Map