407-990-2746
Menu

181 Daigledog Street, St Cloud, FL

NEXT
PREV
$434,900

($198/sqft)

List Status: Active
181 Daigledog Street
St Cloud, FL 34772


4 beds
2 baths
2199 living sqft
Top Features
  • View: Trees/Woods
  • Subdivision: Southern Pines Unit 3a
  • Built in  2013
  • Single Family Residence
Description
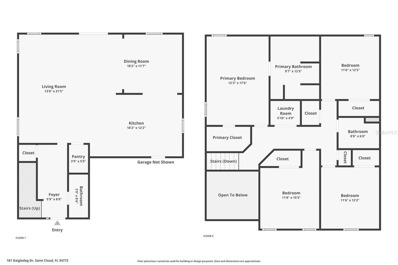
Set at the edge of conservation with no rear neighbors, this well-kept 4-bedroom, 2.5-bath home in Southern Pines delivers the space, privacy, and layout buyers are searching for. From the curb, it makes an immediate impression: a new roof (2023), wide driveway, tidy landscaping, a covered front porch, and classic shutters that give the exterior a polished, finished look. Inside, a bright entry with high ceilings draws your eye up the staircase positioned neatly at the front of the home. Just beyond the foyer, the layout opens into the main living space, where the living room, dining area, and kitchen connect naturally for easy, everyday living. The kitchen serves as the true hub, featuring granite countertops, stainless steel appliances, abundant cabinetry, a center island ideal for meal prep, and a breakfast bar for quick mornings or casual meals. The dining area sits just off the kitchen beneath a statement chandelier, while the living room feels open and airy with excellent natural light. Upstairs, all four bedrooms are grouped together, anchored by a generously sized primary suite with a walk-in closet and a large ensuite with dual sinks, a soaking tub, and a separate shower. A full secondary bath serves the additional bedrooms, with the laundry room conveniently located upstairs as well. Out back is where this home truly stands out. The fully fenced backyard features a patio pad and a wide stretch of grass that backs directly to conservation land, giving you something that’s becoming increasingly rare: privacy. No rear neighbors. No homes behind you. Just open space. It’s the kind of yard that works for everything, from weekend BBQs and pets to a future fire pit or pool. Southern Pines offers neighborhood amenities including a playground, green space, and a dog park, all while keeping you close to shopping plazas, everyday conveniences, and major routes like the Turnpike. Lake Nona is roughly 25 minutes away, making the location both peaceful and practical. Th
Property Details
Additional Information
Additional Lease Restrictions
Buyer shall be responsible for confirming any leasing restrictions.
Additional Parcels YN
false
Alternate Key Folio Num
26-30-23-0669-0001-366.0
Appliances
Dishwasher, Electric Water Heater, Microwave, Range, Refrigerator
Association Fee
550
Association Fee Frequency
Annually
Association Fee Includes
Management, Recreational Facilities
Association Fee Requirement
Required
Association YN
true
Attached Garage YN
true
Available For Lease YN
1
Bathrooms Total Integer
3
Building Area Source
Public Records
Building Area Total
2655
Building Area Total Srch SqM
246.66
Building Area Units
Square Feet
Calculated List Price By Calculated SqFt
197.77
Carport YN
false
Community Features
Deed Restrictions, Dog Park, Playground, Sidewalks, Street Lights
Construction Materials
Block, Concrete, Stucco
Cooling
Central Air
Country
US
Cumulative Days On Market
27
Current Price
434900.00
Direction Faces
Northeast
Elementary School
Michigan Avenue Elem (K 5)
Exterior Features
Lighting, Rain Gutters, Sidewalk, Sliding Doors
Fencing
Fenced, Vinyl
Fireplace YN
false
Flood Zone Code
X
Flood Zone Date
2013-06-18
Flood Zone Panel
12097C0260G
Flooring
Carpet, Luxury Vinyl, Tile
Foundation Details
Slab
Furnished
Unfurnished
Garage Dimensions
20x20
Garage Spaces
2
Garage YN
true
Heating
Central, Electric
High School
St. Cloud High School
Homestead YN
1
Interior Features
Ceiling Fans(s), Eat-in Kitchen, High Ceilings, Living Room/Dining Room Combo, Open Floorplan, PrimaryBedroom Upstairs, Solid Surface Counters, Split Bedroom, Stone Counters, Thermostat, Walk-In Closet(s)
Internet Address Display YN
true
Internet Automated Valuation Display YN
false
Internet Consumer Comment YN
true
Internet Entire Listing Display YN
true
Laundry Features
Electric Dryer Hookup, Inside, Laundry Room, Washer Hookup
Levels
Two
List AOR
Orlando Regional
Living Area Meters
204.29
Living Area Source
Public Records
Living Area Units
Square Feet
Lot Features
City Limits, Landscaped, Sidewalk, Paved
Lot Size Acres
0.16
Lot Size Square Feet
6795
Lot Size Square Meters
631
Middle Or Junior School
St. Cloud Middle (6-8)
Minimum Lease
No Minimum
Modification Timestamp
2026-02-18T23:52:09.024Z
Monthly HOA Amount
45.83
New Construction YN
false
Occupant Type
Owner
Ownership
Fee Simple
Parcel Number
23-26-30-0669-0001-3660
Patio And Porch Features
Front Porch, Patio
Pet Restrictions
Buyer shall be responsible for confirming any pet restrictions.
Pets Allowed
Yes
Pool Private YN
false
Postal Code Plus 4
6863
Previous List Price
447500
Price Change Timestamp
2026-02-18T23:51:27.000Z
Public Survey Range
30
Public Survey Section
23
RATIO Current Price By Calculated SqFt
197.77
Realtor Info
Floor Plan Available, See Attachments, Sign
Road Responsibility
Public Maintained Road
Road Surface Type
Asphalt
Roof
Shingle
Room Count
8
Security Features
Smoke Detector(s)
Senior Community YN
false
Sewer
Public Sewer
Showing Requirements
Sentri Lock Box, Appointment Only, Call Listing Agent 2, ShowingTime
Status Change Timestamp
2026-01-22T22:29:18.000Z
Tax Annual Amount
4
Tax Block
1
Tax Book Number
20-31
Tax Legal Description
SOUTHERN PINES UNIT 3A PB 20 PG 31-36 LOT 366
Tax Lot
366
Tax Year
2025
Total Acreage
0 to less than 1/4
Total Annual Fees
550.00
Total Monthly Fees
45.83
Township
26
Universal Property Id
US-12097-N-232630066900013660-R-N
Unparsed Address
181 DAIGLEDOG ST
Utilities
BB/HS Internet Available, Cable Available, Electricity Connected, Public, Sewer Connected, Water Connected
Vegetation
Mature Landscaping, Trees/Landscaped
Water Source
Public
Waterfront YN
false
Zoning
RES
Neighborhood Map
Popup

Property Photos
Listing Photo
Listing Photo
Listing Photo
Listing Photo
Listing Photo
Listing Photo
Listing Photo
Listing Photo
Listing Photo
Listing Photo
Listing Photo
Listing Photo
Listing Photo
Listing Photo
Listing Photo
Listing Photo
Listing Photo
Listing Photo
Listing Photo
Listing Photo
Listing Photo
Listing Photo
Listing Photo
Listing Photo
Listing Photo
Listing Photo
Listing Photo
Listing Photo
Listing Photo
Listing Photo
Listing Photo
Listing Photo
Listing Photo
Listing Photo
Listing Photo
Listing Photo
Listing Photo
Listing Photo
Listing Photo
Listing Photo
Listing Photo
Listing Photo
Listing Photo
Listing Photo
Listing Photo
Listing Photo
Listing Photo
Listing Photo
Listing Photo
Listing Photo
Listing Photo
Listing Photo
Listing Photo
Listing Photo
Listing Photo
Listing Photo
Listing Photo
Listing Photo
Listing Photo
Listing Photo
Listing Photo
Listing Photo
Listing Photo
Listing Photo
Listing Photo
Listing Photo
Listing Photo
Listing Photo
Listing Photo
Listing Photo
Listing Photo
Listing Photo

MLS #MFRO6375402 Listing courtesy of Homevest Realty provided by Stellar MLS.

Similar Listings

$392,390
5036 Holm Oak Drive
St Cloud
4BR/2BA
| Active
$392,765
583 Windy Willow Way
St Cloud
4BR/2BA
| Active
$393,000
4700 Homestead Trail
St Cloud
4BR/2BA
| Active
$394,990
3028 Lakes Crest Avenue
St Cloud
4BR/2BA
| Active



All listing information is deemed reliable but not guaranteed and should be independently verified through personal inspection by appropriate professionals. Listings displayed on this website may be subject to prior sale or removal from sale; availability of any listing should always be independent verified. Listing information is provided for consumer personal, non-commercial use, solely to identify potential properties for potential purchase; all other use is strictly prohibited and may violate relevant federal and state law. The source of the listing data is as follows: Stellar MLS (updated 3/12/26 8:34 PM) |

Listing Search



Translate Tool

Featured Listings
Orlando Real Estate
$1,050,000
5 BED
3 BATH
Under Construction. AR Homes (Arthur Rutenberg Homes) Abeerdeen II floor plan. Under Constrctuion. Expected completion D... Read More
Venice Real Estate
$869,000
4 BED
3 BATH
You will love the spacious and luxurious yet cozy feel of this well appointed, stately home with large screened lanai, p... Read More
Tampa Real Estate
$875,000
4 BED
3 BATH
Located in North Hyde Park and in Plant/Wilson/Mitchell school district, this beautiful newer (2016) construction reside... Read More
Tampa Real Estate
$1,400,000
4 BED
2 BATH
BACK & BETTER THAN EVER! After taking a brief hiatus this home is turnkey. This property features BRAND-NEW POOL EQUIPME... Read More
St Petersburg Real Estate
$1,499,000
5 BED
4 BATH
Discover exceptional BRAND NEW construction living in the heart of St. Petersburg. Perfectly positioned in Crescent Heig... Read More
Sarasota Real Estate
$910,000
4 BED
3 BATH
Lakefront luxury, effortless living, and a location you’ll love - welcome home! Experience the very best of Sarasota liv... Read More
Winter Garden Real Estate
$1,195,000
5 BED
4 BATH
Welcome to this exceptional five-bedroom, four-bathroom home situated on Lake Star in the highly desirable Horizon West ... Read More
St Petersburg Real Estate
$1,499,000
3 BED
2 BATH
Have you been searching for that perfect waterfront home? Well, I have some good news for you! Your search has finally c... Read More
Orlando Real Estate
$1,069,000
5 BED
4 BATH
NEW PRICE! A spectacular opportunity to secure this amazing newer home at a great value! Luxury awaits inside 1518 Clove... Read More
Dundee Real Estate
$1,360,000
5 BED
4 BATH
One or more photo(s) has been virtually staged. Welcome to your private 5-acre luxury estate, perfectly located in the r... Read More
Contact Sandra Pardo

407-990-2746

Wendy Morris LLC

Licensed in the State of Florida
BK 3146762
16797 Broadwater Avenue
Winter Garden, Florida 34787

Your privacy is our utmost concern. We will never sell your personal information. Privacy Policy
©2026 sandrapardohomes.com - all rights reserved. | Site Map