407-990-2746
Menu

1806 Glenwood Oaks Lane, Deland, FL

NEXT
PREV
$858,000

($266/sqft)

List Status: Active
1806 Glenwood Oaks Lane
Deland, FL 32720


4 beds
3 baths
3220 living sqft
Top Features
  • View: Garden, Trees/Woods
  • Subdivision: Norris Dupont & Gaudry Grant
  • Built in  2017
  • Single Family Residence
Description
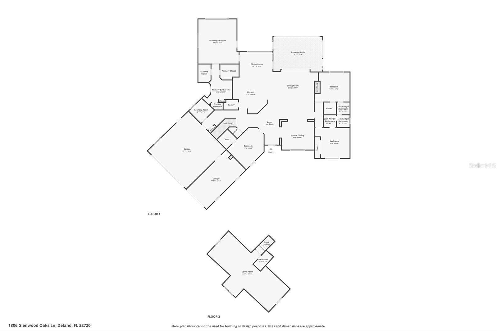
SELLER IS MOTIVATED! Glenwood Oaks Community – Cul de Sac – 2017 Custom Built, Modern Ranch nested on 2.5 Acres. Just come into this 3320 sq ft of fine premium living. This home has 3 vaulted ceilings with crown molding; the flooring is wood-like tile in the kitchen and living areas. Custom wood cabinetry and granite countertops in the bathrooms and in the kitchen, the heart of the house! Crafted plantation shutters throughout. 4 bedrooms including the master suite tucked away for ultimate privacy. 3 additional bedrooms with 2 bathrooms complete this grand property with walk-in closet spaces that provide ample storage. But wait! There is a game room, right above the 3-car garage. The game room has Cumaru flooring (Brazilian Teak - hardwood - not engineered - placed on 3/4" plywood), an Epson projector with surround sound system entertainment. The game room has 16,000 lb. trusses placed 18" apart for load bearing floors for high occupancy. Think game nights! The wrapped around staircase is all wood. As mentioned, the kitchen features custom wood cabinets, pull out drawers, a natural gas range, a walk-in pantry, tile backsplash and under cabinet lighting. The kitchen overlooks the family room with its gas fireplace - with high end stone siding professionally mounted around the fireplace with safety fire alarm! This open floor plan is perfect for entertaining guests! A triple sliding door opens to a screen enclosed Florida room for memorable BBQs or for a dip in the hot tub. No details were overlooked: Natural gas tankless water heater; water softener/purifier; 50-year metal roof, PGT vinyl LE windows. The entire house is a SAFE ROOM!! Constructed with solid poured concrete 3000 PSI w/fiber mesh in slab, interior/exterior block walls and rebar, fiberglass door (full core) and storm windows. Keep your loved ones safe! The newly installed RV shed has a 150-mph structure and is built on concrete piers 52" into the ground (yes, it’s over-engineered!). The RV shed has 2 x 5
Property Details
Additional Information
Additional Lease Restrictions
Please refer to the rules and regulations of the HOA, the City of DeLand and of Volusia County
Additional Parcels YN
false
Additional Rooms
Loft, Media Room
Alternate Key Folio Num
694401000377
Appliances
Dishwasher, Disposal, Ice Maker, Microwave, Range, Refrigerator, Tankless Water Heater, Water Filtration System
Approval Process
Please refer to the rules and regulations of the HOA, the City of DeLand and of Volusia County
Architectural Style
Ranch
Association Email
glenwoodarb@gmail.com
Association Fee
600
Association Fee Frequency
Annually
Association Fee Includes
Common Area Taxes, Maintenance Grounds, Private Road
Association Fee Requirement
Required
Association YN
true
Attached Garage YN
true
Available For Lease YN
1
Bathrooms Total Integer
4
Building Area Source
Public Records
Building Area Total
4724
Building Area Total Srch SqM
438.87
Building Area Units
Square Feet
Calculated List Price By Calculated SqFt
266.46
Carport YN
false
Community Features
Deed Restrictions, Gated Community - No Guard
Construction Materials
Block, Stucco
Cooling
Central Air
Country
US
Cumulative Days On Market
157
Current Price
858000.00
Direction Faces
North
Elementary School
Louise S. McInnis Elem
Exterior Features
Garden, Lighting, Private Mailbox, Rain Gutters, Sliding Doors
Fireplace Features
Family Room, Gas
Fireplace YN
true
Flood Zone Code
X
Flood Zone Date
2014-02-19
Flood Zone Panel
12127C0455H
Flooring
Tile, Wood
Foundation Details
Slab
Furnished
Unfurnished
Garage Dimensions
30x26
Garage Spaces
3
Garage YN
true
Heating
Central, Electric, Natural Gas
High School
T. Dewitt Taylor Middle-High
Home Warranty YN
false
Homestead YN
1
Interior Features
Built-in Features, Ceiling Fans(s), Coffered Ceiling(s), Crown Molding, Eat-in Kitchen, Kitchen/Family Room Combo, Open Floorplan, Primary Bedroom Main Floor, Split Bedroom, Stone Counters, Thermostat, Walk-In Closet(s), Window Treatments
Internet Address Display YN
true
Internet Automated Valuation Display YN
false
Internet Consumer Comment YN
false
Internet Entire Listing Display YN
true
Laundry Features
Laundry Room, Washer Hookup
Levels
Two
List AOR
Orlando Regional
Living Area Meters
299.15
Living Area Source
Public Records
Living Area Units
Square Feet
Lot Features
Cul-De-Sac, Landscaped, Level, Private
Lot Size Acres
2.51
Lot Size Square Feet
109336
Lot Size Square Meters
10158
Middle Or Junior School
T. Dewitt Taylor Middle-High
Minimum Lease
No Minimum
Modification Timestamp
2026-03-07T14:33:09.224Z
Monthly HOA Amount
50.00
New Construction YN
false
Number Of Septics
1
Number Of Wells
1
Occupant Type
Owner
Ownership
Fee Simple
Parcel Number
44-16-29-01-00-0377
Patio And Porch Features
Covered, Patio, Porch, Rear Porch, Screened
Pet Restrictions
Please refer to the rules and regulations of the HOA, the City of DeLand and of Volusia County
Pets Allowed
Yes
Pool Private YN
false
Postal Code Plus 4
6923
Previous List Price
869000
Price Change Timestamp
2026-03-04T20:54:25.000Z
Property Condition
Completed
Property Description
Walk-Up
Public Survey Range
29E
Public Survey Section
44
RATIO Current Price By Calculated SqFt
266.46
Realtor Info
As-Is, See Attachments, Sign
Road Surface Type
Asphalt
Roof
Metal
Room Count
12
Security Features
Fire Alarm, Gated Community, Smoke Detector(s)
Senior Community YN
false
Sewer
Septic Tank
Showing Requirements
Supra Lock Box, 24 Hour Notice, Appointment Only, Call Listing Agent 2
Spa YN
false
Status Change Timestamp
2025-10-01T22:01:38.000Z
Tax Annual Amount
5340.86
Tax Block
00
Tax Book Number
MB12-40
Tax Legal Description
IRREG PARCEL IN E 297.98 FT MEAS ON S/L OF S 270 FT MEAS ON E/L OF LOT 37 NORRIS SUB DUPONT & GAUDRY GRANT MB 12 PG 40 PER OR 5165 PG 2912 PER OR 5314 PGS 0563-0564 PER OR 6079 PG 0657 PER OR 6145 PG 1487
Tax Lot
37
Tax Year
2024
Total Acreage
2 to less than 5
Total Annual Fees
600.00
Total Monthly Fees
50.00
Township
16S
Universal Property Id
US-12127-N-44162901000377-R-N
Unparsed Address
1806 GLENWOOD OAKS LN
Utilities
BB/HS Internet Available, Electricity Connected, Natural Gas Connected, Underground Utilities
Vegetation
Trees/Landscaped
Water Source
Well
Waterfront YN
false
Window Features
Shutters, Storm Window(s)
Zoning
A-4
Neighborhood Map
Popup

Property Photos
Listing Photo
Listing Photo
Listing Photo
Listing Photo
Listing Photo
Listing Photo
Listing Photo
Listing Photo
Listing Photo
Listing Photo
Listing Photo
Listing Photo
Listing Photo
Listing Photo
Listing Photo
Listing Photo
Listing Photo
Listing Photo
Listing Photo
Listing Photo
Listing Photo
Listing Photo
Listing Photo
Listing Photo
Listing Photo
Listing Photo
Listing Photo
Listing Photo
Listing Photo
Listing Photo
Listing Photo
Listing Photo
Listing Photo
Listing Photo
Listing Photo
Listing Photo
Listing Photo
Listing Photo
Listing Photo
Listing Photo
Listing Photo
Listing Photo
Listing Photo
Listing Photo
Listing Photo
Listing Photo
Listing Photo
Listing Photo
Listing Photo
Listing Photo
Listing Photo
Listing Photo
Listing Photo
Listing Photo
Listing Photo
Listing Photo
Listing Photo
Listing Photo
Listing Photo
Listing Photo
Listing Photo
Listing Photo
Listing Photo
Listing Photo
Listing Photo
Listing Photo
Listing Photo
Listing Photo
Listing Photo
Listing Photo
Listing Photo
Listing Photo
Listing Photo
Listing Photo
Listing Photo
Listing Photo
Listing Photo
Listing Photo
Listing Photo
Listing Photo
Listing Photo
Listing Photo
Listing Photo
Listing Photo
Listing Photo
Listing Photo
Listing Photo
Listing Photo
Listing Photo
Listing Photo
Listing Photo
Listing Photo
Listing Photo
Listing Photo
Listing Photo
Listing Photo
Listing Photo
Listing Photo
Listing Photo
Listing Photo
Listing Photo
Listing Photo
Listing Photo
Listing Photo
Listing Photo
Listing Photo
Listing Photo
Listing Photo
Listing Photo
Listing Photo
Listing Photo
Listing Photo
Listing Photo
Listing Photo
Listing Photo
Listing Photo
Listing Photo
Listing Photo
Listing Photo
Listing Photo
Listing Photo
Listing Photo
Listing Photo
Listing Photo
Listing Photo
Listing Photo
Listing Photo
Listing Photo
Listing Photo
Listing Photo
Listing Photo
Listing Photo
Listing Photo
Listing Photo
Listing Photo
Listing Photo
Listing Photo
Listing Photo

MLS #MFRV4945177 Listing courtesy of Lively Real Estate provided by Stellar MLS.

Similar Listings

$793,990
1575 Weaver Oak Way
Deland
4BR/3BA
| Active
$849,000
1909 S Farm Road
Deland
4BR/3BA
| Active



All listing information is deemed reliable but not guaranteed and should be independently verified through personal inspection by appropriate professionals. Listings displayed on this website may be subject to prior sale or removal from sale; availability of any listing should always be independent verified. Listing information is provided for consumer personal, non-commercial use, solely to identify potential properties for potential purchase; all other use is strictly prohibited and may violate relevant federal and state law. The source of the listing data is as follows: Stellar MLS (updated 3/7/26 11:53 AM) |

Listing Search



Translate Tool

Featured Listings
St Petersburg Real Estate
$820,000
4 BED
3 BATH
One or more photo(s) has been virtually staged. Discover this beautifully renovated and thoughtfully updated pool reside... Read More
Windermere Real Estate
$1,400,000
4 BED
4 BATH
Stunning home in the Reserve at Lake Butler Sound-Windermere. This luxury living at its finest located in the prestigiou... Read More
Cape Coral Real Estate
$920,000
4 BED
4 BATH
mAJOR RICE REDUCTION! Welcome to your luxury waterfront oasis in Cape Coral! This beautifully Nestled in sunny SW Cape C... Read More
Winter Garden Real Estate
$875,000
4 BED
4 BATH
There is a specific frequency to life in Oakland Park that exists nowhere else in Central Florida. It is a rare, rhythmi... Read More
Bradenton Real Estate
$875,000
3 BED
2 BATH
Welcome to resort-style living at Lakewood National Golf Club, a gated community offering two world-class championship g... Read More
Pembroke Pines Real Estate
$880,000
4 BED
2 BATH
Beautiful 4-bedroom, 3-bathroom home located in a desirable gated community! This spacious residence features a private ... Read More
University Park Real Estate
$1,450,000
3 BED
3 BATH
This beautifully updated home in the warm and friendly Warwick Gardens subdivision, is situated on a very private lot. I... Read More
Miami Lakes Real Estate
$1,200,000
5 BED
3 BATH
Exquisite Miami Lakes Estate | 16613 NW 77th Path Experience the pinnacle of South Florida living in this stunning 5-bed... Read More
Reunion Real Estate
$925,000
6 BED
4 BATH
Luxurious 6 Bedroom 4 Bath TURNKEY Vacation Retreat located in the highly sought after Community of Homestead at Reunion... Read More
Clermont Real Estate
$840,000
4 BED
3 BATH
Welcome to this beautiful home located in the highly sought-after Highland Ranch community in Clermont, where comfort, m... Read More
Contact Sandra Pardo

407-990-2746

Wendy Morris LLC

Licensed in the State of Florida
BK 3146762
16797 Broadwater Avenue
Winter Garden, Florida 34787

Your privacy is our utmost concern. We will never sell your personal information. Privacy Policy
©2026 sandrapardohomes.com - all rights reserved. | Site Map