407-990-2746
Menu

17978 Broadleaf Loop, Venice, FL

NEXT
PREV
$398,079

($234/sqft)

List Status: Active
17978 Broadleaf Loop
Venice, FL 34293


3 beds
2 baths
1702 living sqft
Top Features
  • View: Trees/Woods
  • Subdivision: Palmera At Wellen Park
  • Built in  2025
  • Townhouse
Description
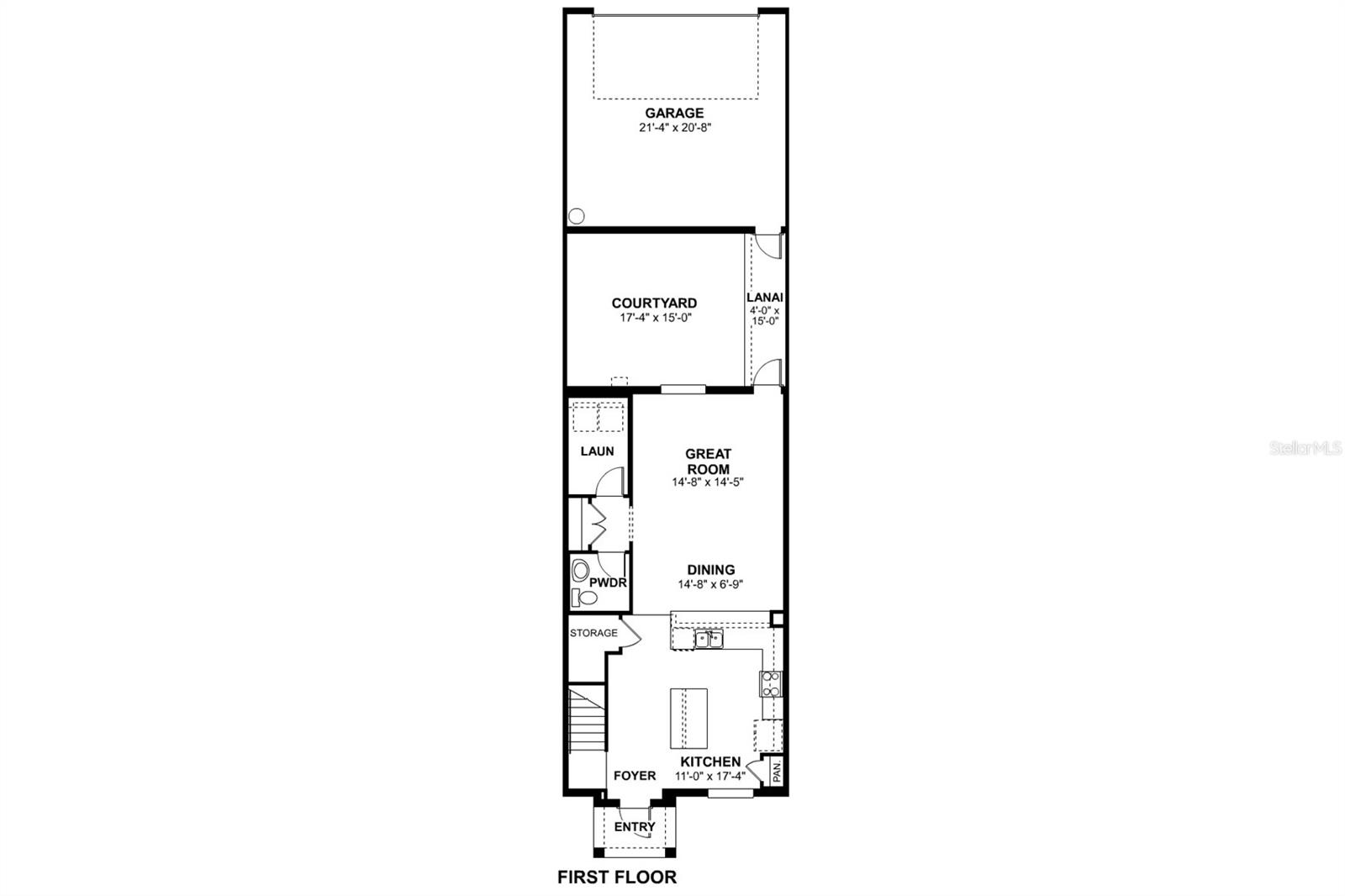
Under Construction. PRICED TO SELL! Welcome home to the Sabal model, the latest Townhome built by M/I Homes. This beautiful home features 3 bedrooms, 2 1/2 bathrooms, an open concept great-room and kitchen, and a 2-car garage. You'll enjoy the large owner’s suite with walk-in closet as one of the highlights of this home. As you walk into the main living area, a spacious kitchen greets you with a large center island and additional counter space with quartz counter tops. The dining area provides a casual dining space, and a spacious great room is perfect for entertaining. Palmera at Wellen Park offers a wide array of resort-style amenities anchored by a stunning, coastal-inspired clubhouse including Golf Simulator, Fitness Center, Pickleball, Resort-Style Pool & Lap Lanes, Splash Pad, Playground, Fireside Lounge, Clubhouse, Gathering Lawn, and On-Site Dining. Visit us today! *Photos show pictures of a previous model, not all features are the same.
Property Details
Additional Information
Additional Lease Restrictions
REFER TO HOA DOCS FOR RESTRICTIONS
Additional Parcels YN
false
Additional Rooms
Inside Utility
Appliances
Dishwasher, Microwave, Range
Approval Process
CONTACT HOA
Association Amenities
Clubhouse, Fitness Center, Pickleball Court(s), Playground, Pool
Association Approval Required YN
1
Association Email
hoageneral@rizzetta.com
Association Fee
380
Association Fee Frequency
Monthly
Association Fee Includes
Pool, Maintenance Grounds, Management, Sewer, Trash, Water
Association Fee Requirement
Required
Association YN
true
Attached Garage YN
true
Available For Lease YN
1
Bathrooms Total Integer
3
Builder License Number
CGC036287
Builder Model
SABAL-A
Builder Name
M/I HOMES OF FT MYERS/ NAPLES
Building Area Source
Builder
Building Area Total
2242
Building Area Total Srch SqM
208.29
Building Area Units
Square Feet
CDDYN
1
Calculated List Price By Calculated SqFt
233.89
Carport YN
false
Community Features
Clubhouse, Community Mailbox, Fitness Center, Playground, Pool, Restaurant
Construction Materials
Block, Stucco
Cooling
Central Air
Country
US
Cumulative Days On Market
31
Current Price
398079.00
Direction Faces
West
Fireplace YN
false
Flood Zone Code
AE
Flooring
Carpet, Laminate, Tile, Wood
Foundation Details
Slab
Garage Spaces
2
Garage YN
true
Heating
Electric
Interior Features
High Ceilings, Open Floorplan, PrimaryBedroom Upstairs, Stone Counters, Walk-In Closet(s)
Internet Address Display YN
true
Internet Automated Valuation Display YN
true
Internet Consumer Comment YN
true
Internet Entire Listing Display YN
true
Laundry Features
Inside, Laundry Room
Lease Restrictions YN
1
Levels
Two
List AOR
Other
Living Area Meters
158.12
Living Area Source
Builder
Living Area Units
Square Feet
Lot Size Acres
0.07
Lot Size Square Feet
2892
Lot Size Square Meters
269
Minimum Lease
1-2 Years
Modification Timestamp
2025-10-26T22:06:12.662Z
Monthly HOA Amount
380.00
New Construction YN
true
Num Of Own Years Prior To Lease
1
Occupant Type
Vacant
Other Equipment
Irrigation Equipment
Ownership
Fee Simple
Parcel Number
0805070114
Permit Number
BRNEW-25-00434
Pet Restrictions
REFER TO HOA DOCS FOR RESTRICTIONS
Pets Allowed
Yes
Pool Private YN
false
Previous List Price
394088
Price Change Timestamp
2025-10-01T19:39:45.000Z
Projected Completion Date
2025-10-15T00:00:00.000
Property Attached YN
true
Property Condition
Under Construction
RATIO Current Price By Calculated SqFt
233.89
Road Surface Type
Asphalt
Roof
Tile
Room Count
3
SW Subdiv Community Name
Not Applicable
Senior Community YN
false
Sewer
Public Sewer
Showing Requirements
Other, ShowingTime
Spa YN
false
Status Change Timestamp
2025-09-25T16:22:34.000Z
Stories Total
2
Tax Annual Amount
500
Tax Legal Description
LOT 14, PALMERA TOWNHOMES AT WELLEN PARK, PB 59 PG
Tax Lot
14
Tax Other Annual Assessment Amount
2510
Tax Year
2024
Total Acreage
0 to less than 1/4
Total Annual Fees
4560.00
Total Monthly Fees
380.00
Universal Property Id
US-12115-N-0805070114-R-N
Unparsed Address
17978 BROADLEAF LOOP
Utilities
Cable Available, Electricity Available, Electricity Connected, Sewer Available, Sewer Connected, Water Available, Water Connected
Water Source
Public
Waterfront YN
false
Window Features
Storm Window(s)
Years Of Owner Prior To Leasing Req YN
1
Neighborhood Map
Popup

Property Photos
Listing Photo
Listing Photo
Listing Photo
Listing Photo
Listing Photo
Listing Photo
Listing Photo
Listing Photo
Listing Photo
Listing Photo
Listing Photo
Listing Photo
Listing Photo
Listing Photo
Listing Photo
Listing Photo
Listing Photo
Listing Photo
Listing Photo
Listing Photo
Listing Photo
Listing Photo
Listing Photo
Listing Photo
Listing Photo
Listing Photo
Listing Photo
Listing Photo
Listing Photo
Listing Photo
Listing Photo
Listing Photo
Listing Photo
Listing Photo
Listing Photo
Listing Photo

MLS #MFRR4909955 Listing courtesy of M/i Homes Swfl, Llc provided by Stellar MLS.

Similar Listings

$359,000
503 Clubside Circle
Venice
3BR/2BA
| Active
$359,000
707 E Baffin Drive
Venice
3BR/2BA
| Active
$359,000
5264 Kent Road
Venice
3BR/2BA
| Active
$359,900
10063 Crooked Creek Drive
Venice
3BR/2BA
| Active



All listing information is deemed reliable but not guaranteed and should be independently verified through personal inspection by appropriate professionals. Listings displayed on this website may be subject to prior sale or removal from sale; availability of any listing should always be independent verified. Listing information is provided for consumer personal, non-commercial use, solely to identify potential properties for potential purchase; all other use is strictly prohibited and may violate relevant federal and state law. The source of the listing data is as follows: Stellar MLS (updated 10/28/25 4:55 PM) |

Listing Search



Translate Tool

Featured Listings
Tampa Real Estate
$960,000
5 BED
4 BATH
Ready to sell! Welcome home in the heart of North Bon Air... Built in 2018, this 5-bedroom, 4-bath Milana residence enjo... Read More
Tampa Real Estate
$899,000
3 BED
2 BATH
Prime South Tampa location in Sunset Park - live for now and eventually build Your dream home! Here’s your chance to sec... Read More
Placida Real Estate
$999,999
3 BED
2 BATH
Experience the unmatched allure of Palm Island, one of Florida’s most secluded and luxurious coastal escapes. This seven... Read More
St Petersburg Real Estate
$1,179,000
2 BED
2 BATH
This beautiful top floor (6th floor) unit offers an amazing view of the Gulf of Mexico. The“PENTHOUSE LEVEL” elevation c... Read More
Treasure Island Real Estate
$899,900
2 BED
2 BATH
Under contract-accepting backup offers. This is Treasure Island’s most coveted gated waterfront community. Perfectly pos... Read More
Parrish Real Estate
$1,100,000
4 BED
3 BATH
Cul-de-sac 1-acre homesite with a preserve backdrop, full guest house plus salt water pool/spa with outdoor kitchen & Go... Read More
Sarasota Real Estate
$1,499,000
2 BED
2 BATH
Under contract-accepting backup offers. Prepare to be captivated by this absolutely stunning,12th-floor residence at Bay... Read More
Lake Mary Real Estate
$950,000
4 BED
4 BATH
Discover unparalleled sophistication in this exquisite single-family estate, nestled within one of the area’s most exclu... Read More
St Pete Beach Real Estate
$900,000
2 BED
2 BATH
PREMIER BEACHFRONT LUXURY LIVING AT BEAU MONDE OFFERING A 2ND FLOOR CONDO FEATURING 2 LARGE BEDROOMS, PLUS A DEN/SUN ROO... Read More
Sarasota Real Estate
$1,129,000
4 BED
3 BATH
One or more photo(s) has been virtually staged. Bold, modern, and undeniably chic, this brand-new 2025 custom Sarasota p... Read More
Contact Sandra Pardo

407-990-2746

Wendy Morris LLC

Licensed in the State of Florida
BK 3146762
16797 Broadwater Avenue
Winter Garden, Florida 34787

Your privacy is our utmost concern. We will never sell your personal information. Privacy Policy
©2026 sandrapardohomes.com - all rights reserved. | Site Map