407-990-2746
Menu

17960 Gulf Boulevard Unit: Unit: 103, Redington Shores, FL

NEXT
PREV
$588,000

($475/sqft)

List Status: Pending
17960 Gulf Boulevard
Redington Shores, FL 33708


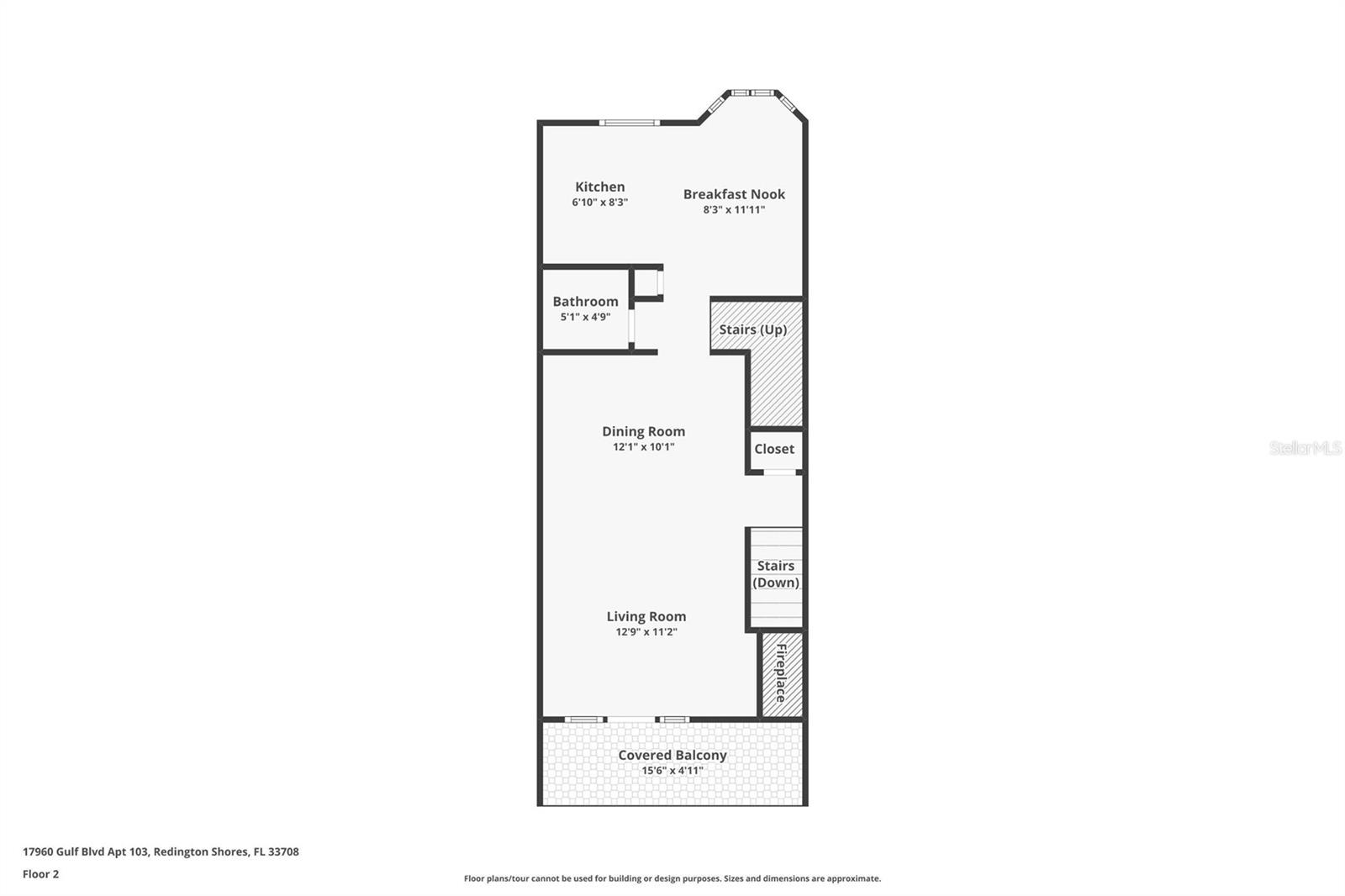
2 beds
2 baths
1237 living sqft
Top Features
  • Frontage: Gulf/Ocean
  • Subdivision: Sunset Reef
  • Built in  1989
  • Townhouse
Description
Under contract-accepting backup offers. Experience the ultimate Florida lifestyle in this stunning beachfront townhome at Sunset Reef in Redington Shores. With as little as 5% down payment, you can own this FULLY FURNISHED 2-bedroom, 2.5-bathroom oasis, perfect for vacations, full-time living, or as a lucrative investment (30-day minimum rentals). Inside, enjoy recent UPGRADES including PORCELAIN TILE FLOORS, QUARTZ COUNTERTOPS, REMODELED BATHROOMS, NEW APPLIANCES, and CUSTOM PLANTATION SHUTTERS. And the spacious primary suite boasts an UPGRADED ENSUITE BATH all just steps from beach living. The attached garage provides ample space for beach gear and more. ROOF-2024, refrigerator and stove 2024 with TRANSFERABLE WARRANTIES, HOT WATER HEATER-2023. Outside, relax in the year-round heated pool or witness breathtaking sunsets from the beach or community gathering area. Enjoy easy access to John's Pass, boat ramps, restaurants, shops, nightlife, and water sports. Just 30-45 minutes from downtown St. Pete and Tampa International Airport. This pet-friendly community (1 pet up to 20 lbs) offers assigned and guest parking, plus a one-car garage. HOA Fee Includes Building Insurance, Flood Insurance, Cable TV, Internet, Heated Community Pool, Escrow Reserves Fund, Maintenance Exterior, Maintenance Grounds, Pool Maintenance, Sewer, Trash & Water. Don't miss this opportunity to live the Florida dream in Redington Shores. Contact us today to schedule a viewing!
Property Details
Additional Information
Additional Lease Restrictions
Confirm with HOA
Additional Parcels YN
false
Alternate Key Folio Num
313015881520011030
Appliances
Dishwasher, Disposal, Dryer, Microwave, Range, Refrigerator, Washer
Approval Process
Confirm with HOA
Association Approval Required YN
1
Association Email
greed@ameritechmail.com
Association Fee
825
Association Fee Frequency
Monthly
Association Fee Includes
Cable TV, Pool, Insurance, Internet, Maintenance Structure, Maintenance Grounds, Sewer, Trash, Water
Association Fee Requirement
Required
Association YN
true
Attached Garage YN
true
Available For Lease YN
1
Bathrooms Total Integer
3
Building Area Source
Public Records
Building Area Total
1237
Building Area Total Srch SqM
114.92
Building Area Units
Square Feet
Calculated List Price By Calculated SqFt
475.34
Carport YN
false
Community Features
Pool
Construction Materials
Block, Frame
Contract Status
Inspections
Cooling
Central Air
Country
US
Cumulative Days On Market
127
Current Price
588000.00
Direction Faces
North
Exist Lease Tenant YN
1
Expected Closing Date
2026-03-06T00:00:00.000
Exterior Features
Balcony, Lighting, Sidewalk
Fireplace Features
Wood Burning
Fireplace YN
true
Flood Zone Code
AE
Flooring
Carpet, Ceramic Tile
Foundation Details
Slab
Furnished
Furnished
Garage Spaces
1
Garage YN
true
Heating
Central
Interior Features
Ceiling Fans(s), Eat-in Kitchen, Living Room/Dining Room Combo, Open Floorplan, PrimaryBedroom Upstairs, Solid Surface Counters, Split Bedroom, Vaulted Ceiling(s), Window Treatments
Internet Address Display YN
true
Internet Automated Valuation Display YN
false
Internet Consumer Comment YN
false
Internet Entire Listing Display YN
true
Laundry Features
Inside, Laundry Closet
Lease Restrictions YN
1
Levels
Three Or More
List AOR
Suncoast Tampa
Living Area Meters
114.92
Living Area Source
Public Records
Living Area Units
Square Feet
Lot Size Acres
0.02
Lot Size Square Feet
680
Lot Size Square Meters
63
Minimum Lease
1 Month
Modification Timestamp
2026-01-14T17:52:09.779Z
Month To Month Or Weekly YN
1
Monthly HOA Amount
825.00
New Construction YN
false
Occupant Type
Tenant
Ownership
Fee Simple
Parcel Number
31-30-15-88152-001-1030
Pets Allowed
Cats OK, Dogs OK
Pool Private YN
false
Postal Code Plus 4
1140
Previous List Price
598000
Price Change Timestamp
2025-09-25T13:51:12.000Z
Public Survey Range
15
Public Survey Section
31
Purchase Contract Date
2026-01-08
RATIO Current Price By Calculated SqFt
475.34
Road Surface Type
Asphalt, Paved
Roof
Shingle
Room Count
6
Senior Community YN
false
Sewer
Public Sewer
Showing Requirements
Supra Lock Box
Status Change Timestamp
2026-01-09T03:02:54.000Z
Stories Total
3
Tax Annual Amount
7382.79
Tax Block
0000
Tax Book Number
103-45
Tax Legal Description
SUNSET REEF PARCEL 1, LOT 103
Tax Lot
103
Tax Year
2024
Total Acreage
0 to less than 1/4
Total Annual Fees
9900.00
Total Monthly Fees
825.00
Township
30
Universal Property Id
US-12103-N-313015881520011030-S-103
Unparsed Address
17960 GULF BLVD #103
Utilities
Electricity Connected
Water Access
Gulf/Ocean
Water Access YN
1
Water Extras
Seawall - Other
Water Extras YN
1
Water Source
Public
Water View
Gulf/Ocean - Partial
Water View YN
1
Waterfront YN
true
Window Features
Skylight(s)
Neighborhood Map
Popup

Property Photos
Listing Photo
Listing Photo
Listing Photo
Listing Photo
Listing Photo
Listing Photo
Listing Photo
Listing Photo
Listing Photo
Listing Photo
Listing Photo
Listing Photo
Listing Photo
Listing Photo
Listing Photo
Listing Photo
Listing Photo
Listing Photo
Listing Photo
Listing Photo
Listing Photo
Listing Photo
Listing Photo
Listing Photo
Listing Photo
Listing Photo
Listing Photo
Listing Photo
Listing Photo
Listing Photo
Listing Photo
Listing Photo
Listing Photo
Listing Photo
Listing Photo
Listing Photo
Listing Photo
Listing Photo
Listing Photo
Listing Photo
Listing Photo
Listing Photo
Listing Photo
Listing Photo
Listing Photo
Listing Photo
Listing Photo
Listing Photo
Listing Photo
Listing Photo
Listing Photo
Listing Photo
Listing Photo
Listing Photo
Listing Photo
Listing Photo
Listing Photo
Listing Photo
Listing Photo
Listing Photo
Listing Photo
Listing Photo
Listing Photo
Listing Photo
Listing Photo
Listing Photo
Listing Photo
Listing Photo
Listing Photo
Listing Photo
Listing Photo
Listing Photo
Listing Photo
Listing Photo
Listing Photo
Listing Photo
Listing Photo
Listing Photo
Listing Photo
Listing Photo
Listing Photo
Listing Photo
Listing Photo
Listing Photo
Listing Photo
Listing Photo
Listing Photo
Listing Photo
Listing Photo
Listing Photo
Listing Photo
Listing Photo
Listing Photo
Listing Photo
Listing Photo
Listing Photo
Listing Photo
Listing Photo
Listing Photo
Listing Photo
Listing Photo
Listing Photo
Listing Photo
Listing Photo
Listing Photo
Listing Photo
Listing Photo
Listing Photo
Listing Photo
Listing Photo
Listing Photo
Listing Photo
Listing Photo
Listing Photo
Listing Photo
Listing Photo
Listing Photo
Listing Photo
Listing Photo
Listing Photo
Listing Photo
Listing Photo
Listing Photo
Listing Photo
Listing Photo
Listing Photo
Listing Photo
Listing Photo

MLS #MFRTB8423164 Listing courtesy of Charles Rutenberg Realty Inc provided by Stellar MLS.

Similar Listings

$569,000
17920 Gulf Boulevard
Redington Shores
2BR/2BA
| Active
$599,000
17580 Gulf Boulevard
Redington Shores
2BR/2BA
| Active
$599,000
17400 Gulf Boulevard
Redington Shores
2BR/2BA
| Active
$619,900
17960 Gulf Boulevard
Redington Shores
2BR/2BA
| Active



All listing information is deemed reliable but not guaranteed and should be independently verified through personal inspection by appropriate professionals. Listings displayed on this website may be subject to prior sale or removal from sale; availability of any listing should always be independent verified. Listing information is provided for consumer personal, non-commercial use, solely to identify potential properties for potential purchase; all other use is strictly prohibited and may violate relevant federal and state law. The source of the listing data is as follows: Stellar MLS (updated 2/10/26 8:59 AM) |

Listing Search



Translate Tool

Featured Listings
New Smyrna Beach Real Estate
$1,100,000
4 BED
4 BATH
Under contract-accepting backup offers. Privately set on 2.77 acres minutes from New Smyrna Beach, this coastal-modern e... Read More
Orlando Real Estate
$1,350,000
5 BED
4 BATH
Under Construction. You’ll love living in the heart of Downtown Orlando with this sensational new home from Central Livi... Read More
Lutz Real Estate
$1,299,900
3 BED
3 BATH
Nestled in the highly desirable Odessa area, this farm pool house sits on two parcels totaling 5.77 acres, complete with... Read More
Tampa Real Estate
$1,100,000
3 BED
2 BATH
Urban living meets resort-style island life at 904 Harbour Bay Drive, your new address on Harbour Island. This home deli... Read More
Davenport Real Estate
$1,109,000
14 BED
11 BATH
One or more photo(s) has been virtually staged. PRICE REDUCED! Step into fully furnished and professionally decorated re... Read More
Port Charlotte Real Estate
$1,200,000
4 BED
3 BATH
Under Construction. Discover the epitome of elegant living in this stunning modern home nestled within a prestigious dee... Read More
Venice Real Estate
$1,001,990
3 BED
3 BATH
Step into this light-filled Sanibel 2, where elegant design meets everyday comfort. Wood-look tile flooring flows seamle... Read More
Apollo Beach Real Estate
$1,215,000
4 BED
4 BATH
One or more photo(s) has been virtually staged. $5,000 PRICE REDUCTION EACH WEEK UNTIL SOLD. Seller will reduce price we... Read More
Sarasota Real Estate
$1,195,000
3 BED
3 BATH
Why wait for a new build when the craftsmanship, upgrades, and elegance have already been completed? This gorgeous home ... Read More
Ponce Inlet Real Estate
$999,000
5 BED
3 BATH
COASTAL ELEGANCE MEETS MODERN LUXURY!! THIS EXQUISITELY UPDATED FIVE BEDROOM, THREE BATHROOM POOL HOME IS LOCATED ON AN ... Read More
Contact Sandra Pardo

407-990-2746

Wendy Morris LLC

Licensed in the State of Florida
BK 3146762
16797 Broadwater Avenue
Winter Garden, Florida 34787

Your privacy is our utmost concern. We will never sell your personal information. Privacy Policy
©2026 sandrapardohomes.com - all rights reserved. | Site Map