407-990-2746
Menu

177 Valencia Lakes Drive, Venice, FL

NEXT
PREV
$468,000

($238/sqft)

List Status: Active
177 Valencia Lakes Drive
Venice, FL 34292


3 beds
3 baths
1970 living sqft
Top Features
  • View: Park/Greenbelt, Trees/Woods
  • Subdivision: Valencia Lakes
  • Built in  2006
  • Single Family Residence
Description
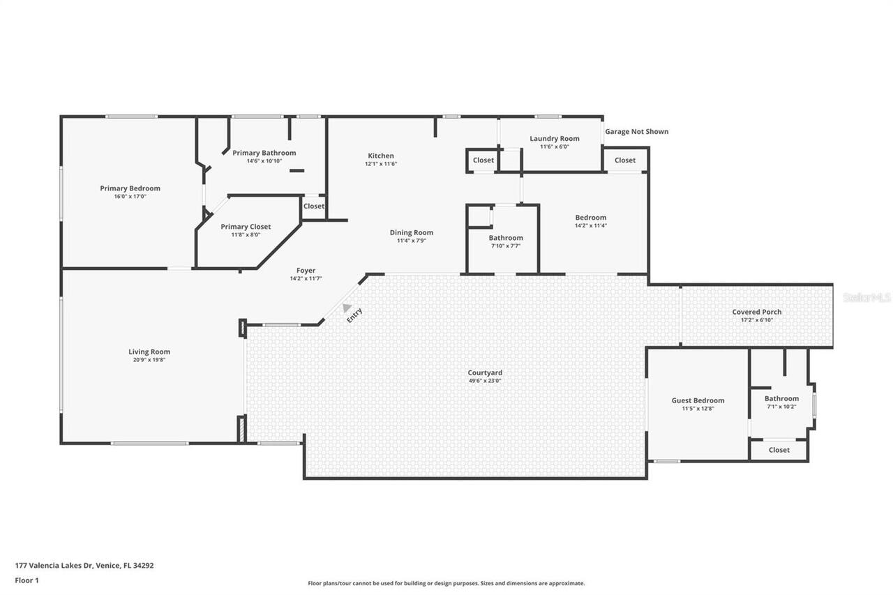
Stunning 3-bedroom, 3-bathroom single-family home on a quiet cul-de-sac in beautiful Venice, FL! With 1,970 sq. ft. of bright, open living space, this home features high ceilings, sliding glass doors & transom windows that fill every room with natural light. The gourmet kitchen boasts Taj Mahal quartzite countertops, complemented by undercabinet lighting that showcases the stone’s natural veining and elegance. Brand-new large plank 12x72 porcelain tile flows throughout the home, creating a sleek, warm & modern look. Step outside to your private pool courtyard with screen enclosure and covered patio, perfect for entertaining or relaxing. What type of private poolside oasis would you create!? A one bedroom & bathroom Casita has a private entrance directly to the pool area, ideal for flexible private space. The home backs to maintained open space, offering a serene and open backdrop with beautiful sunset views. Enjoy the best of Venice living — just a straight 3 miles down E Venice Ave. to vibrant downtown Venice, featuring restaurants, boutique shopping, and year-round community events, 4 miles to beautiful Venice beach & easy freeway access only 1.9 miles. No CDD fees and an HOA with recently reduced, already low dues add extra value. This home effortlessly combines modern style, luxury finishes, and the quintessential Florida lifestyle in a highly desirable location. Your private oasis awaits...
Property Details
Additional Information
Additional Lease Restrictions
Contact HOA
Additional Parcels YN
false
Alternate Key Folio Num
0413120018
Appliances
Dishwasher, Disposal, Dryer, Electric Water Heater, Exhaust Fan, Microwave, Range, Washer
Approval Process
Contact HOA
Architectural Style
Ranch
Association Amenities
Pool
Association Fee
99
Association Fee Frequency
Monthly
Association Fee Includes
Pool, Escrow Reserves Fund, Management, Private Road
Association Fee Requirement
Required
Association YN
true
Attached Garage YN
false
Available For Lease YN
1
Bathrooms Total Integer
3
Building Area Source
Public Records
Building Area Total
2604
Building Area Total Srch SqM
241.92
Building Area Units
Square Feet
Calculated List Price By Calculated SqFt
237.56
Carport YN
false
Community Features
Deed Restrictions, Street Lights
Construction Materials
Block, Stucco
Cooling
Central Air
Country
US
Cumulative Days On Market
57
Current Price
468000.00
Direction Faces
Northeast
Exterior Features
Courtyard, French Doors, Lighting, Private Yard, Rain Gutters, Sliding Doors
Fireplace YN
false
Flood Zone Code
X
Flood Zone Date
2024-03-27
Flood Zone Panel
12115C0332G
Flooring
Tile
Foundation Details
Slab
Furnished
Unfurnished
Garage Spaces
2
Garage YN
true
Heating
Central
Interior Features
Cathedral Ceiling(s), Ceiling Fans(s), Eat-in Kitchen, High Ceilings, Open Floorplan, Thermostat, Vaulted Ceiling(s), Walk-In Closet(s)
Internet Address Display YN
true
Internet Automated Valuation Display YN
true
Internet Consumer Comment YN
false
Internet Entire Listing Display YN
true
Laundry Features
Corridor Access, Electric Dryer Hookup, Inside, Washer Hookup
Lease Restrictions YN
1
Levels
One
List AOR
Other
Living Area Meters
183.02
Living Area Source
Public Records
Living Area Units
Square Feet
Lot Features
Cul-De-Sac, Landscaped, Level
Lot Size Acres
0.16
Lot Size Square Feet
6875
Lot Size Square Meters
639
Minimum Lease
3 Months
Modification Timestamp
2026-03-13T15:51:09.276Z
Monthly HOA Amount
99.00
New Construction YN
false
Num Times per Year
2
Occupant Type
Vacant
Other Equipment
Private Yard
Ownership
Fee Simple
Parcel Number
0413120018
Patio And Porch Features
Covered, Enclosed, Patio, Screened
Pets Allowed
Yes
Pool Private YN
true
Postal Code Plus 4
7401
Previous List Price
474900
Price Change Timestamp
2026-03-13T15:50:44.000Z
Public Survey Range
19
Public Survey Section
10
RATIO Current Price By Calculated SqFt
237.56
Road Surface Type
Paved
Roof
Tile
Room Count
3
SW Subdiv Community Name
Valencia Lakes
Senior Community YN
false
Sewer
Public Sewer
Showing Requirements
Combination Lock Box, Go Direct, See Remarks, ShowingTime
Status Change Timestamp
2026-01-16T00:13:53.000Z
Tax Annual Amount
3649
Tax Legal Description
LOT 20, VALENCIA LAKES
Tax Lot
20
Tax Year
2025
Total Acreage
0 to less than 1/4
Total Annual Fees
1188.00
Total Monthly Fees
99.00
Township
39
Universal Property Id
US-12115-N-0413120018-R-N
Unparsed Address
177 VALENCIA LAKES DR
Utilities
BB/HS Internet Available, Cable Available, Electricity Connected, Public, Sewer Connected, Sprinkler Well, Underground Utilities, Water Connected
Water Source
Public, See Remarks
Waterfront YN
false
Zoning
RMF1
Neighborhood Map
Popup

Property Photos
Listing Photo
Listing Photo
Listing Photo
Listing Photo
Listing Photo
Listing Photo
Listing Photo
Listing Photo
Listing Photo
Listing Photo
Listing Photo
Listing Photo
Listing Photo
Listing Photo
Listing Photo
Listing Photo
Listing Photo
Listing Photo
Listing Photo
Listing Photo
Listing Photo
Listing Photo
Listing Photo
Listing Photo
Listing Photo
Listing Photo
Listing Photo
Listing Photo
Listing Photo
Listing Photo
Listing Photo
Listing Photo
Listing Photo
Listing Photo
Listing Photo
Listing Photo
Listing Photo
Listing Photo
Listing Photo
Listing Photo
Listing Photo
Listing Photo
Listing Photo
Listing Photo
Listing Photo
Listing Photo
Listing Photo
Listing Photo
Listing Photo
Listing Photo
Listing Photo
Listing Photo
Listing Photo
Listing Photo
Listing Photo
Listing Photo
Listing Photo
Listing Photo
Listing Photo
Listing Photo
Listing Photo
Listing Photo
Listing Photo
Listing Photo
Listing Photo
Listing Photo
Listing Photo
Listing Photo
Listing Photo
Listing Photo
Listing Photo
Listing Photo

MLS #MFRR4910552 Listing courtesy of Jeff Allen Reis provided by Stellar MLS.

Similar Listings

$429,800
1157 Duquesne Rd.
Venice
3BR/3BA
| Active
$449,900
19393 Cruise Drive
Venice
3BR/3BA
| Active
$462,500
1830 Killdeer Court
Venice
3BR/3BA
| Pending
$470,000
5864 Viola Road
Venice
3BR/3BA
| Active



All listing information is deemed reliable but not guaranteed and should be independently verified through personal inspection by appropriate professionals. Listings displayed on this website may be subject to prior sale or removal from sale; availability of any listing should always be independent verified. Listing information is provided for consumer personal, non-commercial use, solely to identify potential properties for potential purchase; all other use is strictly prohibited and may violate relevant federal and state law. The source of the listing data is as follows: Stellar MLS (updated 3/19/26 12:28 AM) |

Listing Search



Translate Tool

Featured Listings
Indian Shores Real Estate
$1,250,000
3 BED
3 BATH
Just steps from the powdery, sugar-white sands of Indian Shores Beach, this extraordinary 3-bedroom, 3-bath townhome is ... Read More
New Smyrna Beach Real Estate
$1,200,000
3 BED
3 BATH
Discover the potential of this rare and expansive Turnbull Bay, BAYFRONT property in New Smyrna Beach, offering breathta... Read More
Orlando Real Estate
$855,000
4 BED
3 BATH
The Last Property You Will Need to See. Beautifully renovated 4-bedroom, 3-bath pool home located in the highly desirabl... Read More
New Port Richey Real Estate
$1,095,000
3 BED
3 BATH
Florida luxury waterfront living at its finest! Most water frontage in the neighborhood at 122ft. This renovated home fe... Read More
Bartow Real Estate
$849,900
3 BED
2 BATH
Country with Class or County Chic—either way, this custom 2017 home delivers both style and serenity on 5.43 acres just ... Read More
Orlando Real Estate
$849,900
5 BED
3 BATH
Immaculate golf-front single-family home located in the guard-gated Eagle Creek community in Lake Nona. Built in 2019, t... Read More
Tampa Real Estate
$1,200,000
3 BED
3 BATH
One or more photo(s) has been virtually staged. BEAUTIFULLY RENOVATED Monte Carlo Towers BALCONY residence offering 2,00... Read More
Orlando Real Estate
$809,999
4 BED
3 BATH
Welcome to this beautifully maintained 4-bedroom, 3.5-bath home with a bonus office/flex space located in the highly sou... Read More
Palm Harbor Real Estate
$810,000
5 BED
3 BATH
Privately tucked along a quiet road in one of Palm Harbor’s most convenient locations, this beautifully updated 5-bedroo... Read More
Winter Garden Real Estate
$839,000
5 BED
3 BATH
Located in a Golf course community. Extensively upgraded 5-bedroom, 3-bath home with one office and approximately 3,238 ... Read More
Contact Sandra Pardo

407-990-2746

Wendy Morris LLC

Licensed in the State of Florida
BK 3146762
16797 Broadwater Avenue
Winter Garden, Florida 34787

Your privacy is our utmost concern. We will never sell your personal information. Privacy Policy
©2026 sandrapardohomes.com - all rights reserved. | Site Map