407-990-2746
Menu

17448 Belie Way, Punta Gorda, FL

NEXT
PREV
$450,000

($238/sqft)

List Status: Active
17448 Belie Way
Punta Gorda, FL 33955


4 beds
3 baths
1888 living sqft
Top Features
  • Subdivision: Punta Gorda Isles Sec 21
  • Built in  2025
  • Single Family Residence
Description
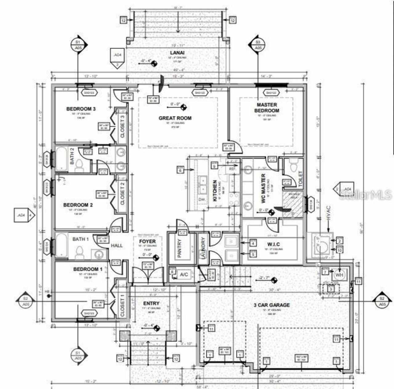
Pre-Construction. To be built. This beautifully designed, soon to be completed home offers 4 bedrooms, 3 bathrooms and a spacious 3 car garage perfectly situated on a quiet cul-de-sac in the desirable Burnt Store Lakes community. The open concept layout features split bedrooms for added privacy, soaring ceilings and large windows that fil the space with natural light. Step out onto the expansive lanai and enjoy peaceful views an ideal setting to relax and take in Florida’s stunning sunsets. Inside, the thoughtfully planned layout includes a well-appointed laundry room and a seamless flow of space perfect for both entertaining and everyday living. Please note: All photos shown are of a similar complete home. Some finishes, material or details may vary. If a buyer comes in early during construction, there may be opportunities to customize elements.
Property Details
Property Features
Property Sub Type
Single Family Residence
County
Charlotte
Subdivision
PUNTA GORDA ISLES SEC 21
Additional Information
Additional Lease Restrictions
See HOA documents for more information.
Additional Parcels Description
contact agent
Additional Parcels YN
true
Alternate Key Folio Num
0095262-226880-9
Appliances
Dishwasher, Microwave, Range, Refrigerator
Approval Process
See HOA documents for more information.
Association Email
office@bslpoa.org
Association Fee
442
Association Fee Frequency
Annually
Association Fee Includes
Common Area Taxes
Association Fee Requirement
Required
Association YN
true
Attached Garage YN
true
Available For Lease YN
1
Bathrooms Total Integer
3
Builder Name
Marquezine Remodeling
Building Area Source
Builder
Building Area Total
2780
Building Area Total Srch SqM
258.27
Building Area Units
Square Feet
Calculated List Price By Calculated SqFt
238.35
Carport YN
false
Construction Materials
Block, Stucco
Cooling
Central Air
Country
US
Cumulative Days On Market
169
Current Price
450000.00
Direction Faces
Southwest
Elementary School
Sallie Jones Elementary
Exterior Features
Sliding Doors
Fireplace YN
false
Flood Zone Code
AE
Flood Zone Date
2022-12-15
Flood Zone Panel
12015C0418G
Flooring
Laminate
Foundation Details
Slab
Garage Spaces
3
Garage YN
true
Heating
Electric
High School
Charlotte High
Interior Features
High Ceilings, Split Bedroom, Stone Counters, Walk-In Closet(s)
Internet Address Display YN
true
Internet Automated Valuation Display YN
false
Internet Consumer Comment YN
false
Internet Entire Listing Display YN
true
Laundry Features
Inside, Laundry Room
Levels
One
List AOR
Englewood
Listing Exclusion YN
1
Living Area Meters
175.40
Living Area Source
Builder
Living Area Units
Square Feet
Lot Features
Cleared, Cul-De-Sac
Lot Size Acres
0.29
Lot Size Square Feet
12532
Lot Size Square Meters
1164
Middle Or Junior School
Punta Gorda Middle
Minimum Lease
No Minimum
Modification Timestamp
2026-01-15T14:58:09.123Z
Monthly HOA Amount
36.83
New Construction YN
true
Number Of Lots
6
Occupant Type
Vacant
Ownership
Fee Simple
Parcel Number
422236477006
Pets Allowed
Yes
Pool Private YN
false
Postal Code Plus 4
5600
Projected Completion Date
2026-04-08T00:00:00.000
Property Condition
Pre-Construction
Public Survey Range
22
Public Survey Section
36
RATIO Current Price By Calculated SqFt
238.35
Road Surface Type
Asphalt
Roof
Shingle
Room Count
4
SW Subdiv Community Name
Punta Gorda Isles
Security Features
Fire Alarm
Senior Community YN
false
Sewer
Public Sewer
Showing Requirements
ShowingTime
Status Change Timestamp
2025-07-30T16:10:45.000Z
Tax Annual Amount
933
Tax Block
940
Tax Book Number
13-1
Tax Legal Description
PGI 021 0940 0003 PUNTA GORDA ISLES SEC21 BLK940 LT 3 754/1228 1444/187 1577/1661720/682-MERGER 2150/170 CD2349/1454 3149/999 3534/379 4732/1198 3356045
Tax Lot
3
Tax Year
2024
Total Acreage
1/4 to less than 1/2
Total Annual Fees
442.00
Total Monthly Fees
36.83
Township
42
Universal Property Id
US-12015-N-422236477006-R-N
Unparsed Address
17448 BELIE WAY
Utilities
BB/HS Internet Available
Water Source
Public
Waterfront YN
false
Window Features
Storm Window(s)
Zoning
RSF3.5
Neighborhood Map
Popup

Property Photos
Listing Photo
Listing Photo
Listing Photo
Listing Photo
Listing Photo
Listing Photo
Listing Photo
Listing Photo
Listing Photo
Listing Photo
Listing Photo
Listing Photo
Listing Photo
Listing Photo
Listing Photo
Listing Photo
Listing Photo
Listing Photo
Listing Photo
Listing Photo
Listing Photo
Listing Photo

MLS #MFRD6143245 Listing courtesy of Michael Saunders & Company provided by Stellar MLS.

Similar Listings

$408,900
320 Pessoa Street
Punta Gorda
4BR/3BA
| Pending
$410,000
441 Xingu Court
Punta Gorda
4BR/3BA
| Active
$415,000
27131 Guapore Drive
Punta Gorda
4BR/3BA
| Active
$419,900
25425 Calusa Drive
Punta Gorda
4BR/3BA
| Active



All listing information is deemed reliable but not guaranteed and should be independently verified through personal inspection by appropriate professionals. Listings displayed on this website may be subject to prior sale or removal from sale; availability of any listing should always be independent verified. Listing information is provided for consumer personal, non-commercial use, solely to identify potential properties for potential purchase; all other use is strictly prohibited and may violate relevant federal and state law. The source of the listing data is as follows: Stellar MLS (updated 5/28/26 12:12 AM) |

Listing Search



Translate Tool

Featured Listings
Maitland Real Estate
$1,175,000
4 BED
4 BATH
Come see 51 Oakleigh Ln, a functional residence arranged for everyday practicality. A comfortable living space features ... Read More
Winter Garden Real Estate
$998,000
5 BED
4 BATH
Under Construction. Discover Silverleaf Oaks in Winter Garden! This new home community will feature a collection of sing... Read More
Orlando Real Estate
$839,000
5 BED
4 BATH
Enjoy Disney fireworks from your front yard! Just minutes from Disney and surrounded by the Windermere area, this beauti... Read More
Indian Shores Real Estate
$1,150,000
2 BED
2 BATH
Rare opportunity to own a fully remodeled beachfront condo in Indian Shores ideally positioned between the Gulf and the ... Read More
Tampa Real Estate
$1,250,000
4 BED
3 BATH
One or more photo(s) has been virtually staged. Welcome to your own private Florida resort paradise. Schedule your priva... Read More
Lakewood Ranch Real Estate
$955,000
4 BED
3 BATH
Push the easy button and move right in to this possibly Turn-Key Florida Dream! Welcome home to this show-stopping Mallo... Read More
Wesley Chapel Real Estate
$809,990
5 BED
3 BATH
PREMIUM CONSERVATION LOT | NEW SALTWATER POOL | FOUR-CAR GARAGE | NO CDD FEES. Welcome to 7754 Hemlock Seed Drive in Wes... Read More
St Petersburg Real Estate
$1,499,000
4 BED
3 BATH
Under Construction. Welcome to an exceptional new construction opportunity in the highly sought-after Allendale Oaks Nei... Read More
Tampa Real Estate
$1,190,000
5 BED
3 BATH
Tucked away on a dead-end street with no through traffic in Southgreen, one of South Tampa’s most charming hidden enclav... Read More
Tampa Real Estate
$1,135,000
5 BED
4 BATH
OPEN HOUSE SATURDAY & SUNDAY! Welcome to 306 E Emma Street, a stunning custom-built 2022 residence tucked away on a quie... Read More
Contact Sandra Pardo

407-990-2746

Wendy Morris LLC

Licensed in the State of Florida
BK 3146762
16797 Broadwater Avenue
Winter Garden, Florida 34787

Your privacy is our utmost concern. We will never sell your personal information. Privacy Policy
©2026 sandrapardohomes.com - all rights reserved. | Site Map