407-990-2746
Menu

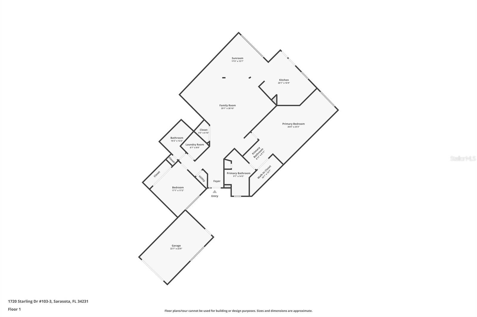
1720 Starling Drive Unit: Unit: 103, Sarasota, FL

NEXT
PREV
$398,000

($232/sqft)

List Status: Pending
1720 Starling Drive
Sarasota, FL 34231


2 beds
2 baths
1712 living sqft
Top Features
  • Subdivision: Landings South Vi
  • Built in  1988
  • Condominium
Description
Property Details
Additional Information
Additional Lease Restrictions
3 month minimum. See docs/ contact association for further information
Additional Parcels YN
false
Alternate Key Folio Num
0084072017
Appliances
Dishwasher, Dryer, Electric Water Heater, Kitchen Reverse Osmosis System, Microwave, Range, Refrigerator, Washer
Approval Process
$125 Application Fee Required**Payable to C&S Community Management Services, Inc. $100 Screening Fee Required**Payable to Landings South VI Condominium Association
Association Amenities
Clubhouse, Fitness Center, Gated, Maintenance, Pickleball Court(s), Pool, Racquetball, Recreation Facilities, Spa/Hot Tub, Tennis Court(s), Trail(s)
Association Approval Required YN
1
Association Email
adibiagio@cscmsi.com
Association Fee Includes
Guard - 24 Hour, Common Area Taxes, Pool, Escrow Reserves Fund, Insurance, Maintenance Structure, Maintenance Grounds, Management, Pest Control, Private Road, Recreational Facilities, Sewer, Trash, Water
Association YN
false
Attached Garage YN
true
Available For Lease YN
1
Bathrooms Total Integer
2
Building Area Source
Public Records
Building Area Total
2017
Building Area Total Srch SqM
187.39
Building Area Units
Square Feet
Calculated List Price By Calculated SqFt
232.48
Carport YN
false
Community Features
Buyer Approval Required, Clubhouse, Community Mailbox, Deed Restrictions, Fitness Center, Gated Community - Guard, Pool, Racquetball, Sidewalks, Tennis Court(s)
Condo Fees
2501
Condo Fees Term
Quarterly
Construction Materials
Concrete, Stucco
Contract Status
Inspections
Cooling
Central Air
Country
US
Cumulative Days On Market
80
Current Price
398000.00
Direction Faces
South
Elementary School
Phillippi Shores Elementary
Expected Closing Date
2026-01-27T00:00:00.000
Exterior Features
Other
Fireplace YN
false
Flood Zone Code
X500
Flood Zone Date
2024-03-27
Flood Zone Panel
12115C0143G
Floor Number
1
Flooring
Carpet, Vinyl
Foundation Details
Slab
Furnished
Partially
Garage Spaces
1
Garage YN
true
Heating
Electric
High School
Riverview High
Home Warranty YN
true
Homestead YN
1
Interior Features
Ceiling Fans(s), High Ceilings, Open Floorplan, Primary Bedroom Main Floor, Split Bedroom, Walk-In Closet(s)
Internet Address Display YN
true
Internet Automated Valuation Display YN
true
Internet Consumer Comment YN
true
Internet Entire Listing Display YN
true
Laundry Features
Inside
Lease Restrictions YN
1
Levels
One
List AOR
Sarasota - Manatee
Living Area Meters
159.05
Living Area Source
Public Records
Living Area Units
Square Feet
Lot Size Acres
3.85
Lot Size Square Feet
167526
Lot Size Square Meters
15564
Max Pet Weight
35
Middle Or Junior School
Brookside Middle
Minimum Lease
3 Months
Modification Timestamp
2025-12-03T01:40:08.945Z
Monthly Condo Fee Amount
834
New Construction YN
false
Occupant Type
Owner
Other Fees Amount
2050
Other Fees Term
Annual
Ownership
Fee Simple
Parcel Number
0084072017
Pet Restrictions
Combined weight for any dog or cat cannot exceed 50 lbs. Renters may not have pets.
Pet Size
Small (16-35 Lbs.)
Pets Allowed
Cats OK, Dogs OK, Yes
Pool Private YN
false
Postal Code Plus 4
9100
Previous List Price
415000
Price Change Timestamp
2025-11-02T12:29:39.000Z
Public Remarks
Under contract-accepting backup offers. Welcome to this beautifully designed single-level unit offering 1, 712sqft of thoughtfully crafted space. Step inside and feel the difference—high ceilings, new luxury vinyl floors, crisp baseboards, and large sliding back doors give the whole place a bright and modern feel. The kitchen features new appliances, granite countertops, and opens seamlessly to the dining area and family room, making it perfect for entertaining guests or everyday living. Step out onto the back deck that is surrounded by lush, Florida greenery overlooking a serene lake creating a tranquil spot to enjoy morning coffee or for some evening unwinding. The generously sized master suite offers a peaceful escape, featuring plush, new Karastan carpet, a stylish headboard accent wall, and a spacious walk-in closet. Just beside the closet, a dedicated vanity area provides space to get ready for a night out or a quick trip downtown. Step into the en-suite bathroom, where modern sophistication shines through an updated gray vanity topped with quartz, complemented by new lighting and fixtures. The home’s true split floor plan ensures privacy for all, with the second bedroom tucked away on the opposite side—ideal for guests or a home office. It enjoys easy access to a second full bath, complete with a granite countertop vanity and tasteful finishes. The unit includes a centrally located laundry room with a full-size washer and dryer, plus built-in storage cabinets, making everyday chores a breeze. A one-car garage adds convenience and completes this thoughtfully designed home. Beyond the walls of this beautiful place, The Landings offers a lifestyle that is second to none. Residents enjoy 24-hour gated security, direct access to Sarasota Bay, and a vibrant natural setting that feels like a private sanctuary. Amenities include a heated swimming pool with designated lap lanes and a relaxing spa, a full-size fitness center with locker rooms and showers, two clubhouses available for social gatherings and recreation, as well as Pickleball courts and 8 Har-Tru clay tennis courts for active living. Children will also love the opportunity to take tennis lessons and explore two beautiful, local parks. Recent community upgrades include a new roof (August 2023) and freshly paved roads (2024), ensuring both beauty and peace of mind. Located just outside the gate, there are many top-tier restaurants, and with Siesta Key Beach less than 6 miles away, you are never far from the world-class sunsets. Whether you are seeking a prime investment or your forever Florida home, this property offers the perfect blend of luxury, location, and lifestyle.
Public Survey Range
18
Public Survey Section
07
Purchase Contract Date
2025-12-02
RATIO Current Price By Calculated SqFt
232.48
Realtor Info
As-Is, Assoc approval required
Road Responsibility
Private Maintained Road
Road Surface Type
Paved
Roof
Tile
Room Count
7
SW Subdiv Community Name
Landings South
Senior Community YN
false
Sewer
Public Sewer
Showing Requirements
Combination Lock Box
Status Change Timestamp
2025-12-03T01:39:50.000Z
Stories Total
1
Tax Annual Amount
4096
Tax Book Number
2001-2561
Tax Legal Description
UNIT 103 BLDG 3 LANDINGS SOUTH 6
Tax Lot
103
Tax Year
2024
Total Annual Fees
14054.00
Total Monthly Fees
1171.17
Township
37
Universal Property Id
US-12115-N-0084072017-S-103
Unparsed Address
1720 STARLING DR #103
Utilities
Cable Connected, Electricity Connected, Phone Available, Sewer Connected, Water Connected
Water Access
Intracoastal Waterway
Water Access YN
1
Water Source
Public
Water View
Lake
Water View YN
1
Waterfront YN
false
Zoning
RMF1
Neighborhood Map
Popup

Property Photos
Listing Photo
Listing Photo
Listing Photo
Listing Photo
Listing Photo
Listing Photo
Listing Photo
Listing Photo
Listing Photo
Listing Photo
Listing Photo
Listing Photo
Listing Photo
Listing Photo
Listing Photo
Listing Photo
Listing Photo
Listing Photo
Listing Photo
Listing Photo
Listing Photo
Listing Photo
Listing Photo
Listing Photo
Listing Photo
Listing Photo
Listing Photo
Listing Photo
Listing Photo
Listing Photo
Listing Photo
Listing Photo
Listing Photo
Listing Photo
Listing Photo
Listing Photo
Listing Photo
Listing Photo
Listing Photo
Listing Photo
Listing Photo
Listing Photo
Listing Photo
Listing Photo
Listing Photo
Listing Photo
Listing Photo
Listing Photo
Listing Photo
Listing Photo
Listing Photo
Listing Photo
Listing Photo
Listing Photo
Listing Photo
Listing Photo
Listing Photo
Listing Photo
Listing Photo
Listing Photo
Listing Photo
Listing Photo
Listing Photo
Listing Photo
Listing Photo
Listing Photo
Listing Photo
Listing Photo
Listing Photo
Listing Photo
Listing Photo
Listing Photo
Listing Photo
Listing Photo
Listing Photo
Listing Photo
Listing Photo
Listing Photo
Listing Photo
Listing Photo
Listing Photo
Listing Photo
Listing Photo
Listing Photo
Listing Photo
Listing Photo
Listing Photo
Listing Photo

MLS #MFRA4664907 Listing courtesy of Coldwell Banker Realty provided by Stellar MLS.

Similar Listings

$359,000
1550 N Pompano Avenue
Sarasota
2BR/2BA
| Active
$359,000
3721 Collins Street
Sarasota
2BR/2BA
| Active
$359,000
9560 High Gate Drive
Sarasota
2BR/2BA
| Active
$359,000
4227 Olive Avenue
Sarasota
2BR/2BA
| Pending



All listing information is deemed reliable but not guaranteed and should be independently verified through personal inspection by appropriate professionals. Listings displayed on this website may be subject to prior sale or removal from sale; availability of any listing should always be independent verified. Listing information is provided for consumer personal, non-commercial use, solely to identify potential properties for potential purchase; all other use is strictly prohibited and may violate relevant federal and state law. The source of the listing data is as follows: Stellar MLS (updated 12/5/25 8:02 PM) |

Listing Search



Translate Tool

Featured Listings
Seminole Real Estate
$1,200,000
4 BED
3 BATH
Tampa Real Estate
$815,000
2 BED
3 BATH
Longboat Key Real Estate
$975,000
3 BED
2 BATH
Bradenton Real Estate
$1,195,000
2 BED
2 BATH
Homosassa Real Estate
$825,000
3 BED
2 BATH
Odessa Real Estate
$1,200,000
3 BED
2 BATH
Sarasota Real Estate
$1,250,000
2 BED
2 BATH
Sarasota Real Estate
$1,400,000
3 BED
3 BATH
Orlando Real Estate
$850,000
4 BED
2 BATH
Pembroke Pines Real Estate
$875,000
3 BED
3 BATH
Contact Sandra Pardo

407-990-2746

Wendy Morris LLC

Licensed in the State of Florida
BK 3146762
16797 Broadwater Avenue
Winter Garden, Florida 34787

Your privacy is our utmost concern. We will never sell your personal information. Privacy Policy
©2025 sandrapardohomes.com - all rights reserved. | Site Map