407-990-2746
Menu

171 Valencia Circle, St Petersburg, FL

NEXT
PREV
$510,000

($245/sqft)

List Status: Pending
171 Valencia Circle
St Petersburg, FL 33716


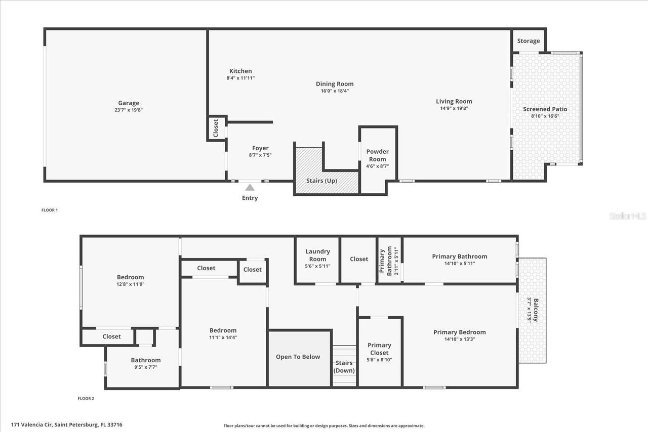
3 beds
2 baths
2085 living sqft
Top Features
  • View: Water, Trees/Woods
  • Subdivision: Villas Of Carillon
  • Built in  2006
  • Townhouse
Description
Under contract-accepting backup offers. Designed for California and New York buyers relocating to Florida, this beautifully updated end-unit residence sets the standard for refined, lock-and-leave living. Located within the private, gated Villas of Carillon, this designer-curated two-story home offers a sophisticated blend of modern style, comfort, and privacy in one of St. Petersburg’s most desirable communities. Thoughtfully redesigned throughout, the home balances sleek contemporary finishes with warm, inviting spaces, showcasing a level of attention to detail that is immediately felt. The main level features a bright, spacious kitchen appointed with quartz countertops and streamlined European-style cabinetry, opening effortlessly to expansive living and dining areas ideal for both everyday living and entertaining. Sliding doors lead to a screened-in back porch, creating a serene retreat to unwind while enjoying peaceful pond and wooded surroundings. The seamless indoor-outdoor flow enhances the home’s relaxed yet refined lifestyle. Upstairs, three well-appointed bedrooms include a tranquil primary suite featuring dual walk-in closets, a beautifully updated en-suite bath, and a private balcony overlooking the water and natural landscape. Two additional bedrooms share a fully renovated second bath, while a conveniently located second-floor laundry room adds ease to daily living. Additional highlights include a two-car attached garage with built-in shelving and ample storage throughout. Residents of Villas of Carillon enjoy access to a resort-style pool, clubhouse, and scenic walking and biking paths, all just minutes from downtown St. Petersburg, Tampa, major airports, world-renowned beaches, shopping, and dining. A turnkey opportunity offering elevated design, low-maintenance living, and an exceptional location — without compromise.
Property Details
Property Features
Property Sub Type
Townhouse
View
Water, Trees/Woods
Parking
Off Street, Driveway
Pool
Gunite, Lighting, Outside Bath Access, Deck, Child Safety Fence, In Ground
County
Pinellas
Subdivision
VILLAS OF CARILLON
Building Name
VILLAS OF CARILLON
Additional Information
Additional Lease Restrictions
Buyer to verify all rules, policies, and restrictions with the Homeowners Association.
Additional Parcels YN
false
Alternate Key Folio Num
30-16-12-94177-039-0030
Appliances
Convection Oven, Dishwasher, Disposal, Dryer, Electric Water Heater, Microwave, Range, Refrigerator, Washer
Approval Process
Confirm Process with the Homeowners Association.
Association Approval Required YN
1
Association Email
vilcaril@ciramail.com
Association Fee
874
Association Fee Frequency
Monthly
Association Fee Includes
Pool, Insurance, Maintenance Structure, Maintenance Grounds, Management, Pest Control, Recreational Facilities, Sewer, Trash, Water
Association Fee Requirement
Required
Association YN
true
Attached Garage YN
true
Available For Lease YN
1
Bathrooms Total Integer
3
Building Area Source
Public Records
Building Area Total
2085
Building Area Total Srch SqM
193.70
Building Area Units
Square Feet
Calculated List Price By Calculated SqFt
244.60
Carport YN
false
Community Features
Clubhouse, Community Mailbox, Deed Restrictions, Gated Community - No Guard, Pool, Sidewalks
Construction Materials
Block, Stucco, Frame
Contract Status
Inspections
Cooling
Central Air
Country
US
Cumulative Days On Market
192
Current Price
510000.00
Direction Faces
South
Elementary School
Pinellas Central Elem-PN
Expected Closing Date
2026-06-11T00:00:00.000
Exterior Features
Balcony, French Doors, Lighting, Storage
Fireplace YN
false
Flood Zone Code
AE
Flood Zone Date
2021-08-24
Flood Zone Panel
12103C0143H
Flooring
Luxury Vinyl, Tile
Foundation Details
Slab
Furnished
Negotiable
Garage Spaces
2
Garage YN
true
Heating
Central, Electric
High School
Pinellas Park High-PN
Homestead YN
1
Interior Features
Ceiling Fans(s), Crown Molding, Living Room/Dining Room Combo, Open Floorplan, Solid Surface Counters, Stone Counters, Walk-In Closet(s)
Internet Address Display YN
true
Internet Automated Valuation Display YN
false
Internet Consumer Comment YN
true
Internet Entire Listing Display YN
true
Laundry Features
Inside, Laundry Room
Lease Restrictions YN
1
Levels
Two
List AOR
Orlando Regional
Living Area Meters
193.70
Living Area Source
Public Records
Living Area Units
Square Feet
Lot Features
Flood Insurance Required, FloodZone, Historic District, City Limits, Landscaped, Paved
Lot Size Acres
0.05
Lot Size Square Feet
2087
Lot Size Square Meters
194
Middle Or Junior School
Fitzgerald Middle-PN
Minimum Lease
7 Months
Modification Timestamp
2026-05-19T16:20:09.578Z
Monthly HOA Amount
874.00
New Construction YN
false
Number Of Pets
2
Occupant Type
Owner
Ownership
Fee Simple
Parcel Number
12-30-16-94177-039-0030
Patio And Porch Features
Covered, Rear Porch, Screened
Pet Restrictions
Buyer to verify all rules, policies, and restrictions with the Homeowners Association.
Pet Size
Large (61-100 Lbs.)
Pets Allowed
Breed Restrictions, Cats OK, Dogs OK, Yes
Pool Private YN
true
Postal Code Plus 4
1212
Previous List Price
524999
Price Change Timestamp
2026-03-25T12:46:33.000Z
Property Description
End Unit
Public Survey Range
16
Public Survey Section
12
Purchase Contract Date
2026-05-19
RATIO Current Price By Calculated SqFt
244.60
Realtor Info
Assoc approval required, No Sign
Road Surface Type
Asphalt, Paved
Roof
Tile
Room Count
3
Senior Community YN
false
Sewer
Public Sewer
Showing Requirements
Call Listing Agent, ShowingTime
Status Change Timestamp
2026-05-19T14:58:24.000Z
Tax Annual Amount
7509.95
Tax Block
39
Tax Book Number
131-65
Tax Legal Description
VILLAS OF CARILLON PHASE II AND III BLK 39, LOT 3
Tax Lot
3
Tax Year
2025
Total Acreage
0 to less than 1/4
Total Annual Fees
10488.00
Total Monthly Fees
874.00
Township
30
Universal Property Id
US-12103-N-123016941770390030-R-N
Unparsed Address
171 VALENCIA CIR
Utilities
BB/HS Internet Available, Cable Connected, Electricity Connected, Public, Sewer Connected, Water Connected
Vegetation
Trees/Landscaped
Water Access
Pond
Water Access YN
1
Water Source
Public
Water View
Pond
Water View YN
1
Waterfront YN
false
Neighborhood Map
Popup

Property Photos
Listing Photo
Listing Photo
Listing Photo
Listing Photo
Listing Photo
Listing Photo
Listing Photo
Listing Photo
Listing Photo
Listing Photo
Listing Photo
Listing Photo
Listing Photo
Listing Photo
Listing Photo
Listing Photo
Listing Photo
Listing Photo
Listing Photo
Listing Photo
Listing Photo
Listing Photo
Listing Photo
Listing Photo
Listing Photo
Listing Photo
Listing Photo
Listing Photo
Listing Photo
Listing Photo
Listing Photo
Listing Photo
Listing Photo
Listing Photo
Listing Photo
Listing Photo
Listing Photo
Listing Photo
Listing Photo
Listing Photo
Listing Photo
Listing Photo
Listing Photo
Listing Photo
Listing Photo
Listing Photo
Listing Photo
Listing Photo
Listing Photo
Listing Photo
Listing Photo
Listing Photo
Listing Photo
Listing Photo
Listing Photo
Listing Photo
Listing Photo
Listing Photo
Listing Photo
Listing Photo

MLS #MFRTB8467434 Listing courtesy of The Agency Fl provided by Stellar MLS.

Similar Listings

$459,000
1511 35th N Avenue
St Petersburg
3BR/2BA
| Active
$459,000
630 Jasmine S Way
St Petersburg
3BR/2BA
| Pending
$459,000
4228 37th N Avenue
St Petersburg
3BR/2BA
| Pending
$459,900
6144 2nd N Avenue
St Petersburg
3BR/2BA
| Active



All listing information is deemed reliable but not guaranteed and should be independently verified through personal inspection by appropriate professionals. Listings displayed on this website may be subject to prior sale or removal from sale; availability of any listing should always be independent verified. Listing information is provided for consumer personal, non-commercial use, solely to identify potential properties for potential purchase; all other use is strictly prohibited and may violate relevant federal and state law. The source of the listing data is as follows: Stellar MLS (updated 5/27/26 9:11 AM) |

Listing Search



Translate Tool

Featured Listings
Sarasota Real Estate
$1,347,000
4 BED
4 BATH
Located on a quiet cul-de-sac behind the gates of Misty Creek, this beautifully designed four-bedroom home offers stunni... Read More
Longwood Real Estate
$899,000
4 BED
4 BATH
Welcome to 1837 Wingfield Drive, a rare opportunity to own a private ranch-style retreat in the highly sought-after Mark... Read More
Tarpon Springs Real Estate
$800,000
5 BED
2 BATH
Looking for the boating lifestyle without paying true waterfront prices? This upgraded Tarpon Springs pool home offers p... Read More
Oviedo Real Estate
$1,499,900
6 BED
5 BATH
One or more photo(s) has been virtually staged. Pre-Construction. To be built. PRE-CONSTRUCTION / TO-BE-BUILT – CONSTRUC... Read More
Belle Isle Real Estate
$995,000
4 BED
3 BATH
Under contract-accepting backup offers. Beautiful Reiche Silliman custom pool home on a premium pond-front lot in a gate... Read More
Kissimmee Real Estate
$1,399,000
8 BED
9 BATH
Kick back and embrace the laid-back island rhythm at this breezy lakefront retreat in Margaritaville Resort Orlando, per... Read More
Winter Garden Real Estate
$1,450,000
7 BED
4 BATH
Experience refined Florida living in this stunning energy-efficient estate, perfectly positioned on an expansive corner ... Read More
Polk City Real Estate
$1,200,000
3 BED
2 BATH
Polk City - Fantastic Property - 3 Parcels Included. 25.73 Acres Total (1.51 + .46 + 23.76) Home has many features insid... Read More
Sarasota Real Estate
$875,000
4 BED
3 BATH
Better than new!!! This stunning 4-bedroom, 4-bathroom, almost 3,000 sq ft nestled within the coveted Windward community... Read More
Tampa Real Estate
$975,000
3 BED
2 BATH
Experience ESTATE-STYLE LIVING on one of the largest homesites in the desirable Lake Magdalene area! Nestled on 1.4 ACRE... Read More
Contact Sandra Pardo

407-990-2746

Wendy Morris LLC

Licensed in the State of Florida
BK 3146762
16797 Broadwater Avenue
Winter Garden, Florida 34787

Your privacy is our utmost concern. We will never sell your personal information. Privacy Policy
©2026 sandrapardohomes.com - all rights reserved. | Site Map