407-990-2746
Menu

17012 Cottontail Circle, Punta Gorda, FL

NEXT
PREV
$404,990

($193/sqft)

List Status: Active
17012 Cottontail Circle
Punta Gorda, FL 33982


4 beds
2 baths
2103 living sqft
Top Features
  • Frontage: Pond
  • Subdivision: Creekside Run
  • Built in  2025
  • Single Family Residence
Description
Property Details
Additional Information
Additional Lease Restrictions
Contact the HOA
Additional Parcels YN
false
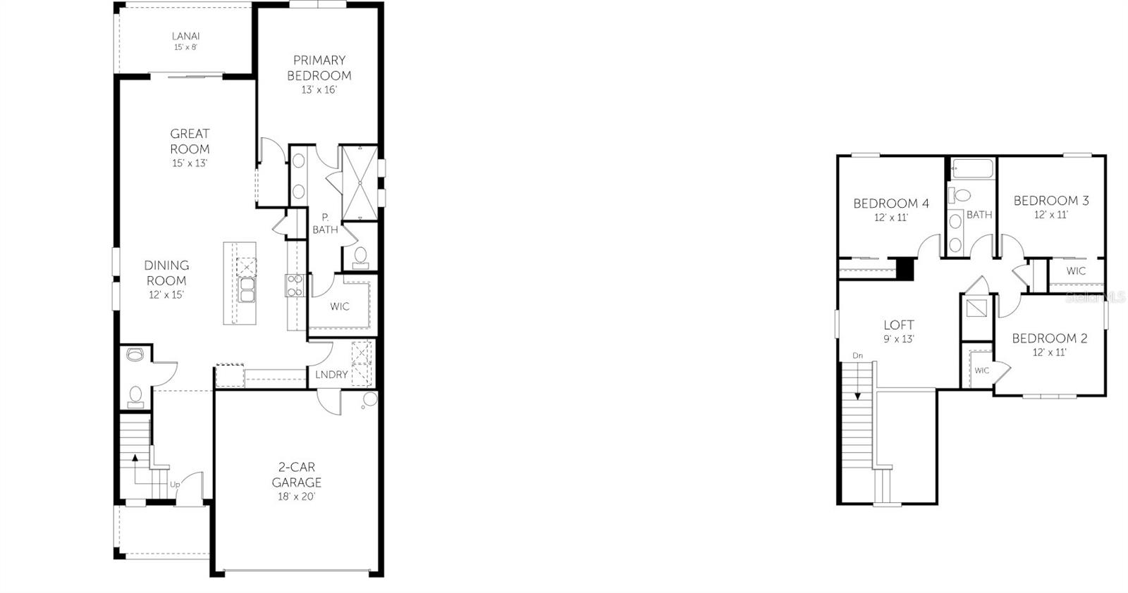
Additional Rooms
Loft
Alternate Key Folio Num
422633102164
Appliances
Dishwasher, Disposal, Exhaust Fan, Range, Tankless Water Heater
Approval Process
Call the HOA
Association Amenities
Basketball Court, Clubhouse, Fence Restrictions, Maintenance, Park, Pickleball Court(s), Playground, Pool, Recreation Facilities, Security, Spa/Hot Tub, Tennis Court(s), Trail(s)
Association Approval Required YN
1
Association Fee
120
Association Fee Frequency
Monthly
Association Fee Includes
Pool, Internet, Maintenance Grounds, Recreational Facilities, Security
Association Fee Requirement
Required
Association YN
true
Attached Garage YN
true
Available For Lease YN
1
Bathrooms Total Integer
3
Builder License Number
CRC1330830
Builder Model
FLORENCE
Builder Name
Dream Finders Homes
Building Area Source
Builder
Building Area Total
2700
Building Area Total Srch SqM
250.84
Building Area Units
Square Feet
CDDYN
1
Calculated List Price By Calculated SqFt
192.58
Carport YN
false
Community Features
Community Mailbox, Deed Restrictions, Gated Community - No Guard, Golf Carts OK, Irrigation-Reclaimed Water, Park, Pool, Sidewalks, Street Lights
Construction Materials
Block, Stucco
Cooling
Central Air
Country
US
Cumulative Days On Market
51
Current Price
404990.00
Direction Faces
South
Elementary School
Babcock Neighborhood
Exterior Features
Lighting, Sidewalk, Sliding Doors
Fireplace YN
false
Flood Zone Code
X
Flood Zone Date
2022-12-15
Flood Zone Panel
12015C0500G
Flooring
Carpet, Tile
Foundation Details
Slab
Furnished
Unfurnished
Garage Dimensions
21x20
Garage Spaces
2
Garage YN
true
Heating
Central, Electric, Heat Pump
High School
Babcock Neighborhood
Home Warranty YN
true
Interior Features
High Ceilings, Living Room/Dining Room Combo, Open Floorplan, Primary Bedroom Main Floor, Solid Surface Counters, Thermostat, Walk-In Closet(s)
Internet Address Display YN
true
Internet Automated Valuation Display YN
false
Internet Consumer Comment YN
true
Internet Entire Listing Display YN
true
Laundry Features
Inside, Laundry Room
Lease Restrictions YN
1
Levels
Two
List AOR
Orlando Regional
Living Area Meters
195.38
Living Area Source
Builder
Living Area Units
Square Feet
Lot Features
Cleared, Corner Lot, Sidewalk, Paved
Lot Size Acres
0.13
Lot Size Dimensions
42X140
Lot Size Square Feet
5880
Lot Size Square Meters
546
Middle Or Junior School
Babcock Neighborhood
Minimum Lease
3 Months
Modification Timestamp
2025-12-27T22:28:08.786Z
Monthly HOA Amount
120.00
New Construction YN
true
Occupant Type
Vacant
Other Equipment
Irrigation Equipment
Ownership
Fee Simple
Parcel Number
422633102043
Patio And Porch Features
Covered, Front Porch, Rear Porch
Permit Number
2025-4327
Pets Allowed
Yes
Planned Unit Development YN
1
Pool Private YN
false
Postal Code Plus 4
5185
Previous List Price
459014
Price Change Timestamp
2025-12-03T03:20:12.000Z
Projected Completion Date
2025-12-31T00:00:00.000
Property Attached YN
false
Property Condition
Under Construction
Property Description
Corner Unit
Public Remarks
One or more photo(s) has been virtually staged. Under Construction. SAMPLE IMAGES Experience the perfect blend of nature, style, and community in this stunning Florence model home. Located in the gated enclave of Creekside Run, you’re just minutes from future Babcock Ranch happenings, B-Street, and Midtown. Enjoy this picturesque, tree-lined neighborhood, walking distance to six parks and walking trails ideal for family, friends, and pets. Inside, the open-concept design features 9'4" ceilings, 8' sliding glass doors, and a seamless indoor-outdoor feel. The stylish kitchen showcases designer cabinetry, quartz countertops, a gas range, and a tankless water heater. Plush carpeting adds warmth to the spacious bedrooms and loft. Living and wet areas have tile floors & tile shower surrounds. Creekside Run's entrance is gated and carries the lowest HOA fees in Babcock Ranch. It provides residents 1 GIG of Internet, a pool, a tot lot, and lawn maintenance.
Public Survey Range
26
Public Survey Section
33
RATIO Current Price By Calculated SqFt
192.58
Realtor Info
CDD Addendum required, Floor Plan Available, Seller Must Build, Sign, Survey Available, Termite Bond/Warranty, Title Insurance
Road Responsibility
Private Maintained Road
Road Surface Type
Asphalt
Roof
Shingle
Room Count
10
SW Subdiv Community Name
Babcock Ranch
Security Features
Smoke Detector(s)
Senior Community YN
false
Sewer
Public Sewer
Showing Requirements
Appointment Only
Status Change Timestamp
2025-11-06T21:13:53.000Z
Tax Annual Amount
2800
Tax Legal Description
CSR 000 0000 4448 CREEKSIDE RUN LOT 4327
Tax Lot
4327
Tax Other Annual Assessment Amount
2016
Tax Year
2024
Total Acreage
0 to less than 1/4
Total Annual Fees
3132.00
Total Monthly Fees
261.00
Township
42
Universal Property Id
US-12015-N-422633102043-R-N
Unparsed Address
17012 COTTONTAIL CIR
Utilities
BB/HS Internet Available, Cable Available, Electricity Connected, Fire Hydrant, Natural Gas Available, Public, Sewer Connected, Sprinkler Recycled, Underground Utilities, Water Connected
Water Source
Public
Water View
Pond
Water View YN
1
Waterfront YN
true
Window Features
Double Pane Windows, ENERGY STAR Qualified Windows, Low-Emissivity Windows
Zoning
BOZD
Neighborhood Map
Popup

Property Photos
Listing Photo
Listing Photo
Listing Photo
Listing Photo

MLS #MFRG5104225 Listing courtesy of Olympus Executive Realty Inc provided by Stellar MLS.

Similar Listings

$364,900
25303 Delgado Drive
Punta Gorda
4BR/2BA
| Active
$369,900
25298 Jubal Street
Punta Gorda
4BR/2BA
| Active
$369,900
25504 Taltal Drive
Punta Gorda
4BR/2BA
| Active
$369,900
25290 Puerta Drive
Punta Gorda
4BR/2BA
| Active



All listing information is deemed reliable but not guaranteed and should be independently verified through personal inspection by appropriate professionals. Listings displayed on this website may be subject to prior sale or removal from sale; availability of any listing should always be independent verified. Listing information is provided for consumer personal, non-commercial use, solely to identify potential properties for potential purchase; all other use is strictly prohibited and may violate relevant federal and state law. The source of the listing data is as follows: Stellar MLS (updated 1/29/26 9:08 PM) |

Listing Search



Translate Tool

Featured Listings
Bradenton Real Estate
$1,195,000
3 BED
2 BATH
Winter Garden Real Estate
$899,000
4 BED
3 BATH
Orlando Real Estate
$1,199,000
3 BED
2 BATH
Kissimmee Real Estate
$899,000
4 BED
3 BATH
Punta Gorda Real Estate
$1,299,000
3 BED
2 BATH
Port Charlotte Real Estate
$1,100,000
3 BED
3 BATH
Longboat Key Real Estate
$950,000
4 BED
3 BATH
Bradenton Real Estate
$1,149,900
3 BED
3 BATH
Tampa Real Estate
$874,999
3 BED
2 BATH
Sarasota Real Estate
$800,000
2 BED
2 BATH
Contact Sandra Pardo

407-990-2746

Wendy Morris LLC

Licensed in the State of Florida
BK 3146762
16797 Broadwater Avenue
Winter Garden, Florida 34787

Your privacy is our utmost concern. We will never sell your personal information. Privacy Policy
©2026 sandrapardohomes.com - all rights reserved. | Site Map