407-990-2746
Menu

17003 Odessa Drive, Land O Lakes, FL

NEXT
PREV
$399,900

($133/sqft)

List Status: Pending
17003 Odessa Drive
Land O Lakes, FL 34638


4 beds
3 baths
3002 living sqft
Top Features
  • View: Garden
  • Subdivision: Suncoast Pointe Villages 1a & 1b
  • Built in  2004
  • Single Family Residence
Description
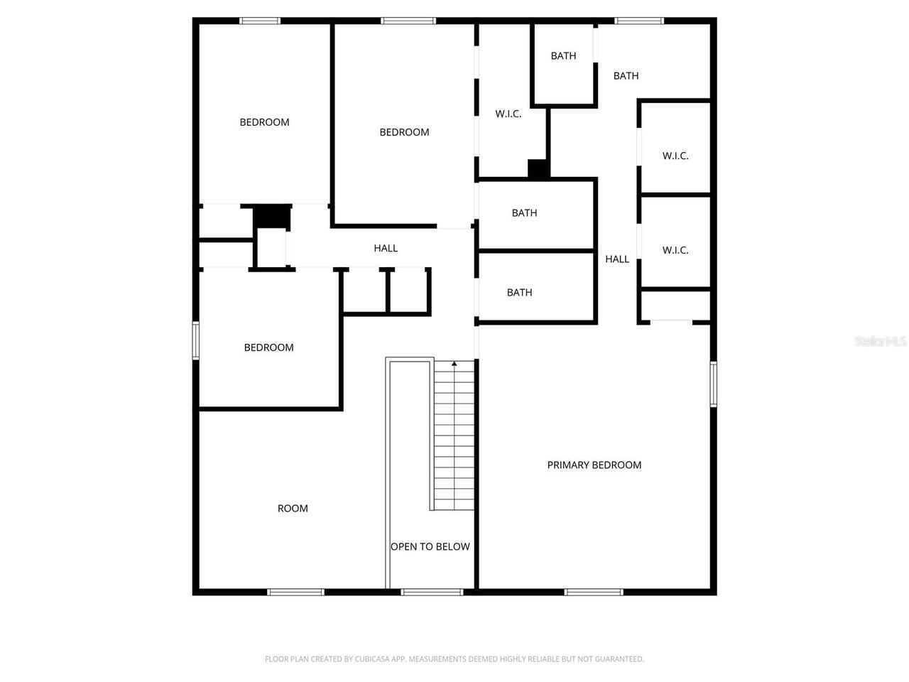
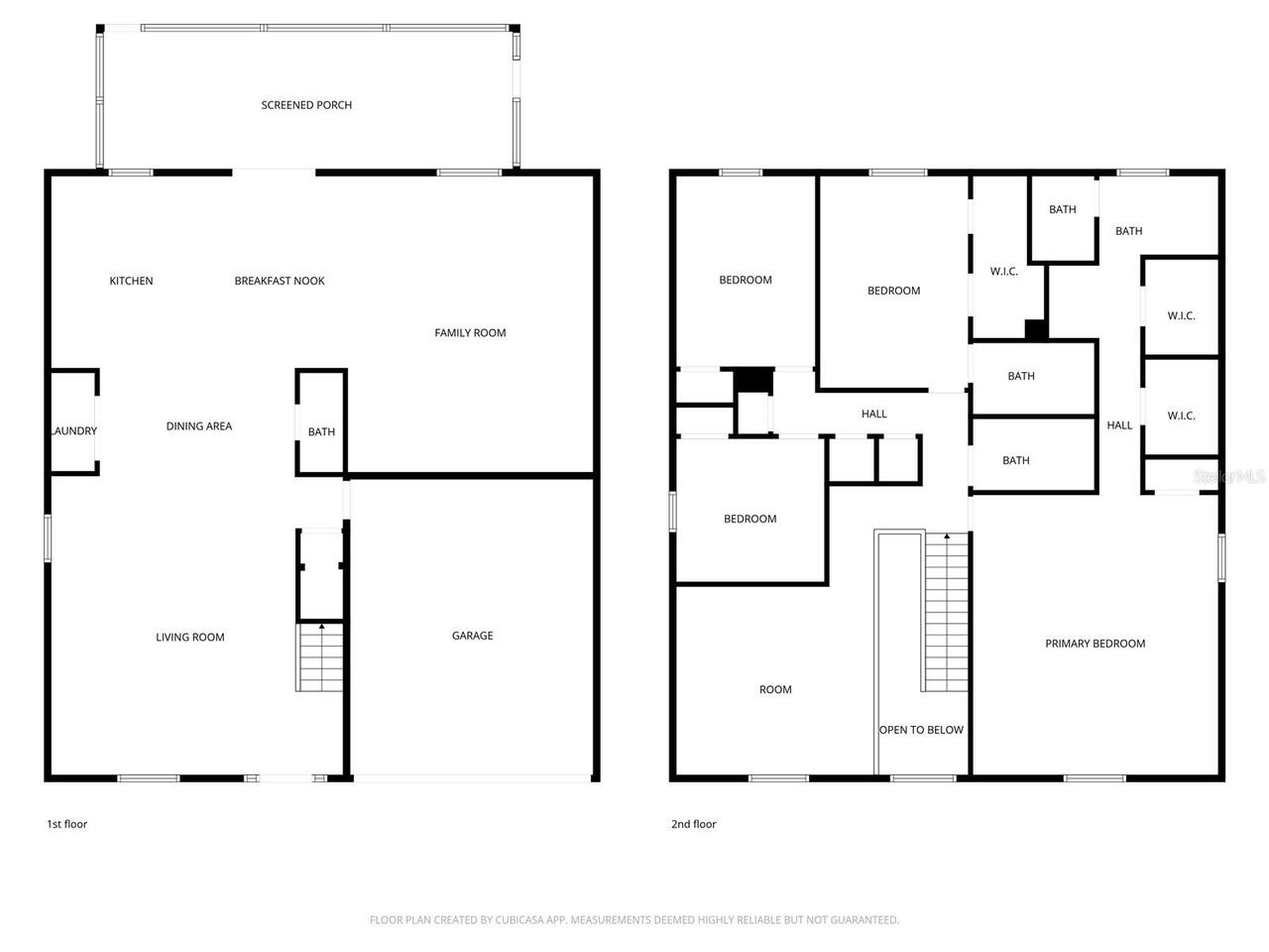
*Multiple Offers - Highest and Best deadline Thursday 4/16 at 2 PM*. Welcome to this spacious 4-bedroom, 3.5-bath home located in the Suncoast Pointe Villages community of Land O’ Lakes. Offering over 3,000 square feet of living space, this two-story residence features a functional layout with generous room sizes and multiple living and dining areas ideal for everyday living and entertaining. The kitchen includes a center island, built-in desk area, closet pantry, and walk-in pantry, flowing seamlessly into the main living spaces. The primary suite offers ample space along with a private bath featuring a garden tub and shower. Secondary bedrooms are comfortably sized, and the home’s thoughtful design provides flexibility for a variety of lifestyle needs. Situated on a corner lot within a cul-de-sac and near a conservation area, the property offers added privacy and outdoor space, along with a two-car garage and convenient access to major roadways, shopping, and dining.
Property Details
Additional Information
Additional Lease Restrictions
Independently verify all HOA/restriction information.
Additional Parcels YN
false
Alternate Key Folio Num
18-26-29-003.0-003.00-026.0
Appliances
Dishwasher, Microwave, Range, Refrigerator
Approval Process
Independently verify all HOA/restriction information.
Architectural Style
Traditional
Association Email
courtney.vlastnik@inframark.com
Association Fee
290
Association Fee Frequency
Annually
Association Fee Requirement
Required
Association YN
true
Attached Garage YN
true
Bathrooms Total Integer
4
Building Area Source
Owner
Building Area Total
3715
Building Area Total Srch SqM
345.13
Building Area Units
Square Feet
CDDYN
1
Calculated List Price By Calculated SqFt
133.21
Carport YN
false
Construction Materials
Stucco
Contract Status
Appraisal, Financing, Inspections
Cooling
Central Air
Country
US
Cumulative Days On Market
58
Current Price
399900.00
Direction Faces
East
Elementary School
Bexley Elementary School
Expected Closing Date
2026-05-20T00:00:00.000
Exterior Features
Private Mailbox, Private Yard
Fireplace YN
false
Flood Zone Code
X
Flood Zone Date
2014-09-26
Flood Zone Panel
12101C0383F
Flooring
Tile, Vinyl
Foundation Details
Slab
Furnished
Unfurnished
Garage Spaces
2
Garage YN
true
Heating
Electric
High School
Sunlake High School-PO
Interior Features
High Ceilings, Open Floorplan, Walk-In Closet(s)
Internet Address Display YN
true
Internet Automated Valuation Display YN
true
Internet Consumer Comment YN
true
Internet Entire Listing Display YN
true
Laundry Features
Other
Levels
Two
List AOR
Orlando Regional
Living Area Meters
278.89
Living Area Source
Owner
Living Area Units
Square Feet
Lot Features
Landscaped, Level
Lot Size Acres
0.17
Lot Size Square Feet
7471
Lot Size Square Meters
694
Middle Or Junior School
Charles S. Rushe Middle-PO
Modification Timestamp
2026-05-04T17:10:23.402Z
Monthly HOA Amount
24.17
New Construction YN
false
Occupant Type
Vacant
Other Equipment
Private Yard
Ownership
Fee Simple
Parcel Number
18-26-29-003.0-003.00-026.0
Patio And Porch Features
Covered, Patio
Pets Allowed
Yes
Pool Private YN
false
Postal Code Plus 4
7260
Previous List Price
419900
Price Change Timestamp
2026-04-10T17:13:50.000Z
Public Survey Range
18
Public Survey Section
29
Purchase Contract Date
2026-04-16
RATIO Current Price By Calculated SqFt
133.21
Road Surface Type
Asphalt
Roof
Shingle
Room Count
6
Senior Community YN
false
Sewer
Public Sewer
Showing Requirements
ShowingTime
Status Change Timestamp
2026-04-16T23:51:34.000Z
Stories Total
2
Tax Annual Amount
8168
Tax Block
3
Tax Book Number
48-068
Tax Legal Description
SUNCOAST POINTE VILLAGES 1A AND 1B PB 48 PG 068 BLOCK 3 LOT 26 OR 8968 PG 1516
Tax Lot
26
Tax Other Annual Assessment Amount
1387
Tax Year
2025
Total Acreage
0 to less than 1/4
Total Annual Fees
290.00
Total Monthly Fees
24.17
Township
26
Universal Property Id
US-12101-N-1826290030003000260-R-N
Unparsed Address
17003 ODESSA DR
Utilities
Other
Water Source
Public
Waterfront YN
false
Zoning
MPUD
Neighborhood Map
Popup

Property Photos
Listing Photo
Listing Photo
Listing Photo
Listing Photo
Listing Photo
Listing Photo
Listing Photo
Listing Photo
Listing Photo
Listing Photo
Listing Photo
Listing Photo
Listing Photo
Listing Photo
Listing Photo
Listing Photo
Listing Photo
Listing Photo
Listing Photo
Listing Photo
Listing Photo
Listing Photo
Listing Photo
Listing Photo
Listing Photo
Listing Photo
Listing Photo
Listing Photo
Listing Photo
Listing Photo
Listing Photo
Listing Photo
Listing Photo
Listing Photo
Listing Photo
Listing Photo
Listing Photo
Listing Photo
Listing Photo
Listing Photo
Listing Photo
Listing Photo
Listing Photo
Listing Photo
Listing Photo
Listing Photo
Listing Photo
Listing Photo
Listing Photo
Listing Photo
Listing Photo
Listing Photo
Listing Photo
Listing Photo
Listing Photo
Listing Photo
Listing Photo
Listing Photo
Listing Photo
Listing Photo
Listing Photo
Listing Photo
Listing Photo
Listing Photo
Listing Photo
Listing Photo
Listing Photo
Listing Photo
Listing Photo
Listing Photo
Listing Photo
Listing Photo
Listing Photo
Listing Photo
Listing Photo
Listing Photo
Listing Photo
Listing Photo
Listing Photo
Listing Photo
Listing Photo
Listing Photo
Listing Photo
Listing Photo
Listing Photo
Listing Photo

MLS #MFRO6383222 Listing courtesy of Mainstay Brokerage Llc provided by Stellar MLS.

Similar Listings

$369,900
17344 Cricket Chirp Loop
Land O Lakes
4BR/3BA
| Pending
$380,000
9314 Black Thorn Loop
Land O Lakes
4BR/3BA
| Active
$399,900
20466 Monza Loop
Land O Lakes
4BR/3BA
| Active
$399,900
23037 Brownwood Court
Land O Lakes
4BR/3BA
| Pending



All listing information is deemed reliable but not guaranteed and should be independently verified through personal inspection by appropriate professionals. Listings displayed on this website may be subject to prior sale or removal from sale; availability of any listing should always be independent verified. Listing information is provided for consumer personal, non-commercial use, solely to identify potential properties for potential purchase; all other use is strictly prohibited and may violate relevant federal and state law. The source of the listing data is as follows: Stellar MLS (updated 5/14/26 7:32 AM) |

Listing Search



Translate Tool

Featured Listings
Kissimmee Real Estate
$949,900
8 BED
5 BATH
This luxurious CORNER LOT vacation home with amazing WATERVIEW is a premier investment opportunity or multi-generational... Read More
Port Charlotte Real Estate
$889,000
3 BED
2 BATH
Welcome to your waterfront dream home, loaded with thoughtful interior design features and Florida must-have upgrades! Y... Read More
St Petersburg Real Estate
$1,390,000
5 BED
4 BATH
Welcome to 800 18th Avenue N, a historic 1925 Colonial pool home in Crescent Lake, one of Downtown St. Petersburg’s most... Read More
Hialeah Real Estate
$1,300,000
4 BED
3 BATH
Stunning luxury lakefront residence featuring 4 bedrooms and 3 full bathrooms in the exclusive Miami Lakes/Hialeah area.... Read More
Tampa Real Estate
$850,000
4 BED
3 BATH
One or more photo(s) has been virtually staged. Just steps from Midtown and within the coveted Mitchell, Wilson, and Pla... Read More
Belleview Real Estate
$825,000
5 BED
3 BATH
Spacious and beautifully appointed 5-bedroom, 3-bath home offering the perfect blend of comfort, functionality, and outd... Read More
Tampa Real Estate
$1,180,000
4 BED
3 BATH
Luxury, location, and lifestyle—with built-in income potential. This stunning custom-built home (2019) offers 4 bedrooms... Read More
Gainesville Real Estate
$879,000
4 BED
4 BATH
Professional Photos Coming Soon. Introducing this beautiful 4-bedroom, 4-bath pool home featuring top-of-the-line solar ... Read More
Ocala Real Estate
$1,399,000
4 BED
3 BATH
Refined Equestrian Living—Effortless, Turnkey, and Built to Last Whether you’re looking for a full-time Florida residenc... Read More
Orlando Real Estate
$1,264,900
4 BED
3 BATH
Modern luxury pool home in the exclusive gated golf community of Eagle Creek at Lake Nona. This stunning 2-story residen... Read More
Contact Sandra Pardo

407-990-2746

Wendy Morris LLC

Licensed in the State of Florida
BK 3146762
16797 Broadwater Avenue
Winter Garden, Florida 34787

Your privacy is our utmost concern. We will never sell your personal information. Privacy Policy
©2026 sandrapardohomes.com - all rights reserved. | Site Map