407-990-2746
Menu

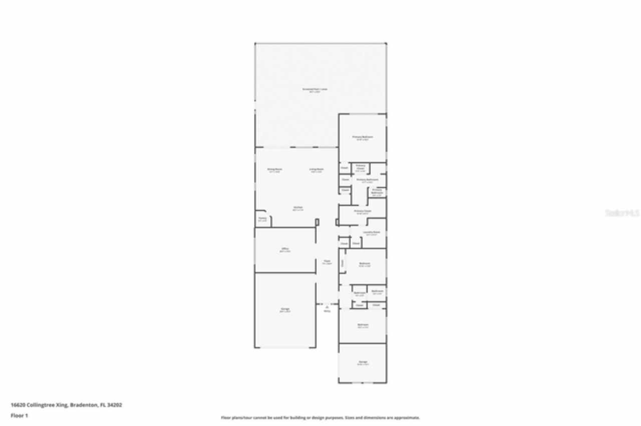
16620 Collingtree Crossing, Lakewood Ranch, FL

NEXT
PREV
$1,249,000

($487/sqft)

List Status: Active
16620 Collingtree Crossing
Lakewood Ranch, FL 34202


3 beds
2 baths
2566 living sqft
Top Features
  • View: Garden, Trees/Woods, Pool
  • Subdivision: Country Club East
  • Built in  2021
  • Single Family Residence
Description
Exquisite Luxury Living in Country Club East. Welcome to this stunning residence, offering the rare combination of pristine condition, high-end finishes, and a prime location within one of Lakewood Ranch’s premier gated communities. Built in 2021 and thoughtfully upgraded in 2022 and 2024, this residence shows like a model, has ***IMPACT WINDOWS and DOORS*** on both the front and rear of the house and has been maintained to the highest standards. From the moment you enter, the quality is unmistakable. A wide gallery hallway with dual coffered ceilings and elegant chandeliers sets the tone, leading you directly to the preserve view beyond. The open layout was designed for both comfort and functionality, with expansive windows throughout that flood the home with natural light and frame the lush landscape from nearly every room. The gourmet kitchen is a standout, featuring top-of-the-line Wolf and Bosch appliances, deep drawer cabinetry, a generous walk-in pantry, and an oversized island that anchors the space. The adjoining great room is ideal for both entertaining and everyday living, with seamless access to the outdoor area and unbroken views of vibrant flowering trees and shrubs. The owner's suite is a private retreat, offering lanai access, preserve views, and a spacious spa-style bath with dual vanities, an oversized walk-in shower, and a custom closet that connects directly to the laundry room for added convenience. Two guest bedrooms are thoughtfully located in their own wing, sharing a well-appointed bathroom that ensures privacy and comfort for visitors. A versatile flex room provides additional space for a home office, media lounge, or studio. Step outside to enjoy a true Florida lifestyle. The oversized saltwater pool (12' x 27') and elevated spa are surrounded by mature landscaping for maximum privacy, while the covered lanai includes a fully equipped Lynx outdoor kitchen—perfect for entertaining or unwinding at the end of the day. Additional highlights in
Property Details
Additional Information
Additional Lease Restrictions
Buyer responsibility to verify with HOA.
Additional Parcels YN
false
Additional Rooms
Bonus Room, Den/Library/Office, Great Room, Inside Utility
Amenities Additional Fees
Membership to Lakewood Ranch Country Club for access to dining, golf & tennis is available at additional fees. Buyer responsibility to verify with HOA.
Appliances
Built-In Oven, Convection Oven, Cooktop, Dishwasher, Disposal, Dryer, Exhaust Fan, Gas Water Heater, Microwave, Range Hood, Refrigerator, Washer, Water Softener
Approval Process
Buyer responsibility to verify with HOA.
Architectural Style
Florida
Association Amenities
Clubhouse, Fence Restrictions, Fitness Center, Gated, Golf Course, Optional Additional Fees, Pickleball Court(s), Pool, Recreation Facilities, Security, Spa/Hot Tub, Tennis Court(s), Trail(s), Vehicle Restrictions
Association Approval Required YN
1
Association Fee
3714
Association Fee Frequency
Annually
Association Fee Includes
Pool, Maintenance Grounds, Management, Private Road, Recreational Facilities, Security
Association Fee Requirement
Required
Association URL
https://countryclubeast.org/page/21
Association YN
true
Attached Garage YN
true
Available For Lease YN
1
Bathrooms Total Integer
2
Builder Model
Custom Carlotta
Builder Name
Neal Signature Homes
Building Area Source
Public Records
Building Area Total
3655
Building Area Total Srch SqM
339.56
Building Area Units
Square Feet
CDDYN
1
Calculated List Price By Calculated SqFt
486.75
Carport YN
false
Community Features
Association Recreation - Owned, Buyer Approval Required, Clubhouse, Community Mailbox, Deed Restrictions, Dog Park, Fitness Center, Gated Community - Guard, Golf Carts OK, Golf, Irrigation-Reclaimed Water, Pool, Racquetball, Restaurant, Sidewalks, Special Community Restrictions, Tennis Court(s)
Construction Materials
Block, Stucco
Cooling
Central Air
Country
US
Cumulative Days On Market
94
Current Price
1249000.00
Direction Faces
Northeast
Disaster Mitigation
Hurricane Shutters/Windows
Elementary School
Robert E Willis Elementary
Exterior Features
Awning(s), Hurricane Shutters, Outdoor Grill, Outdoor Kitchen, Rain Gutters, Sidewalk, Sliding Doors
Fireplace YN
false
Flood Zone Code
X
Flood Zone Date
2014-03-17
Flood Zone Panel
12081C0365E
Flooring
Luxury Vinyl, Tile, Wood
Foundation Details
Slab
Furnished
Unfurnished
Garage Spaces
3
Garage YN
true
Green Water Conservation
Irrigation-Reclaimed Water
Heating
Central
High School
Lakewood Ranch High
Interior Features
Ceiling Fans(s), Coffered Ceiling(s), Crown Molding, Eat-in Kitchen, High Ceilings, Living Room/Dining Room Combo, Open Floorplan, Primary Bedroom Main Floor, Solid Wood Cabinets, Split Bedroom, Stone Counters, Walk-In Closet(s)
Internet Address Display YN
true
Internet Automated Valuation Display YN
false
Internet Consumer Comment YN
false
Internet Entire Listing Display YN
true
Laundry Features
Inside, Laundry Room
Lease Restrictions YN
1
Levels
One
List AOR
Sarasota - Manatee
Living Area Meters
238.39
Living Area Source
Public Records
Living Area Units
Square Feet
Lot Features
In County, Landscaped, Level, Near Golf Course, Private, Sidewalk, Paved
Lot Size Acres
0.25
Lot Size Square Feet
11058
Lot Size Square Meters
1027
Middle Or Junior School
Nolan Middle
Minimum Lease
1-2 Years
Modification Timestamp
2025-10-19T19:05:26.455Z
Monthly HOA Amount
309.50
New Construction YN
false
Num Times per Year
1
Occupant Type
Owner
Other Equipment
Irrigation Equipment
Other Exemptions YN
1
Other Fees Amount
539
Other Fees Term
Quarterly
Other Structures
Outdoor Kitchen
Ownership
Fee Simple
Parcel Number
586325509
Patio And Porch Features
Covered, Rear Porch, Screened
Pet Restrictions
Buyer responsibility to verify with HOA.
Pets Allowed
Yes
Planned Unit Development YN
1
Pool Private YN
true
Postal Code Plus 4
3714
Previous List Price
1290000
Price Change Timestamp
2025-09-06T18:43:01.000Z
Public Survey Range
19
Public Survey Section
26
RATIO Current Price By Calculated SqFt
486.75
Realtor Info
CDD Addendum required, Docs Available, Floor Plan Available, No Sign, See Attachments, Survey Available
Road Responsibility
Private Maintained Road
Road Surface Type
Paved
Roof
Tile
Room Count
10
SW Subdiv Community Name
Lakewood Ranch
Security Features
Closed Circuit Camera(s), Gated Community, Security Gate, Security System
Senior Community YN
false
Sewer
Public Sewer
Showing Requirements
ShowingTime
Spa Features
Heated, In Ground
Spa YN
true
Status Change Timestamp
2025-07-17T18:29:59.000Z
Stories Total
1
Tax Annual Amount
16149
Tax Legal Description
LOT 115 COUNTRY CLUB EAST AT LAKEWOOD RANCH SP UU UN 1D AKA COLLINGTREE PI#5863.2550/9
Tax Lot
115
Tax Other Annual Assessment Amount
2690
Tax Year
2024
Total Acreage
1/4 to less than 1/2
Total Annual Fees
5870.00
Total Monthly Fees
489.17
Township
35
Universal Property Id
US-12081-N-586325509-R-N
Unparsed Address
16620 COLLINGTREE XING
Utilities
BB/HS Internet Available, Cable Connected, Electricity Connected, Natural Gas Connected, Public, Sewer Connected, Sprinkler Recycled, Underground Utilities, Water Connected
Vegetation
Mature Landscaping, Trees/Landscaped
Water Source
Public
Waterfront YN
false
Window Features
Blinds, Shutters, Storm Window(s)
Zoning
PDMU/A
Zoning Compatible YN
1
Neighborhood Map
Popup

Property Photos
Listing Photo
Listing Photo
Listing Photo
Listing Photo
Listing Photo
Listing Photo
Listing Photo
Listing Photo
Listing Photo
Listing Photo
Listing Photo
Listing Photo
Listing Photo
Listing Photo
Listing Photo
Listing Photo
Listing Photo
Listing Photo
Listing Photo
Listing Photo
Listing Photo
Listing Photo
Listing Photo
Listing Photo
Listing Photo
Listing Photo
Listing Photo
Listing Photo
Listing Photo
Listing Photo
Listing Photo
Listing Photo
Listing Photo
Listing Photo
Listing Photo
Listing Photo
Listing Photo
Listing Photo
Listing Photo
Listing Photo
Listing Photo
Listing Photo
Listing Photo
Listing Photo
Listing Photo
Listing Photo
Listing Photo
Listing Photo
Listing Photo
Listing Photo
Listing Photo
Listing Photo
Listing Photo
Listing Photo
Listing Photo
Listing Photo
Listing Photo
Listing Photo
Listing Photo
Listing Photo
Listing Photo
Listing Photo
Listing Photo
Listing Photo
Listing Photo
Listing Photo
Listing Photo
Listing Photo
Listing Photo
Listing Photo
Listing Photo
Listing Photo
Listing Photo
Listing Photo
Listing Photo
Listing Photo
Listing Photo
Listing Photo
Listing Photo
Listing Photo
Listing Photo
Listing Photo
Listing Photo
Listing Photo
Listing Photo
Listing Photo
Listing Photo
Listing Photo
Listing Photo
Listing Photo
Listing Photo
Listing Photo
Listing Photo
Listing Photo
Listing Photo
Listing Photo
Listing Photo
Listing Photo
Listing Photo
Listing Photo
Listing Photo
Listing Photo
Listing Photo
Listing Photo
Listing Photo
Listing Photo

MLS #MFRA4658990 Listing courtesy of Coldwell Banker Realty provided by Stellar MLS.

Similar Listings

$1,150,000
14909 Secret Harbor Place
Lakewood Ranch
3BR/2BA
| Active
$1,150,000
14519 Leopard Creek Place
Lakewood Ranch
3BR/2BA
| Pending
$1,195,000
7210 Lake Forest Glen
Lakewood Ranch
3BR/2BA
| Active
$1,249,000
7108 Callander Cove
Lakewood Ranch
3BR/2BA
| Active



All listing information is deemed reliable but not guaranteed and should be independently verified through personal inspection by appropriate professionals. Listings displayed on this website may be subject to prior sale or removal from sale; availability of any listing should always be independent verified. Listing information is provided for consumer personal, non-commercial use, solely to identify potential properties for potential purchase; all other use is strictly prohibited and may violate relevant federal and state law. The source of the listing data is as follows: Stellar MLS (updated 3/18/26 11:58 PM) |

Listing Search



Translate Tool

Featured Listings
Indian Shores Real Estate
$1,250,000
3 BED
3 BATH
Just steps from the powdery, sugar-white sands of Indian Shores Beach, this extraordinary 3-bedroom, 3-bath townhome is ... Read More
New Smyrna Beach Real Estate
$1,200,000
3 BED
3 BATH
Discover the potential of this rare and expansive Turnbull Bay, BAYFRONT property in New Smyrna Beach, offering breathta... Read More
Orlando Real Estate
$855,000
4 BED
3 BATH
The Last Property You Will Need to See. Beautifully renovated 4-bedroom, 3-bath pool home located in the highly desirabl... Read More
New Port Richey Real Estate
$1,095,000
3 BED
3 BATH
Florida luxury waterfront living at its finest! Most water frontage in the neighborhood at 122ft. This renovated home fe... Read More
Bartow Real Estate
$849,900
3 BED
2 BATH
Country with Class or County Chic—either way, this custom 2017 home delivers both style and serenity on 5.43 acres just ... Read More
Orlando Real Estate
$849,900
5 BED
3 BATH
Immaculate golf-front single-family home located in the guard-gated Eagle Creek community in Lake Nona. Built in 2019, t... Read More
Tampa Real Estate
$1,200,000
3 BED
3 BATH
One or more photo(s) has been virtually staged. BEAUTIFULLY RENOVATED Monte Carlo Towers BALCONY residence offering 2,00... Read More
Orlando Real Estate
$809,999
4 BED
3 BATH
Welcome to this beautifully maintained 4-bedroom, 3.5-bath home with a bonus office/flex space located in the highly sou... Read More
Palm Harbor Real Estate
$810,000
5 BED
3 BATH
Privately tucked along a quiet road in one of Palm Harbor’s most convenient locations, this beautifully updated 5-bedroo... Read More
Winter Garden Real Estate
$839,000
5 BED
3 BATH
Located in a Golf course community. Extensively upgraded 5-bedroom, 3-bath home with one office and approximately 3,238 ... Read More
Contact Sandra Pardo

407-990-2746

Wendy Morris LLC

Licensed in the State of Florida
BK 3146762
16797 Broadwater Avenue
Winter Garden, Florida 34787

Your privacy is our utmost concern. We will never sell your personal information. Privacy Policy
©2026 sandrapardohomes.com - all rights reserved. | Site Map