407-990-2746
Menu

16167 Hampton Crossing Drive, Winter Garden, FL

NEXT
PREV
$699,500

($246/sqft)

List Status: Active
16167 Hampton Crossing Drive
Winter Garden, FL 34787


5 beds
4 baths
2840 living sqft
Top Features
  • Subdivision: Waterleigh Ph 1c
  • Built in  2017
  • Single Family Residence
Description
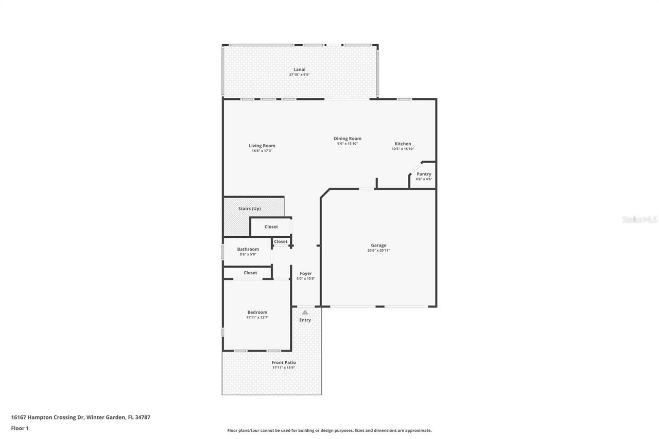
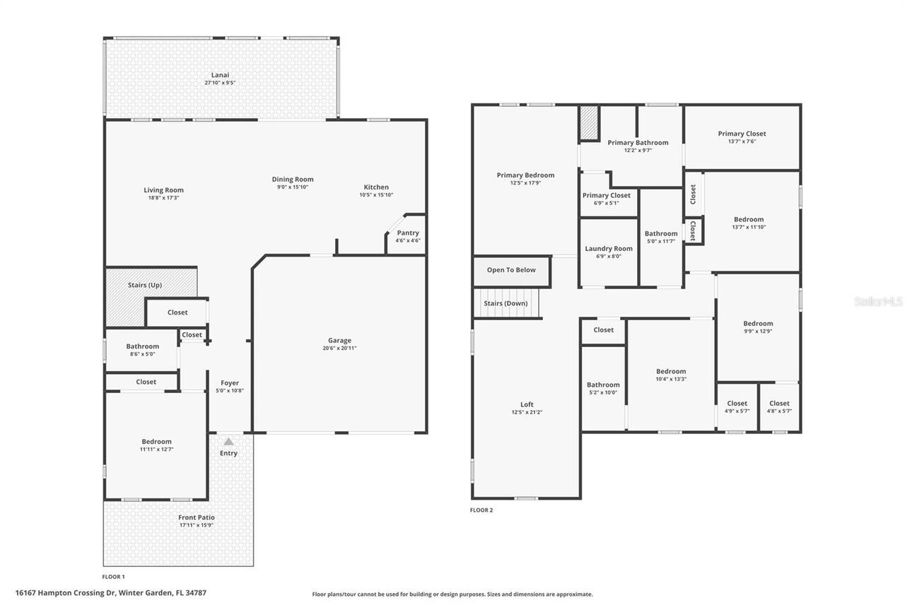
Welcome to 16167 Hampton Crossing Drive, a beautifully maintained 5-bedroom, 4-bathroom home built in 2017 and cared for by its original owners. Designed for modern living, the home offers functional spaces, contemporary finishes, and a truly move-in-ready feel. Inside, the home opens to a bright, welcoming layout with an open floor plan designed for both everyday comfort and effortless entertaining. The kitchen flows seamlessly into the living room, creating a connected space that’s perfect for hosting gatherings or enjoying relaxed family time. Anchoring the kitchen is a large center island with built-in storage, complemented by a spacious pantry and generous counter space—ideal for meal prep, casual dining, and bringing people together. A standout feature of the floor plan is the main-floor guest suite, complete with a full bedroom and bathroom with a tub/shower combo and bright windows overlooking the front porch—perfect for guests, teens, or multigenerational living. Upstairs, the primary suite offers a relaxing retreat with a walk-in closet and ensuite bath featuring dual sinks, a soaking tub, and a separate shower. The second floor includes four bedrooms and three full bathrooms, including an additional ensuite bedroom, plus a generous loft and a spacious upstairs laundry room. Outdoor living truly shines at this home, which is tucked away on a quiet cul-de-sac with limited traffic, offering a peaceful setting in a private corner of the neighborhood. A large, screened-in covered lanai with ceiling fans creates the perfect spot for relaxing evenings or hosting friends year-round. Beyond the lanai, the oversized, fully fenced backyard feels like a private retreat, complete with mature palm trees and a hammock—ideal for unwinding, playtime, pets, or envisioning future outdoor enhancements. Located in the highly sought-after Waterleigh community in Winter Garden, this home offers access to one of Horizon West’s most desirable master-planned neighborhoods. Waterle
Property Details
Additional Information
Additional Lease Restrictions
Buyer to verify all leasing restrictions with the HOA.
Additional Parcels YN
false
Additional Rooms
Bonus Room
Alternate Key Folio Num
272331885103460
Appliances
Dishwasher, Dryer, Microwave, Refrigerator, Washer
Association Email
hoa@empirehoa.com
Association Fee
341
Association Fee Frequency
Monthly
Association Fee Requirement
Required
Association YN
true
Attached Garage YN
true
Available For Lease YN
1
Bathrooms Total Integer
4
Building Area Source
Public Records
Building Area Total
3898
Building Area Total Srch SqM
362.14
Building Area Units
Square Feet
Calculated List Price By Calculated SqFt
246.30
Carport YN
false
Community Features
Clubhouse, Dog Park, Fitness Center, Playground, Pool, Tennis Court(s)
Construction Materials
Block, Concrete, Stucco
Cooling
Central Air
Country
US
Cumulative Days On Market
1
Current Price
699500.00
Direction Faces
South
Exterior Features
Sidewalk, Sliding Doors
Fireplace YN
false
Flood Zone Code
X
Flood Zone Date
2009-09-25
Flood Zone Panel
12095C0375F
Flooring
Carpet, Tile
Foundation Details
Slab
Furnished
Unfurnished
Garage Spaces
2
Garage YN
true
Heating
Central, Electric
Homestead YN
1
Interior Features
Ceiling Fans(s), Eat-in Kitchen, Kitchen/Family Room Combo, Living Room/Dining Room Combo, PrimaryBedroom Upstairs, Solid Surface Counters, Solid Wood Cabinets, Walk-In Closet(s)
Internet Address Display YN
true
Internet Automated Valuation Display YN
true
Internet Consumer Comment YN
true
Internet Entire Listing Display YN
true
Laundry Features
Inside, Laundry Room, Upper Level
Levels
Two
List AOR
Orlando Regional
Living Area Meters
263.84
Living Area Source
Public Records
Living Area Units
Square Feet
Lot Size Acres
0.23
Lot Size Square Feet
9928
Lot Size Square Meters
922
Minimum Lease
No Minimum
Modification Timestamp
2026-03-06T18:56:13.477Z
Monthly HOA Amount
341.00
New Construction YN
false
Occupant Type
Owner
Other Equipment
Irrigation Equipment
Ownership
Fee Simple
Parcel Number
31-23-27-8851-03-460
Pets Allowed
Yes
Pool Private YN
false
Postal Code Plus 4
9261
Public Survey Range
27
Public Survey Section
31
RATIO Current Price By Calculated SqFt
246.30
Road Surface Type
Paved
Roof
Shingle
Room Count
7
Senior Community YN
false
Sewer
Public Sewer
Showing Requirements
Sentri Lock Box
Status Change Timestamp
2026-03-05T21:08:21.000Z
Stories Total
2
Tax Annual Amount
5668.5
Tax Block
00
Tax Book Number
8851
Tax Legal Description
WATERLEIGH PHASE 1C 88/140 LOT 346
Tax Lot
346
Tax Year
2024
Total Acreage
0 to less than 1/4
Total Annual Fees
4092.00
Total Monthly Fees
341.00
Township
23
Universal Property Id
US-12095-N-312327885103460-R-N
Unparsed Address
16167 HAMPTON CROSSING DR
Utilities
BB/HS Internet Available, Electricity Connected, Water Connected
Water Source
Public
Waterfront YN
false
Zoning
P-D
Neighborhood Map
Popup

Property Photos
Listing Photo
Listing Photo
Listing Photo
Listing Photo
Listing Photo
Listing Photo
Listing Photo
Listing Photo
Listing Photo
Listing Photo
Listing Photo
Listing Photo
Listing Photo
Listing Photo
Listing Photo
Listing Photo
Listing Photo
Listing Photo
Listing Photo
Listing Photo
Listing Photo
Listing Photo
Listing Photo
Listing Photo
Listing Photo
Listing Photo
Listing Photo
Listing Photo
Listing Photo
Listing Photo
Listing Photo
Listing Photo
Listing Photo
Listing Photo
Listing Photo
Listing Photo
Listing Photo
Listing Photo
Listing Photo
Listing Photo
Listing Photo
Listing Photo
Listing Photo
Listing Photo
Listing Photo
Listing Photo
Listing Photo
Listing Photo
Listing Photo
Listing Photo
Listing Photo
Listing Photo
Listing Photo
Listing Photo
Listing Photo
Listing Photo
Listing Photo
Listing Photo
Listing Photo
Listing Photo
Listing Photo
Listing Photo
Listing Photo
Listing Photo
Listing Photo
Listing Photo
Listing Photo
Listing Photo
Listing Photo
Listing Photo
Listing Photo
Listing Photo
Listing Photo
Listing Photo
Listing Photo
Listing Photo
Listing Photo
Listing Photo
Listing Photo
Listing Photo
Listing Photo
Listing Photo
Listing Photo
Listing Photo
Listing Photo
Listing Photo
Listing Photo
Listing Photo
Listing Photo
Listing Photo
Listing Photo
Listing Photo
Listing Photo
Listing Photo
Listing Photo
Listing Photo
Listing Photo
Listing Photo
Listing Photo
Listing Photo
Listing Photo
Listing Photo
Listing Photo
Listing Photo
Listing Photo
Listing Photo
Listing Photo
Listing Photo
Listing Photo
Listing Photo
Listing Photo
Listing Photo
Listing Photo
Listing Photo
Listing Photo
Listing Photo
Listing Photo
Listing Photo
Listing Photo
Listing Photo
Listing Photo
Listing Photo
Listing Photo
Listing Photo
Listing Photo
Listing Photo
Listing Photo
Listing Photo
Listing Photo
Listing Photo
Listing Photo
Listing Photo
Listing Photo
Listing Photo
Listing Photo
Listing Photo
Listing Photo
Listing Photo
Listing Photo
Listing Photo
Listing Photo
Listing Photo
Listing Photo
Listing Photo
Listing Photo
Listing Photo

MLS #MFRO6387577 Listing courtesy of Compass Florida Llc provided by Stellar MLS.

Similar Listings

$675,000
1474 Juniper Hammock Street
Winter Garden
5BR/4BA
| Pending
$687,000
16283 Honey Harvest Street
Winter Garden
5BR/4BA
| Active
$698,900
15026 Summer Harvest Street
Winter Garden
5BR/4BA
| Active
$699,520
6399 Wild Persimmon Way
Winter Garden
5BR/4BA
| Pending



All listing information is deemed reliable but not guaranteed and should be independently verified through personal inspection by appropriate professionals. Listings displayed on this website may be subject to prior sale or removal from sale; availability of any listing should always be independent verified. Listing information is provided for consumer personal, non-commercial use, solely to identify potential properties for potential purchase; all other use is strictly prohibited and may violate relevant federal and state law. The source of the listing data is as follows: Stellar MLS (updated 3/13/26 1:20 AM) |

Listing Search



Translate Tool

Featured Listings
Winter Garden Real Estate
$839,000
5 BED
3 BATH
Located in a Golf course community. Extensively upgraded 5-bedroom, 3-bath home with one office and approximately 3,238 ... Read More
Palm Harbor Real Estate
$1,299,000
4 BED
4 BATH
This exquisite four-bedroom, four-and-a-half-bathroom estate boasts almost 4,000 square feet and has a host of upgrades.... Read More
Bradenton Real Estate
$1,200,000
4 BED
3 BATH
Welcome to a stunning 4-bedroom, plus office, home nestled in the gated Legends Bay neighborhood. This beautifully desig... Read More
The Villages Real Estate
$1,300,000
4 BED
2 BATH
Experience the Essence of Living the Dream in this Beautiful Designer 4 Bedroom 2 Bath “Ivy” in the Village of Newell. T... Read More
St Petersburg Real Estate
$1,399,500
3 BED
3 BATH
WELCOME TO 8101 38TH AVE N, ST PETERSBURG —This is the modern ranch layout you have been looking for. The primary bedroo... Read More
Orlando Real Estate
$839,990
5 BED
4 BATH
Under Construction. EverBe is a new master planned community where convenience and connections combine to create a new s... Read More
Orlando Real Estate
$1,000,000
5 BED
5 BATH
Experience luxury living in Eagle Creek, one of Lake Nona’s premier gated golf course communities. Built in 2022, this s... Read More
Tampa Real Estate
$1,050,000
4 BED
3 BATH
Welcome to 5003 W Neptune Way, a beautifully reimagined coastal-inspired residence tucked within South Tampa's highly de... Read More
Howey In The Hills Real Estate
$995,000
3 BED
2 BATH
Welcome to a place where your family can truly spread out, grow, and make lifelong memories. Nestled on 9.875 beautiful ... Read More
Redington Beach Real Estate
$1,350,000
3 BED
2 BATH
Welcome to a rare waterfront opportunity in the charming coastal community of Redington Beach. Situated directly on the ... Read More
Contact Sandra Pardo

407-990-2746

Wendy Morris LLC

Licensed in the State of Florida
BK 3146762
16797 Broadwater Avenue
Winter Garden, Florida 34787

Your privacy is our utmost concern. We will never sell your personal information. Privacy Policy
©2026 sandrapardohomes.com - all rights reserved. | Site Map